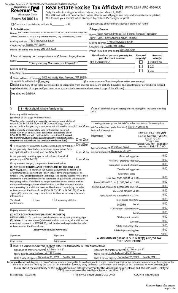
Property
Account |
| Property ID: | 694626 | Abbreviated Legal Description: | LOT 1 SP 18-92.23326.119-4240 V2 SP P461 AF#94011429 |
| Geographic ID: | R23326-118-4190 | Agent Code: | |
| Type: | Real | | |
| Tax Area: | 112 - APPRAISER-OH Schl Dist, outside OH, improved, greater than 1 acre | Land Use Code | 11 |
| Open Space: | N | DFL | N |
| Historic Property: | N | Remodel Property: | N |
| Multi-Family Redevelopment: | N | | |
| Township: | 33 | Section: | 26 |
| Range: | R2 |
Location |
| Address: | 2880 STRAWBERRY POINT RD OAK HARBOR, WA 98277 | Mapsco: | |
| Neighborhood: | Cycle 6 | Map ID: | 624 |
| Neighborhood CD: | 6 |
Owner |
| Name: | PHELPS, ZACHARY A | Owner ID: | 73795 |
| Mailing Address: | PROVIDENCE T PHELPS 2880 STRAWBERRY POINT RD OAK HARBOR, WA 98277 | % Ownership: | 100.0000000000% |
| | | Exemptions: | |
Taxes and Assessment Details
Values
| (+) Improvement Homesite Value: | + | $0 | |
| (+) Improvement Non-Homesite Value: | + | $762,777 | |
| (+) Land Homesite Value: | + | $0 | |
| (+) Land Non-Homesite Value: | + | $575,000 | |
| (+) Curr Use (HS): | + | $0 | $0 |
| (+) Curr Use (NHS): | + | $0 | $0 |
| | | -------------------------- | |
| (=) Market Value: | = | $1,337,777 | |
| (–) Productivity Loss: | – | $0 | |
| | | -------------------------- | |
| (=) Subtotal: | = | $1,337,777 | |
| (+) Senior Appraised Value: | + | $0 | |
| (+) Non-Senior Appraised Value: | + | $1,337,777 | |
| | | -------------------------- | |
| (=) Total Appraised Value: | = | $1,337,777 | |
| (–) Senior Exemption Loss: | – | $0 | |
| (–) Exemption Loss: | – | $0 | |
| | | -------------------------- | |
| (=) Taxable Value: | = | $1,337,777 | |
Taxing Jurisdiction
| Owner: | PHELPS, ZACHARY A | | |
| % Ownership: | 100.0000000000% | | |
| Total Value: | $1,337,777 | | |
| Tax Area: | 112 - APPRAISER-OH Schl Dist, outside OH, improved, greater than 1 acre |
| CF | Conservation Futures | 0.0316035091 | $1,337,777 | $1,337,777 | $42.28 | | |
| CEM1 | Cemetery #1 | 0.0040320932 | $1,337,777 | $1,337,777 | $5.39 | | |
| FIRE2 | Fire & Rescue Dist #2 N Whidbey GEN | 0.5475949600 | $1,337,777 | $1,337,777 | $732.56 | | |
| HOBOND | Hospital BOND | 0.1910887512 | $1,337,777 | $1,337,777 | $255.63 | | |
| HOGEN | Hospital GEN | 0.3902502903 | $1,337,777 | $1,337,777 | $522.07 | | |
| CE | County Current Expense | 0.3708482477 | $1,337,777 | $1,337,777 | $496.11 | | |
| CR | County Roads | 0.4584763726 | $1,337,777 | $1,337,777 | $613.34 | | |
| ISLANDEMS | Hospital GEN (EMS) | 0.5000000000 | $1,337,777 | $1,337,777 | $668.89 | | |
| LIB | Library Sno-Isle GEN | 0.3153421757 | $1,337,777 | $1,337,777 | $421.86 | | |
| NWHIDPRMT | P & R N Whidbey GEN | 0.2004466701 | $1,337,777 | $1,337,777 | $268.15 | | |
| SCH201MO | School 201 Enrichment | 1.8559231640 | $1,337,777 | $1,337,777 | $2,482.81 | | |
| ST | State School | 1.3035497053 | $1,337,777 | $1,337,777 | $1,743.86 | | |
| ST2 | State School Part 2 | 0.8169543533 | $1,337,777 | $1,337,777 | $1,092.90 | | |
| | Total Tax Rate: | 6.9861102925 | | | | | |
| | | | | Taxes w/Current Exemptions: | $9,345.85 | | |
| | | | | Taxes w/o Exemptions: | $9,345.85 | | |
Improvement / Building
| Improvement #1: | RESIDENTIAL | State Code: | Y | 4254.7 sqft | Value: | $762,777 |
| Bathrooms: | 4.5 | Bedrooms: | 3 | | Ceiling: | DRYWALL PAINTED | Cooling: | HEAT PUMP/CONV/V | | Exterior Wall/Cover: | CEMENT FIBER | Floor Covering: | HARDWOOD/CARP 80-20 | | Floor Structure: | WOOD W/SUBFLOOR | Foundation: | CONCRETE | | Interior Finish: | DRYWALL PAINT | Plumbing Fixture Cnt: | 19 | | Roof Slope: | 5" IN 12" | Roof Structure/Cover: | CJ ASPHALT |
|
| | Type | Description | Class CD | Sub Class CD | Year Built | Area |
| | BAS | BASE/MAIN FLOOR | 4 | 0 | 1992 | 4254.7 |
| | OP4 | OPEN PORCH W/CEILING-ROOF | 4 | 0 | 1992 | 69.2 |
| | AGR | ATTACHED GARAGE | 4 | 0 | 1992 | 824.0 |
| | OWP | OPEN WOOD PORCH W/STEPS | 4 | 0 | 1992 | 535.7 |
| | OP2 | OPEN PORCH W/STEPS | 4 | 0 | 1992 | 54.0 |
Sketch
Property Image
Land
| 1 | HB | HIGH BLUFF | 1.0200 | 44431.20 | 145.00 | 0.00 | 1.00 | $575,000 | $0 |
Roll Value History
| 2026 | N/A | N/A | N/A | N/A | N/A |
| 2025 | $762,777 | $575,000 | $0 | $1,337,777 | $1,337,777 |
| 2024 | $772,166 | $550,000 | $0 | $1,322,166 | $1,322,166 |
| 2023 | $781,554 | $525,000 | $0 | $1,306,554 | $1,306,554 |
| 2022 | $659,467 | $475,000 | $0 | $1,134,467 | $1,134,467 |
| 2021 | $580,667 | $350,000 | $0 | $930,667 | $930,667 |
| 2020 | $567,681 | $300,000 | $0 | $867,681 | $867,681 |
| 2019 | $476,321 | $350,000 | $0 | $826,321 | $826,321 |
| 2018 | $477,770 | $280,000 | $0 | $757,770 | $757,770 |
| 2017 | $480,664 | $200,000 | $0 | $680,664 | $680,664 |
| 2016 | $476,589 | $200,000 | $0 | $676,589 | $676,589 |
| 2015 | $482,401 | $200,000 | $0 | $682,401 | $682,401 |
| 2014 | $488,214 | $200,000 | $0 | $688,214 | $688,214 |
| 2013 | $494,025 | $285,813 | $0 | $779,838 | $779,838 |
| 2012 | $499,837 | $285,813 | $0 | $785,650 | $785,650 |
| 2011 | $505,648 | $285,813 | $0 | $791,461 | $791,461 |
| 2010 | $556,869 | $285,813 | $0 | $842,682 | $842,682 |
| 2009 | $550,000 | $300,000 | $0 | $850,000 | $850,000 |
| 2008 | $465,636 | $421,924 | $0 | $887,560 | $887,560 |
| 2007 | $443,379 | $350,917 | $0 | $794,296 | $794,296 |
Deed and Sales History
| 1 | 10/06/2008 | WD | Warranty Deed | LAYTON, JUDY A | PHELPS, ZACH | | | $850,000.00 | 82679 | 4238276 |
| 2 | 01/18/2008 | QCD | Quit Claim Deed | LAYTON, DOUGLAS B | LAYTON, JUDY A | | | $0.00 | 80206 | 4220555 |
| 3 | 01/01/1900 | OTHER | Other - Misc. Documents | Unknown | LAYTON, DOUGLAS B | | | $0.00 | 2274 | 90007442 |
Payout Agreement
| No payout information available.. |