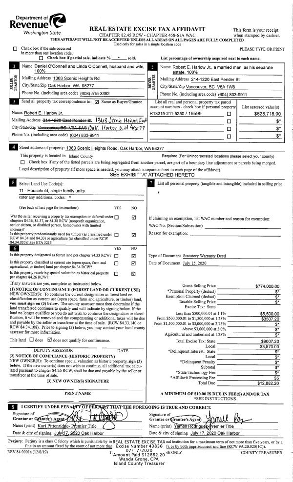
Property
Account |
| Property ID: | 694993 | Abbreviated Legal Description: | E/2 E/2 GL 3 EX S20'FOR RD FR 510-2000 & 440-2000 (PARCEL A) |
| Geographic ID: | R22901-475-2450 | Agent Code: | |
| Type: | Real | | |
| Tax Area: | 712 - APPRAISER-S Whid Schl Dist, outside Langley, improved, greater than 1 acre | Land Use Code | 11 |
| Open Space: | N | DFL | N |
| Historic Property: | N | Remodel Property: | N |
| Multi-Family Redevelopment: | N | | |
| Township: | 29 | Section: | 01 |
| Range: | R2 |
Location |
| Address: | 4820 SETTLERS LN FREELAND, WA 98249 | Mapsco: | |
| Neighborhood: | Cycle 3 | Map ID: | 283 |
| Neighborhood CD: | 3 |
Owner |
| Name: | JUDISCAK, KEVIN M | Owner ID: | 252785 |
| Mailing Address: | DOROTHY L JUDISCAK 4852 E CLARENDON AVE PHOENIX, AZ 85018 | % Ownership: | 100.0000000000% |
| | | Exemptions: | |
Taxes and Assessment Details
Values
| (+) Improvement Homesite Value: | + | $0 | |
| (+) Improvement Non-Homesite Value: | + | $189,850 | |
| (+) Land Homesite Value: | + | $0 | |
| (+) Land Non-Homesite Value: | + | $370,000 | |
| (+) Curr Use (HS): | + | $0 | $0 |
| (+) Curr Use (NHS): | + | $0 | $0 |
| | | -------------------------- | |
| (=) Market Value: | = | $559,850 | |
| (–) Productivity Loss: | – | $0 | |
| | | -------------------------- | |
| (=) Subtotal: | = | $559,850 | |
| (+) Senior Appraised Value: | + | $0 | |
| (+) Non-Senior Appraised Value: | + | $559,850 | |
| | | -------------------------- | |
| (=) Total Appraised Value: | = | $559,850 | |
| (–) Senior Exemption Loss: | – | $0 | |
| (–) Exemption Loss: | – | $0 | |
| | | -------------------------- | |
| (=) Taxable Value: | = | $559,850 | |
Taxing Jurisdiction
| Owner: | JUDISCAK, KEVIN M | | |
| % Ownership: | 100.0000000000% | | |
| Total Value: | $559,850 | | |
| Tax Area: | 712 - APPRAISER-S Whid Schl Dist, outside Langley, improved, greater than 1 acre |
| CF | Conservation Futures | 0.0316035091 | $559,850 | $559,850 | $17.69 | | |
| FIRE3 | Fire & Rescue Dist #3 S Whidbey GEN | 1.2004855531 | $559,850 | $559,850 | $672.09 | | |
| HOBOND | Hospital BOND | 0.1910887512 | $559,850 | $559,850 | $106.98 | | |
| HOGEN | Hospital GEN | 0.3902502903 | $559,850 | $559,850 | $218.48 | | |
| CE | County Current Expense | 0.3708482477 | $559,850 | $559,850 | $207.62 | | |
| CR | County Roads | 0.4584763726 | $559,850 | $559,850 | $256.68 | | |
| ISLANDEMS | Hospital GEN (EMS) | 0.5000000000 | $559,850 | $559,850 | $279.93 | | |
| LIB | Library Sno-Isle GEN | 0.3153421757 | $559,850 | $559,850 | $176.54 | | |
| PORTWHID | Port of S Whidbey GEN | 0.1094540357 | $559,850 | $559,850 | $61.28 | | |
| SCH206BOND | School 206 BOND | 0.3161759235 | $559,850 | $559,850 | $177.01 | | |
| SCH206MO | School 206 Enrichment | 0.4547169547 | $559,850 | $559,850 | $254.57 | | |
| ST | State School | 1.3035497053 | $559,850 | $559,850 | $729.79 | | |
| ST2 | State School Part 2 | 0.8169543533 | $559,850 | $559,850 | $457.37 | | |
| SWHIDPRBD | P & R S Whidbey BOND | 0.0152817568 | $559,850 | $559,850 | $8.56 | | |
| SWHIDPRBD2 | P & R S Whidbey BOND2 | 0.0138911264 | $559,850 | $559,850 | $7.78 | | |
| SWHIDPRMT | P & R S Whidbey GEN | 0.2053334452 | $559,850 | $559,850 | $114.96 | | |
| | Total Tax Rate: | 6.6934522006 | | | | | |
| | | | | Taxes w/Current Exemptions: | $3,747.33 | | |
| | | | | Taxes w/o Exemptions: | $3,747.33 | | |
Improvement / Building
| Improvement #1: | RESIDENTIAL | State Code: | Y | 969.6 sqft | Value: | $189,850 |
| Bathrooms: | 1 | Bedrooms: | 2 | | Ceiling: | DRYWALL PAINTED | Exterior Wall/Cover: | PLY/HARDBOARD T-111 | | Floor Covering: | CERAMIC TILE/CPT 40-60 | Floor Structure: | WOOD W/SUBFLOOR | | Foundation: | CONCRETE | Interior Finish: | DRYWALL PAINT | | Plumbing Fixture Cnt: | 6 | Roof Slope: | 6" IN 12" | | Roof Structure/Cover: | CJ ALUMINIUM HEAVY |   |   |
|
| | Type | Description | Class CD | Sub Class CD | Year Built | Area |
| | BAS | BASE/MAIN FLOOR | 3 | 0 | 2005 | 969.6 |
| | CPD | OPEN CARPORT DIRT FLOOR | 3 | 0 | 2005 | 32.0 |
| | OP4 | OPEN PORCH W/CEILING-ROOF | 3 | 0 | 2005 | 108.0 |
| | ENP | ENCLOSED PORCH | 3 | 0 | 2005 | 84.0 |
Sketch
Property Image
Land
| 1 | 32 | AC (03.01-09.99) | 4.8200 | 0.00 | 0.00 | 0.00 | 1.00 | $370,000 | $0 |
| 2 | 53 | CRITICAL AREAS | 5.0000 | 217800.00 | 0.00 | 0.00 | 1.00 | $0 | $0 |
Roll Value History
| 2026 | N/A | N/A | N/A | N/A | N/A |
| 2025 | $189,850 | $370,000 | $0 | $559,850 | $559,850 |
| 2024 | $192,130 | $350,000 | $0 | $542,130 | $542,130 |
| 2023 | $194,412 | $330,000 | $0 | $524,412 | $524,412 |
| 2022 | $178,100 | $280,000 | $0 | $458,100 | $458,100 |
| 2021 | $156,671 | $230,000 | $0 | $386,671 | $386,671 |
| 2020 | $152,566 | $190,000 | $0 | $342,566 | $342,566 |
| 2019 | $106,375 | $230,000 | $0 | $336,375 | $336,375 |
| 2018 | $106,685 | $210,000 | $0 | $316,685 | $316,685 |
| 2017 | $107,265 | $180,000 | $0 | $287,265 | $287,265 |
| 2016 | $108,499 | $165,000 | $0 | $273,499 | $273,499 |
| 2015 | $109,732 | $165,000 | $0 | $274,732 | $274,732 |
| 2014 | $110,965 | $147,300 | $0 | $258,265 | $258,265 |
| 2013 | $112,960 | $132,140 | $0 | $245,100 | $245,100 |
| 2012 | $114,201 | $132,140 | $0 | $246,341 | $246,341 |
| 2011 | $115,442 | $132,140 | $0 | $247,582 | $247,582 |
| 2010 | $120,186 | $132,140 | $0 | $252,326 | $252,326 |
| 2009 | $123,946 | $189,980 | $0 | $313,926 | $313,926 |
| 2008 | $125,322 | $271,920 | $0 | $397,242 | $397,242 |
| 2007 | $127,305 | $206,300 | $0 | $333,605 | $333,605 |
Deed and Sales History
| 1 | 11/18/2010 | QCD | Quit Claim Deed | JUDISCAK, KEVIN M | JUDISCAK, KEVIN M | | | $0.00 | 3087 | 4286599 |
| 2 | 11/18/2010 | QCD | Quit Claim Deed | JUDISCAK, KEVIN | JUDISCAK, KEVIN M | | | $0.00 | 3037 | 4286130 |
| 3 | 07/24/2000 | WD | Warranty Deed | Unknown | JUDISCAK, KEVIN | | | $60,916.00 | 3037 | 20014176 |
| 4 | 06/01/1994 | OTHER | Other - Misc. Documents | SHELLENBERGER, DAVID | SHELLENBERGER, DAVID | | | $0.00 | 65943 | 0 |
| 5 | 01/01/1900 | OTHER | Other - Misc. Documents | Unknown | SHELLENBERGER, DAVID | | | $0.00 | 63787 | 0 |
Payout Agreement
| No payout information available.. |