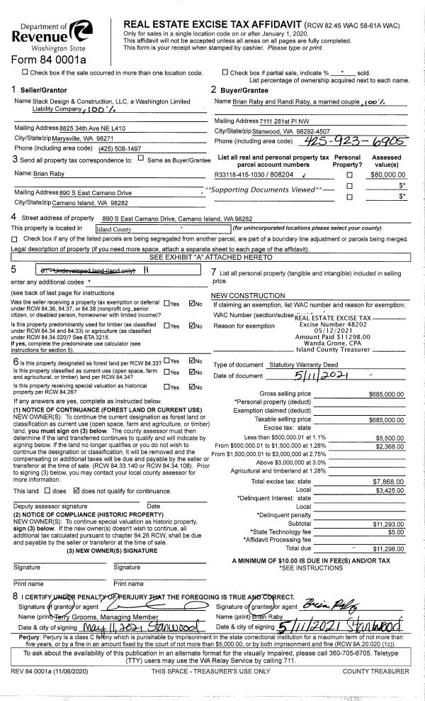
Property
Account |
| Property ID: | 695803 | Abbreviated Legal Description: | E/2 W/2 S/2 SE SW TGW & SUB EZ FR 038-2250 |
| Geographic ID: | R32906-037-2450 | Agent Code: | |
| Type: | Real | | |
| Tax Area: | 712 - APPRAISER-S Whid Schl Dist, outside Langley, improved, greater than 1 acre | Land Use Code | 11 |
| Open Space: | N | DFL | N |
| Historic Property: | N | Remodel Property: | N |
| Multi-Family Redevelopment: | N | | |
| Township: | 29 | Section: | 06 |
| Range: | R3 |
Location |
| Address: | | Mapsco: | |
| Neighborhood: | Cycle 4 | Map ID: | 737 |
| Neighborhood CD: | 4 |
Owner |
| Name: | CRIBBS, KAREN K | Owner ID: | 17254 |
| Mailing Address: | PO BOX 1148 FREELAND, WA 98249-1148 | % Ownership: | 100.0000000000% |
| | | Exemptions: | SNR/DSBL |
Taxes and Assessment Details
Values
| (+) Improvement Homesite Value: | + | $136,934 | |
| (+) Improvement Non-Homesite Value: | + | $168,926 | |
| (+) Land Homesite Value: | + | $311,475 | |
| (+) Land Non-Homesite Value: | + | $68,525 | |
| (+) Curr Use (HS): | + | $0 | $0 |
| (+) Curr Use (NHS): | + | $0 | $0 |
| | | -------------------------- | |
| (=) Market Value: | = | $685,860 | |
| (–) Productivity Loss: | – | $0 | |
| | | -------------------------- | |
| (=) Subtotal: | = | $685,860 | |
| (+) Senior Appraised Value: | + | $220,807 | |
| (+) Non-Senior Appraised Value: | + | $237,451 | |
| | | -------------------------- | |
| (=) Total Appraised Value: | = | $458,258 | |
| (–) Senior Exemption Loss: | – | $132,484 | |
| (–) Exemption Loss: | – | $0 | |
| | | -------------------------- | |
| (=) Taxable Value: | = | $325,774 | |
Taxing Jurisdiction
| Owner: | CRIBBS, KAREN K | | |
| % Ownership: | 100.0000000000% | | |
| Total Value: | $685,860 | | |
| Tax Area: | 712 - APPRAISER-S Whid Schl Dist, outside Langley, improved, greater than 1 acre |
| CF | Conservation Futures | 0.0316035091 | $685,860 | $325,774 | $10.30 | | |
| FIRE3 | Fire & Rescue Dist #3 S Whidbey GEN | 1.2004855531 | $685,860 | $325,774 | $391.09 | | |
| HOBOND | Hospital BOND | 0.0000000000 | $685,860 | $237,451 | $45.37 | | |
| HOGEN | Hospital GEN | 0.3902502903 | $685,860 | $325,774 | $127.13 | | |
| CE | County Current Expense | 0.3708482477 | $685,860 | $325,774 | $120.81 | | |
| CR | County Roads | 0.4584763726 | $685,860 | $325,774 | $149.36 | | |
| ISLANDEMS | Hospital GEN (EMS) | 0.5000000000 | $685,860 | $325,774 | $162.89 | | |
| LIB | Library Sno-Isle GEN | 0.3153421757 | $685,860 | $325,774 | $102.73 | | |
| PORTWHID | Port of S Whidbey GEN | 0.1094540357 | $685,860 | $325,774 | $35.66 | | |
| SCH206BOND | School 206 BOND | 0.3161759235 | $685,860 | $325,774 | $103.00 | | |
| SCH206MO | School 206 Enrichment | 0.0000000000 | $685,860 | $237,451 | $107.97 | | |
| ST | State School | 1.3035497053 | $685,860 | $325,774 | $424.66 | | |
| ST2 | State School Part 2 | 0.0000000000 | $685,860 | $237,451 | $193.99 | | |
| SWHIDPRBD | P & R S Whidbey BOND | 0.0000000000 | $685,860 | $237,451 | $3.63 | | |
| SWHIDPRBD2 | P & R S Whidbey BOND2 | 0.0000000000 | $685,860 | $237,451 | $3.30 | | |
| SWHIDPRMT | P & R S Whidbey GEN | 0.2053334452 | $685,860 | $325,774 | $66.89 | | |
| | Total Tax Rate: | 5.2015192582 | | | | | |
| | | | | Taxes w/Current Exemptions: | $2,048.78 | | |
| | | | | Taxes w/o Exemptions: | $4,590.78 | | |
Improvement / Building
| Improvement #1: | RESIDENTIAL | State Code: | Y | 2040.0 sqft | Value: | $305,860 |
| Bathrooms: | 2 | Bedrooms: | 1 | | Ceiling: | DRYWALL PAINTED | Exterior Wall/Cover: | PLY/HARDBOARD T-111 | | Floor Covering: | HARDWOOD 100% | Floor Structure: | SLAB ON GRADE | | Foundation: | SLAB | Heating: | RAD HOT WATER-GAS | | Interior Finish: | DRYWALL PAINT | Plumbing Fixture Cnt: | 9 | | Roof Slope: | 8" IN 12" | Roof Structure/Cover: | CJ ASPHALT |
|
| | Type | Description | Class CD | Sub Class CD | Year Built | Area |
| | BAS | BASE/MAIN FLOOR | 3 | 0 | 1995 | 1128.0 |
| | OP1 | OPEN PORCH SLAB | 3 | 0 | 1995 | 182.0 |
| | UTY | STORAGE/UTILITY | 3 | 0 | 1995 | 480.0 |
| | UPS | UPPER STORY | 3 | 0 | 1995 | 912.0 |
| | OWP | OPEN WOOD PORCH W/STEPS | 3 | 0 | 1995 | 304.0 |
| | UTY | STORAGE/UTILITY | 3 | 0 | 1995 | 356.0 |
| | OWP | OPEN WOOD PORCH W/STEPS | 3 | 0 | 1995 | 230.0 |
Sketch
Property Image
Land
| 1 | 32 | AC (03.01-09.99) | 6.1000 | 0.00 | 0.00 | 0.00 | 1.00 | $380,000 | $0 |
Roll Value History
| 2026 | N/A | N/A | N/A | N/A | N/A |
| 2025 | $305,860 | $380,000 | $0 | $685,860 | $325,774 |
| 2024 | $309,817 | $350,000 | $0 | $659,817 | $322,550 |
| 2023 | $313,779 | $330,000 | $0 | $643,779 | $321,131 |
| 2022 | $287,725 | $290,000 | $0 | $577,725 | $299,529 |
| 2021 | $253,316 | $230,000 | $0 | $483,316 | $269,704 |
| 2020 | $235,332 | $190,000 | $0 | $425,332 | $252,559 |
| 2019 | $181,048 | $250,000 | $0 | $431,048 | $233,398 |
| 2018 | $181,619 | $210,000 | $0 | $391,619 | $226,500 |
| 2017 | $182,761 | $190,000 | $0 | $372,761 | $223,524 |
| 2016 | $185,047 | $165,000 | $0 | $350,047 | $219,192 |
| 2015 | $187,332 | $165,000 | $0 | $352,332 | $220,863 |
| 2014 | $187,321 | $164,700 | $0 | $352,021 | $220,703 |
| 2013 | $189,491 | $164,700 | $0 | $354,191 | $222,290 |
| 2012 | $191,661 | $164,700 | $0 | $356,361 | $223,877 |
| 2011 | $193,829 | $164,700 | $0 | $358,529 | $358,529 |
| 2010 | $197,742 | $164,700 | $0 | $362,442 | $362,442 |
| 2009 | $206,383 | $268,400 | $0 | $474,783 | $474,783 |
| 2008 | $201,323 | $209,352 | $0 | $410,675 | $410,675 |
| 2007 | $204,138 | $209,352 | $0 | $413,490 | $413,490 |
Deed and Sales History
| 1 | 08/01/1994 | WD | Warranty Deed | STENGER, JOHN E | CRIBBS, KAREN K | | | $48,000.00 | 43498 | 94018606 |
| 2 | 07/01/1994 | OTHER | Other - Misc. Documents | STENGER, JOHN E | STENGER, JOHN E | | | $0.00 | 65956 | 0 |
| 3 | 01/01/1900 | OTHER | Other - Misc. Documents | Unknown | STENGER, JOHN E | | | $0.00 | 5423 | 90018111 |
Payout Agreement
| No payout information available.. |