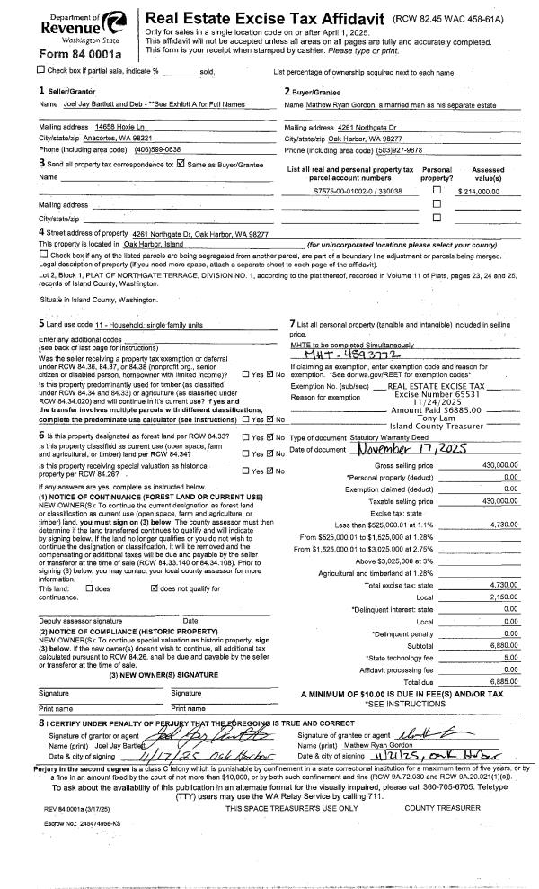
Property
Account |
| Property ID: | 696312 | Abbreviated Legal Description: | 1985 FLEETWOOD BROADMORE 14X66 VIN# TNFL1AF252612547 TPO +099404 |
| Geographic ID: | M91700000034-4 | Agent Code: | |
| Type: | Mobile Home | | |
| Tax Area: | 110 - APPRAISER-OH Schl Dist, outside OH, improved & 1 acre or less | Land Use Code | 11 |
| Open Space: | N | DFL | N |
| Historic Property: | N | Remodel Property: | N |
| Multi-Family Redevelopment: | N | | |
| Township: | | Section: | |
| Range: | |
Location |
| Address: | 2920 HELLER RD # 34 OAK HARBOR, WA 98277 | Mapsco: | |
| Neighborhood: | Cycle 6 | Map ID: | |
| Neighborhood CD: | 6 |
Owner |
| Name: | KITCHELL, CRISSY DARNELL | Owner ID: | 312275 |
| Mailing Address: | 2920 HELLER RD #34 OAK HARBOR, WA 98277 | % Ownership: | 100.0000000000% |
| | | Exemptions: | |
Taxes and Assessment Details
Values
| (+) Improvement Homesite Value: | + | $0 | |
| (+) Improvement Non-Homesite Value: | + | $12,718 | |
| (+) Land Homesite Value: | + | $0 | |
| (+) Land Non-Homesite Value: | + | $0 | |
| (+) Curr Use (HS): | + | $0 | $0 |
| (+) Curr Use (NHS): | + | $0 | $0 |
| | | -------------------------- | |
| (=) Market Value: | = | $12,718 | |
| (–) Productivity Loss: | – | $0 | |
| | | -------------------------- | |
| (=) Subtotal: | = | $12,718 | |
| (+) Senior Appraised Value: | + | $0 | |
| (+) Non-Senior Appraised Value: | + | $12,718 | |
| | | -------------------------- | |
| (=) Total Appraised Value: | = | $12,718 | |
| (–) Senior Exemption Loss: | – | $0 | |
| (–) Exemption Loss: | – | $0 | |
| | | -------------------------- | |
| (=) Taxable Value: | = | $12,718 | |
Taxing Jurisdiction
| Owner: | KITCHELL, CRISSY DARNELL | | |
| % Ownership: | 100.0000000000% | | |
| Total Value: | $12,718 | | |
| Tax Area: | 110 - APPRAISER-OH Schl Dist, outside OH, improved & 1 acre or less |
| CF | Conservation Futures | 0.0316035091 | $12,718 | $12,718 | $0.40 | | |
| CEM1 | Cemetery #1 | 0.0040320932 | $12,718 | $12,718 | $0.05 | | |
| FIRE2 | Fire & Rescue Dist #2 N Whidbey GEN | 0.5475949600 | $12,718 | $12,718 | $6.96 | | |
| HOBOND | Hospital BOND | 0.1910887512 | $12,718 | $12,718 | $2.43 | | |
| HOGEN | Hospital GEN | 0.3902502903 | $12,718 | $12,718 | $4.96 | | |
| CE | County Current Expense | 0.3708482477 | $12,718 | $12,718 | $4.72 | | |
| CR | County Roads | 0.4584763726 | $12,718 | $12,718 | $5.83 | | |
| ISLANDEMS | Hospital GEN (EMS) | 0.5000000000 | $12,718 | $12,718 | $6.36 | | |
| LIB | Library Sno-Isle GEN | 0.3153421757 | $12,718 | $12,718 | $4.01 | | |
| NWHIDPRMT | P & R N Whidbey GEN | 0.2004466701 | $12,718 | $12,718 | $2.55 | | |
| SCH201MO | School 201 Enrichment | 1.8559231640 | $12,718 | $12,718 | $23.60 | | |
| ST | State School | 1.3035497053 | $12,718 | $12,718 | $16.58 | | |
| ST2 | State School Part 2 | 0.8169543533 | $12,718 | $12,718 | $10.39 | | |
| | Total Tax Rate: | 6.9861102925 | | | | | |
| | | | | Taxes w/Current Exemptions: | $88.84 | | |
| | | | | Taxes w/o Exemptions: | $88.84 | | |
Improvement / Building
| Improvement #1: | MANUFACTURED HOME | State Code: | Y | 924.0 sqft | Value: | $12,718 |
| Bathrooms: | 0 | Bedrooms: | 0 | | Ceiling: | PLASTER PAINTED | Cooling: | EVAP NO DUCT | | Exterior Wall/Cover: | VINYL | Floor Covering: | CARPET 100% | | Floor Structure: | SLAB ON GRADE | Foundation: | SLAB | | Heating: | FHA ELECTRIC | Interior Finish: | PLASTER | | Plumbing Fixture Cnt: | 1 | Roof Slope: | FLAT | | Roof Structure/Cover: | CJ ALUMINIUM HEAVY |   |   |
|
Sketch
Property Image
Land
No land segments exist for this property.
Roll Value History
| 2026 | N/A | N/A | N/A | N/A | N/A |
| 2025 | $12,718 | $0 | $0 | $12,718 | $12,718 |
| 2024 | $13,539 | $0 | $0 | $13,539 | $13,539 |
| 2023 | $14,359 | $0 | $0 | $14,359 | $14,359 |
| 2022 | $10,748 | $0 | $0 | $10,748 | $10,748 |
| 2021 | $9,912 | $0 | $0 | $9,912 | $9,912 |
| 2020 | $10,449 | $0 | $0 | $10,449 | $10,449 |
| 2019 | $8,664 | $0 | $0 | $8,664 | $8,664 |
| 2018 | $9,097 | $0 | $0 | $9,097 | $9,097 |
| 2017 | $9,530 | $0 | $0 | $9,530 | $9,530 |
| 2016 | $4,056 | $0 | $0 | $4,056 | $4,056 |
| 2015 | $4,232 | $0 | $0 | $4,232 | $4,232 |
| 2014 | $4,497 | $0 | $0 | $4,497 | $4,497 |
| 2013 | $4,673 | $0 | $0 | $4,673 | $4,673 |
| 2012 | $4,849 | $0 | $0 | $4,849 | $4,849 |
| 2011 | $5,026 | $0 | $0 | $5,026 | $5,026 |
| 2010 | $6,433 | $0 | $0 | $6,433 | $6,433 |
| 2009 | $6,823 | $0 | $0 | $6,823 | $6,823 |
| 2008 | $7,081 | $0 | $0 | $7,081 | $7,081 |
| 2007 | $7,335 | $0 | $0 | $7,335 | $7,335 |
Deed and Sales History
| 1 | 05/09/2024 | MANHOME | Manufactured Home | KITCHELL, BAILLIE | KITCHELL, CRISSY DARNELL | | | $0.00 | 59886 | |
| 2 | 02/02/2021 | MANHOME | Manufactured Home | FLAT TOP LLC | KITCHELL, BAILLIE | | | $9,500.00 | 46804 | |
| 3 | 09/22/2016 | MANHOME | Manufactured Home | MARSHALL, KEITH | FLAT TOP LLC | | | $0.00 | 26209 | |
| 4 | 06/25/2004 | OTHER | Other - Misc. Documents | MORTON, TRACEY | MARSHALL, KEITH | | | $0.00 | 42729 | 0 |
| 5 | 04/29/2001 | OTHER | Other - Misc. Documents | Unknown | HENDRIX, JEREMY B | | | $10,000.00 | 11296 | 0 |
| 6 | 12/09/1999 | OTHER | Other - Misc. Documents | MYERS, VANCE E | MORTON, TRACEY | | | $11,898.00 | 65 | 0 |
| 7 | 06/01/1997 | OTHER | Other - Misc. Documents | FISHER, ROBERT M | MYERS, VANCE E | | | $12,500.00 | 71983 | 0 |
| 8 | 05/01/1996 | OTHER | Other - Misc. Documents | FISHER, ROBERT M | FISHER, ROBERT M | | | $12,500.00 | 61554 | 0 |
| 9 | 11/01/1995 | OTHER | Other - Misc. Documents | VANDERPOOL, PENNY | FISHER, ROBERT M | | | $12,500.00 | 54178 | 0 |
| 10 | 01/01/1900 | OTHER | Other - Misc. Documents | HENDRIX, JEREMY B | VANDERPOOL, PENNY | | | $0.00 | 0 | 0 |
Payout Agreement
| No payout information available.. |