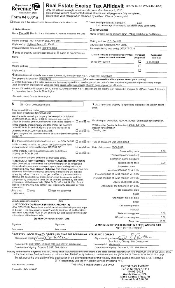
Property
Account |
| Property ID: | 696474 | Abbreviated Legal Description: | LOT 3 OH-SP 2-93.13202.228-2010, 226-2080 & 227-2110 V2 SP P466-7 AF#94016699 |
| Geographic ID: | R13202-227-2160 | Agent Code: | |
| Type: | Real | | |
| Tax Area: | 100 - APPRAISER-OH Schl Dist, in OH | Land Use Code | 91 |
| Open Space: | N | DFL | N |
| Historic Property: | N | Remodel Property: | N |
| Multi-Family Redevelopment: | N | | |
| Township: | 32 | Section: | 02 |
| Range: | R1 |
Location |
| Address: | 650 SE PIONEER WAY OAK HARBOR, WA 98277 | Mapsco: | |
| Neighborhood: | 12cOH-pioneer way | Map ID: | 86 |
| Neighborhood CD: | 12cOHpionr |
Owner |
| Name: | GRAHAM, DANIEL G | Owner ID: | 316186 |
| Mailing Address: | NICOLE R WHEAT 2120 NORCLIFFE WAY OAK HARBOR, WA 98277 | % Ownership: | 100.0000000000% |
| | | Exemptions: | |
Taxes and Assessment Details
Values
| (+) Improvement Homesite Value: | + | $0 | |
| (+) Improvement Non-Homesite Value: | + | $0 | |
| (+) Land Homesite Value: | + | $0 | |
| (+) Land Non-Homesite Value: | + | $80,000 | |
| (+) Curr Use (HS): | + | $0 | $0 |
| (+) Curr Use (NHS): | + | $0 | $0 |
| | | -------------------------- | |
| (=) Market Value: | = | $80,000 | |
| (–) Productivity Loss: | – | $0 | |
| | | -------------------------- | |
| (=) Subtotal: | = | $80,000 | |
| (+) Senior Appraised Value: | + | $0 | |
| (+) Non-Senior Appraised Value: | + | $80,000 | |
| | | -------------------------- | |
| (=) Total Appraised Value: | = | $80,000 | |
| (–) Senior Exemption Loss: | – | $0 | |
| (–) Exemption Loss: | – | $0 | |
| | | -------------------------- | |
| (=) Taxable Value: | = | $80,000 | |
Taxing Jurisdiction
| Owner: | GRAHAM, DANIEL G | | |
| % Ownership: | 100.0000000000% | | |
| Total Value: | $80,000 | | |
| Tax Area: | 100 - APPRAISER-OH Schl Dist, in OH |
| CF | Conservation Futures | 0.0316035091 | $80,000 | $80,000 | $2.53 | | |
| CEM1 | Cemetery #1 | 0.0040320932 | $80,000 | $80,000 | $0.32 | | |
| COH | City of Oak Harbor | 2.3001546061 | $80,000 | $80,000 | $184.01 | | |
| OAKBOND | City of Oak Harbor BOND | 0.1926904192 | $80,000 | $80,000 | $15.42 | | |
| HOBOND | Hospital BOND | 0.1910887512 | $80,000 | $80,000 | $15.29 | | |
| HOGEN | Hospital GEN | 0.3902502903 | $80,000 | $80,000 | $31.22 | | |
| CE | County Current Expense | 0.3708482477 | $80,000 | $80,000 | $29.67 | | |
| ISLANDEMS | Hospital GEN (EMS) | 0.5000000000 | $80,000 | $80,000 | $40.00 | | |
| LIB | Library Sno-Isle GEN | 0.3153421757 | $80,000 | $80,000 | $25.23 | | |
| NWHIDPRMT | P & R N Whidbey GEN | 0.2004466701 | $80,000 | $80,000 | $16.04 | | |
| SCH201MO | School 201 Enrichment | 1.8559231640 | $80,000 | $80,000 | $148.47 | | |
| ST | State School | 1.3035497053 | $80,000 | $80,000 | $104.28 | | |
| ST2 | State School Part 2 | 0.8169543533 | $80,000 | $80,000 | $65.36 | | |
| | Total Tax Rate: | 8.4728839852 | | | | | |
| | | | | Taxes w/Current Exemptions: | $677.84 | | |
| | | | | Taxes w/o Exemptions: | $677.84 | | |
Improvement / Building
Sketch
| No sketches available for this property. |
Property Image
Land
| 1 | 68 | COMMERCIAL RETAIL | 0.0400 | 1742.40 | 0.00 | 0.00 | 1.00 | $80,000 | $0 |
Roll Value History
| 2026 | N/A | N/A | N/A | N/A | N/A |
| 2025 | $0 | $80,000 | $0 | $80,000 | $80,000 |
| 2024 | $0 | $80,000 | $0 | $80,000 | $80,000 |
| 2023 | $0 | $80,000 | $0 | $80,000 | $80,000 |
| 2022 | $0 | $80,000 | $0 | $80,000 | $80,000 |
| 2021 | $84,101 | $27,878 | $0 | $111,979 | $111,979 |
| 2020 | $83,796 | $27,878 | $0 | $111,674 | $111,674 |
| 2019 | $83,669 | $20,909 | $0 | $104,578 | $104,578 |
| 2018 | $83,732 | $17,424 | $0 | $101,156 | $101,156 |
| 2017 | $49,647 | $34,848 | $0 | $84,495 | $84,495 |
| 2016 | $49,898 | $34,848 | $0 | $84,746 | $84,746 |
| 2015 | $50,149 | $34,848 | $0 | $84,997 | $84,997 |
| 2014 | $49,520 | $106,491 | $0 | $156,011 | $156,011 |
| 2013 | $48,071 | $106,491 | $0 | $154,562 | $154,562 |
| 2012 | $95,865 | $106,491 | $0 | $202,356 | $202,356 |
| 2011 | $95,865 | $106,491 | $0 | $202,356 | $202,356 |
| 2010 | $61,001 | $106,491 | $0 | $167,492 | $167,492 |
| 2009 | $61,001 | $115,764 | $0 | $176,765 | $176,765 |
| 2008 | $61,001 | $121,869 | $0 | $182,870 | $182,870 |
| 2007 | $61,001 | $81,246 | $0 | $142,247 | $142,247 |
Deed and Sales History
| 1 | 04/18/2025 | WD | Warranty Deed | MORGAN, DANIEL M | GRAHAM, DANIEL G | | | $90,000.00 | 63183 | 4584692 |
| 2 | 12/04/2020 | WD | Warranty Deed | GROSZEK, STANLEY / JOSEFA J | MORGAN, DANIEL M | | | $175,000.00 | 46177 | 4505638 |
| 3 | 08/01/1994 | WD | Warranty Deed | OAK, HARBOR E | GROSZEK, STANLEY/JOSEFA J | | | $80,000.00 | 43573 | 94018905 |
| 4 | 01/01/1900 | OTHER | Other - Misc. Documents | Unknown | OAK, HARBOR E | | | $0.00 | 41702 | 94010082 |
Payout Agreement
| No payout information available.. |