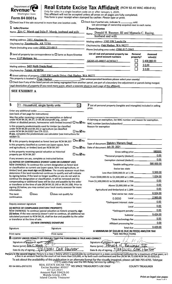
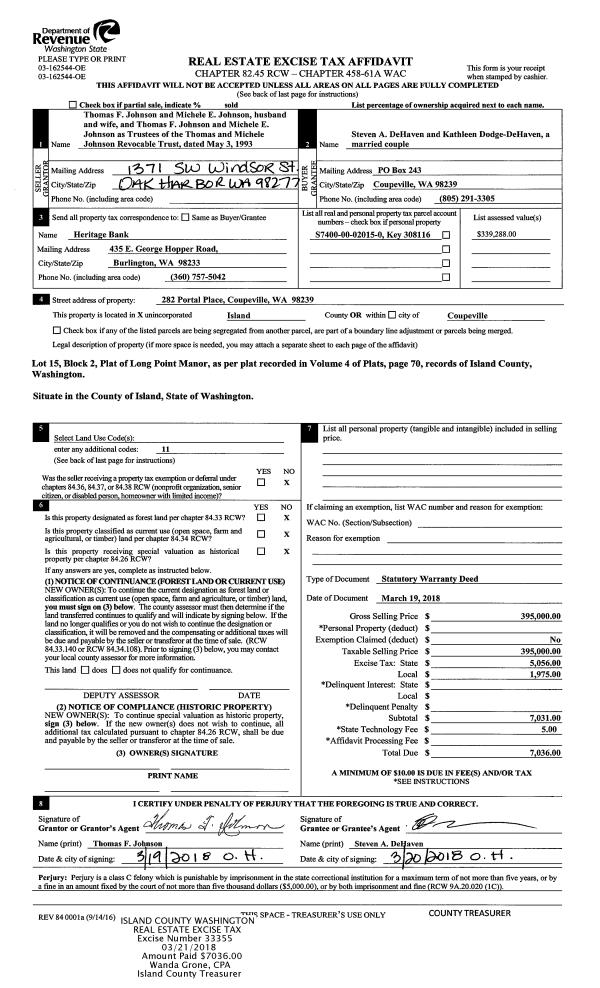
Property
Account |
| Property ID: | 696928 | Abbreviated Legal Description: | 5.3600 Acres ins Section 25s Township 29s Range R3s LOT C BLC AF#4429586 TL 53 - IN NW NE;s |
| Geographic ID: | R32925-465-3000 | Agent Code: | |
| Type: | Real | | |
| Tax Area: | 722 - APPRAISER-S Whid Schl Dist, Special District, improved, greater than 1 acre | Land Use Code | 11 |
| Open Space: | N | DFL | N |
| Historic Property: | N | Remodel Property: | N |
| Multi-Family Redevelopment: | N | | |
| Township: | 29 | Section: | 25 |
| Range: | R3 |
Location |
| Address: | 4635 DEER LAKE RD CLINTON, WA 98236 | Mapsco: | |
| Neighborhood: | Cycle 4 | Map ID: | 815 |
| Neighborhood CD: | 4 |
Owner |
| Name: | CARMICHAEL ET AL, ROSS | Owner ID: | 312284 |
| Mailing Address: | 4635 DEER LAKE RD CLINTON, WA 98236 | % Ownership: | 100.0000000000% |
| | | Exemptions: | |
Taxes and Assessment Details
Values
| (+) Improvement Homesite Value: | + | $0 | |
| (+) Improvement Non-Homesite Value: | + | $341,471 | |
| (+) Land Homesite Value: | + | $0 | |
| (+) Land Non-Homesite Value: | + | $350,000 | |
| (+) Curr Use (HS): | + | $0 | $0 |
| (+) Curr Use (NHS): | + | $0 | $0 |
| | | -------------------------- | |
| (=) Market Value: | = | $691,471 | |
| (–) Productivity Loss: | – | $0 | |
| | | -------------------------- | |
| (=) Subtotal: | = | $691,471 | |
| (+) Senior Appraised Value: | + | $0 | |
| (+) Non-Senior Appraised Value: | + | $691,471 | |
| | | -------------------------- | |
| (=) Total Appraised Value: | = | $691,471 | |
| (–) Senior Exemption Loss: | – | $0 | |
| (–) Exemption Loss: | – | $0 | |
| | | -------------------------- | |
| (=) Taxable Value: | = | $691,471 | |
Taxing Jurisdiction
| Owner: | CARMICHAEL ET AL, ROSS | | |
| % Ownership: | 100.0000000000% | | |
| Total Value: | $691,471 | | |
| Tax Area: | 722 - APPRAISER-S Whid Schl Dist, Special District, improved, greater than 1 acre |
| CF | Conservation Futures | 0.0316035091 | $691,471 | $691,471 | $21.85 | | |
| FIRE3 | Fire & Rescue Dist #3 S Whidbey GEN | 1.2004855531 | $691,471 | $691,471 | $830.10 | | |
| HOBOND | Hospital BOND | 0.1910887512 | $691,471 | $691,471 | $132.13 | | |
| HOGEN | Hospital GEN | 0.3902502903 | $691,471 | $691,471 | $269.85 | | |
| CE | County Current Expense | 0.3708482477 | $691,471 | $691,471 | $256.43 | | |
| CR | County Roads | 0.4584763726 | $691,471 | $691,471 | $317.02 | | |
| ISLANDEMS | Hospital GEN (EMS) | 0.5000000000 | $691,471 | $691,471 | $345.74 | | |
| LIB | Library Sno-Isle GEN | 0.3153421757 | $691,471 | $691,471 | $218.05 | | |
| PORTWHID | Port of S Whidbey GEN | 0.1094540357 | $691,471 | $691,471 | $75.68 | | |
| SCH206BOND | School 206 BOND | 0.3161759235 | $691,471 | $691,471 | $218.63 | | |
| SCH206MO | School 206 Enrichment | 0.4547169547 | $691,471 | $691,471 | $314.42 | | |
| ST | State School | 1.3035497053 | $691,471 | $691,471 | $901.37 | | |
| ST2 | State School Part 2 | 0.8169543533 | $691,471 | $691,471 | $564.90 | | |
| SWHIDPRBD | P & R S Whidbey BOND | 0.0152817568 | $691,471 | $691,471 | $10.57 | | |
| SWHIDPRBD2 | P & R S Whidbey BOND2 | 0.0138911264 | $691,471 | $691,471 | $9.61 | | |
| SWHIDPRMT | P & R S Whidbey GEN | 0.2053334452 | $691,471 | $691,471 | $141.98 | | |
| | Total Tax Rate: | 6.6934522006 | | | | | |
| | | | | Taxes w/Current Exemptions: | $4,628.33 | | |
| | | | | Taxes w/o Exemptions: | $4,628.33 | | |
Improvement / Building
| Improvement #1: | RESIDENTIAL | State Code: | Y | 2160.0 sqft | Value: | $341,471 |
| Bathrooms: | 2 | Bedrooms: | 5 | | Ceiling: | TONGUE & GROOVE | Cooling: | HEAT PUMP/CONV/V | | Exterior Wall/Cover: | WOOD SIDING | Floor Covering: | CERAMIC TILE/CPT 40-60 | | Floor Structure: | WOOD W/SUBFLOOR | Foundation: | CONCRETE | | Heating: | (NONE) | Interior Finish: | DRYWALL PAINT | | Plumbing Fixture Cnt: | 10 | Roof Slope: | 8" IN 12" | | Roof Structure/Cover: | BEAM ALUMINUM HEAVY |   |   |
|
| | Type | Description | Class CD | Sub Class CD | Year Built | Area |
| | BAS | BASE/MAIN FLOOR | 4 | 0 | 1976 | 1500.0 |
| | UPS | UPPER STORY | 4 | 0 | 1976 | 660.0 |
| | OWP | OPEN WOOD PORCH W/STEPS | 4 | 0 | 1976 | 36.0 |
| | OWP | OPEN WOOD PORCH W/STEPS | 4 | 0 | 1976 | 107.0 |
Sketch
Property Image
Land
| 1 | 32 | AC (03.01-09.99) | 5.0000 | 0.00 | 0.00 | 0.00 | 1.00 | $332,537 | $0 |
| 2 | 53 | CRITICAL AREAS | 0.3600 | 15681.60 | 0.00 | 0.00 | 1.00 | $17,463 | $0 |
Roll Value History
| 2026 | N/A | N/A | N/A | N/A | N/A |
| 2025 | $341,471 | $350,000 | $0 | $691,471 | $691,471 |
| 2024 | $346,332 | $350,000 | $0 | $696,332 | $696,332 |
| 2023 | $351,193 | $350,000 | $0 | $701,193 | $701,193 |
| 2022 | $322,405 | $350,000 | $0 | $672,405 | $672,405 |
| 2021 | $284,190 | $260,000 | $0 | $544,190 | $544,190 |
| 2020 | $277,836 | $260,000 | $0 | $537,836 | $537,836 |
| 2019 | $208,908 | $300,000 | $0 | $508,908 | $508,908 |
| 2018 | $209,592 | $240,560 | $0 | $450,152 | $176,154 |
| 2017 | $210,962 | $200,560 | $0 | $411,522 | $164,945 |
| 2016 | $213,702 | $165,560 | $0 | $379,262 | $152,041 |
| 2015 | $216,441 | $150,560 | $0 | $367,001 | $147,136 |
| 2014 | $188,442 | $170,560 | $0 | $359,002 | $143,937 |
| 2013 | $191,130 | $170,560 | $0 | $361,690 | $145,012 |
| 2012 | $193,817 | $170,560 | $0 | $364,377 | $146,087 |
| 2011 | $196,506 | $170,560 | $0 | $367,066 | $147,162 |
| 2010 | $209,958 | $170,000 | $0 | $379,958 | $151,983 |
| 2009 | $218,249 | $218,249 | $0 | $436,498 | $174,599 |
| 2008 | $162,425 | $276,561 | $0 | $438,986 | $175,594 |
| 2007 | $191,531 | $268,800 | $0 | $460,331 | $460,331 |
Deed and Sales History
| 1 | 05/07/2024 | PRD | Personal Representatives Deed | KUSCHNEREIT, HELEN A | CARMICHAEL ET AL, ROSS | | | $0.00 | 59896 | 4572110 |
| 2 | 09/12/2017 | QCD | Quit Claim Deed | FLOOD TRUSTEE, THOMAS P | KUSCHNEREIT, HELEN A | | | $0.00 | 31658 | 4432812 |
| 3 | 09/12/2017 | QCD | Quit Claim Deed | FLOOD TRUSTEE, THOMAS P | KUSCHNEREIT, HELEN A | | | $0.00 | 31656 | 4432810 |
| 4 | 08/25/2008 | OTHER | Other - Misc. Documents | CARMICHAEL, HELEN A | KUSCHNEREIT, HELEN A | | | $0.00 | 80889 | 0 |
| 5 | 01/01/1900 | OTHER | Other - Misc. Documents | Unknown | CARMICHAEL, HELEN A | | | $0.00 | 0 | 0 |
Payout Agreement
| No payout information available.. |