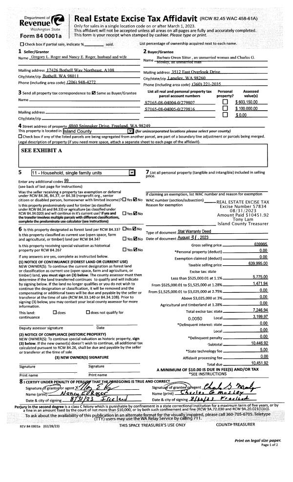
Property
Account |
| Property ID: | 697348 | Abbreviated Legal Description: | LOT 2 SP 57-93.23226.239-2070 V2 SP P473-4 AF#94018661 |
| Geographic ID: | R23226-223-1740 | Agent Code: | |
| Type: | Real | | |
| Tax Area: | 512 - APPRAISER-Stan/Cam Schl Dist, improved, greater than 1 acre | Land Use Code | 11 |
| Open Space: | N | DFL | N |
| Historic Property: | N | Remodel Property: | N |
| Multi-Family Redevelopment: | N | | |
| Township: | 32 | Section: | 26 |
| Range: | R2 |
Location |
| Address: | 683 TRILLIUM PLACE CAMANO ISLAND, WA 98282 | Mapsco: | |
| Neighborhood: | North Camano | Map ID: | 566 |
| Neighborhood CD: | 06-C |
Owner |
| Name: | WIGGINS TTEE, DONALD K | Owner ID: | 301417 |
| Mailing Address: | PAMELA B WIGGINS TTEE 683 TRILLIMA PL CAMANO ISLAND, WA 98282 | % Ownership: | 100.0000000000% |
| | | Exemptions: | |
Taxes and Assessment Details
Values
| (+) Improvement Homesite Value: | + | $0 | |
| (+) Improvement Non-Homesite Value: | + | $397,871 | |
| (+) Land Homesite Value: | + | $0 | |
| (+) Land Non-Homesite Value: | + | $360,000 | |
| (+) Curr Use (HS): | + | $0 | $0 |
| (+) Curr Use (NHS): | + | $0 | $0 |
| | | -------------------------- | |
| (=) Market Value: | = | $757,871 | |
| (–) Productivity Loss: | – | $0 | |
| | | -------------------------- | |
| (=) Subtotal: | = | $757,871 | |
| (+) Senior Appraised Value: | + | $0 | |
| (+) Non-Senior Appraised Value: | + | $757,871 | |
| | | -------------------------- | |
| (=) Total Appraised Value: | = | $757,871 | |
| (–) Senior Exemption Loss: | – | $0 | |
| (–) Exemption Loss: | – | $0 | |
| | | -------------------------- | |
| (=) Taxable Value: | = | $757,871 | |
Taxing Jurisdiction
| Owner: | WIGGINS TTEE, DONALD K | | |
| % Ownership: | 100.0000000000% | | |
| Total Value: | $757,871 | | |
| Tax Area: | 512 - APPRAISER-Stan/Cam Schl Dist, improved, greater than 1 acre |
| CF | Conservation Futures | 0.0316035091 | $757,871 | $757,871 | $23.95 | | |
| EMS1 | Fire & Rescue Dist #1 Camano GEN (EMS) | 0.3677864386 | $757,871 | $757,871 | $278.73 | | |
| FIRE1 | Fire & Rescue Dist #1 Camano GEN | 1.2502910536 | $757,871 | $757,871 | $947.56 | | |
| FIRE1BOND | Fire & Rescue Dist #1 Camano BOND | 0.1570001679 | $757,871 | $757,871 | $118.99 | | |
| CE | County Current Expense | 0.3708482477 | $757,871 | $757,871 | $281.06 | | |
| CR | County Roads | 0.4584763726 | $757,871 | $757,871 | $347.47 | | |
| LCIB | Library Sno-Isle BOND (Camano Island) | 0.0396325772 | $757,871 | $757,871 | $30.04 | | |
| LIB | Library Sno-Isle GEN | 0.3153421757 | $757,871 | $757,871 | $238.99 | | |
| SCH205_401 | School 205-401 Enrichment | 1.2698420524 | $757,871 | $757,871 | $962.38 | | |
| SCH205BOND | School 205-401 BOND | 0.9396497583 | $757,871 | $757,871 | $712.13 | | |
| ST | State School | 1.3035497053 | $757,871 | $757,871 | $987.92 | | |
| ST2 | State School Part 2 | 0.8169543533 | $757,871 | $757,871 | $619.15 | | |
| | Total Tax Rate: | 7.3209764117 | | | | | |
| | | | | Taxes w/Current Exemptions: | $5,548.37 | | |
| | | | | Taxes w/o Exemptions: | $5,548.37 | | |
Improvement / Building
| Improvement #1: | RESIDENTIAL | State Code: | Y | 2063.2 sqft | Value: | $397,871 |
| Bathrooms: | 2.5 | Bedrooms: | 3 | | Ceiling: | DRYWALL PAINTED | Exterior Wall/Cover: | CEMENT FIBER | | Floor Covering: | HARDWOOD/CARP 60-40 | Floor Structure: | WOOD W/SUBFLOOR | | Foundation: | CONCRETE | Heating: | FHA GAS | | Interior Finish: | DRYWALL PAINT | Plumbing Fixture Cnt: | 13 | | Roof Slope: | 12" IN 12" | Roof Structure/Cover: | CJ ASPHALT |
|
| | Type | Description | Class CD | Sub Class CD | Year Built | Area |
| | BAS | BASE/MAIN FLOOR | 3 | 0 | 1995 | 1571.2 |
| | BIG | BUILT IN GARAGE | 3 | 0 | 1995 | 679.2 |
| | ATU | ATTIC UNFINISHED | 3 | 0 | 1995 | 339.6 |
| | OWP | OPEN WOOD PORCH W/STEPS | 3 | 0 | 1995 | 24.0 |
| | OWC | OPEN WOOD PORCH W/STEPS/ROOF/C | 3 | 0 | 1995 | 510.2 |
| | UPH | HALF STORY | 3 | 0 | 1995 | 492.0 |
Sketch
Property Image
Land
| 1 | 32 | AC (03.01-09.99) | 4.7000 | 0.00 | 0.00 | 0.00 | 1.00 | $360,000 | $0 |
Roll Value History
| 2026 | N/A | N/A | N/A | N/A | N/A |
| 2025 | $397,871 | $360,000 | $0 | $757,871 | $757,871 |
| 2024 | $402,768 | $340,000 | $0 | $742,768 | $742,768 |
| 2023 | $407,664 | $320,000 | $0 | $727,664 | $727,664 |
| 2022 | $366,299 | $300,000 | $0 | $666,299 | $666,299 |
| 2021 | $322,434 | $230,000 | $0 | $552,434 | $552,434 |
| 2020 | $314,244 | $190,000 | $0 | $504,244 | $504,244 |
| 2019 | $238,930 | $220,000 | $0 | $458,930 | $458,930 |
| 2018 | $239,639 | $175,000 | $0 | $414,639 | $414,639 |
| 2017 | $241,058 | $150,000 | $0 | $391,058 | $391,058 |
| 2016 | $243,835 | $150,000 | $0 | $393,835 | $393,835 |
| 2015 | $229,941 | $105,280 | $0 | $335,221 | $335,221 |
| 2014 | $232,779 | $105,280 | $0 | $338,059 | $338,059 |
| 2013 | $235,617 | $105,280 | $0 | $340,897 | $340,897 |
| 2012 | $243,542 | $105,280 | $0 | $348,822 | $348,822 |
| 2011 | $246,442 | $131,600 | $0 | $378,042 | $378,042 |
| 2010 | $254,143 | $131,600 | $0 | $385,743 | $385,743 |
| 2009 | $265,033 | $157,450 | $0 | $422,483 | $422,483 |
| 2008 | $268,259 | $204,450 | $0 | $472,709 | $472,709 |
| 2007 | $271,563 | $204,450 | $0 | $476,013 | $476,013 |
Deed and Sales History
| 1 | 09/16/2021 | QCD | Quit Claim Deed | WIGGINS, DONALD | WIGGINS TTEE, DONALD K | | | $0.00 | 50282 | 4530447 |
| 2 | 09/05/2012 | WD | Warranty Deed | HOUGHTON, TERRY D | WIGGINS, DONALD | | | $295,000.00 | 8816 | 4322745 |
| 3 | 02/20/2007 | WD | Warranty Deed | COSTER, RONALD N | HOUGHTON, TERRY D | | | $530,000.00 | 70636 | 4195140 |
| 4 | 01/01/1900 | OTHER | Other - Misc. Documents | Unknown | COSTER, RONALD N | | | $0.00 | 34354 | 93022681 |
Payout Agreement
| No payout information available.. |