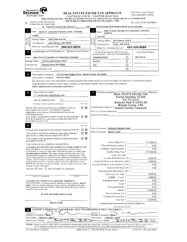
Property
Account |
| Property ID: | 698 | Abbreviated Legal Description: | 42 - N365' OF E485' OF NW SE EX E20' RD EX PT TO IS CO AF#4099388 |
| Geographic ID: | R03224-246-3710 | Agent Code: | |
| Type: | Real | | |
| Tax Area: | 332 - APPRAISER-Cpvl Schl Dist, Special Dist, improved, greater than 1 acre | Land Use Code | 11 |
| Open Space: | N | DFL | N |
| Historic Property: | N | Remodel Property: | N |
| Multi-Family Redevelopment: | N | | |
| Township: | 32 | Section: | 24 |
| Range: | R0 |
Location |
| Address: | 981 WEST BEACH RD COUPEVILLE, WA 98239 | Mapsco: | |
| Neighborhood: | Cycle 2 | Map ID: | 3 |
| Neighborhood CD: | 2 |
Owner |
| Name: | SUNDWALL, SHANNON RUDDEROW | Owner ID: | 296672 |
| Mailing Address: | DANIEL JEDIDIAH SUNDWALL 981 WES BEACH RD COUPEVILLE, WA 98239 | % Ownership: | 100.0000000000% |
| | | Exemptions: | |
Taxes and Assessment Details
Values
| (+) Improvement Homesite Value: | + | $0 | |
| (+) Improvement Non-Homesite Value: | + | $263,959 | |
| (+) Land Homesite Value: | + | $0 | |
| (+) Land Non-Homesite Value: | + | $326,121 | |
| (+) Curr Use (HS): | + | $0 | $0 |
| (+) Curr Use (NHS): | + | $0 | $0 |
| | | -------------------------- | |
| (=) Market Value: | = | $590,080 | |
| (–) Productivity Loss: | – | $0 | |
| | | -------------------------- | |
| (=) Subtotal: | = | $590,080 | |
| (+) Senior Appraised Value: | + | $0 | |
| (+) Non-Senior Appraised Value: | + | $590,080 | |
| | | -------------------------- | |
| (=) Total Appraised Value: | = | $590,080 | |
| (–) Senior Exemption Loss: | – | $0 | |
| (–) Exemption Loss: | – | $0 | |
| | | -------------------------- | |
| (=) Taxable Value: | = | $590,080 | |
Taxing Jurisdiction
| Owner: | SUNDWALL, SHANNON RUDDEROW | | |
| % Ownership: | 100.0000000000% | | |
| Total Value: | $590,080 | | |
| Tax Area: | 332 - APPRAISER-Cpvl Schl Dist, Special Dist, improved, greater than 1 acre |
| CF | Conservation Futures | 0.0316035091 | $590,080 | $590,080 | $18.65 | | |
| CEM2 | Cemetery #2 | 0.0095056933 | $590,080 | $590,080 | $5.61 | | |
| FIRE2 | Fire & Rescue Dist #2 N Whidbey GEN | 0.5475949600 | $590,080 | $590,080 | $323.12 | | |
| HOBOND | Hospital BOND | 0.1910887512 | $590,080 | $590,080 | $112.76 | | |
| HOGEN | Hospital GEN | 0.3902502903 | $590,080 | $590,080 | $230.28 | | |
| CE | County Current Expense | 0.3708482477 | $590,080 | $590,080 | $218.83 | | |
| CR | County Roads | 0.4584763726 | $590,080 | $590,080 | $270.54 | | |
| ISLANDEMS | Hospital GEN (EMS) | 0.5000000000 | $590,080 | $590,080 | $295.04 | | |
| LIB | Library Sno-Isle GEN | 0.3153421757 | $590,080 | $590,080 | $186.08 | | |
| LIBCAP | Library Sno-Isle BOND (Cap Fac Imp Area) | 0.0543427938 | $590,080 | $590,080 | $32.07 | | |
| POCOUP | Port of Coupeville GEN | 0.1093371703 | $590,080 | $590,080 | $64.52 | | |
| POCOUPIDD | Port of Coupeville IDD | 0.3409740022 | $590,080 | $590,080 | $201.20 | | |
| COUPSDTECH | School 204 CP (TECH) | 0.7545480007 | $590,080 | $590,080 | $445.24 | | |
| SCH204MO | School 204 Enrichment | 0.6716186034 | $590,080 | $590,080 | $396.31 | | |
| ST | State School | 1.3035497053 | $590,080 | $590,080 | $769.20 | | |
| ST2 | State School Part 2 | 0.8169543533 | $590,080 | $590,080 | $482.07 | | |
| | Total Tax Rate: | 6.8660346289 | | | | | |
| | | | | Taxes w/Current Exemptions: | $4,051.52 | | |
| | | | | Taxes w/o Exemptions: | $4,051.52 | | |
Improvement / Building
| Improvement #1: | RESIDENTIAL | State Code: | Y | 1464.0 sqft | Value: | $263,959 |
| Bathrooms: | 1.75 | Bedrooms: | 3 | | Ceiling: | DRYWALL PAINTED | Exterior Wall/Cover: | PLY/HARDBOARD T-111 | | Floor Covering: | HARDWOOD/CARP 20-80 | Floor Structure: | WOOD W/SUBFLOOR | | Foundation: | CONCRETE | Heating: | WALL HEAT ELECTRIC | | Interior Finish: | DRYWALL PAINT | Plumbing Fixture Cnt: | 9 | | Roof Slope: | 8" IN 12" | Roof Structure/Cover: | CJ ASPHALT |
|
| | Type | Description | Class CD | Sub Class CD | Year Built | Area |
| | BAS | BASE/MAIN FLOOR | 3 | 0 | 1989 | 1016.0 |
| | AGR | ATTACHED GARAGE | 3 | 0 | 1989 | 286.0 |
| | UTY | STORAGE/UTILITY | 3 | 0 | 1989 | 608.0 |
| | UPS | UPPER STORY | 3 | 0 | 1989 | 448.0 |
| | OWR | OPEN WOOD PORCH W/STEPS/ROOF | 3 | 0 | 1989 | 241.0 |
Sketch
Property Image
Land
| 1 | HS | HOMESITE | 1.0000 | 43560.00 | 0.00 | 0.00 | 1.00 | $220,000 | $0 |
| 2 | 91 | UNDEVELOPED LAND-METES AND BOUNDS | 2.6900 | 117176.40 | 0.00 | 0.00 | 1.00 | $106,121 | $0 |
Roll Value History
| 2026 | N/A | N/A | N/A | N/A | N/A |
| 2025 | $263,959 | $326,121 | $0 | $590,080 | $590,080 |
| 2024 | $253,965 | $300,000 | $0 | $553,965 | $553,965 |
| 2023 | $257,296 | $280,000 | $0 | $537,296 | $537,296 |
| 2022 | $235,996 | $260,000 | $0 | $495,996 | $495,996 |
| 2021 | $207,840 | $170,000 | $0 | $377,840 | $377,840 |
| 2020 | $202,554 | $160,000 | $0 | $362,554 | $362,554 |
| 2019 | $146,908 | $210,000 | $0 | $356,908 | $356,908 |
| 2018 | $126,866 | $180,000 | $0 | $306,866 | $306,866 |
| 2017 | $127,652 | $160,000 | $0 | $287,652 | $287,652 |
| 2016 | $129,354 | $160,000 | $0 | $289,354 | $289,354 |
| 2015 | $131,057 | $125,000 | $0 | $256,057 | $256,057 |
| 2014 | $132,759 | $94,770 | $0 | $227,529 | $227,529 |
| 2013 | $134,458 | $94,770 | $0 | $229,228 | $229,228 |
| 2012 | $130,594 | $94,770 | $0 | $225,364 | $225,364 |
| 2011 | $132,313 | $105,300 | $0 | $237,613 | $237,613 |
| 2010 | $138,908 | $100,000 | $0 | $238,908 | $238,908 |
| 2009 | $144,903 | $124,000 | $0 | $268,903 | $268,903 |
| 2008 | $146,649 | $129,200 | $0 | $275,849 | $275,849 |
| 2007 | $144,564 | $113,586 | $0 | $258,150 | $258,150 |
Deed and Sales History
| 1 | 11/09/2020 | WD | Warranty Deed | CLEMENTS, LINDSEY G | SUNDWALL, SHANNON RUDDEROW | | | $400,000.00 | 45636 | 4502083 |
| 2 | 09/18/2007 | QCD | Quit Claim Deed | CLEMENTS, LINDSEY G | CLEMENTS, LINDSEY G | | | $5,770.00 | 80357 | 4099388 |
| 3 | 12/01/1986 | WD | Warranty Deed | GAUDIN, FRANK | CLEMENTS, LINDSEY G | | | $17,000.00 | 63849 | 86016982 |
| 4 | 07/01/1978 | OTHER | Other - Misc. Documents | BA, | GAUDIN, FRANK | | | $14,400.00 | 83484 | 339173 |
| 5 | 01/01/1900 | OTHER | Other - Misc. Documents | Unknown | BA, | | | $0.00 | 834840 | 33917300 |
Payout Agreement
| No payout information available.. |