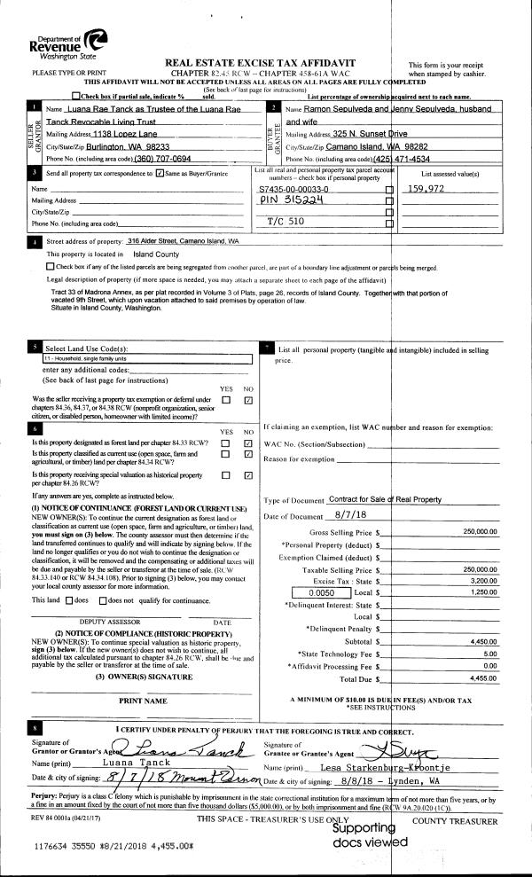
Property
Account |
| Property ID: | 698515 | Abbreviated Legal Description: | SUNNY VW FRM LOT 3 SP 6-93.8245.00-00011-1 & .00-00012-2 V2 SP P482 AF#94022228 |
| Geographic ID: | S8245-00-00011-3 | Agent Code: | |
| Type: | Real | | |
| Tax Area: | 719 - APPRAISER-S Whid Schl Dist, outside Langley, vacant & 50 acres or less | Land Use Code | 99 |
| Open Space: | N | DFL | N |
| Historic Property: | N | Remodel Property: | N |
| Multi-Family Redevelopment: | N | | |
| Township: | | Section: | |
| Range: | |
Location |
| Address: | | Mapsco: | |
| Neighborhood: | Cycle 3 | Map ID: | 328 |
| Neighborhood CD: | 3 |
Owner |
| Name: | DAENER TTEE, NEIL R | Owner ID: | 291319 |
| Mailing Address: | PAMELA H DAENER 5676 APPLE TREE LN FREELAND, WA 98249 | % Ownership: | 100.0000000000% |
| | | Exemptions: | |
Taxes and Assessment Details
Values
| (+) Improvement Homesite Value: | + | $0 | |
| (+) Improvement Non-Homesite Value: | + | $0 | |
| (+) Land Homesite Value: | + | $0 | |
| (+) Land Non-Homesite Value: | + | $200,000 | |
| (+) Curr Use (HS): | + | $0 | $0 |
| (+) Curr Use (NHS): | + | $0 | $0 |
| | | -------------------------- | |
| (=) Market Value: | = | $200,000 | |
| (–) Productivity Loss: | – | $0 | |
| | | -------------------------- | |
| (=) Subtotal: | = | $200,000 | |
| (+) Senior Appraised Value: | + | $0 | |
| (+) Non-Senior Appraised Value: | + | $200,000 | |
| | | -------------------------- | |
| (=) Total Appraised Value: | = | $200,000 | |
| (–) Senior Exemption Loss: | – | $0 | |
| (–) Exemption Loss: | – | $0 | |
| | | -------------------------- | |
| (=) Taxable Value: | = | $200,000 | |
Taxing Jurisdiction
| Owner: | DAENER TTEE, NEIL R | | |
| % Ownership: | 100.0000000000% | | |
| Total Value: | $200,000 | | |
| Tax Area: | 719 - APPRAISER-S Whid Schl Dist, outside Langley, vacant & 50 acres or less |
| CF | Conservation Futures | 0.0316035091 | $200,000 | $200,000 | $6.32 | | |
| HOBOND | Hospital BOND | 0.1910887512 | $200,000 | $200,000 | $38.22 | | |
| HOGEN | Hospital GEN | 0.3902502903 | $200,000 | $200,000 | $78.05 | | |
| CE | County Current Expense | 0.3708482477 | $200,000 | $200,000 | $74.17 | | |
| CR | County Roads | 0.4584763726 | $200,000 | $200,000 | $91.70 | | |
| ISLANDEMS | Hospital GEN (EMS) | 0.5000000000 | $200,000 | $200,000 | $100.00 | | |
| LIB | Library Sno-Isle GEN | 0.3153421757 | $200,000 | $200,000 | $63.07 | | |
| PORTWHID | Port of S Whidbey GEN | 0.1094540357 | $200,000 | $200,000 | $21.89 | | |
| SCH206BOND | School 206 BOND | 0.3161759235 | $200,000 | $200,000 | $63.24 | | |
| SCH206MO | School 206 Enrichment | 0.4547169547 | $200,000 | $200,000 | $90.94 | | |
| ST | State School | 1.3035497053 | $200,000 | $200,000 | $260.71 | | |
| ST2 | State School Part 2 | 0.8169543533 | $200,000 | $200,000 | $163.39 | | |
| SWHIDPRBD | P & R S Whidbey BOND | 0.0152817568 | $200,000 | $200,000 | $3.06 | | |
| SWHIDPRBD2 | P & R S Whidbey BOND2 | 0.0138911264 | $200,000 | $200,000 | $2.78 | | |
| SWHIDPRMT | P & R S Whidbey GEN | 0.2053334452 | $200,000 | $200,000 | $41.07 | | |
| | Total Tax Rate: | 5.4929666475 | | | | | |
| | | | | Taxes w/Current Exemptions: | $1,098.61 | | |
| | | | | Taxes w/o Exemptions: | $1,098.61 | | |
Improvement / Building
Sketch
| No sketches available for this property. |
Property Image
Land
| 1 | 18 | AC (02.01-03.00) | 2.0700 | 90169.20 | 0.00 | 0.00 | 1.00 | $200,000 | $0 |
Roll Value History
| 2026 | N/A | N/A | N/A | N/A | N/A |
| 2025 | $0 | $200,000 | $0 | $200,000 | $200,000 |
| 2024 | $0 | $180,000 | $0 | $180,000 | $180,000 |
| 2023 | $0 | $180,000 | $0 | $180,000 | $180,000 |
| 2022 | $0 | $160,000 | $0 | $160,000 | $160,000 |
| 2021 | $0 | $130,000 | $0 | $130,000 | $130,000 |
| 2020 | $0 | $130,000 | $0 | $130,000 | $130,000 |
| 2019 | $0 | $140,000 | $0 | $140,000 | $140,000 |
| 2018 | $0 | $130,000 | $0 | $130,000 | $130,000 |
| 2017 | $0 | $130,000 | $0 | $130,000 | $130,000 |
| 2016 | $0 | $130,000 | $0 | $130,000 | $130,000 |
| 2015 | $0 | $100,000 | $0 | $100,000 | $100,000 |
| 2014 | $0 | $100,000 | $0 | $100,000 | $100,000 |
| 2013 | $0 | $100,000 | $0 | $100,000 | $100,000 |
| 2012 | $0 | $100,000 | $0 | $100,000 | $100,000 |
| 2011 | $0 | $100,000 | $0 | $100,000 | $100,000 |
| 2010 | $0 | $100,000 | $0 | $100,000 | $100,000 |
| 2009 | $0 | $185,000 | $0 | $185,000 | $185,000 |
| 2008 | $0 | $196,020 | $0 | $196,020 | $196,020 |
| 2007 | $0 | $196,020 | $0 | $196,020 | $196,020 |
Deed and Sales History
| 1 | 03/21/2022 | WD | Warranty Deed | DAENER, NEIL | DAENER TTEE, NEIL R | | | $0.00 | 52426 | 4542110 |
| 2 | 06/14/2021 | WD | Warranty Deed | DAENER, LAURA | DAENER, NEIL | | | $0.00 | 52424 | 4542109 |
| 3 | 06/14/2021 | WD | Warranty Deed | DAENER, LAURA | DAENER TTEE, NEIL R | | | $0.00 | 48780 | 4522349 |
| 4 | 07/24/2018 | WD | Warranty Deed | HARRINGTON TRUSTEE, MARK A | DAENER, LAURA | | | $140,000.00 | 35230 | 4448988 |
| 5 | 04/25/2011 | WD | Warranty Deed | HARRINGTON, MARK | HARRINGTON TRUSTEE, MARK A | | | $0.00 | 4420 | 4295161 |
| 6 | 02/01/2006 | WD | Warranty Deed | PURCELL, JOE/MELANIE & | HARINGTON, MARK | | | $155,000.00 | 60637 | 4162359 |
| 7 | 11/01/1994 | WD | Warranty Deed | ARNOLD, STEVE O | PURCELL, JOE/MELANIE & | | | $78,000.00 | 44856 | 94024732 |
| 8 | 01/01/1900 | OTHER | Other - Misc. Documents | Unknown | ARNOLD, STEVE O | | | $0.00 | 22015 | 92009584 |
Payout Agreement
| No payout information available.. |