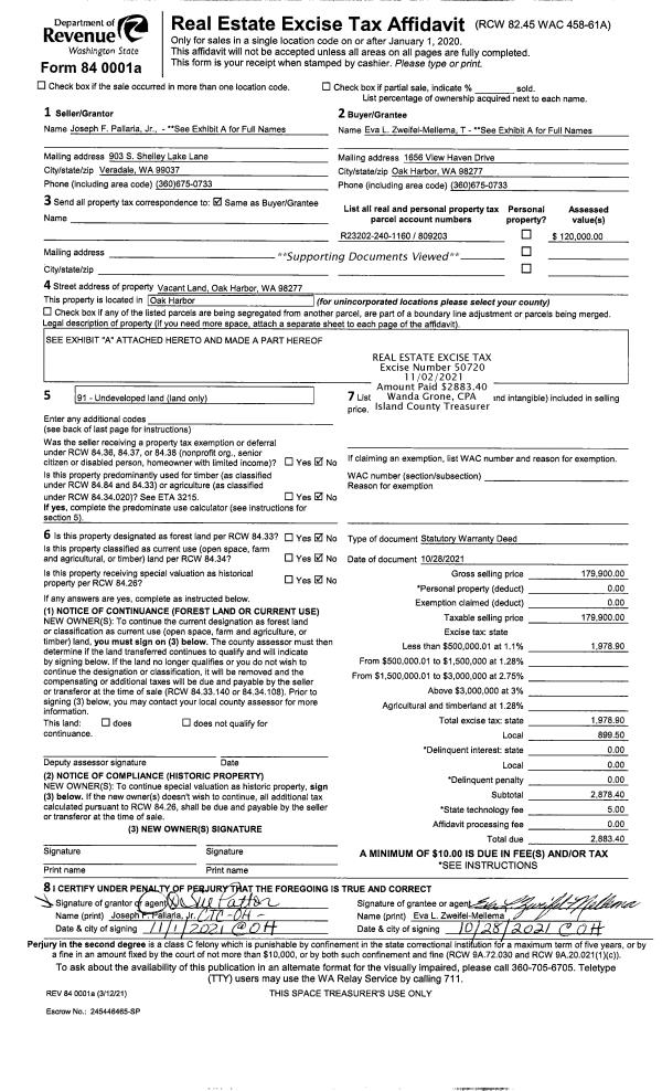
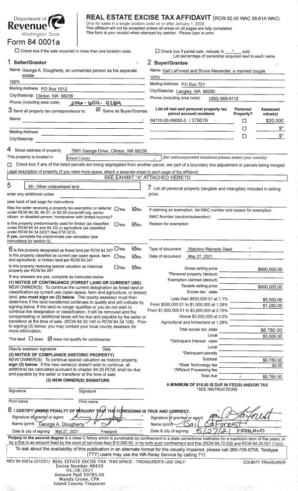
Property
Account |
| Property ID: | 699051 | Abbreviated Legal Description: | LOT 4 L-SP 93-3.32902.313-0220 V2 SP P489-90 AF#94023655 |
| Geographic ID: | R32902-330-0200 | Agent Code: | |
| Type: | Real | | |
| Tax Area: | 700 - APPRAISER-S Whid Schl Dist, in town of Langley | Land Use Code | 11 |
| Open Space: | N | DFL | N |
| Historic Property: | N | Remodel Property: | N |
| Multi-Family Redevelopment: | N | | |
| Township: | 29 | Section: | 02 |
| Range: | R3 |
Location |
| Address: | 871 CORK LN LANGLEY, WA 98260 | Mapsco: | |
| Neighborhood: | City of Langley | Map ID: | 721 |
| Neighborhood CD: | 04-L |
Owner |
| Name: | COVILL TTEE, LAURIE | Owner ID: | 307166 |
| Mailing Address: | PO BOX 1314 LANGLEY, WA 98260 | % Ownership: | 100.0000000000% |
| | | Exemptions: | |
Taxes and Assessment Details
Values
| (+) Improvement Homesite Value: | + | $0 | |
| (+) Improvement Non-Homesite Value: | + | $233,906 | |
| (+) Land Homesite Value: | + | $0 | |
| (+) Land Non-Homesite Value: | + | $270,000 | |
| (+) Curr Use (HS): | + | $0 | $0 |
| (+) Curr Use (NHS): | + | $0 | $0 |
| | | -------------------------- | |
| (=) Market Value: | = | $503,906 | |
| (–) Productivity Loss: | – | $0 | |
| | | -------------------------- | |
| (=) Subtotal: | = | $503,906 | |
| (+) Senior Appraised Value: | + | $0 | |
| (+) Non-Senior Appraised Value: | + | $503,906 | |
| | | -------------------------- | |
| (=) Total Appraised Value: | = | $503,906 | |
| (–) Senior Exemption Loss: | – | $0 | |
| (–) Exemption Loss: | – | $0 | |
| | | -------------------------- | |
| (=) Taxable Value: | = | $503,906 | |
Taxing Jurisdiction
| Owner: | COVILL TTEE, LAURIE | | |
| % Ownership: | 100.0000000000% | | |
| Total Value: | $503,906 | | |
| Tax Area: | 700 - APPRAISER-S Whid Schl Dist, in town of Langley |
| CF | Conservation Futures | 0.0316035091 | $503,906 | $503,906 | $15.93 | | |
| LANG | City of Langley | 1.0093520762 | $503,906 | $503,906 | $508.62 | | |
| LANGBOND | City of Langley BOND | 1.0326110892 | $503,906 | $503,906 | $520.34 | | |
| FIRE3 | Fire & Rescue Dist #3 S Whidbey GEN | 1.2004855531 | $503,906 | $503,906 | $604.93 | | |
| HOBOND | Hospital BOND | 0.1910887512 | $503,906 | $503,906 | $96.29 | | |
| HOGEN | Hospital GEN | 0.3902502903 | $503,906 | $503,906 | $196.65 | | |
| CE | County Current Expense | 0.3708482477 | $503,906 | $503,906 | $186.87 | | |
| ISLANDEMS | Hospital GEN (EMS) | 0.5000000000 | $503,906 | $503,906 | $251.95 | | |
| LIB | Library Sno-Isle GEN | 0.3153421757 | $503,906 | $503,906 | $158.90 | | |
| PORTWHID | Port of S Whidbey GEN | 0.1094540357 | $503,906 | $503,906 | $55.15 | | |
| SCH206BOND | School 206 BOND | 0.3161759235 | $503,906 | $503,906 | $159.32 | | |
| SCH206MO | School 206 Enrichment | 0.4547169547 | $503,906 | $503,906 | $229.13 | | |
| ST | State School | 1.3035497053 | $503,906 | $503,906 | $656.87 | | |
| ST2 | State School Part 2 | 0.8169543533 | $503,906 | $503,906 | $411.67 | | |
| SWHIDPRBD | P & R S Whidbey BOND | 0.0152817568 | $503,906 | $503,906 | $7.70 | | |
| SWHIDPRBD2 | P & R S Whidbey BOND2 | 0.0138911264 | $503,906 | $503,906 | $7.00 | | |
| SWHIDPRMT | P & R S Whidbey GEN | 0.2053334452 | $503,906 | $503,906 | $103.47 | | |
| | Total Tax Rate: | 8.2769389934 | | | | | |
| | | | | Taxes w/Current Exemptions: | $4,170.79 | | |
| | | | | Taxes w/o Exemptions: | $4,170.79 | | |
Improvement / Building
| Improvement #1: | RESIDENTIAL | State Code: | Y | 1288.0 sqft | Value: | $233,906 |
| Bathrooms: | 2 | Bedrooms: | 2 | | Ceiling: | DRYWALL PAINTED | Exterior Wall/Cover: | PLY/HARDBOARD T-111 | | Floor Covering: | CARPET/VINYL 80-20 | Floor Structure: | WOOD W/SUBFLOOR | | Foundation: | CONCRETE | Heating: | WALL HEAT ELECTRIC | | Interior Finish: | DRYWALL PAINT | Plumbing Fixture Cnt: | 10 | | Roof Slope: | 4" IN 12" | Roof Structure/Cover: | CJ ASPHALT |
|
| | Type | Description | Class CD | Sub Class CD | Year Built | Area |
| | BAS | BASE/MAIN FLOOR | 3 | 0 | 1995 | 1288.0 |
| | OWP | OPEN WOOD PORCH W/STEPS | 3 | 0 | 1995 | 80.0 |
| | OWP | OPEN WOOD PORCH W/STEPS | 3 | 0 | 1995 | 394.0 |
| | OWC | OPEN WOOD PORCH W/STEPS/ROOF/C | 3 | 0 | 1995 | 32.0 |
| | CPD | OPEN CARPORT DIRT FLOOR | 3 | 0 | 1995 | 240.0 |
| | UTY | STORAGE/UTILITY | 3 | 0 | 1995 | 48.0 |
Sketch
Property Image
Land
| 1 | 15 | SQ (12001-21780) | 0.4600 | 20037.60 | 0.00 | 0.00 | 1.00 | $270,000 | $0 |
Roll Value History
| 2026 | N/A | N/A | N/A | N/A | N/A |
| 2025 | $233,906 | $270,000 | $0 | $503,906 | $503,906 |
| 2024 | $236,784 | $270,000 | $0 | $506,784 | $506,784 |
| 2023 | $239,663 | $270,000 | $0 | $509,663 | $509,663 |
| 2022 | $211,321 | $210,000 | $0 | $421,321 | $421,321 |
| 2021 | $185,938 | $200,000 | $0 | $385,938 | $385,938 |
| 2020 | $168,247 | $180,000 | $0 | $348,247 | $348,247 |
| 2019 | $120,061 | $200,000 | $0 | $320,061 | $320,061 |
| 2018 | $120,431 | $160,000 | $0 | $280,431 | $280,431 |
| 2017 | $121,169 | $160,000 | $0 | $281,169 | $281,169 |
| 2016 | $122,646 | $130,000 | $0 | $252,646 | $252,646 |
| 2015 | $124,125 | $130,000 | $0 | $254,125 | $254,125 |
| 2014 | $129,232 | $139,500 | $0 | $268,732 | $268,732 |
| 2013 | $130,735 | $139,500 | $0 | $270,235 | $270,235 |
| 2012 | $132,238 | $139,500 | $0 | $271,738 | $271,738 |
| 2011 | $133,740 | $155,000 | $0 | $288,740 | $288,740 |
| 2010 | $140,147 | $155,000 | $0 | $295,147 | $295,147 |
| 2009 | $146,108 | $100,000 | $0 | $246,108 | $246,108 |
| 2008 | $135,933 | $145,000 | $0 | $280,933 | $280,933 |
| 2007 | $137,641 | $145,000 | $0 | $282,641 | $282,641 |
Deed and Sales History
| 1 | 01/03/2023 | WD | Warranty Deed | 871 LLC | COVILL TTEE, LAURIE | | | $489,000.00 | 55534 | 4555365 |
| 2 | 05/24/2021 | WD | Warranty Deed | SAVIDGE, SARAH E | 871 LLC | | | $0.00 | 48446 | 4520477 |
| 3 | 11/16/2020 | WD | Warranty Deed | GEISLER III, FRED H | SAVIDGE, SARAH E | | | $615,000.00 | 45905 | 4503526 |
| 4 | 10/02/2020 | QCD | Quit Claim Deed | GEISLER III, FRED H | GEISLER III, FRED H | | | $0.00 | 45904 | 4503532 |
| 5 | 08/30/1999 | ESTSEPPROP | Establish Separate Property | GEISLER III, FRED H | GEISLER III, FRED H | | | $0.00 | 94270 | 99023383 |
| 6 | 04/21/1998 | WD | Warranty Deed | GEISLER, FRED H | GEISLER III, FRED H | | | $155,000.00 | 81509 | 98008190 |
| 7 | 05/01/1995 | WD | Warranty Deed | MOODY, MARK | GALLAGHER, DAVID R | | | $43,000.00 | 51551 | 95007314 |
| 8 | 11/01/1994 | QCD | Quit Claim Deed | MOODY, MARK & | MOODY, MARK | | | $0.00 | 44901 | 94024992 |
| 9 | 01/01/1900 | OTHER | Other - Misc. Documents | Unknown | MOODY, MARK & | | | $0.00 | 33600 | 93018755 |
| 10 | 01/01/1900 | OTHER | Other - Misc. Documents | GALLAGHER, DAVID R | GEISLER, FRED H | | | $0.00 | 81509 | 98008190 |
Payout Agreement
| No payout information available.. |