Property
Account |
| Property ID: | 699122 | Abbreviated Legal Description: | W/2 E/2 E/2 NE SW FR 251-2510 & 170-2520 TGW & SUB EZ AF#96012561 |
| Geographic ID: | R32804-201-2400 | Agent Code: | |
| Type: | Real | | |
| Tax Area: | 712 - APPRAISER-S Whid Schl Dist, outside Langley, improved, greater than 1 acre | Land Use Code | 11 |
| Open Space: | N | DFL | N |
| Historic Property: | N | Remodel Property: | N |
| Multi-Family Redevelopment: | N | | |
| Township: | 28 | Section: | 04 |
| Range: | R3 |
Location |
| Address: | 3378 BURLEY RD CLINTON, WA 98236 | Mapsco: | |
| Neighborhood: | Cycle 4 | Map ID: | 687 |
| Neighborhood CD: | 4 |
Owner |
| Name: | DONHAM, EDITH ALLISON | Owner ID: | 290952 |
| Mailing Address: | SCOTT JAY DOHHAM 3378 BURLEY RD CLINTON, WA 98236 | % Ownership: | 100.0000000000% |
| | | Exemptions: | |
Taxes and Assessment Details
Values
| (+) Improvement Homesite Value: | + | $0 | |
| (+) Improvement Non-Homesite Value: | + | $480,637 | |
| (+) Land Homesite Value: | + | $0 | |
| (+) Land Non-Homesite Value: | + | $360,000 | |
| (+) Curr Use (HS): | + | $0 | $0 |
| (+) Curr Use (NHS): | + | $0 | $0 |
| | | -------------------------- | |
| (=) Market Value: | = | $840,637 | |
| (–) Productivity Loss: | – | $0 | |
| | | -------------------------- | |
| (=) Subtotal: | = | $840,637 | |
| (+) Senior Appraised Value: | + | $0 | |
| (+) Non-Senior Appraised Value: | + | $840,637 | |
| | | -------------------------- | |
| (=) Total Appraised Value: | = | $840,637 | |
| (–) Senior Exemption Loss: | – | $0 | |
| (–) Exemption Loss: | – | $0 | |
| | | -------------------------- | |
| (=) Taxable Value: | = | $840,637 | |
Taxing Jurisdiction
| Owner: | DONHAM, EDITH ALLISON | | |
| % Ownership: | 100.0000000000% | | |
| Total Value: | $840,637 | | |
| Tax Area: | 712 - APPRAISER-S Whid Schl Dist, outside Langley, improved, greater than 1 acre |
| CF | Conservation Futures | 0.0316035091 | $840,637 | $840,637 | $26.57 | | |
| FIRE3 | Fire & Rescue Dist #3 S Whidbey GEN | 1.2004855531 | $840,637 | $840,637 | $1,009.17 | | |
| HOBOND | Hospital BOND | 0.1910887512 | $840,637 | $840,637 | $160.64 | | |
| HOGEN | Hospital GEN | 0.3902502903 | $840,637 | $840,637 | $328.06 | | |
| CE | County Current Expense | 0.3708482477 | $840,637 | $840,637 | $311.75 | | |
| CR | County Roads | 0.4584763726 | $840,637 | $840,637 | $385.41 | | |
| ISLANDEMS | Hospital GEN (EMS) | 0.5000000000 | $840,637 | $840,637 | $420.32 | | |
| LIB | Library Sno-Isle GEN | 0.3153421757 | $840,637 | $840,637 | $265.09 | | |
| PORTWHID | Port of S Whidbey GEN | 0.1094540357 | $840,637 | $840,637 | $92.01 | | |
| SCH206BOND | School 206 BOND | 0.3161759235 | $840,637 | $840,637 | $265.79 | | |
| SCH206MO | School 206 Enrichment | 0.4547169547 | $840,637 | $840,637 | $382.25 | | |
| ST | State School | 1.3035497053 | $840,637 | $840,637 | $1,095.81 | | |
| ST2 | State School Part 2 | 0.8169543533 | $840,637 | $840,637 | $686.76 | | |
| SWHIDPRBD | P & R S Whidbey BOND | 0.0152817568 | $840,637 | $840,637 | $12.85 | | |
| SWHIDPRBD2 | P & R S Whidbey BOND2 | 0.0138911264 | $840,637 | $840,637 | $11.68 | | |
| SWHIDPRMT | P & R S Whidbey GEN | 0.2053334452 | $840,637 | $840,637 | $172.61 | | |
| | Total Tax Rate: | 6.6934522006 | | | | | |
| | | | | Taxes w/Current Exemptions: | $5,626.77 | | |
| | | | | Taxes w/o Exemptions: | $5,626.77 | | |
Improvement / Building
| Improvement #1: | RESIDENTIAL | State Code: | Y | 1894.0 sqft | Value: | $480,637 |
| Bathrooms: | 2 | Bedrooms: | 3 | | Ceiling: | DRYWALL PAINTED | Cooling: | HEAT PUMP/CONV/V | | Exterior Wall/Cover: | WOOD SIDING | Floor Covering: | CARPET/VINYL 20-80 | | Floor Structure: | WOOD W/SUBFLOOR | Foundation: | CONCRETE | | Interior Finish: | DRYWALL PAINT | Plumbing Fixture Cnt: | 9 | | Roof Slope: | 8" IN 12" | Roof Structure/Cover: | CJ ASPHALT |
|
| | Type | Description | Class CD | Sub Class CD | Year Built | Area |
| | BAS | BASE/MAIN FLOOR | 4 | 0 | 1999 | 1894.0 |
| | UB8 | BASEMENT UNFINISHED 8" | 4 | 0 | 1999 | 1748.0 |
| | OP3 | OPEN PORCH W/ROOF | 4 | 0 | 1999 | 86.2 |
| | AGR | ATTACHED GARAGE | 4 | 0 | 1999 | 573.7 |
| | OWP | OPEN WOOD PORCH W/STEPS | 4 | 0 | 1999 | 432.0 |
| | OWP | OPEN WOOD PORCH W/STEPS | 4 | 0 | 1999 | 86.2 |
| | OWP | OPEN WOOD PORCH W/STEPS | 4 | 0 | 1999 | 38.0 |
| | CPD | OPEN CARPORT DIRT FLOOR | 4 | 0 | 1999 | 1728.0 |
Sketch
| No sketches available for this property. |
Property Image
Land
| 1 | 32 | AC (03.01-09.99) | 5.0000 | 0.00 | 0.00 | 0.00 | 1.00 | $360,000 | $0 |
Roll Value History
| 2026 | N/A | N/A | N/A | N/A | N/A |
| 2025 | $480,637 | $360,000 | $0 | $840,637 | $840,637 |
| 2024 | $486,701 | $340,000 | $0 | $826,701 | $826,701 |
| 2023 | $492,765 | $330,000 | $0 | $822,765 | $822,765 |
| 2022 | $451,708 | $280,000 | $0 | $731,708 | $731,708 |
| 2021 | $397,560 | $230,000 | $0 | $627,560 | $627,560 |
| 2020 | $387,865 | $190,000 | $0 | $577,865 | $577,865 |
| 2019 | $256,266 | $250,000 | $0 | $506,266 | $506,266 |
| 2018 | $257,029 | $210,000 | $0 | $467,029 | $467,029 |
| 2017 | $248,903 | $190,000 | $0 | $438,903 | $438,903 |
| 2016 | $251,842 | $135,000 | $0 | $386,842 | $386,842 |
| 2015 | $254,780 | $135,000 | $0 | $389,780 | $389,780 |
| 2014 | $253,717 | $125,000 | $0 | $378,717 | $378,717 |
| 2013 | $256,619 | $135,000 | $0 | $391,619 | $391,619 |
| 2012 | $259,520 | $170,000 | $0 | $429,520 | $429,520 |
| 2011 | $262,421 | $170,000 | $0 | $432,421 | $432,421 |
| 2010 | $271,917 | $170,000 | $0 | $441,917 | $441,917 |
| 2009 | $283,147 | $220,000 | $0 | $503,147 | $503,147 |
| 2008 | $279,059 | $250,000 | $0 | $529,059 | $529,059 |
| 2007 | $282,393 | $157,000 | $0 | $439,393 | $439,393 |
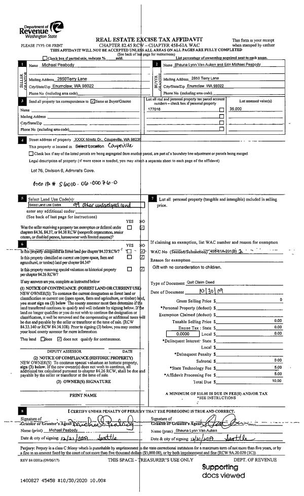
Deed and Sales History
| 1 | 07/10/2019 | WD | Warranty Deed | BLASKO, JOAN M | DONHAM, EDITH ALLISON | | | $685,000.00 | 39453 | 4467451 |
| 2 | 09/28/2017 | CCOMPROP | Create Community Property | BLASKO, ROBERT A | BLASKO, JOAN M | | | | 87661 | |
| 3 | 02/21/2008 | QCD | Quit Claim Deed | BLASKO, JOAN | BLASKO, ROBERT A | | | $0.00 | 80512 | 4223134 |
| 4 | 09/01/1996 | QCD | Quit Claim Deed | BURLEY, MARLEYS | BLASKO, JOAN | | | $0.00 | 63592 | 96017553 |
| 5 | 11/01/1994 | OTHER | Other - Misc. Documents | BURLEY, MARLEYS | BURLEY, MARLEYS | | | $0.00 | 66118 | 94023537 |
| 6 | 01/01/1900 | OTHER | Other - Misc. Documents | Unknown | BURLEY, MARLEYS | | | $0.00 | 3646 | 90011812 |
Payout Agreement
| No payout information available.. |