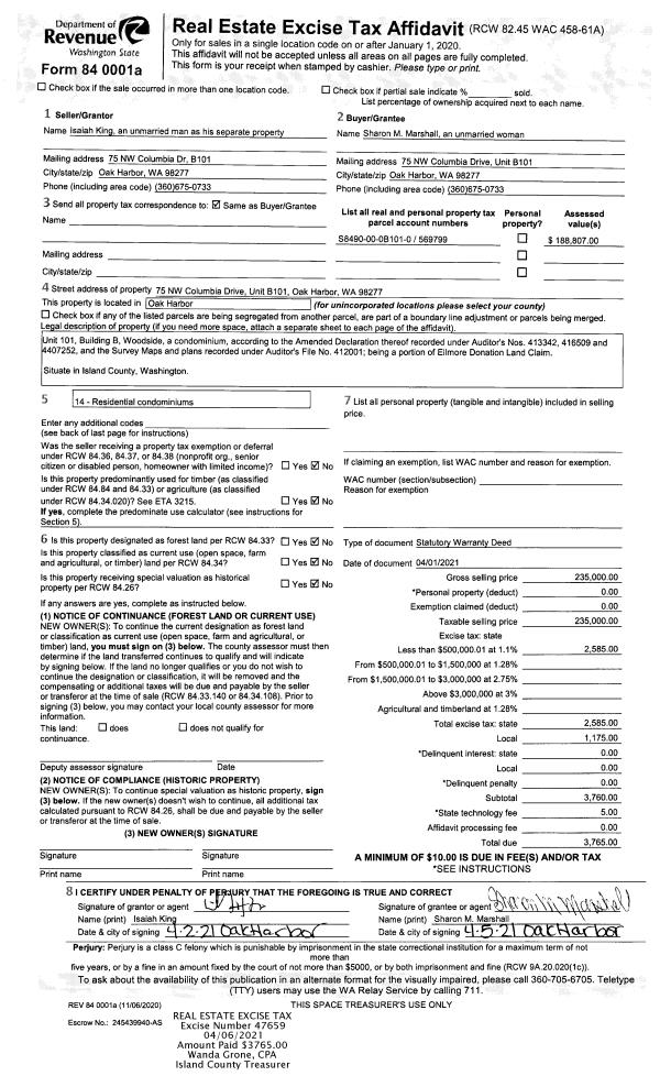
Property
Account |
| Property ID: | 699159 | Abbreviated Legal Description: | E/2 E/2 E/2 NE SW FR 251-2510 & 170-2520 TGW & SUB EZ AF#96012561 |
| Geographic ID: | R32804-201-2560 | Agent Code: | |
| Type: | Real | | |
| Tax Area: | 712 - APPRAISER-S Whid Schl Dist, outside Langley, improved, greater than 1 acre | Land Use Code | 11 |
| Open Space: | N | DFL | N |
| Historic Property: | N | Remodel Property: | N |
| Multi-Family Redevelopment: | N | | |
| Township: | 28 | Section: | 04 |
| Range: | R3 |
Location |
| Address: | 3394 BURLEY RD CLINTON, WA 98236 | Mapsco: | |
| Neighborhood: | Cycle 4 | Map ID: | 687 |
| Neighborhood CD: | 4 |
Owner |
| Name: | SMITH, CHAD E | Owner ID: | 270990 |
| Mailing Address: | KIMBERLY SMITH 3394 BURLEY RD CLINTON, WA 98236 | % Ownership: | 100.0000000000% |
| | | Exemptions: | |
Taxes and Assessment Details
Values
| (+) Improvement Homesite Value: | + | $0 | |
| (+) Improvement Non-Homesite Value: | + | $422,871 | |
| (+) Land Homesite Value: | + | $0 | |
| (+) Land Non-Homesite Value: | + | $360,000 | |
| (+) Curr Use (HS): | + | $0 | $0 |
| (+) Curr Use (NHS): | + | $0 | $0 |
| | | -------------------------- | |
| (=) Market Value: | = | $782,871 | |
| (–) Productivity Loss: | – | $0 | |
| | | -------------------------- | |
| (=) Subtotal: | = | $782,871 | |
| (+) Senior Appraised Value: | + | $0 | |
| (+) Non-Senior Appraised Value: | + | $782,871 | |
| | | -------------------------- | |
| (=) Total Appraised Value: | = | $782,871 | |
| (–) Senior Exemption Loss: | – | $0 | |
| (–) Exemption Loss: | – | $0 | |
| | | -------------------------- | |
| (=) Taxable Value: | = | $782,871 | |
Taxing Jurisdiction
| Owner: | SMITH, CHAD E | | |
| % Ownership: | 100.0000000000% | | |
| Total Value: | $782,871 | | |
| Tax Area: | 712 - APPRAISER-S Whid Schl Dist, outside Langley, improved, greater than 1 acre |
| CF | Conservation Futures | 0.0316035091 | $782,871 | $782,871 | $24.74 | | |
| FIRE3 | Fire & Rescue Dist #3 S Whidbey GEN | 1.2004855531 | $782,871 | $782,871 | $939.83 | | |
| HOBOND | Hospital BOND | 0.1910887512 | $782,871 | $782,871 | $149.60 | | |
| HOGEN | Hospital GEN | 0.3902502903 | $782,871 | $782,871 | $305.52 | | |
| CE | County Current Expense | 0.3708482477 | $782,871 | $782,871 | $290.33 | | |
| CR | County Roads | 0.4584763726 | $782,871 | $782,871 | $358.93 | | |
| ISLANDEMS | Hospital GEN (EMS) | 0.5000000000 | $782,871 | $782,871 | $391.44 | | |
| LIB | Library Sno-Isle GEN | 0.3153421757 | $782,871 | $782,871 | $246.87 | | |
| PORTWHID | Port of S Whidbey GEN | 0.1094540357 | $782,871 | $782,871 | $85.69 | | |
| SCH206BOND | School 206 BOND | 0.3161759235 | $782,871 | $782,871 | $247.52 | | |
| SCH206MO | School 206 Enrichment | 0.4547169547 | $782,871 | $782,871 | $355.98 | | |
| ST | State School | 1.3035497053 | $782,871 | $782,871 | $1,020.51 | | |
| ST2 | State School Part 2 | 0.8169543533 | $782,871 | $782,871 | $639.57 | | |
| SWHIDPRBD | P & R S Whidbey BOND | 0.0152817568 | $782,871 | $782,871 | $11.96 | | |
| SWHIDPRBD2 | P & R S Whidbey BOND2 | 0.0138911264 | $782,871 | $782,871 | $10.87 | | |
| SWHIDPRMT | P & R S Whidbey GEN | 0.2053334452 | $782,871 | $782,871 | $160.75 | | |
| | Total Tax Rate: | 6.6934522006 | | | | | |
| | | | | Taxes w/Current Exemptions: | $5,240.11 | | |
| | | | | Taxes w/o Exemptions: | $5,240.11 | | |
Improvement / Building
| Improvement #1: | RESIDENTIAL | State Code: | Y | 1932.5 sqft | Value: | $422,871 |
| Bathrooms: | 2 | Bedrooms: | 3 | | Ceiling: | DRYWALL PAINTED | Cooling: | HEAT PUMP/CONV/V | | Exterior Wall/Cover: | CEMENT FIBER | Floor Covering: | HARDWOOD/CARP 60-40 | | Floor Structure: | WOOD W/SUBFLOOR | Foundation: | CONCRETE | | Interior Finish: | DRYWALL PAINT | Plumbing Fixture Cnt: | 11 | | Roof Slope: | 12" IN 12" | Roof Structure/Cover: | CJ ASPHALT |
|
| | Type | Description | Class CD | Sub Class CD | Year Built | Area |
| | BAS | BASE/MAIN FLOOR | 3 | 0 | 2017 | 1932.5 |
| | AGR | ATTACHED GARAGE | 3 | 0 | 2017 | 462.0 |
| | OWC | OPEN WOOD PORCH W/STEPS/ROOF/C | 3 | 0 | 2017 | 471.3 |
| | OP4 | OPEN PORCH W/CEILING-ROOF | 3 | 0 | 2017 | 117.5 |
Sketch
| No sketches available for this property. |
Property Image
Land
| 1 | 32 | AC (03.01-09.99) | 5.0000 | 0.00 | 0.00 | 0.00 | 1.00 | $360,000 | $0 |
Roll Value History
| 2026 | N/A | N/A | N/A | N/A | N/A |
| 2025 | $422,871 | $360,000 | $0 | $782,871 | $782,871 |
| 2024 | $428,353 | $340,000 | $0 | $768,353 | $768,353 |
| 2023 | $431,808 | $330,000 | $0 | $761,808 | $761,808 |
| 2022 | $394,125 | $280,000 | $0 | $674,125 | $674,125 |
| 2021 | $345,450 | $230,000 | $0 | $575,450 | $575,450 |
| 2020 | $342,818 | $190,000 | $0 | $532,818 | $532,818 |
| 2019 | $264,403 | $250,000 | $0 | $514,403 | $514,403 |
| 2018 | $266,400 | $210,000 | $0 | $476,400 | $476,400 |
| 2017 | $205,648 | $130,000 | $0 | $335,648 | $335,648 |
| 2016 | $0 | $120,000 | $0 | $120,000 | $120,000 |
| 2015 | $0 | $100,000 | $0 | $100,000 | $100,000 |
| 2014 | $0 | $100,000 | $0 | $100,000 | $100,000 |
| 2013 | $0 | $100,000 | $0 | $100,000 | $100,000 |
| 2012 | $0 | $129,880 | $0 | $129,880 | $129,880 |
| 2011 | $0 | $129,880 | $0 | $129,880 | $129,880 |
| 2010 | $0 | $129,880 | $0 | $129,880 | $129,880 |
| 2009 | $0 | $168,080 | $0 | $168,080 | $168,080 |
Deed and Sales History
| 1 | 05/30/2015 | WD | Warranty Deed | SCRIVEN TRUSTEE, R LYNN | SMITH, CHAD E | | | $125,000.00 | 19892 | 4379684 |
| 2 | 07/28/2009 | QCD | Quit Claim Deed | SCRIVEN, RUTH LYNN | SCRIVEN TRUSTEE, R LYNN | | | $0.00 | 92164 | 4260105 |
| 3 | 08/31/2006 | QCD | Quit Claim Deed | BURLEY, MARLEYS & | SCRIVEN, RUTH LYNN | | | $0.00 | 63888 | 4181214 |
| 4 | 01/01/1997 | QCD | Quit Claim Deed | BURLEY, MARLEYS | BURLEY, MARLEYS & | | | $0.00 | 70303 | 97001365 |
| 5 | 11/01/1994 | OTHER | Other - Misc. Documents | BURLEY, MARLEYS | BURLEY, MARLEYS | | | $0.00 | 66118 | 94023537 |
| 6 | 01/01/1900 | OTHER | Other - Misc. Documents | Unknown | BURLEY, MARLEYS | | | $0.00 | 3646 | 90011812 |
Payout Agreement
| No payout information available.. |