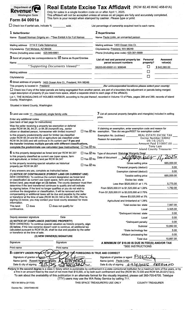
Property
Account |
| Property ID: | 699444 | Abbreviated Legal Description: | IN COUPE DC: W112'OF PT COUPE DC DESC: BG PT 181.8' S OF SWCR BLK 40 PLAT OF COUPEVILLE E326' S173.5' W326' N173.5'TPB FR 169-4240 |
| Geographic ID: | R13233-169-4150 | Agent Code: | |
| Type: | Real | | |
| Tax Area: | 300 - APPRAISER-Cpvl Schl Dist, in Cpvl | Land Use Code | 67 |
| Open Space: | N | DFL | N |
| Historic Property: | N | Remodel Property: | N |
| Multi-Family Redevelopment: | N | | |
| Township: | 32 | Section: | 33 |
| Range: | R1 |
Location |
| Address: | 203 N MAIN ST COUPEVILLE, WA 98239 | Mapsco: | |
| Neighborhood: | Area 2 Coupeville Exempt Commercial | Map ID: | 173 |
| Neighborhood CD: | 2CpvExComm |
Owner |
| Name: | CORPORATION OF THE CATHOLIC | Owner ID: | 194619 |
| Mailing Address: | ARCHBISHOP OF SEATTLE 710 9TH AVE SEATTLE, WA 98104-2017 | % Ownership: | 100.0000000000% |
| | | Exemptions: | |
Taxes and Assessment Details
Values
| (+) Improvement Homesite Value: | + | $0 | |
| (+) Improvement Non-Homesite Value: | + | $80,132 | |
| (+) Land Homesite Value: | + | $0 | |
| (+) Land Non-Homesite Value: | + | $352,836 | |
| (+) Curr Use (HS): | + | $0 | $0 |
| (+) Curr Use (NHS): | + | $0 | $0 |
| | | -------------------------- | |
| (=) Market Value: | = | $432,968 | |
| (–) Productivity Loss: | – | $0 | |
| | | -------------------------- | |
| (=) Subtotal: | = | $432,968 | |
| (+) Senior Appraised Value: | + | $0 | |
| (+) Non-Senior Appraised Value: | + | $432,968 | |
| | | -------------------------- | |
| (=) Total Appraised Value: | = | $432,968 | |
| (–) Senior Exemption Loss: | – | $0 | |
| (–) Exemption Loss: | – | $0 | |
| | | -------------------------- | |
| (=) Taxable Value: | = | $432,968 | |
Taxing Jurisdiction
| Owner: | CORPORATION OF THE CATHOLIC | | |
| % Ownership: | 100.0000000000% | | |
| Total Value: | $432,968 | | |
| Tax Area: | 300 - APPRAISER-Cpvl Schl Dist, in Cpvl |
| CF | Conservation Futures | 0.0316035091 | $432,968 | $432,968 | $13.68 | | |
| CEM2 | Cemetery #2 | 0.0095056933 | $432,968 | $432,968 | $4.12 | | |
| COUP | City: Town of Coupeville | 0.8426414490 | $432,968 | $432,968 | $364.84 | | |
| FIRE5 | Fire & Rescue Dist #5 C Whidbey GEN | 1.2008080668 | $432,968 | $432,968 | $519.91 | | |
| FIRE5BOND | Fire & Rescue Dist #5 C Whidbey BOND | 0.1400090713 | $432,968 | $432,968 | $60.62 | | |
| HOBOND | Hospital BOND | 0.1910887512 | $432,968 | $432,968 | $82.74 | | |
| HOGEN | Hospital GEN | 0.3902502903 | $432,968 | $432,968 | $168.97 | | |
| CE | County Current Expense | 0.3708482477 | $432,968 | $432,968 | $160.57 | | |
| ISLANDEMS | Hospital GEN (EMS) | 0.5000000000 | $432,968 | $432,968 | $216.48 | | |
| LIB | Library Sno-Isle GEN | 0.3153421757 | $432,968 | $432,968 | $136.53 | | |
| LIBCAP | Library Sno-Isle BOND (Cap Fac Imp Area) | 0.0543427938 | $432,968 | $432,968 | $23.53 | | |
| POCOUP | Port of Coupeville GEN | 0.1093371703 | $432,968 | $432,968 | $47.34 | | |
| POCOUPIDD | Port of Coupeville IDD | 0.3409740022 | $432,968 | $432,968 | $147.63 | | |
| COUPSDTECH | School 204 CP (TECH) | 0.7545480007 | $432,968 | $432,968 | $326.70 | | |
| SCH204MO | School 204 Enrichment | 0.6716186034 | $432,968 | $432,968 | $290.79 | | |
| ST | State School | 1.3035497053 | $432,968 | $432,968 | $564.40 | | |
| ST2 | State School Part 2 | 0.8169543533 | $432,968 | $432,968 | $353.72 | | |
| | Total Tax Rate: | 8.0434218834 | | | | | |
| | | | | Taxes w/Current Exemptions: | $3,482.57 | | |
| | | | | Taxes w/o Exemptions: | $3,482.57 | | |
Improvement / Building
| Improvement #1: | COMMERCIAL | State Code: | F1 | 1948.0 sqft | Value: | $80,132 |
| Bathrooms: | 0 | Bedrooms: | 0 | | Ceiling: | PAINT OPEN FLOOR BAS | Exterior Wall/Cover: | 8" CONC BLK/CON FRAM | | Floor Covering: | CONCRETE SEALER | Floor Structure: | CONCRETE ON GROUND | | Foundation: | CONCRETE | Heating: | SPACE HEATERS | | Interior Finish: | VOLUNTEER FIRE STATION | Plumbing Fixture Cnt: | 1 | | Roof Structure/Cover: | BEAM BUILT-UP ROCK |   |   |
|
Sketch
Property Image
Land
| 1 | 77 | COMMUNITY | 0.4500 | 19602.00 | 0.00 | 0.00 | 1.00 | $352,836 | $0 |
Roll Value History
| 2026 | N/A | N/A | N/A | N/A | N/A |
| 2025 | $80,132 | $352,836 | $0 | $432,968 | $432,968 |
| 2024 | $87,001 | $352,836 | $0 | $439,837 | $439,837 |
| 2023 | $91,579 | $352,836 | $0 | $444,415 | $444,415 |
| 2022 | $80,152 | $352,836 | $0 | $432,988 | $432,988 |
| 2021 | $80,152 | $352,836 | $0 | $432,988 | $432,988 |
| 2020 | $80,152 | $352,836 | $0 | $432,988 | $432,988 |
| 2019 | $76,557 | $352,836 | $0 | $429,393 | $429,393 |
| 2018 | $37,527 | $294,030 | $0 | $331,557 | $331,557 |
| 2017 | $37,527 | $313,632 | $0 | $351,159 | $351,159 |
| 2016 | $37,527 | $313,632 | $0 | $351,159 | $351,159 |
| 2015 | $40,531 | $294,030 | $0 | $334,561 | $334,561 |
| 2014 | $42,239 | $294,030 | $0 | $336,269 | $336,269 |
| 2013 | $43,759 | $294,030 | $0 | $337,789 | $337,789 |
| 2012 | $81,742 | $122,696 | $0 | $204,438 | $204,438 |
| 2011 | $81,742 | $122,696 | $0 | $204,438 | $204,438 |
| 2010 | $59,420 | $122,696 | $0 | $182,116 | $182,116 |
| 2009 | $61,948 | $165,816 | $0 | $227,764 | $227,764 |
| 2008 | $64,482 | $165,811 | $0 | $230,293 | $230,293 |
| 2007 | $64,836 | $166,721 | $0 | $231,557 | $231,557 |
Deed and Sales History
| 1 | 12/08/2008 | WD | Warranty Deed | FIRE, DISTRICT # | CORPORATION OF THE CATHOLIC, | | | $198,000.00 | 83116 | 4241148 |
| 2 | 12/01/1994 | OTHER | Other - Misc. Documents | FIRE, DIST # | FIRE, DIST # | | | $0.00 | 66170 | 94025526 |
| 3 | 12/01/1994 | WD | Warranty Deed | FIRE, DIST # | FIRE, DISTRICT # | | | $0.00 | 45018 | 94025528 |
| 4 | 01/01/1900 | OTHER | Other - Misc. Documents | Unknown | FIRE, DIST # | | | $0.00 | 0 | 0 |
Payout Agreement
| No payout information available.. |