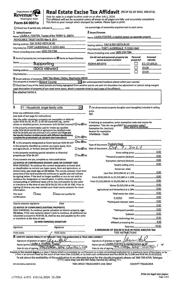
Property
Account |
| Property ID: | 699505 | Abbreviated Legal Description: | ACADEMY ADD/PT COUPE DC & GL2 DESC: BG SWCR BLK 1 VAC LOVEJOY ADD W ALG SLN SD BLK 1 EXT W 65' N9*E133.47' TO ANG PT ON SLN SAWYER TR AF#95377 ALG SLN SD TR N31*E16.60' E35.24' LEAVING SD SLN S30' TO NWCR SD BLK 1 SD VAC PLAT E ALG NLN 80' TO CLN VAC FIR |
| Geographic ID: | S6005-00-14001-1 | Agent Code: | |
| Type: | Real | | |
| Tax Area: | 300 - APPRAISER-Cpvl Schl Dist, in Cpvl | Land Use Code | 11 |
| Open Space: | N | DFL | N |
| Historic Property: | N | Remodel Property: | N |
| Multi-Family Redevelopment: | N | | |
| Township: | | Section: | |
| Range: | |
Location |
| Address: | 1004 NE LEACH ST COUPEVILLE, WA 98239 | Mapsco: | |
| Neighborhood: | Cycle 2 | Map ID: | 179 |
| Neighborhood CD: | 2 |
Owner |
| Name: | CORTES, NANCY A | Owner ID: | 311183 |
| Mailing Address: | 1004 NE LEACH DR COUPEVILLE, WA 98239 | % Ownership: | 100.0000000000% |
| | | Exemptions: | |
Taxes and Assessment Details
Values
| (+) Improvement Homesite Value: | + | $0 | |
| (+) Improvement Non-Homesite Value: | + | $420,246 | |
| (+) Land Homesite Value: | + | $0 | |
| (+) Land Non-Homesite Value: | + | $590,000 | |
| (+) Curr Use (HS): | + | $0 | $0 |
| (+) Curr Use (NHS): | + | $0 | $0 |
| | | -------------------------- | |
| (=) Market Value: | = | $1,010,246 | |
| (–) Productivity Loss: | – | $0 | |
| | | -------------------------- | |
| (=) Subtotal: | = | $1,010,246 | |
| (+) Senior Appraised Value: | + | $0 | |
| (+) Non-Senior Appraised Value: | + | $1,010,246 | |
| | | -------------------------- | |
| (=) Total Appraised Value: | = | $1,010,246 | |
| (–) Senior Exemption Loss: | – | $0 | |
| (–) Exemption Loss: | – | $0 | |
| | | -------------------------- | |
| (=) Taxable Value: | = | $1,010,246 | |
Taxing Jurisdiction
| Owner: | CORTES, NANCY A | | |
| % Ownership: | 100.0000000000% | | |
| Total Value: | $1,010,246 | | |
| Tax Area: | 300 - APPRAISER-Cpvl Schl Dist, in Cpvl |
| CF | Conservation Futures | 0.0316035091 | $1,010,246 | $1,010,246 | $31.93 | | |
| CEM2 | Cemetery #2 | 0.0095056933 | $1,010,246 | $1,010,246 | $9.60 | | |
| COUP | City: Town of Coupeville | 0.8426414490 | $1,010,246 | $1,010,246 | $851.28 | | |
| FIRE5 | Fire & Rescue Dist #5 C Whidbey GEN | 1.2008080668 | $1,010,246 | $1,010,246 | $1,213.11 | | |
| FIRE5BOND | Fire & Rescue Dist #5 C Whidbey BOND | 0.1400090713 | $1,010,246 | $1,010,246 | $141.44 | | |
| HOBOND | Hospital BOND | 0.1910887512 | $1,010,246 | $1,010,246 | $193.05 | | |
| HOGEN | Hospital GEN | 0.3902502903 | $1,010,246 | $1,010,246 | $394.25 | | |
| CE | County Current Expense | 0.3708482477 | $1,010,246 | $1,010,246 | $374.65 | | |
| ISLANDEMS | Hospital GEN (EMS) | 0.5000000000 | $1,010,246 | $1,010,246 | $505.12 | | |
| LIB | Library Sno-Isle GEN | 0.3153421757 | $1,010,246 | $1,010,246 | $318.57 | | |
| LIBCAP | Library Sno-Isle BOND (Cap Fac Imp Area) | 0.0543427938 | $1,010,246 | $1,010,246 | $54.90 | | |
| POCOUP | Port of Coupeville GEN | 0.1093371703 | $1,010,246 | $1,010,246 | $110.46 | | |
| POCOUPIDD | Port of Coupeville IDD | 0.3409740022 | $1,010,246 | $1,010,246 | $344.47 | | |
| COUPSDTECH | School 204 CP (TECH) | 0.7545480007 | $1,010,246 | $1,010,246 | $762.28 | | |
| SCH204MO | School 204 Enrichment | 0.6716186034 | $1,010,246 | $1,010,246 | $678.50 | | |
| ST | State School | 1.3035497053 | $1,010,246 | $1,010,246 | $1,316.91 | | |
| ST2 | State School Part 2 | 0.8169543533 | $1,010,246 | $1,010,246 | $825.32 | | |
| | Total Tax Rate: | 8.0434218834 | | | | | |
| | | | | Taxes w/Current Exemptions: | $8,125.84 | | |
| | | | | Taxes w/o Exemptions: | $8,125.84 | | |
Improvement / Building
| Improvement #1: | RESIDENTIAL | State Code: | Y | 1786.0 sqft | Value: | $420,246 |
| Bathrooms: | 1.75 | Bedrooms: | 3 | | Ceiling: | TONGUE & GROOVE | Exterior Wall/Cover: | SHINGLE | | Floor Covering: | HARDWOOD/CARP 60-40 | Floor Structure: | WOOD W/SUBFLOOR | | Foundation: | CONCRETE | Heating: | FHA GAS | | Interior Finish: | DRYWALL PAINT | Plumbing Fixture Cnt: | 10 | | Roof Slope: | 8" IN 12" | Roof Structure/Cover: | CJ ASPHALT |
|
| | Type | Description | Class CD | Sub Class CD | Year Built | Area |
| | BAS | BASE/MAIN FLOOR | 4 | 0 | 2001 | 1146.0 |
| | AGR | ATTACHED GARAGE | 4 | 0 | 2001 | 340.0 |
| | UPS | UPPER STORY | 4 | 0 | 2001 | 640.0 |
| | OWP | OPEN WOOD PORCH W/STEPS | 4 | 0 | 2001 | 168.0 |
| | OWP | OPEN WOOD PORCH W/STEPS | 4 | 0 | 2001 | 351.0 |
| | OWC | OPEN WOOD PORCH W/STEPS/ROOF/C | 4 | 0 | 2001 | 81.7 |
| | OWC | OPEN WOOD PORCH W/STEPS/ROOF/C | 4 | 0 | 2001 | 60.0 |
| | UTY | STORAGE/UTILITY | 4 | 0 | 2001 | 96.0 |
Sketch
| No sketches available for this property. |
Property Image
Land
| 1 | MB | MEDIUM BANK | 0.0000 | 0.00 | 90.00 | 0.00 | 1.00 | $590,000 | $0 |
Roll Value History
| 2026 | N/A | N/A | N/A | N/A | N/A |
| 2025 | $420,246 | $590,000 | $0 | $1,010,246 | $1,010,246 |
| 2024 | $415,319 | $565,000 | $0 | $980,319 | $980,319 |
| 2023 | $420,246 | $565,000 | $0 | $985,246 | $985,246 |
| 2022 | $385,012 | $540,000 | $0 | $925,012 | $925,012 |
| 2021 | $338,667 | $475,000 | $0 | $813,667 | $813,667 |
| 2020 | $329,993 | $450,000 | $0 | $779,993 | $779,993 |
| 2019 | $245,862 | $450,000 | $0 | $695,862 | $695,862 |
| 2018 | $246,550 | $400,000 | $0 | $646,550 | $646,550 |
| 2017 | $247,928 | $400,000 | $0 | $647,928 | $647,928 |
| 2016 | $191,456 | $400,000 | $0 | $591,456 | $591,456 |
| 2015 | $0 | $450,000 | $0 | $450,000 | $450,000 |
| 2014 | $0 | $450,000 | $0 | $450,000 | $450,000 |
| 2013 | $0 | $450,000 | $0 | $450,000 | $450,000 |
| 2012 | $0 | $565,007 | $0 | $565,007 | $565,007 |
| 2011 | $0 | $565,007 | $0 | $565,007 | $565,007 |
| 2010 | $0 | $565,007 | $0 | $565,007 | $565,007 |
| 2009 | $0 | $263,661 | $0 | $263,661 | $263,661 |
| 2008 | $0 | $263,661 | $0 | $263,661 | $263,661 |
| 2007 | $0 | $239,997 | $0 | $239,997 | $239,997 |
Deed and Sales History
| 1 | 12/20/2023 | QCD | Quit Claim Deed | MOLLOY, STEPHEN A | CORTES, NANCY A | | | $0.00 | 58992 | 4568508 |
| 2 | 11/29/2016 | WD | Warranty Deed | FINROW, JERRY V | MOLLOY, STEPHEN A | | | $200,000.00 | 27135 | 4412471 |
| 3 | 02/23/2007 | BLA | DNU - Boundary Line Adjustment | FINROW, JERRY V | FINROW, JERRY V | | | $0.00 | 80121 | 4175766 |
| 4 | 07/31/2006 | WD | Warranty Deed | FINROW, JERRY V | FINROW, JERRY V | | | $294,000.00 | 63284 | 4177608 |
| 5 | 06/08/1999 | WD | Warranty Deed | CANFIELD, MICHAEL/STELLA | FINROW, JERRY V | | | $155,000.00 | 92309 | 99014245 |
| 6 | 11/01/1996 | WD | Warranty Deed | CARR, JOHN C | CANFIELD, MICHAEL/STELLA | | | $120,000.00 | 64128 | 96020112 |
| 7 | 10/01/1995 | WD | Warranty Deed | HESSELGRAVE, GEORGE W | CARR, JOHN C | | | $92,000.00 | 53500 | 95016010 |
| 8 | 01/01/1900 | OTHER | Other - Misc. Documents | Unknown | HESSELGRAVE, GEORGE W | | | $0.00 | 63771 | 90014276 |
Payout Agreement
| No payout information available.. |