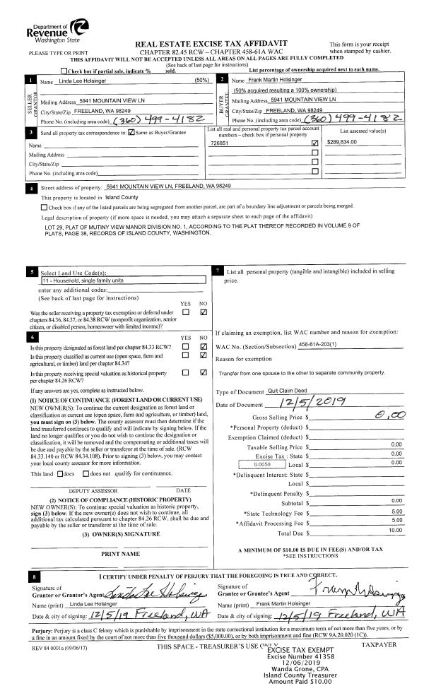
Property
Account |
| Property ID: | 69972 | Abbreviated Legal Description: | 60 - W328' OF SE NW NW TGW EZ EX E10' A#3090 AF#373766 |
| Geographic ID: | R23034-431-0830 | Agent Code: | |
| Type: | Real | | |
| Tax Area: | 312 - APPRAISER-Cpvl Schl Dist, outside Cpvl, improved, greater than 1 acre | Land Use Code | 11 |
| Open Space: | N | DFL | N |
| Historic Property: | N | Remodel Property: | N |
| Multi-Family Redevelopment: | N | | |
| Township: | 30 | Section: | 34 |
| Range: | R2 |
Location |
| Address: | 4454 TOWHEE LN GREENBANK, WA 98253 | Mapsco: | |
| Neighborhood: | Cycle 3 | Map ID: | 441 |
| Neighborhood CD: | 3 |
Owner |
| Name: | PARDO, LARS A G | Owner ID: | 83990 |
| Mailing Address: | 4454 TOWHEE LN GREENBANK, WA 98253 | % Ownership: | 100.0000000000% |
| | | Exemptions: | |
Taxes and Assessment Details
Values
| (+) Improvement Homesite Value: | + | $0 | |
| (+) Improvement Non-Homesite Value: | + | $212,309 | |
| (+) Land Homesite Value: | + | $0 | |
| (+) Land Non-Homesite Value: | + | $410,000 | |
| (+) Curr Use (HS): | + | $0 | $0 |
| (+) Curr Use (NHS): | + | $0 | $0 |
| | | -------------------------- | |
| (=) Market Value: | = | $622,309 | |
| (–) Productivity Loss: | – | $0 | |
| | | -------------------------- | |
| (=) Subtotal: | = | $622,309 | |
| (+) Senior Appraised Value: | + | $0 | |
| (+) Non-Senior Appraised Value: | + | $622,309 | |
| | | -------------------------- | |
| (=) Total Appraised Value: | = | $622,309 | |
| (–) Senior Exemption Loss: | – | $0 | |
| (–) Exemption Loss: | – | $0 | |
| | | -------------------------- | |
| (=) Taxable Value: | = | $622,309 | |
Taxing Jurisdiction
| Owner: | PARDO, LARS A G | | |
| % Ownership: | 100.0000000000% | | |
| Total Value: | $622,309 | | |
| Tax Area: | 312 - APPRAISER-Cpvl Schl Dist, outside Cpvl, improved, greater than 1 acre |
| CF | Conservation Futures | 0.0316035091 | $622,309 | $622,309 | $19.67 | | |
| CEM2 | Cemetery #2 | 0.0095056933 | $622,309 | $622,309 | $5.92 | | |
| FIRE5 | Fire & Rescue Dist #5 C Whidbey GEN | 1.2008080668 | $622,309 | $622,309 | $747.27 | | |
| FIRE5BOND | Fire & Rescue Dist #5 C Whidbey BOND | 0.1400090713 | $622,309 | $622,309 | $87.13 | | |
| HOBOND | Hospital BOND | 0.1910887512 | $622,309 | $622,309 | $118.92 | | |
| HOGEN | Hospital GEN | 0.3902502903 | $622,309 | $622,309 | $242.86 | | |
| CE | County Current Expense | 0.3708482477 | $622,309 | $622,309 | $230.78 | | |
| CR | County Roads | 0.4584763726 | $622,309 | $622,309 | $285.31 | | |
| ISLANDEMS | Hospital GEN (EMS) | 0.5000000000 | $622,309 | $622,309 | $311.15 | | |
| LIB | Library Sno-Isle GEN | 0.3153421757 | $622,309 | $622,309 | $196.24 | | |
| LIBCAP | Library Sno-Isle BOND (Cap Fac Imp Area) | 0.0543427938 | $622,309 | $622,309 | $33.82 | | |
| POCOUP | Port of Coupeville GEN | 0.1093371703 | $622,309 | $622,309 | $68.04 | | |
| POCOUPIDD | Port of Coupeville IDD | 0.3409740022 | $622,309 | $622,309 | $212.19 | | |
| COUPSDTECH | School 204 CP (TECH) | 0.7545480007 | $622,309 | $622,309 | $469.56 | | |
| SCH204MO | School 204 Enrichment | 0.6716186034 | $622,309 | $622,309 | $417.95 | | |
| ST | State School | 1.3035497053 | $622,309 | $622,309 | $811.21 | | |
| ST2 | State School Part 2 | 0.8169543533 | $622,309 | $622,309 | $508.40 | | |
| | Total Tax Rate: | 7.6592568070 | | | | | |
| | | | | Taxes w/Current Exemptions: | $4,766.42 | | |
| | | | | Taxes w/o Exemptions: | $4,766.42 | | |
Improvement / Building
| Improvement #1: | RESIDENTIAL | State Code: | Y | 1260.0 sqft | Value: | $212,309 |
| Bathrooms: | 1 | Bedrooms: | 1 | | Ceiling: | TONGUE & GROOVE | Cooling: | HEAT PUMP/CONV/V | | Exterior Wall/Cover: | LOG TO 10" | Floor Covering: | CARPET 100% | | Floor Structure: | WOOD W/SUBFLOOR | Foundation: | PIERS/CONCRETE | | Interior Finish: | DRYWALL PAINT | Plumbing Fixture Cnt: | 6 | | Roof Slope: | 12" IN 12" | Roof Structure/Cover: | BEAM ALUMINUM HEAVY |
|
| | Type | Description | Class CD | Sub Class CD | Year Built | Area |
| | BAS | BASE/MAIN FLOOR | 4 | 0 | 1982 | 868.0 |
| | OWP | OPEN WOOD PORCH W/STEPS | 4 | 0 | 1982 | 515.5 |
| | LOF | LOFT | 4 | 0 | 1982 | 392.0 |
| | UTY | STORAGE/UTILITY | 4 | 0 | 1982 | 504.0 |
Sketch
Property Image
Land
| 1 | 32 | AC (03.01-09.99) | 5.0000 | 0.00 | 0.00 | 0.00 | 1.00 | $410,000 | $0 |
Roll Value History
| 2026 | N/A | N/A | N/A | N/A | N/A |
| 2025 | $212,309 | $410,000 | $0 | $622,309 | $622,309 |
| 2024 | $228,942 | $390,000 | $0 | $618,942 | $618,942 |
| 2023 | $232,155 | $350,000 | $0 | $582,155 | $582,155 |
| 2022 | $210,736 | $350,000 | $0 | $560,736 | $560,736 |
| 2021 | $185,746 | $280,000 | $0 | $465,746 | $465,746 |
| 2020 | $181,577 | $240,000 | $0 | $421,577 | $421,577 |
| 2019 | $130,384 | $300,000 | $0 | $430,384 | $430,384 |
| 2018 | $130,823 | $200,000 | $0 | $330,823 | $330,823 |
| 2017 | $131,701 | $165,000 | $0 | $296,701 | $296,701 |
| 2016 | $133,457 | $165,000 | $0 | $298,457 | $298,457 |
| 2015 | $135,213 | $166,500 | $0 | $301,713 | $301,713 |
| 2014 | $136,968 | $166,500 | $0 | $303,468 | $303,468 |
| 2013 | $73,377 | $166,500 | $0 | $239,877 | $239,877 |
| 2012 | $74,394 | $166,500 | $0 | $240,894 | $240,894 |
| 2011 | $75,410 | $185,000 | $0 | $260,410 | $260,410 |
| 2010 | $72,000 | $185,000 | $0 | $257,000 | $257,000 |
| 2009 | $74,274 | $220,000 | $0 | $294,274 | $294,274 |
| 2008 | $75,745 | $200,000 | $0 | $275,745 | $275,745 |
| 2007 | $63,903 | $160,000 | $0 | $223,903 | $223,903 |
Deed and Sales History
| 1 | 01/01/1900 | OTHER | Other - Misc. Documents | Unknown | PARDO, LARS A G | | | $0.00 | 0 | 0 |
Payout Agreement
| No payout information available.. |