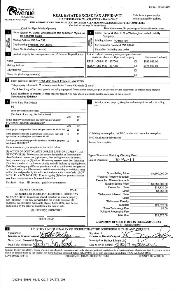
Property
Account |
| Property ID: | 699729 | Abbreviated Legal Description: | LOT 2 OH-SP 6-94.13202.316-1500 V2 SP P496 AF#95000757 |
| Geographic ID: | R13202-310-1540 | Agent Code: | |
| Type: | Real | | |
| Tax Area: | 100 - APPRAISER-OH Schl Dist, in OH | Land Use Code | 13 |
| Open Space: | N | DFL | N |
| Historic Property: | N | Remodel Property: | N |
| Multi-Family Redevelopment: | N | | |
| Township: | 32 | Section: | 02 |
| Range: | R1 |
Location |
| Address: | 931 SE ELY ST OAK HARBOR, WA 98277 | Mapsco: | |
| Neighborhood: | 12cOH-se ely st | Map ID: | 88 |
| Neighborhood CD: | 12cOHseely |
Owner |
| Name: | FAIRFAX PROPERTIES, LLC | Owner ID: | 280992 |
| Mailing Address: | 846 PARK AVE OAK HARBOR, WA 98277 | % Ownership: | 100.0000000000% |
| | | Exemptions: | |
Taxes and Assessment Details
Values
| (+) Improvement Homesite Value: | + | $0 | |
| (+) Improvement Non-Homesite Value: | + | $944,015 | |
| (+) Land Homesite Value: | + | $0 | |
| (+) Land Non-Homesite Value: | + | $548,856 | |
| (+) Curr Use (HS): | + | $0 | $0 |
| (+) Curr Use (NHS): | + | $0 | $0 |
| | | -------------------------- | |
| (=) Market Value: | = | $1,492,871 | |
| (–) Productivity Loss: | – | $0 | |
| | | -------------------------- | |
| (=) Subtotal: | = | $1,492,871 | |
| (+) Senior Appraised Value: | + | $0 | |
| (+) Non-Senior Appraised Value: | + | $1,492,871 | |
| | | -------------------------- | |
| (=) Total Appraised Value: | = | $1,492,871 | |
| (–) Senior Exemption Loss: | – | $0 | |
| (–) Exemption Loss: | – | $0 | |
| | | -------------------------- | |
| (=) Taxable Value: | = | $1,492,871 | |
Taxing Jurisdiction
| Owner: | FAIRFAX PROPERTIES, LLC | | |
| % Ownership: | 100.0000000000% | | |
| Total Value: | $1,492,871 | | |
| Tax Area: | 100 - APPRAISER-OH Schl Dist, in OH |
| CF | Conservation Futures | 0.0316035091 | $1,492,871 | $1,492,871 | $47.18 | | |
| CEM1 | Cemetery #1 | 0.0040320932 | $1,492,871 | $1,492,871 | $6.02 | | |
| COH | City of Oak Harbor | 2.3001546061 | $1,492,871 | $1,492,871 | $3,433.83 | | |
| OAKBOND | City of Oak Harbor BOND | 0.1926904192 | $1,492,871 | $1,492,871 | $287.66 | | |
| HOBOND | Hospital BOND | 0.1910887512 | $1,492,871 | $1,492,871 | $285.27 | | |
| HOGEN | Hospital GEN | 0.3902502903 | $1,492,871 | $1,492,871 | $582.59 | | |
| CE | County Current Expense | 0.3708482477 | $1,492,871 | $1,492,871 | $553.63 | | |
| ISLANDEMS | Hospital GEN (EMS) | 0.5000000000 | $1,492,871 | $1,492,871 | $746.44 | | |
| LIB | Library Sno-Isle GEN | 0.3153421757 | $1,492,871 | $1,492,871 | $470.77 | | |
| NWHIDPRMT | P & R N Whidbey GEN | 0.2004466701 | $1,492,871 | $1,492,871 | $299.24 | | |
| SCH201MO | School 201 Enrichment | 1.8559231640 | $1,492,871 | $1,492,871 | $2,770.65 | | |
| ST | State School | 1.3035497053 | $1,492,871 | $1,492,871 | $1,946.03 | | |
| ST2 | State School Part 2 | 0.8169543533 | $1,492,871 | $1,492,871 | $1,219.61 | | |
| | Total Tax Rate: | 8.4728839852 | | | | | |
| | | | | Taxes w/Current Exemptions: | $12,648.92 | | |
| | | | | Taxes w/o Exemptions: | $12,648.92 | | |
Improvement / Building
| Improvement #1: | RESIDENTIAL/COMMERCIAL | State Code: | Y | 4053.8 sqft | Value: | $475,044 |
| Bathrooms: | 4 | Bedrooms: | 4 | | Ceiling: | DRYWALL PAINTED | Exterior Wall/Cover: | CEMENT FIBER | | Floor Covering: | CARPET/VINYL 80-20 | Floor Structure: | SLAB ON GRADE | | Foundation: | SLAB | Heating: | WALL HEAT ELECTRIC | | Interior Finish: | DRYWALL PAINT | Plumbing Fixture Cnt: | 24 | | Roof Slope: | 4" IN 12" | Roof Structure/Cover: | CJ ASPHALT |
|
| | Type | Description | Class CD | Sub Class CD | Year Built | Area |
| | BAS | BASE/MAIN FLOOR | 3 | 0 | 2003 | 2026.9 |
| | OP1 | OPEN PORCH SLAB | 3 | 0 | 2003 | 489.8 |
| | UPS | UPPER STORY | 3 | 0 | 2003 | 2026.9 |
| | oPV1 | PV/ASPH 2" | 3 | 0 | 2003 | 6960.0 |
| Improvement #2: | RESIDENTIAL/COMMERCIAL | State Code: | Y | 4053.8 sqft | Value: | $468,971 |
| Bathrooms: | 4 | Bedrooms: | 4 | | Ceiling: | DRYWALL PAINTED | Exterior Wall/Cover: | CEMENT FIBER | | Floor Covering: | CARPET/VINYL 80-20 | Floor Structure: | SLAB ON GRADE | | Foundation: | SLAB | Heating: | WALL HEAT ELECTRIC | | Interior Finish: | DRYWALL PAINT | Plumbing Fixture Cnt: | 24 | | Roof Slope: | 4" IN 12" | Roof Structure/Cover: | CJ ASPHALT |
|
| | Type | Description | Class CD | Sub Class CD | Year Built | Area |
| | BAS | BASE/MAIN FLOOR | 3 | 0 | 2003 | 2026.9 |
| | OP1 | OPEN PORCH SLAB | 3 | 0 | 2003 | 322.8 |
| | UPS | UPPER STORY | 3 | 0 | 2003 | 2026.9 |
Sketch
Property Image
Land
| 1 | 61 | MULTIPLE RESIDENCES | 0.4200 | 18295.20 | 0.00 | 0.00 | 1.00 | $548,856 | $0 |
Roll Value History
| 2026 | N/A | N/A | N/A | N/A | N/A |
| 2025 | $944,015 | $548,856 | $0 | $1,492,871 | $1,492,871 |
| 2024 | $954,820 | $548,856 | $0 | $1,503,676 | $1,503,676 |
| 2023 | $900,512 | $548,856 | $0 | $1,449,368 | $1,449,368 |
| 2022 | $697,845 | $548,856 | $0 | $1,246,701 | $1,246,701 |
| 2021 | $697,130 | $548,856 | $0 | $1,245,986 | $1,245,986 |
| 2020 | $696,996 | $548,856 | $0 | $1,245,852 | $1,245,852 |
| 2019 | $643,621 | $548,856 | $0 | $1,192,477 | $1,192,477 |
| 2018 | $643,633 | $475,675 | $0 | $1,119,308 | $1,119,308 |
| 2017 | $547,516 | $146,362 | $0 | $693,878 | $693,878 |
| 2016 | $547,516 | $146,362 | $0 | $693,878 | $693,878 |
| 2015 | $547,516 | $105,792 | $0 | $653,308 | $653,308 |
| 2014 | $547,516 | $105,792 | $0 | $653,308 | $653,308 |
| 2013 | $547,516 | $105,792 | $0 | $653,308 | $653,308 |
| 2012 | $547,516 | $105,792 | $0 | $653,308 | $653,308 |
| 2011 | $547,516 | $105,792 | $0 | $653,308 | $653,308 |
| 2010 | $571,041 | $105,792 | $0 | $676,833 | $676,833 |
| 2009 | $577,721 | $154,128 | $0 | $731,849 | $731,849 |
| 2008 | $590,275 | $162,154 | $0 | $752,429 | $752,429 |
| 2007 | $591,007 | $162,154 | $0 | $753,161 | $753,161 |
Deed and Sales History
| 1 | 07/13/2017 | QCD | Quit Claim Deed | THE FAIRFAX FAMILY LIMITED PARTNERSHIP III | FAIRFAX PROPERTIES, LLC | | | $0.00 | 30246 | 4426534 |
| 2 | 10/24/2014 | WD | Warranty Deed | RUTH VILLA LLC | THE FAIRFAX FAMILY LIMITED PARTNERSHIP III | | | $712,500.00 | 17381 | 4367762 |
| 3 | 02/07/2003 | QCD | Quit Claim Deed | SHEPHERD, DOUGLAS B | VILLA LLC, RUTH | | | $0.00 | 31024 | 4050838 |
| 4 | 10/04/2002 | WD | Warranty Deed | WHITE, THOMAS A | SHEPHERD, DOUGLAS B | | | $65,000.00 | 24078 | 4033995 |
| 5 | 01/03/2000 | WD | Warranty Deed | CHRISTIAN, JACK E/PATRICIA | WHITE, THOMAS A | | | $65,000.00 | 163 | 20000940 |
| 6 | 01/01/1900 | OTHER | Other - Misc. Documents | Unknown | CHRISTIAN, JACK E | | | $0.00 | 80517 | 3270400 |
Payout Agreement
| No payout information available.. |