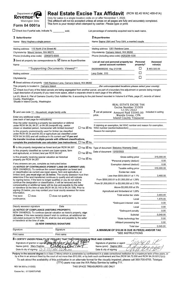
| 1 | 05/23/2022 | WD | Warranty Deed | BRADEL, JARED S | MARTINEZ, RAMON | | | $245,000.00 | 53353 | 4546261 |
| 2 | 01/19/2005 | WD | Warranty Deed | GRAVES, BRIAN W | BRADEL, JARED S | | | $101,050.00 | 50263 | 4123777 |
| 3 | 07/29/2003 | 5 | DNU - Marriage License/Name Change | GRAVES, BRIAN W | GRAVES, BRIAN W | | | $0.00 | 34565 | 4078516 |
| 4 | 07/23/2003 | ESTSEPPROP | Establish Separate Property | GRAVES, BRIAN W | GRAVES, BRIAN W | | | $0.00 | 33209 | 4068484 |
| 5 | 09/25/2000 | WD | Warranty Deed | VETERANS ADMINISTRATION, | GRAVES, BRIAN W | | | $75,500.00 | 3698 | 20016986 |
| 6 | 05/30/2000 | WD | Warranty Deed | NATIONAL CITY MORTGAGE CO, | VETERANS ADMINISTRATION, | | | $69,623.00 | 1961 | 2000484 |
| 7 | 05/30/2000 | TRUSTEED | Trustee's Deed | COSPER, GARY W/PATRICIA J | NATIONAL CITY MORTGAGE CO, | | | $69,623.00 | 1960 | 20009483 |
| 8 | 09/01/1994 | WD | Warranty Deed | ISLAND, CONSTRUCTION I | COSPER, GARY W | | | $88,500.00 | 43772 | 94019669 |
| 9 | 01/01/1900 | OTHER | Other - Misc. Documents | Unknown | ISLAND, CONSTRUCTION I | | | $0.00 | 34436 | 93023099 |
| 10 | 01/01/1900 | OTHER | Other - Misc. Documents | COSPER, GARY W | COSPER, GARY W/PATRICIA J | | | $0.00 | 0 | 0 |