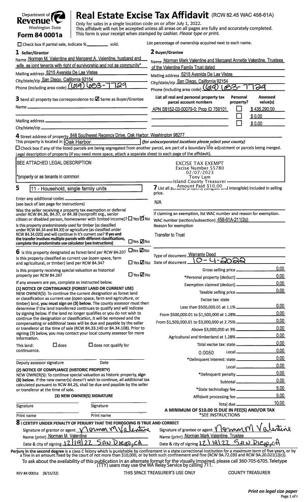
Property
Account |
| Property ID: | 701066 | Abbreviated Legal Description: | LOT 4 SP 54-93.33222.175-0370 & .175-1030 V2 SP P498 AF#95001936 |
| Geographic ID: | R33222-198-0950 | Agent Code: | |
| Type: | Real | | |
| Tax Area: | 512 - APPRAISER-Stan/Cam Schl Dist, improved, greater than 1 acre | Land Use Code | 11 |
| Open Space: | N | DFL | N |
| Historic Property: | N | Remodel Property: | N |
| Multi-Family Redevelopment: | N | | |
| Township: | 32 | Section: | 22 |
| Range: | R3 |
Location |
| Address: | 934 AMY PLACE CAMANO ISLAND, WA 98282 | Mapsco: | |
| Neighborhood: | North Camano | Map ID: | 972 |
| Neighborhood CD: | 06-C |
Owner |
| Name: | CHAVEZ, JUAN R | Owner ID: | 272317 |
| Mailing Address: | MARIA M CHAVEZ 934 AMY PLACE CAMANO ISLAND, WA 98282-8858 | % Ownership: | 100.0000000000% |
| | | Exemptions: | |
Taxes and Assessment Details
Values
| (+) Improvement Homesite Value: | + | $0 | |
| (+) Improvement Non-Homesite Value: | + | $425,654 | |
| (+) Land Homesite Value: | + | $0 | |
| (+) Land Non-Homesite Value: | + | $330,000 | |
| (+) Curr Use (HS): | + | $0 | $0 |
| (+) Curr Use (NHS): | + | $0 | $0 |
| | | -------------------------- | |
| (=) Market Value: | = | $755,654 | |
| (–) Productivity Loss: | – | $0 | |
| | | -------------------------- | |
| (=) Subtotal: | = | $755,654 | |
| (+) Senior Appraised Value: | + | $0 | |
| (+) Non-Senior Appraised Value: | + | $755,654 | |
| | | -------------------------- | |
| (=) Total Appraised Value: | = | $755,654 | |
| (–) Senior Exemption Loss: | – | $0 | |
| (–) Exemption Loss: | – | $0 | |
| | | -------------------------- | |
| (=) Taxable Value: | = | $755,654 | |
Taxing Jurisdiction
| Owner: | CHAVEZ, JUAN R | | |
| % Ownership: | 100.0000000000% | | |
| Total Value: | $755,654 | | |
| Tax Area: | 512 - APPRAISER-Stan/Cam Schl Dist, improved, greater than 1 acre |
| CF | Conservation Futures | 0.0316035091 | $755,654 | $755,654 | $23.88 | | |
| EMS1 | Fire & Rescue Dist #1 Camano GEN (EMS) | 0.3677864386 | $755,654 | $755,654 | $277.92 | | |
| FIRE1 | Fire & Rescue Dist #1 Camano GEN | 1.2502910536 | $755,654 | $755,654 | $944.79 | | |
| FIRE1BOND | Fire & Rescue Dist #1 Camano BOND | 0.1570001679 | $755,654 | $755,654 | $118.64 | | |
| CE | County Current Expense | 0.3708482477 | $755,654 | $755,654 | $280.23 | | |
| CR | County Roads | 0.4584763726 | $755,654 | $755,654 | $346.45 | | |
| LCIB | Library Sno-Isle BOND (Camano Island) | 0.0396325772 | $755,654 | $755,654 | $29.95 | | |
| LIB | Library Sno-Isle GEN | 0.3153421757 | $755,654 | $755,654 | $238.29 | | |
| SCH205_401 | School 205-401 Enrichment | 1.2698420524 | $755,654 | $755,654 | $959.56 | | |
| SCH205BOND | School 205-401 BOND | 0.9396497583 | $755,654 | $755,654 | $710.05 | | |
| ST | State School | 1.3035497053 | $755,654 | $755,654 | $985.03 | | |
| ST2 | State School Part 2 | 0.8169543533 | $755,654 | $755,654 | $617.33 | | |
| | Total Tax Rate: | 7.3209764117 | | | | | |
| | | | | Taxes w/Current Exemptions: | $5,532.12 | | |
| | | | | Taxes w/o Exemptions: | $5,532.12 | | |
Improvement / Building
| Improvement #1: | RESIDENTIAL | State Code: | Y | 3013.5 sqft | Value: | $425,654 |
| Bathrooms: | 4 | Bedrooms: | 4 | | Ceiling: | DRYWALL PAINTED | Exterior Wall/Cover: | WOOD SIDING | | Floor Covering: | HARDWOOD/CARP 60-40 | Floor Structure: | WOOD W/SUBFLOOR | | Foundation: | CONCRETE | Heating: | RAD HOT WATER-GAS | | Interior Finish: | DRYWALL PAINT | Plumbing Fixture Cnt: | 15 | | Roof Slope: | 5" IN 12" | Roof Structure/Cover: | CJ ASPHALT |
|
| | Type | Description | Class CD | Sub Class CD | Year Built | Area |
| | BAS | BASE/MAIN FLOOR | 3 | 0 | 2003 | 1500.0 |
| | AGR | ATTACHED GARAGE | 3 | 0 | 2003 | 624.0 |
| | UPS | UPPER STORY | 3 | 0 | 2003 | 1513.5 |
| | OWP | OPEN WOOD PORCH W/STEPS | 3 | 0 | 2003 | 428.4 |
| | OWP | OPEN WOOD PORCH W/STEPS | 3 | 0 | 2003 | 175.0 |
| | OWC | OPEN WOOD PORCH W/STEPS/ROOF/C | 3 | 0 | 2003 | 414.0 |
| | OWR | OPEN WOOD PORCH W/STEPS/ROOF | 3 | 0 | 2003 | 168.0 |
Sketch
Property Image
Land
| 1 | 32 | AC (03.01-09.99) | 5.0000 | 0.00 | 0.00 | 0.00 | 1.00 | $330,000 | $0 |
Roll Value History
| 2026 | N/A | N/A | N/A | N/A | N/A |
| 2025 | $425,654 | $330,000 | $0 | $755,654 | $755,654 |
| 2024 | $430,958 | $340,000 | $0 | $770,958 | $770,958 |
| 2023 | $436,262 | $320,000 | $0 | $756,262 | $756,262 |
| 2022 | $386,017 | $300,000 | $0 | $686,017 | $686,017 |
| 2021 | $339,804 | $190,000 | $0 | $529,804 | $529,804 |
| 2020 | $331,688 | $190,000 | $0 | $521,688 | $521,688 |
| 2019 | $264,945 | $220,000 | $0 | $484,945 | $484,945 |
| 2018 | $265,732 | $190,000 | $0 | $455,732 | $455,732 |
| 2017 | $267,267 | $170,000 | $0 | $437,267 | $437,267 |
| 2016 | $299,273 | $135,000 | $0 | $434,273 | $434,273 |
| 2015 | $302,752 | $125,000 | $0 | $427,752 | $427,752 |
| 2014 | $306,231 | $125,000 | $0 | $431,231 | $431,231 |
| 2013 | $309,711 | $112,000 | $0 | $421,711 | $421,711 |
| 2012 | $313,194 | $112,000 | $0 | $425,194 | $425,194 |
| 2011 | $316,671 | $140,000 | $0 | $456,671 | $456,671 |
| 2010 | $379,110 | $140,000 | $0 | $519,110 | $519,110 |
| 2009 | $395,168 | $160,000 | $0 | $555,168 | $555,168 |
| 2008 | $403,740 | $160,000 | $0 | $563,740 | $563,740 |
| 2007 | $404,069 | $160,000 | $0 | $564,069 | $564,069 |
Deed and Sales History
| 1 | 09/23/2015 | SPWARDEED | Special Warranty Deed | DEUTSCHE BANK TRUST COMPANY AMERICAS | CHAVEZ, JUAN R | | | $379,000.00 | 21571 | 4386937 |
| 2 | 03/09/2015 | TRUSTEED | Trustee's Deed | READY-STANSBERRY, KATHLEEN SARAH | DEUTSCHE BANK TRUST COMPANY AMERICAS | | | $0.00 | 18759 | 4374785 |
| 3 | 10/24/2005 | 5 | DNU - Marriage License/Name Change | READY, KATHLEEN S | READY-STANSBERRY, KATHLEEN SAR | | | $0.00 | 61186 | 4165361 |
| 4 | 10/08/2002 | ESTSEPPROP | Establish Separate Property | READY, KATHLEEN S | READY, KATHLEEN S | | | $0.00 | 24098 | 4034149 |
| 5 | 08/12/1999 | WD | Warranty Deed | Unknown | READY, KATHLEEN S | | | $99,500.00 | 93334 | 99019142 |
| 6 | 01/01/1900 | OTHER | Other - Misc. Documents | Unknown | DORSEY, STEVEN H | | | $0.00 | 32006 | 93010400 |
Payout Agreement
| No payout information available.. |