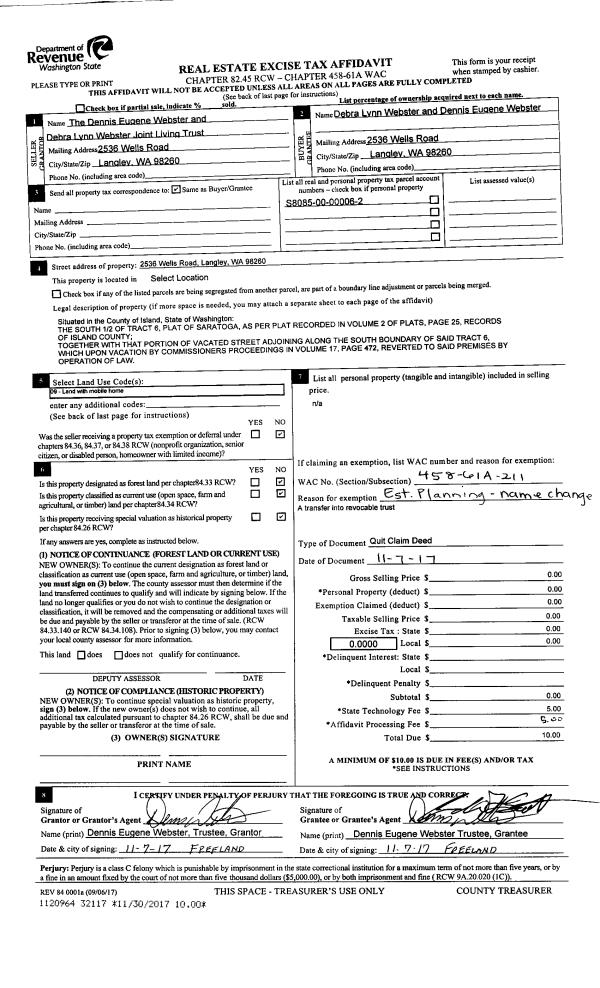
Property
Account |
| Property ID: | 701235 | Abbreviated Legal Description: | MEADOWRIDGE LOT 17 |
| Geographic ID: | S7499-00-00017-0 | Agent Code: | |
| Type: | Real | | |
| Tax Area: | 100 - APPRAISER-OH Schl Dist, in OH | Land Use Code | 11 |
| Open Space: | N | DFL | N |
| Historic Property: | N | Remodel Property: | N |
| Multi-Family Redevelopment: | N | | |
| Township: | | Section: | |
| Range: | |
Location |
| Address: | 865 NW PROW ST OAK HARBOR, WA 98277 | Mapsco: | |
| Neighborhood: | Cycle 1 | Map ID: | 254 |
| Neighborhood CD: | 1 |
Owner |
| Name: | LUCAS, JAMES J | Owner ID: | 77910 |
| Mailing Address: | 11452 RAWHIDE RD LUSBY, MD 20657-3158 | % Ownership: | 100.0000000000% |
| | | Exemptions: | |
Taxes and Assessment Details
Values
| (+) Improvement Homesite Value: | + | $0 | |
| (+) Improvement Non-Homesite Value: | + | $207,610 | |
| (+) Land Homesite Value: | + | $0 | |
| (+) Land Non-Homesite Value: | + | $210,000 | |
| (+) Curr Use (HS): | + | $0 | $0 |
| (+) Curr Use (NHS): | + | $0 | $0 |
| | | -------------------------- | |
| (=) Market Value: | = | $417,610 | |
| (–) Productivity Loss: | – | $0 | |
| | | -------------------------- | |
| (=) Subtotal: | = | $417,610 | |
| (+) Senior Appraised Value: | + | $0 | |
| (+) Non-Senior Appraised Value: | + | $417,610 | |
| | | -------------------------- | |
| (=) Total Appraised Value: | = | $417,610 | |
| (–) Senior Exemption Loss: | – | $0 | |
| (–) Exemption Loss: | – | $0 | |
| | | -------------------------- | |
| (=) Taxable Value: | = | $417,610 | |
Taxing Jurisdiction
| Owner: | LUCAS, JAMES J | | |
| % Ownership: | 100.0000000000% | | |
| Total Value: | $417,610 | | |
| Tax Area: | 100 - APPRAISER-OH Schl Dist, in OH |
| CF | Conservation Futures | 0.0316035091 | $417,610 | $417,610 | $13.20 | | |
| CEM1 | Cemetery #1 | 0.0040320932 | $417,610 | $417,610 | $1.68 | | |
| COH | City of Oak Harbor | 2.3001546061 | $417,610 | $417,610 | $960.57 | | |
| OAKBOND | City of Oak Harbor BOND | 0.1926904192 | $417,610 | $417,610 | $80.47 | | |
| HOBOND | Hospital BOND | 0.1910887512 | $417,610 | $417,610 | $79.80 | | |
| HOGEN | Hospital GEN | 0.3902502903 | $417,610 | $417,610 | $162.97 | | |
| CE | County Current Expense | 0.3708482477 | $417,610 | $417,610 | $154.87 | | |
| ISLANDEMS | Hospital GEN (EMS) | 0.5000000000 | $417,610 | $417,610 | $208.81 | | |
| LIB | Library Sno-Isle GEN | 0.3153421757 | $417,610 | $417,610 | $131.69 | | |
| NWHIDPRMT | P & R N Whidbey GEN | 0.2004466701 | $417,610 | $417,610 | $83.71 | | |
| SCH201MO | School 201 Enrichment | 1.8559231640 | $417,610 | $417,610 | $775.05 | | |
| ST | State School | 1.3035497053 | $417,610 | $417,610 | $544.38 | | |
| ST2 | State School Part 2 | 0.8169543533 | $417,610 | $417,610 | $341.17 | | |
| | Total Tax Rate: | 8.4728839852 | | | | | |
| | | | | Taxes w/Current Exemptions: | $3,538.37 | | |
| | | | | Taxes w/o Exemptions: | $3,538.37 | | |
Improvement / Building
| Improvement #1: | RESIDENTIAL | State Code: | Y | 1160.0 sqft | Value: | $207,610 |
| Bathrooms: | 2 | Bedrooms: | 3 | | Ceiling: | DRYWALL PAINTED | Exterior Wall/Cover: | PLY/HARDBOARD T-111 | | Floor Covering: | CARPET/VINYL 80-20 | Floor Structure: | WOOD W/SUBFLOOR | | Foundation: | CONCRETE | Heating: | FHA GAS | | Interior Finish: | DRYWALL PAINT | Plumbing Fixture Cnt: | 9 | | Roof Slope: | 4" IN 12" | Roof Structure/Cover: | CJ ASPHALT |
|
| | Type | Description | Class CD | Sub Class CD | Year Built | Area |
| | BAS | BASE/MAIN FLOOR | 3 | 0 | 1995 | 1160.0 |
| | OP1 | OPEN PORCH SLAB | 3 | 0 | 1995 | 32.0 |
| | OP1 | OPEN PORCH SLAB | 3 | 0 | 1995 | 96.0 |
| | AGR | ATTACHED GARAGE | 3 | 0 | 1995 | 440.0 |
| | OWP | OPEN WOOD PORCH W/STEPS | 3 | 0 | 1995 | 30.0 |
Sketch
Property Image
Land
| 1 | 13 | SQ (06001-08000) | 0.0000 | 0.00 | 0.00 | 0.00 | 1.00 | $210,000 | $0 |
Roll Value History
| 2026 | N/A | N/A | N/A | N/A | N/A |
| 2025 | $207,610 | $210,000 | $0 | $417,610 | $417,610 |
| 2024 | $210,369 | $190,000 | $0 | $400,369 | $400,369 |
| 2023 | $210,369 | $190,000 | $0 | $400,369 | $400,369 |
| 2022 | $192,987 | $160,000 | $0 | $352,987 | $352,987 |
| 2021 | $169,990 | $120,000 | $0 | $289,990 | $289,990 |
| 2020 | $165,382 | $100,000 | $0 | $265,382 | $265,382 |
| 2019 | $117,098 | $150,000 | $0 | $267,098 | $267,098 |
| 2018 | $117,464 | $130,000 | $0 | $247,464 | $247,464 |
| 2017 | $109,342 | $110,000 | $0 | $219,342 | $219,342 |
| 2016 | $110,727 | $90,000 | $0 | $200,727 | $200,727 |
| 2015 | $112,109 | $70,000 | $0 | $182,109 | $182,109 |
| 2014 | $113,493 | $55,000 | $0 | $168,493 | $168,493 |
| 2013 | $114,878 | $55,000 | $0 | $169,878 | $169,878 |
| 2012 | $116,260 | $65,000 | $0 | $181,260 | $181,260 |
| 2011 | $116,777 | $50,000 | $0 | $166,777 | $166,777 |
| 2010 | $122,147 | $50,000 | $0 | $172,147 | $172,147 |
| 2009 | $127,421 | $75,000 | $0 | $202,421 | $202,421 |
| 2008 | $128,986 | $90,000 | $0 | $218,986 | $218,986 |
| 2007 | $130,599 | $90,000 | $0 | $220,599 | $220,599 |
Deed and Sales History
| 1 | 03/01/1995 | WD | Warranty Deed | ISLAND, PACIFIC C | LUCAS, JAMES J | | | $133,500.00 | 50954 | 95004613 |
| 2 | 10/01/1994 | WD | Warranty Deed | MEADOWRIDGE, INC | ISLAND, PACIFIC C | | | $37,944.00 | 44343 | 94022405 |
| 3 | 01/01/1900 | OTHER | Other - Misc. Documents | Unknown | MEADOWRIDGE, INC | | | $0.00 | 40915 | 94006003 |
Payout Agreement
| No payout information available.. |