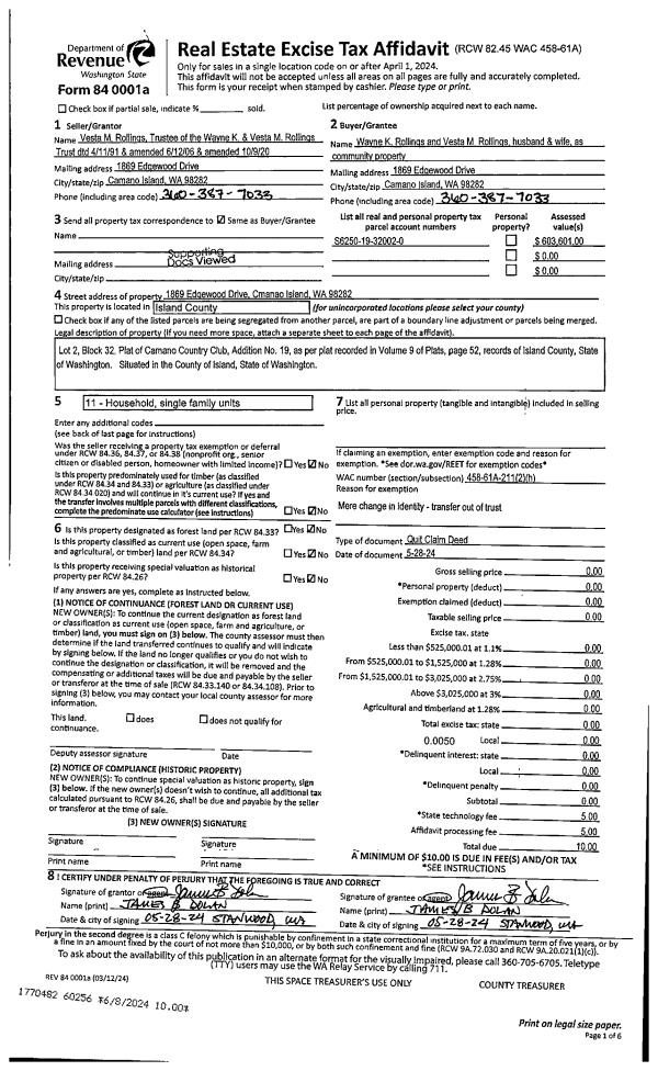
Property
Account |
| Property ID: | 701388 | Abbreviated Legal Description: | MEADOWRIDGE LOT 32 |
| Geographic ID: | S7499-00-00032-0 | Agent Code: | |
| Type: | Real | | |
| Tax Area: | 100 - APPRAISER-OH Schl Dist, in OH | Land Use Code | 11 |
| Open Space: | N | DFL | N |
| Historic Property: | N | Remodel Property: | N |
| Multi-Family Redevelopment: | N | | |
| Township: | | Section: | |
| Range: | |
Location |
| Address: | 994 NW PROW ST OAK HARBOR, WA 98277 | Mapsco: | |
| Neighborhood: | Cycle 1 | Map ID: | 254 |
| Neighborhood CD: | 1 |
Owner |
| Name: | REYES, SANTIAGO RAMIRO | Owner ID: | 298049 |
| Mailing Address: | FRANCISCA RODRIGUEZ-MARTINEZ 994 NW PROW ST OAK HARBOR, WA 98277 | % Ownership: | 100.0000000000% |
| | | Exemptions: | |
Taxes and Assessment Details
Values
| (+) Improvement Homesite Value: | + | $0 | |
| (+) Improvement Non-Homesite Value: | + | $202,246 | |
| (+) Land Homesite Value: | + | $0 | |
| (+) Land Non-Homesite Value: | + | $210,000 | |
| (+) Curr Use (HS): | + | $0 | $0 |
| (+) Curr Use (NHS): | + | $0 | $0 |
| | | -------------------------- | |
| (=) Market Value: | = | $412,246 | |
| (–) Productivity Loss: | – | $0 | |
| | | -------------------------- | |
| (=) Subtotal: | = | $412,246 | |
| (+) Senior Appraised Value: | + | $0 | |
| (+) Non-Senior Appraised Value: | + | $412,246 | |
| | | -------------------------- | |
| (=) Total Appraised Value: | = | $412,246 | |
| (–) Senior Exemption Loss: | – | $0 | |
| (–) Exemption Loss: | – | $0 | |
| | | -------------------------- | |
| (=) Taxable Value: | = | $412,246 | |
Taxing Jurisdiction
| Owner: | REYES, SANTIAGO RAMIRO | | |
| % Ownership: | 100.0000000000% | | |
| Total Value: | $412,246 | | |
| Tax Area: | 100 - APPRAISER-OH Schl Dist, in OH |
| CF | Conservation Futures | 0.0316035091 | $412,246 | $412,246 | $13.03 | | |
| CEM1 | Cemetery #1 | 0.0040320932 | $412,246 | $412,246 | $1.66 | | |
| COH | City of Oak Harbor | 2.3001546061 | $412,246 | $412,246 | $948.23 | | |
| OAKBOND | City of Oak Harbor BOND | 0.1926904192 | $412,246 | $412,246 | $79.44 | | |
| HOBOND | Hospital BOND | 0.1910887512 | $412,246 | $412,246 | $78.78 | | |
| HOGEN | Hospital GEN | 0.3902502903 | $412,246 | $412,246 | $160.88 | | |
| CE | County Current Expense | 0.3708482477 | $412,246 | $412,246 | $152.88 | | |
| ISLANDEMS | Hospital GEN (EMS) | 0.5000000000 | $412,246 | $412,246 | $206.12 | | |
| LIB | Library Sno-Isle GEN | 0.3153421757 | $412,246 | $412,246 | $130.00 | | |
| NWHIDPRMT | P & R N Whidbey GEN | 0.2004466701 | $412,246 | $412,246 | $82.63 | | |
| SCH201MO | School 201 Enrichment | 1.8559231640 | $412,246 | $412,246 | $765.10 | | |
| ST | State School | 1.3035497053 | $412,246 | $412,246 | $537.38 | | |
| ST2 | State School Part 2 | 0.8169543533 | $412,246 | $412,246 | $336.79 | | |
| | Total Tax Rate: | 8.4728839852 | | | | | |
| | | | | Taxes w/Current Exemptions: | $3,492.92 | | |
| | | | | Taxes w/o Exemptions: | $3,492.92 | | |
Improvement / Building
| Improvement #1: | RESIDENTIAL | State Code: | Y | 1080.0 sqft | Value: | $202,246 |
| Bathrooms: | 2 | Bedrooms: | 3 | | Ceiling: | DRYWALL PAINTED | Exterior Wall/Cover: | CEMENT FIBER | | Floor Covering: | CARPET/VINYL 80-20 | Floor Structure: | WOOD W/SUBFLOOR | | Foundation: | CONCRETE | Heating: | WALL HEAT ELECTRIC | | Interior Finish: | DRYWALL PAINT | Plumbing Fixture Cnt: | 9 | | Roof Slope: | 5" IN 12" | Roof Structure/Cover: | CJ ASPHALT |
|
| | Type | Description | Class CD | Sub Class CD | Year Built | Area |
| | BAS | BASE/MAIN FLOOR | 3 | 0 | 1995 | 1080.0 |
| | AGR | ATTACHED GARAGE | 3 | 0 | 1995 | 308.0 |
| | OWP | OPEN WOOD PORCH W/STEPS | 3 | 0 | 1995 | 85.0 |
| | OWC | OPEN WOOD PORCH W/STEPS/ROOF/C | 3 | 0 | 1995 | 42.0 |
Sketch
Property Image
Land
| 1 | 13 | SQ (06001-08000) | 0.0000 | 0.00 | 0.00 | 0.00 | 1.00 | $210,000 | $0 |
Roll Value History
| 2026 | N/A | N/A | N/A | N/A | N/A |
| 2025 | $202,246 | $210,000 | $0 | $412,246 | $412,246 |
| 2024 | $204,797 | $190,000 | $0 | $394,797 | $394,797 |
| 2023 | $207,349 | $190,000 | $0 | $397,349 | $397,349 |
| 2022 | $190,073 | $160,000 | $0 | $350,073 | $350,073 |
| 2021 | $167,289 | $120,000 | $0 | $287,289 | $287,289 |
| 2020 | $162,475 | $100,000 | $0 | $262,475 | $262,475 |
| 2019 | $114,358 | $150,000 | $0 | $264,358 | $264,358 |
| 2018 | $114,693 | $130,000 | $0 | $244,693 | $244,693 |
| 2017 | $113,177 | $110,000 | $0 | $223,177 | $223,177 |
| 2016 | $107,291 | $90,000 | $0 | $197,291 | $197,291 |
| 2015 | $108,633 | $70,000 | $0 | $178,633 | $178,633 |
| 2014 | $109,974 | $55,000 | $0 | $164,974 | $164,974 |
| 2013 | $111,315 | $55,000 | $0 | $166,315 | $166,315 |
| 2012 | $112,656 | $65,000 | $0 | $177,656 | $177,656 |
| 2011 | $113,155 | $50,000 | $0 | $163,155 | $163,155 |
| 2010 | $114,894 | $50,000 | $0 | $164,894 | $164,894 |
| 2009 | $119,807 | $75,000 | $0 | $194,807 | $194,807 |
| 2008 | $121,181 | $90,000 | $0 | $211,181 | $211,181 |
| 2007 | $122,555 | $90,000 | $0 | $212,555 | $212,555 |
Deed and Sales History
| 1 | 09/10/2020 | WD | Warranty Deed | HOPSON, CHRISTOPHER R | REYES, SANTIAGO RAMIRO | | | $325,000.00 | 44714 | 4496346 |
| 2 | 08/02/2018 | QCD | Quit Claim Deed | HOPSON, CHRISTOPHER R | HOPSON, CHRISTOPHER R | | | $0.00 | 35371 | 4449578 |
| 3 | 02/01/2017 | WD | Warranty Deed | CASH, MICHAEL W | HOPSON, CHRISTOPHER R | | | $249,000.00 | 28023 | 4416766 |
| 4 | 04/23/2012 | ESTSEPPROP | Establish Separate Property | CASH, MICHAEL W | CASH, MICHAEL W | | | $0.00 | 7512 | 4314397 |
| 5 | 06/20/2007 | WD | Warranty Deed | HOPKINS, BRETT J | CASH, MICHAEL W | | | $220,000.00 | 72039 | 4205058 |
| 6 | 02/18/2003 | WD | Warranty Deed | MCCOMB, SARAH J | HOPKINS, BRETT J | | | $139,500.00 | 30666 | 4048326 |
| 7 | 05/07/2001 | WD | Warranty Deed | MORGAN, NATALIE M | MCCOMB, SARAH J | | | $124,900.00 | 11689 | 20032353 |
| 8 | 06/01/1996 | OTHER | Other - Misc. Documents | JURAS, NATALIE M | MORGAN, NATALIE M | | | $0.00 | 66985 | 95012922 |
| 9 | 05/01/1995 | WD | Warranty Deed | MEADOWRIDGE, INC | JURAS, NATALIE M | | | $38,000.00 | 51824 | 95008532 |
| 10 | 01/01/1900 | OTHER | Other - Misc. Documents | Unknown | MEADOWRIDGE, INC | | | $0.00 | 40915 | 94006003 |
Payout Agreement
| No payout information available.. |