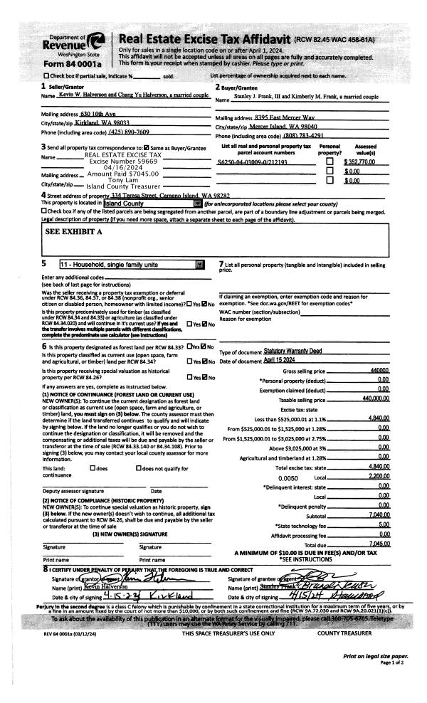
Property
Account |
| Property ID: | 701529 | Abbreviated Legal Description: | MEADOWRIDGE LOT 46 |
| Geographic ID: | S7499-00-00046-0 | Agent Code: | |
| Type: | Real | | |
| Tax Area: | 100 - APPRAISER-OH Schl Dist, in OH | Land Use Code | 11 |
| Open Space: | N | DFL | N |
| Historic Property: | N | Remodel Property: | N |
| Multi-Family Redevelopment: | N | | |
| Township: | | Section: | |
| Range: | |
Location |
| Address: | 1552 NW 8TH AVE OAK HARBOR, WA 98277 | Mapsco: | |
| Neighborhood: | Cycle 1 | Map ID: | 254 |
| Neighborhood CD: | 1 |
Owner |
| Name: | ROSEMIER, DANIEL F | Owner ID: | 295234 |
| Mailing Address: | TABITA R ROSEMIER 1552 NW 8TH AVE OAK HARBOR, WA 98277 | % Ownership: | 100.0000000000% |
| | | Exemptions: | |
Taxes and Assessment Details
Values
| (+) Improvement Homesite Value: | + | $0 | |
| (+) Improvement Non-Homesite Value: | + | $274,350 | |
| (+) Land Homesite Value: | + | $0 | |
| (+) Land Non-Homesite Value: | + | $210,000 | |
| (+) Curr Use (HS): | + | $0 | $0 |
| (+) Curr Use (NHS): | + | $0 | $0 |
| | | -------------------------- | |
| (=) Market Value: | = | $484,350 | |
| (–) Productivity Loss: | – | $0 | |
| | | -------------------------- | |
| (=) Subtotal: | = | $484,350 | |
| (+) Senior Appraised Value: | + | $0 | |
| (+) Non-Senior Appraised Value: | + | $484,350 | |
| | | -------------------------- | |
| (=) Total Appraised Value: | = | $484,350 | |
| (–) Senior Exemption Loss: | – | $0 | |
| (–) Exemption Loss: | – | $0 | |
| | | -------------------------- | |
| (=) Taxable Value: | = | $484,350 | |
Taxing Jurisdiction
| Owner: | ROSEMIER, DANIEL F | | |
| % Ownership: | 100.0000000000% | | |
| Total Value: | $484,350 | | |
| Tax Area: | 100 - APPRAISER-OH Schl Dist, in OH |
| CF | Conservation Futures | 0.0316035091 | $484,350 | $484,350 | $15.31 | | |
| CEM1 | Cemetery #1 | 0.0040320932 | $484,350 | $484,350 | $1.95 | | |
| COH | City of Oak Harbor | 2.3001546061 | $484,350 | $484,350 | $1,114.08 | | |
| OAKBOND | City of Oak Harbor BOND | 0.1926904192 | $484,350 | $484,350 | $93.33 | | |
| HOBOND | Hospital BOND | 0.1910887512 | $484,350 | $484,350 | $92.55 | | |
| HOGEN | Hospital GEN | 0.3902502903 | $484,350 | $484,350 | $189.02 | | |
| CE | County Current Expense | 0.3708482477 | $484,350 | $484,350 | $179.62 | | |
| ISLANDEMS | Hospital GEN (EMS) | 0.5000000000 | $484,350 | $484,350 | $242.18 | | |
| LIB | Library Sno-Isle GEN | 0.3153421757 | $484,350 | $484,350 | $152.74 | | |
| NWHIDPRMT | P & R N Whidbey GEN | 0.2004466701 | $484,350 | $484,350 | $97.09 | | |
| SCH201MO | School 201 Enrichment | 1.8559231640 | $484,350 | $484,350 | $898.92 | | |
| ST | State School | 1.3035497053 | $484,350 | $484,350 | $631.37 | | |
| ST2 | State School Part 2 | 0.8169543533 | $484,350 | $484,350 | $395.69 | | |
| | Total Tax Rate: | 8.4728839852 | | | | | |
| | | | | Taxes w/Current Exemptions: | $4,103.85 | | |
| | | | | Taxes w/o Exemptions: | $4,103.85 | | |
Improvement / Building
| Improvement #1: | RESIDENTIAL | State Code: | Y | 1618.7 sqft | Value: | $274,350 |
| Bathrooms: | 2 | Bedrooms: | 3 | | Ceiling: | DRYWALL PAINTED | Exterior Wall/Cover: | PLY/HARDBOARD T-111 | | Floor Covering: | CARPET/VINYL 80-20 | Floor Structure: | WOOD W/SUBFLOOR | | Foundation: | CONCRETE | Heating: | FHA GAS | | Interior Finish: | DRYWALL PAINT | Plumbing Fixture Cnt: | 9 | | Roof Slope: | 5" IN 12" | Roof Structure/Cover: | CJ ASPHALT |
|
| | Type | Description | Class CD | Sub Class CD | Year Built | Area |
| | BAS | BASE/MAIN FLOOR | 3 | 0 | 1995 | 1618.7 |
| | OP1 | OPEN PORCH SLAB | 3 | 0 | 1995 | 528.0 |
| | OP4 | OPEN PORCH W/CEILING-ROOF | 3 | 0 | 1995 | 115.5 |
| | AGR | ATTACHED GARAGE | 3 | 0 | 1995 | 480.0 |
Sketch
Property Image
Land
| 1 | 13 | SQ (06001-08000) | 0.0000 | 0.00 | 0.00 | 0.00 | 1.00 | $210,000 | $0 |
Roll Value History
| 2026 | N/A | N/A | N/A | N/A | N/A |
| 2025 | $274,350 | $210,000 | $0 | $484,350 | $484,350 |
| 2024 | $277,727 | $190,000 | $0 | $467,727 | $467,727 |
| 2023 | $281,103 | $190,000 | $0 | $471,103 | $471,103 |
| 2022 | $257,593 | $160,000 | $0 | $417,593 | $417,593 |
| 2021 | $226,651 | $120,000 | $0 | $346,651 | $346,651 |
| 2020 | $210,616 | $100,000 | $0 | $310,616 | $310,616 |
| 2019 | $154,196 | $150,000 | $0 | $304,196 | $304,196 |
| 2018 | $154,660 | $130,000 | $0 | $284,660 | $284,660 |
| 2017 | $149,269 | $110,000 | $0 | $259,269 | $259,269 |
| 2016 | $151,113 | $90,000 | $0 | $241,113 | $241,113 |
| 2015 | $152,956 | $70,000 | $0 | $222,956 | $222,956 |
| 2014 | $154,799 | $55,000 | $0 | $209,799 | $209,799 |
| 2013 | $156,642 | $55,000 | $0 | $211,642 | $211,642 |
| 2012 | $158,485 | $65,000 | $0 | $223,485 | $223,485 |
| 2011 | $169,156 | $50,000 | $0 | $219,156 | $219,156 |
| 2010 | $175,769 | $50,000 | $0 | $225,769 | $225,769 |
| 2009 | $183,467 | $75,000 | $0 | $258,467 | $258,467 |
| 2008 | $186,057 | $90,000 | $0 | $276,057 | $276,057 |
| 2007 | $188,633 | $90,000 | $0 | $278,633 | $278,633 |
Deed and Sales History
| 1 | 07/16/2020 | WD | Warranty Deed | GALGANA, ENRIQUE F / ANGELINE | ROSEMIER, DANIEL F | | | $335,000.00 | 43851 | 4491522 |
| 2 | 03/01/1995 | WD | Warranty Deed | STOREY, JERRY E | GALGANA, ENRIQUE F | | | $139,000.00 | 51065 | 95005042 |
| 3 | 09/01/1994 | WD | Warranty Deed | MEADOWRIDGE, INC | STOREY, JERRY E | | | $39,000.00 | 43806 | 94019784 |
| 4 | 01/01/1900 | OTHER | Other - Misc. Documents | Unknown | MEADOWRIDGE, INC | | | $0.00 | 40915 | 94006003 |
Payout Agreement
| No payout information available.. |