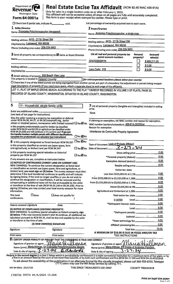
Property
Account |
| Property ID: | 701547 | Abbreviated Legal Description: | MEADOWRIDGE LOT 48 |
| Geographic ID: | S7499-00-00048-0 | Agent Code: | |
| Type: | Real | | |
| Tax Area: | 100 - APPRAISER-OH Schl Dist, in OH | Land Use Code | 11 |
| Open Space: | N | DFL | N |
| Historic Property: | N | Remodel Property: | N |
| Multi-Family Redevelopment: | N | | |
| Township: | | Section: | |
| Range: | |
Location |
| Address: | 1476 NW 8TH AVE OAK HARBOR, WA 98277 | Mapsco: | |
| Neighborhood: | Cycle 1 | Map ID: | 254 |
| Neighborhood CD: | 1 |
Owner |
| Name: | BOLO, RENATO M & EVALINDA | Owner ID: | 77939 |
| Mailing Address: | 1476 NW 8TH AVE OAK HARBOR, WA 98277-8936 | % Ownership: | 100.0000000000% |
| | | Exemptions: | |
Taxes and Assessment Details
Values
| (+) Improvement Homesite Value: | + | $0 | |
| (+) Improvement Non-Homesite Value: | + | $226,952 | |
| (+) Land Homesite Value: | + | $0 | |
| (+) Land Non-Homesite Value: | + | $210,000 | |
| (+) Curr Use (HS): | + | $0 | $0 |
| (+) Curr Use (NHS): | + | $0 | $0 |
| | | -------------------------- | |
| (=) Market Value: | = | $436,952 | |
| (–) Productivity Loss: | – | $0 | |
| | | -------------------------- | |
| (=) Subtotal: | = | $436,952 | |
| (+) Senior Appraised Value: | + | $0 | |
| (+) Non-Senior Appraised Value: | + | $436,952 | |
| | | -------------------------- | |
| (=) Total Appraised Value: | = | $436,952 | |
| (–) Senior Exemption Loss: | – | $0 | |
| (–) Exemption Loss: | – | $0 | |
| | | -------------------------- | |
| (=) Taxable Value: | = | $436,952 | |
Taxing Jurisdiction
| Owner: | BOLO, RENATO M & EVALINDA | | |
| % Ownership: | 100.0000000000% | | |
| Total Value: | $436,952 | | |
| Tax Area: | 100 - APPRAISER-OH Schl Dist, in OH |
| CF | Conservation Futures | 0.0316035091 | $436,952 | $436,952 | $13.81 | | |
| CEM1 | Cemetery #1 | 0.0040320932 | $436,952 | $436,952 | $1.76 | | |
| COH | City of Oak Harbor | 2.3001546061 | $436,952 | $436,952 | $1,005.06 | | |
| OAKBOND | City of Oak Harbor BOND | 0.1926904192 | $436,952 | $436,952 | $84.20 | | |
| HOBOND | Hospital BOND | 0.1910887512 | $436,952 | $436,952 | $83.50 | | |
| HOGEN | Hospital GEN | 0.3902502903 | $436,952 | $436,952 | $170.52 | | |
| CE | County Current Expense | 0.3708482477 | $436,952 | $436,952 | $162.04 | | |
| ISLANDEMS | Hospital GEN (EMS) | 0.5000000000 | $436,952 | $436,952 | $218.48 | | |
| LIB | Library Sno-Isle GEN | 0.3153421757 | $436,952 | $436,952 | $137.79 | | |
| NWHIDPRMT | P & R N Whidbey GEN | 0.2004466701 | $436,952 | $436,952 | $87.59 | | |
| SCH201MO | School 201 Enrichment | 1.8559231640 | $436,952 | $436,952 | $810.95 | | |
| ST | State School | 1.3035497053 | $436,952 | $436,952 | $569.59 | | |
| ST2 | State School Part 2 | 0.8169543533 | $436,952 | $436,952 | $356.97 | | |
| | Total Tax Rate: | 8.4728839852 | | | | | |
| | | | | Taxes w/Current Exemptions: | $3,702.26 | | |
| | | | | Taxes w/o Exemptions: | $3,702.26 | | |
Improvement / Building
| Improvement #1: | RESIDENTIAL | State Code: | Y | 1197.8 sqft | Value: | $226,952 |
| Bathrooms: | 2 | Bedrooms: | 3 | | Ceiling: | DRYWALL PAINTED | Exterior Wall/Cover: | PLY/HARDBOARD T-111 | | Floor Covering: | CARPET/VINYL 80-20 | Floor Structure: | WOOD W/SUBFLOOR | | Foundation: | CONCRETE | Heating: | FHA GAS | | Interior Finish: | DRYWALL PAINT | Plumbing Fixture Cnt: | 9 | | Roof Slope: | 4" IN 12" | Roof Structure/Cover: | CJ ASPHALT |
|
| | Type | Description | Class CD | Sub Class CD | Year Built | Area |
| | BAS | BASE/MAIN FLOOR | 3 | 0 | 1995 | 1197.8 |
| | OP3 | OPEN PORCH W/ROOF | 3 | 0 | 1995 | 12.0 |
| | OP1 | OPEN PORCH SLAB | 3 | 0 | 1995 | 120.0 |
| | AGR | ATTACHED GARAGE | 3 | 0 | 1995 | 546.0 |
Sketch
Property Image
Land
| 1 | 13 | SQ (06001-08000) | 0.0000 | 0.00 | 0.00 | 0.00 | 1.00 | $210,000 | $0 |
Roll Value History
| 2026 | N/A | N/A | N/A | N/A | N/A |
| 2025 | $226,952 | $210,000 | $0 | $436,952 | $436,952 |
| 2024 | $229,816 | $190,000 | $0 | $419,816 | $419,816 |
| 2023 | $226,952 | $190,000 | $0 | $416,952 | $416,952 |
| 2022 | $208,095 | $160,000 | $0 | $368,095 | $368,095 |
| 2021 | $183,213 | $120,000 | $0 | $303,213 | $303,213 |
| 2020 | $178,189 | $100,000 | $0 | $278,189 | $278,189 |
| 2019 | $126,324 | $150,000 | $0 | $276,324 | $276,324 |
| 2018 | $126,704 | $130,000 | $0 | $256,704 | $256,704 |
| 2017 | $119,291 | $110,000 | $0 | $229,291 | $229,291 |
| 2016 | $120,763 | $90,000 | $0 | $210,763 | $210,763 |
| 2015 | $122,236 | $70,000 | $0 | $192,236 | $192,236 |
| 2014 | $123,709 | $55,000 | $0 | $178,709 | $178,709 |
| 2013 | $125,181 | $55,000 | $0 | $180,181 | $180,181 |
| 2012 | $126,654 | $65,000 | $0 | $191,654 | $191,654 |
| 2011 | $127,390 | $50,000 | $0 | $177,390 | $177,390 |
| 2010 | $133,182 | $50,000 | $0 | $183,182 | $183,182 |
| 2009 | $139,005 | $75,000 | $0 | $214,005 | $214,005 |
| 2008 | $140,788 | $90,000 | $0 | $230,788 | $230,788 |
| 2007 | $142,570 | $90,000 | $0 | $232,570 | $232,570 |
Deed and Sales History
| 1 | 08/01/1995 | WD | Warranty Deed | ISLAND, PACIFIC C | BOLO, RENATO M | | | $134,500.00 | 53036 | 95014066 |
| 2 | 04/01/1995 | WD | Warranty Deed | MEADOWRIDGE, INC | ISLAND, PACIFIC C | | | $41,143.00 | 51397 | 95006544 |
| 3 | 01/01/1900 | OTHER | Other - Misc. Documents | Unknown | MEADOWRIDGE, INC | | | $0.00 | 40915 | 94006003 |
Payout Agreement
| No payout information available.. |