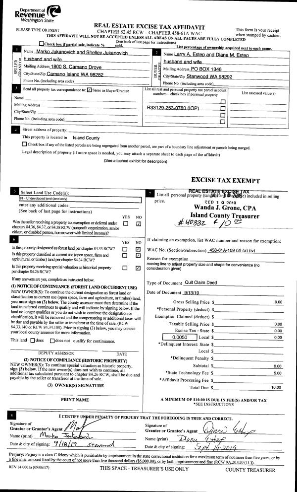
Property
Account |
| Property ID: | 701636 | Abbreviated Legal Description: | VESEL COURT PRD LOT 8 |
| Geographic ID: | S8362-00-00008-0 | Agent Code: | |
| Type: | Real | | |
| Tax Area: | 760 - APPRAISER-S Whid Schl Dist, Special District, improved & less than 1 acre | Land Use Code | 11 |
| Open Space: | N | DFL | N |
| Historic Property: | N | Remodel Property: | N |
| Multi-Family Redevelopment: | N | | |
| Township: | | Section: | |
| Range: | |
Location |
| Address: | 5572 VESEL CT FREELAND, WA 98249 | Mapsco: | |
| Neighborhood: | Cycle 3 | Map ID: | 309 |
| Neighborhood CD: | 3 |
Owner |
| Name: | DEMARTINI, NAOMI | Owner ID: | 194029 |
| Mailing Address: | 5572 VESEL CT FREELAND, WA 98249-9786 | % Ownership: | 100.0000000000% |
| | | Exemptions: | |
Taxes and Assessment Details
Values
| (+) Improvement Homesite Value: | + | $0 | |
| (+) Improvement Non-Homesite Value: | + | $183,993 | |
| (+) Land Homesite Value: | + | $0 | |
| (+) Land Non-Homesite Value: | + | $250,000 | |
| (+) Curr Use (HS): | + | $0 | $0 |
| (+) Curr Use (NHS): | + | $0 | $0 |
| | | -------------------------- | |
| (=) Market Value: | = | $433,993 | |
| (–) Productivity Loss: | – | $0 | |
| | | -------------------------- | |
| (=) Subtotal: | = | $433,993 | |
| (+) Senior Appraised Value: | + | $0 | |
| (+) Non-Senior Appraised Value: | + | $433,993 | |
| | | -------------------------- | |
| (=) Total Appraised Value: | = | $433,993 | |
| (–) Senior Exemption Loss: | – | $0 | |
| (–) Exemption Loss: | – | $0 | |
| | | -------------------------- | |
| (=) Taxable Value: | = | $433,993 | |
Taxing Jurisdiction
| Owner: | DEMARTINI, NAOMI | | |
| % Ownership: | 100.0000000000% | | |
| Total Value: | $433,993 | | |
| Tax Area: | 760 - APPRAISER-S Whid Schl Dist, Special District, improved & less than 1 acre |
| CF | Conservation Futures | 0.0316035091 | $433,993 | $433,993 | $13.72 | | |
| FIRE3 | Fire & Rescue Dist #3 S Whidbey GEN | 1.2004855531 | $433,993 | $433,993 | $521.00 | | |
| HOBOND | Hospital BOND | 0.1910887512 | $433,993 | $433,993 | $82.93 | | |
| HOGEN | Hospital GEN | 0.3902502903 | $433,993 | $433,993 | $169.37 | | |
| CE | County Current Expense | 0.3708482477 | $433,993 | $433,993 | $160.95 | | |
| CR | County Roads | 0.4584763726 | $433,993 | $433,993 | $198.98 | | |
| ISLANDEMS | Hospital GEN (EMS) | 0.5000000000 | $433,993 | $433,993 | $217.00 | | |
| LIB | Library Sno-Isle GEN | 0.3153421757 | $433,993 | $433,993 | $136.86 | | |
| PORTWHID | Port of S Whidbey GEN | 0.1094540357 | $433,993 | $433,993 | $47.50 | | |
| SCH206BOND | School 206 BOND | 0.3161759235 | $433,993 | $433,993 | $137.22 | | |
| SCH206MO | School 206 Enrichment | 0.4547169547 | $433,993 | $433,993 | $197.34 | | |
| ST | State School | 1.3035497053 | $433,993 | $433,993 | $565.73 | | |
| ST2 | State School Part 2 | 0.8169543533 | $433,993 | $433,993 | $354.55 | | |
| SWHIDPRBD | P & R S Whidbey BOND | 0.0152817568 | $433,993 | $433,993 | $6.63 | | |
| SWHIDPRBD2 | P & R S Whidbey BOND2 | 0.0138911264 | $433,993 | $433,993 | $6.03 | | |
| SWHIDPRMT | P & R S Whidbey GEN | 0.2053334452 | $433,993 | $433,993 | $89.11 | | |
| | Total Tax Rate: | 6.6934522006 | | | | | |
| | | | | Taxes w/Current Exemptions: | $2,904.92 | | |
| | | | | Taxes w/o Exemptions: | $2,904.92 | | |
Improvement / Building
| Improvement #1: | RESIDENTIAL | State Code: | Y | 1056.0 sqft | Value: | $183,993 |
| Bathrooms: | 1 | Bedrooms: | 3 | | Ceiling: | DRYWALL PAINTED | Exterior Wall/Cover: | CEMENT FIBER | | Floor Covering: | CARPET/VINYL 80-20 | Floor Structure: | WOOD W/SUBFLOOR | | Foundation: | CONCRETE | Heating: | WALL HEAT ELECTRIC | | Interior Finish: | DRYWALL PAINT | Plumbing Fixture Cnt: | 6 | | Roof Slope: | 6" IN 12" | Roof Structure/Cover: | CJ ASPHALT |
|
| | Type | Description | Class CD | Sub Class CD | Year Built | Area |
| | BAS | BASE/MAIN FLOOR | 3 | 0 | 2006 | 1056.0 |
| | OWP | OPEN WOOD PORCH W/STEPS | 3 | 0 | 2006 | 32.0 |
| | OWC | OPEN WOOD PORCH W/STEPS/ROOF/C | 3 | 0 | 2006 | 84.0 |
Sketch
Property Image
Land
| 1 | 14 | SQ (08001-12000) | 0.0000 | 0.00 | 0.00 | 0.00 | 1.00 | $250,000 | $0 |
Roll Value History
| 2026 | N/A | N/A | N/A | N/A | N/A |
| 2025 | $183,993 | $250,000 | $0 | $433,993 | $433,993 |
| 2024 | $186,152 | $230,000 | $0 | $416,152 | $416,152 |
| 2023 | $188,309 | $230,000 | $0 | $418,309 | $418,309 |
| 2022 | $172,473 | $210,000 | $0 | $382,473 | $382,473 |
| 2021 | $151,673 | $140,000 | $0 | $291,673 | $291,673 |
| 2020 | $147,274 | $115,000 | $0 | $262,274 | $262,274 |
| 2019 | $103,772 | $170,000 | $0 | $273,772 | $273,772 |
| 2018 | $104,062 | $130,000 | $0 | $234,062 | $234,062 |
| 2017 | $104,643 | $120,000 | $0 | $224,643 | $224,643 |
| 2016 | $105,806 | $90,000 | $0 | $195,806 | $195,806 |
| 2015 | $106,968 | $80,000 | $0 | $186,968 | $186,968 |
| 2014 | $108,131 | $80,000 | $0 | $188,131 | $188,131 |
| 2013 | $109,343 | $80,000 | $0 | $189,343 | $189,343 |
| 2012 | $110,507 | $85,000 | $0 | $195,507 | $195,507 |
| 2011 | $111,671 | $100,000 | $0 | $211,671 | $211,671 |
| 2010 | $113,373 | $100,000 | $0 | $213,373 | $213,373 |
| 2009 | $118,039 | $100,000 | $0 | $218,039 | $218,039 |
| 2008 | $119,343 | $84,000 | $0 | $203,343 | $203,343 |
| 2007 | $117,464 | $84,000 | $0 | $201,464 | $201,464 |
Deed and Sales History
| 1 | 12/21/2006 | WD | Warranty Deed | HABITAT FOR HUMANITY OF ISLAND | DEMARTINI, NAOMI | | | $238,000.00 | 65285 | 4189740 |
| 2 | 01/03/2006 | WD | Warranty Deed | KOLLMORGEN, LORAN L | HABITAT FOR HUMANITY OF ISLAND | | | $47,500.00 | 60066 | 4159049 |
| 3 | 01/01/1997 | WD | Warranty Deed | HOUSING, AUTHORITY O | KOLLMORGEN, LORAN L | | | $31,900.00 | 70186 | 97000720 |
| 4 | 11/01/1994 | WD | Warranty Deed | AKINS, JOHN P | HOUSING, AUTHORITY O | | | $28,000.00 | 44777 | 94024476 |
| 5 | 01/01/1900 | OTHER | Other - Misc. Documents | Unknown | KOLLMORGEN, LORAN L | | | $0.00 | 0 | 0 |
| 6 | 01/01/1900 | OTHER | Other - Misc. Documents | Unknown | AKINS, JOHN P | | | $0.00 | 30061 | 93000341 |
Payout Agreement
| No payout information available.. |