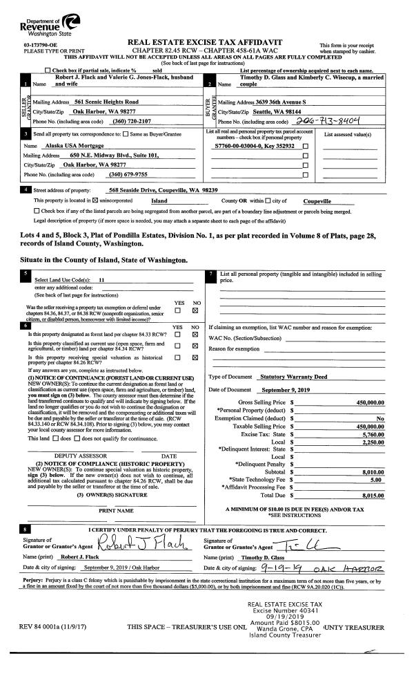
Property
Account |
| Property ID: | 701725 | Abbreviated Legal Description: | VESEL COURT PRD LOT 17 |
| Geographic ID: | S8362-00-00017-0 | Agent Code: | |
| Type: | Real | | |
| Tax Area: | 760 - APPRAISER-S Whid Schl Dist, Special District, improved & less than 1 acre | Land Use Code | 11 |
| Open Space: | N | DFL | N |
| Historic Property: | N | Remodel Property: | N |
| Multi-Family Redevelopment: | N | | |
| Township: | | Section: | |
| Range: | |
Location |
| Address: | 5549 VESEL CT FREELAND, WA 98249 | Mapsco: | |
| Neighborhood: | Cycle 3 | Map ID: | 309 |
| Neighborhood CD: | 3 |
Owner |
| Name: | HUNT, DUANE RICHARD | Owner ID: | 278207 |
| Mailing Address: | KAREN BERNICE HUNT 5549 VESEL COURT FREELAND, WA 98249 | % Ownership: | 100.0000000000% |
| | | Exemptions: | |
Taxes and Assessment Details
Values
| (+) Improvement Homesite Value: | + | $0 | |
| (+) Improvement Non-Homesite Value: | + | $89,547 | |
| (+) Land Homesite Value: | + | $0 | |
| (+) Land Non-Homesite Value: | + | $250,000 | |
| (+) Curr Use (HS): | + | $0 | $0 |
| (+) Curr Use (NHS): | + | $0 | $0 |
| | | -------------------------- | |
| (=) Market Value: | = | $339,547 | |
| (–) Productivity Loss: | – | $0 | |
| | | -------------------------- | |
| (=) Subtotal: | = | $339,547 | |
| (+) Senior Appraised Value: | + | $0 | |
| (+) Non-Senior Appraised Value: | + | $339,547 | |
| | | -------------------------- | |
| (=) Total Appraised Value: | = | $339,547 | |
| (–) Senior Exemption Loss: | – | $0 | |
| (–) Exemption Loss: | – | $0 | |
| | | -------------------------- | |
| (=) Taxable Value: | = | $339,547 | |
Taxing Jurisdiction
| Owner: | HUNT, DUANE RICHARD | | |
| % Ownership: | 100.0000000000% | | |
| Total Value: | $339,547 | | |
| Tax Area: | 760 - APPRAISER-S Whid Schl Dist, Special District, improved & less than 1 acre |
| CF | Conservation Futures | 0.0316035091 | $339,547 | $339,547 | $10.73 | | |
| FIRE3 | Fire & Rescue Dist #3 S Whidbey GEN | 1.2004855531 | $339,547 | $339,547 | $407.62 | | |
| HOBOND | Hospital BOND | 0.1910887512 | $339,547 | $339,547 | $64.88 | | |
| HOGEN | Hospital GEN | 0.3902502903 | $339,547 | $339,547 | $132.51 | | |
| CE | County Current Expense | 0.3708482477 | $339,547 | $339,547 | $125.92 | | |
| CR | County Roads | 0.4584763726 | $339,547 | $339,547 | $155.67 | | |
| ISLANDEMS | Hospital GEN (EMS) | 0.5000000000 | $339,547 | $339,547 | $169.77 | | |
| LIB | Library Sno-Isle GEN | 0.3153421757 | $339,547 | $339,547 | $107.07 | | |
| PORTWHID | Port of S Whidbey GEN | 0.1094540357 | $339,547 | $339,547 | $37.16 | | |
| SCH206BOND | School 206 BOND | 0.3161759235 | $339,547 | $339,547 | $107.36 | | |
| SCH206MO | School 206 Enrichment | 0.4547169547 | $339,547 | $339,547 | $154.40 | | |
| ST | State School | 1.3035497053 | $339,547 | $339,547 | $442.62 | | |
| ST2 | State School Part 2 | 0.8169543533 | $339,547 | $339,547 | $277.39 | | |
| SWHIDPRBD | P & R S Whidbey BOND | 0.0152817568 | $339,547 | $339,547 | $5.19 | | |
| SWHIDPRBD2 | P & R S Whidbey BOND2 | 0.0138911264 | $339,547 | $339,547 | $4.72 | | |
| SWHIDPRMT | P & R S Whidbey GEN | 0.2053334452 | $339,547 | $339,547 | $69.72 | | |
| | Total Tax Rate: | 6.6934522006 | | | | | |
| | | | | Taxes w/Current Exemptions: | $2,272.73 | | |
| | | | | Taxes w/o Exemptions: | $2,272.73 | | |
Improvement / Building
| Improvement #1: | MANUFACTURED HOME | State Code: | Y | 1344.0 sqft | Value: | $89,547 |
| Bathrooms: | 0 | Bedrooms: | 0 | | Ceiling: | PLASTER PAINTED | Cooling: | EVAP NO DUCT | | Exterior Wall/Cover: | VINYL | Floor Covering: | CARPET 100% | | Floor Structure: | SLAB ON GRADE | Foundation: | SLAB | | Heating: | FHA ELECTRIC | Interior Finish: | PLASTER | | Plumbing Fixture Cnt: | 1 | Roof Slope: | FLAT | | Roof Structure/Cover: | CJ ALUMINIUM HEAVY |   |   |
|
| | Type | Description | Class CD | Sub Class CD | Year Built | Area |
| | BAS | BASE/MAIN FLOOR | 3 | 0 | 1996 | 1344.0 |
| | DGR | DETACHED GARAGE | 3 | 0 | 1996 | 360.0 |
Sketch
Property Image
Land
| 1 | 14 | SQ (08001-12000) | 0.0000 | 0.00 | 0.00 | 0.00 | 1.00 | $250,000 | $0 |
Roll Value History
| 2026 | N/A | N/A | N/A | N/A | N/A |
| 2025 | $89,547 | $250,000 | $0 | $339,547 | $339,547 |
| 2024 | $92,345 | $230,000 | $0 | $322,345 | $322,345 |
| 2023 | $95,143 | $230,000 | $0 | $325,143 | $325,143 |
| 2022 | $88,686 | $210,000 | $0 | $298,686 | $298,686 |
| 2021 | $79,314 | $140,000 | $0 | $219,314 | $219,314 |
| 2020 | $78,073 | $115,000 | $0 | $193,073 | $193,073 |
| 2019 | $57,289 | $170,000 | $0 | $227,289 | $227,289 |
| 2018 | $58,798 | $130,000 | $0 | $188,798 | $188,798 |
| 2017 | $60,307 | $120,000 | $0 | $180,307 | $180,307 |
| 2016 | $61,816 | $90,000 | $0 | $151,816 | $151,816 |
| 2015 | $63,325 | $80,000 | $0 | $143,325 | $143,325 |
| 2014 | $64,080 | $80,000 | $0 | $144,080 | $144,080 |
| 2013 | $78,735 | $80,000 | $0 | $158,735 | $158,735 |
| 2012 | $80,414 | $85,000 | $0 | $165,414 | $165,414 |
| 2011 | $82,092 | $100,000 | $0 | $182,092 | $182,092 |
| 2010 | $87,862 | $100,000 | $0 | $187,862 | $187,862 |
| 2009 | $91,259 | $100,000 | $0 | $191,259 | $191,259 |
| 2008 | $93,202 | $84,000 | $0 | $177,202 | $177,202 |
| 2007 | $94,401 | $84,000 | $0 | $178,401 | $178,401 |
Deed and Sales History
| 1 | 01/06/2017 | CCOMPROP | Create Community Property | HUNT, KAREN BERNICE | HUNT, DUANE RICHARD | | | $0.00 | 27694 | 4414961 |
| 2 | 03/19/2014 | ESTSEPPROP | Establish Separate Property | HUNT, KAREN BERNICE | HUNT, KAREN BERNICE | | | $0.00 | 14650 | 4356673 |
| 3 | 03/19/2014 | WD | Warranty Deed | WANDREI, JEREMY J | HUNT, KAREN BERNICE | | | $126,000.00 | 14649 | 4356872 |
| 4 | 08/22/2005 | ESTSEPPROP | Establish Separate Property | WANDREI, JEREMY J | WANDREI, JEREMY J | | | $0.00 | 54167 | 4145212 |
| 5 | 08/22/2005 | WD | Warranty Deed | CANTU, GILBERT | WANDREI, JEREMY J | | | $181,000.00 | 54166 | 4145211 |
| 6 | 10/13/1998 | WD | Warranty Deed | CANTU, GILBERT | CANTU, GILBERT | | | $0.00 | 84283 | 98023320 |
| 7 | 10/01/1998 | WD | Warranty Deed | HOUSING, AUTHORITY O | CANTU, GILBERT | | | $101,000.00 | 84283 | 98023320 |
| 8 | 11/01/1994 | WD | Warranty Deed | AKINS, JOHN P | HOUSING, AUTHORITY O | | | $28,000.00 | 44777 | 94024476 |
| 9 | 01/01/1900 | OTHER | Other - Misc. Documents | CANTU, GILBERT | AKINS, JOHN P | | | $0.00 | 30061 | 93000341 |
Payout Agreement
| No payout information available.. |