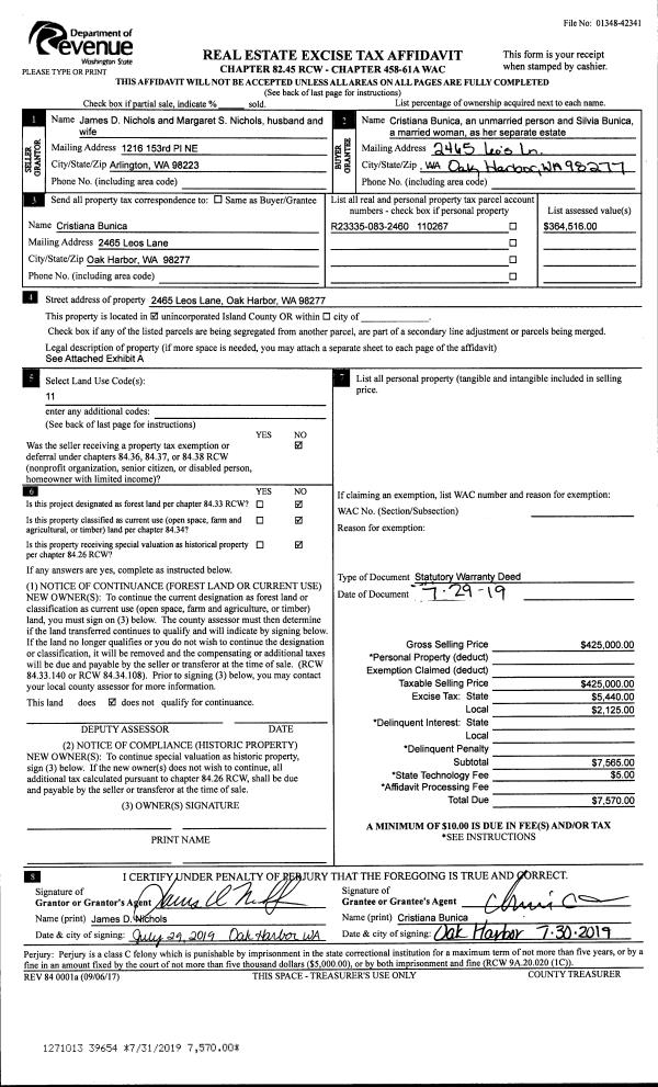
Property
Account |
| Property ID: | 701832 | Abbreviated Legal Description: | BIRCH TREE CONDOS PH 4 UNIT 8A 3.125% INT |
| Geographic ID: | S6137-04-0008A-0 | Agent Code: | |
| Type: | Real | | |
| Tax Area: | 100 - APPRAISER-OH Schl Dist, in OH | Land Use Code | 14 |
| Open Space: | N | DFL | N |
| Historic Property: | N | Remodel Property: | N |
| Multi-Family Redevelopment: | N | | |
| Township: | | Section: | |
| Range: | |
Location |
| Address: | 1250 SW HELLER ST UNIT B1 OAK HARBOR, WA 98277 | Mapsco: | |
| Neighborhood: | 11*OH-birchtree | Map ID: | 90 |
| Neighborhood CD: | 11*OHbrcht |
Owner |
| Name: | HENDERSON, SEAN J E | Owner ID: | 291387 |
| Mailing Address: | 1250 SW HELLER RD, UNIT B1 OAK HARBORQ, WA 98277 | % Ownership: | 100.0000000000% |
| | | Exemptions: | |
Taxes and Assessment Details
Values
| (+) Improvement Homesite Value: | + | $0 | |
| (+) Improvement Non-Homesite Value: | + | $234,533 | |
| (+) Land Homesite Value: | + | $0 | |
| (+) Land Non-Homesite Value: | + | $120,000 | |
| (+) Curr Use (HS): | + | $0 | $0 |
| (+) Curr Use (NHS): | + | $0 | $0 |
| | | -------------------------- | |
| (=) Market Value: | = | $354,533 | |
| (–) Productivity Loss: | – | $0 | |
| | | -------------------------- | |
| (=) Subtotal: | = | $354,533 | |
| (+) Senior Appraised Value: | + | $0 | |
| (+) Non-Senior Appraised Value: | + | $354,533 | |
| | | -------------------------- | |
| (=) Total Appraised Value: | = | $354,533 | |
| (–) Senior Exemption Loss: | – | $0 | |
| (–) Exemption Loss: | – | $0 | |
| | | -------------------------- | |
| (=) Taxable Value: | = | $354,533 | |
Taxing Jurisdiction
| Owner: | HENDERSON, SEAN J E | | |
| % Ownership: | 100.0000000000% | | |
| Total Value: | $354,533 | | |
| Tax Area: | 100 - APPRAISER-OH Schl Dist, in OH |
| CF | Conservation Futures | 0.0316035091 | $354,533 | $354,533 | $11.20 | | |
| CEM1 | Cemetery #1 | 0.0040320932 | $354,533 | $354,533 | $1.43 | | |
| COH | City of Oak Harbor | 2.3001546061 | $354,533 | $354,533 | $815.48 | | |
| OAKBOND | City of Oak Harbor BOND | 0.1926904192 | $354,533 | $354,533 | $68.32 | | |
| HOBOND | Hospital BOND | 0.1910887512 | $354,533 | $354,533 | $67.75 | | |
| HOGEN | Hospital GEN | 0.3902502903 | $354,533 | $354,533 | $138.36 | | |
| CE | County Current Expense | 0.3708482477 | $354,533 | $354,533 | $131.48 | | |
| ISLANDEMS | Hospital GEN (EMS) | 0.5000000000 | $354,533 | $354,533 | $177.27 | | |
| LIB | Library Sno-Isle GEN | 0.3153421757 | $354,533 | $354,533 | $111.80 | | |
| NWHIDPRMT | P & R N Whidbey GEN | 0.2004466701 | $354,533 | $354,533 | $71.06 | | |
| SCH201MO | School 201 Enrichment | 1.8559231640 | $354,533 | $354,533 | $657.99 | | |
| ST | State School | 1.3035497053 | $354,533 | $354,533 | $462.15 | | |
| ST2 | State School Part 2 | 0.8169543533 | $354,533 | $354,533 | $289.64 | | |
| | Total Tax Rate: | 8.4728839852 | | | | | |
| | | | | Taxes w/Current Exemptions: | $3,003.93 | | |
| | | | | Taxes w/o Exemptions: | $3,003.93 | | |
Improvement / Building
| Improvement #1: | RESIDENTIAL | State Code: | Y | 1356.0 sqft | Value: | $234,533 |
| Bathrooms: | 2.5 | Bedrooms: | 3 | | Ceiling: | DRYWALL PAINTED | Exterior Wall/Cover: | CEMENT FIBER | | Floor Covering: | CARPET/VINYL 80-20 | Floor Structure: | WOOD W/SUBFLOOR | | Foundation: | CONCRETE | Heating: | FHA GAS | | Interior Finish: | DRYWALL PAINT | Plumbing Fixture Cnt: | 11 | | Roof Slope: | 8" IN 12" | Roof Structure/Cover: | CJ ASPHALT |
|
| | Type | Description | Class CD | Sub Class CD | Year Built | Area |
| | BAS | BASE/MAIN FLOOR | 3 | 0 | 1994 | 630.0 |
| | AGR | ATTACHED GARAGE | 3 | 0 | 1994 | 276.0 |
| | UPS | UPPER STORY | 3 | 0 | 1994 | 726.0 |
| | OWP | OPEN WOOD PORCH W/STEPS | 3 | 0 | 1994 | 44.0 |
| | OWC | OPEN WOOD PORCH W/STEPS/ROOF/C | 3 | 0 | 1994 | 88.0 |
| | oPV1 | PV/ASPH 2" | 3 | 0 | 1994 | 0.0 |
Sketch
Property Image
Land
| 1 | 61 | MULTIPLE RESIDENCES | 0.0817 | 3557.31 | 0.00 | 0.00 | 1.00 | $120,000 | $0 |
Roll Value History
| 2026 | N/A | N/A | N/A | N/A | N/A |
| 2025 | $234,533 | $120,000 | $0 | $354,533 | $354,533 |
| 2024 | $237,406 | $120,000 | $0 | $357,406 | $357,406 |
| 2023 | $228,784 | $120,000 | $0 | $348,784 | $348,784 |
| 2022 | $209,864 | $120,000 | $0 | $329,864 | $329,864 |
| 2021 | $184,881 | $65,000 | $0 | $249,881 | $249,881 |
| 2020 | $179,770 | $53,000 | $0 | $232,770 | $232,770 |
| 2019 | $126,911 | $90,000 | $0 | $216,911 | $216,911 |
| 2018 | $127,289 | $65,000 | $0 | $192,289 | $192,289 |
| 2017 | $121,726 | $55,851 | $0 | $177,577 | $177,577 |
| 2016 | $121,726 | $55,851 | $0 | $177,577 | $177,577 |
| 2015 | $121,726 | $55,851 | $0 | $177,577 | $177,577 |
| 2014 | $121,726 | $55,851 | $0 | $177,577 | $177,577 |
| 2013 | $121,726 | $55,851 | $0 | $177,577 | $177,577 |
| 2012 | $121,726 | $55,851 | $0 | $177,577 | $177,577 |
| 2011 | $121,726 | $55,851 | $0 | $177,577 | $177,577 |
| 2010 | $130,119 | $55,851 | $0 | $185,970 | $185,970 |
| 2009 | $135,590 | $69,034 | $0 | $204,624 | $204,624 |
| 2008 | $137,422 | $69,034 | $0 | $206,456 | $206,456 |
| 2007 | $139,273 | $69,034 | $0 | $208,307 | $208,307 |
Deed and Sales History
| 1 | 08/13/2019 | WD | Warranty Deed | NYDAM, GERALD | HENDERSON, SEAN J E | | | $229,900.00 | 39911 | 4469532 |
| 2 | 01/27/2007 | QCD | Quit Claim Deed | NYDAM, GERALD | NYDAM, GERALD | | | $39,941.00 | 70284 | 4192828 |
| 3 | 03/07/2000 | WD | Warranty Deed | CAVE, KENNETH L | NYDAM, GERALD | | | $110,000.00 | 847 | 20004303 |
| 4 | 04/01/1996 | QCD | Quit Claim Deed | CAVE, KENNETH L | CAVE, KENNETH L | | | $0.00 | 61230 | 96006297 |
| 5 | 01/01/1900 | OTHER | Other - Misc. Documents | Unknown | CAVE, KENNETH L | | | $0.00 | 3904 | 376594 |
| 6 | 01/01/1900 | OTHER | Other - Misc. Documents | CAVE, KENNETH L | CAVE, KENNETH L | | | $0.00 | 0 | 0 |
Payout Agreement
| No payout information available.. |