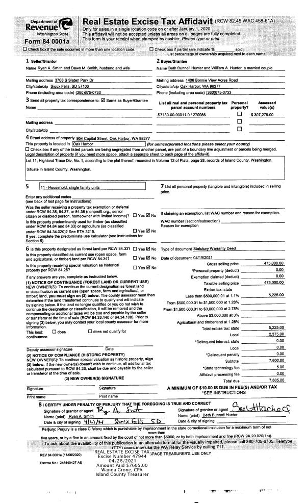
Property
Account |
| Property ID: | 701949 | Abbreviated Legal Description: | R3 T 29 S 04 LOT A BLA 223-18 LOT 2 SP 25-93.32904-229-3180 AF#4451361 |
| Geographic ID: | R32904-219-3240 | Agent Code: | |
| Type: | Real | | |
| Tax Area: | 712 - APPRAISER-S Whid Schl Dist, outside Langley, improved, greater than 1 acre | Land Use Code | 11 |
| Open Space: | N | DFL | N |
| Historic Property: | N | Remodel Property: | N |
| Multi-Family Redevelopment: | N | | |
| Township: | 29 | Section: | 04 |
| Range: | R3 |
Location |
| Address: | 5029 INGLEWOOD LANGLEY, WA 98260 | Mapsco: | |
| Neighborhood: | Cycle 4 | Map ID: | 729 |
| Neighborhood CD: | 4 |
Owner |
| Name: | GOSSLER, ROBERT S | Owner ID: | 287610 |
| Mailing Address: | SHERYL J GOSSLER 5029 INGLEWOOD DR LANGLEY, WA 98260 | % Ownership: | 100.0000000000% |
| | | Exemptions: | |
Taxes and Assessment Details
Values
| (+) Improvement Homesite Value: | + | $0 | |
| (+) Improvement Non-Homesite Value: | + | $632,937 | |
| (+) Land Homesite Value: | + | $0 | |
| (+) Land Non-Homesite Value: | + | $380,000 | |
| (+) Curr Use (HS): | + | $0 | $0 |
| (+) Curr Use (NHS): | + | $0 | $0 |
| | | -------------------------- | |
| (=) Market Value: | = | $1,012,937 | |
| (–) Productivity Loss: | – | $0 | |
| | | -------------------------- | |
| (=) Subtotal: | = | $1,012,937 | |
| (+) Senior Appraised Value: | + | $0 | |
| (+) Non-Senior Appraised Value: | + | $1,012,937 | |
| | | -------------------------- | |
| (=) Total Appraised Value: | = | $1,012,937 | |
| (–) Senior Exemption Loss: | – | $0 | |
| (–) Exemption Loss: | – | $0 | |
| | | -------------------------- | |
| (=) Taxable Value: | = | $1,012,937 | |
Taxing Jurisdiction
| Owner: | GOSSLER, ROBERT S | | |
| % Ownership: | 100.0000000000% | | |
| Total Value: | $1,012,937 | | |
| Tax Area: | 712 - APPRAISER-S Whid Schl Dist, outside Langley, improved, greater than 1 acre |
| CF | Conservation Futures | 0.0316035091 | $1,012,937 | $1,012,937 | $32.01 | | |
| FIRE3 | Fire & Rescue Dist #3 S Whidbey GEN | 1.2004855531 | $1,012,937 | $1,012,937 | $1,216.02 | | |
| HOBOND | Hospital BOND | 0.1910887512 | $1,012,937 | $1,012,937 | $193.56 | | |
| HOGEN | Hospital GEN | 0.3902502903 | $1,012,937 | $1,012,937 | $395.30 | | |
| CE | County Current Expense | 0.3708482477 | $1,012,937 | $1,012,937 | $375.65 | | |
| CR | County Roads | 0.4584763726 | $1,012,937 | $1,012,937 | $464.41 | | |
| ISLANDEMS | Hospital GEN (EMS) | 0.5000000000 | $1,012,937 | $1,012,937 | $506.47 | | |
| LIB | Library Sno-Isle GEN | 0.3153421757 | $1,012,937 | $1,012,937 | $319.42 | | |
| PORTWHID | Port of S Whidbey GEN | 0.1094540357 | $1,012,937 | $1,012,937 | $110.87 | | |
| SCH206BOND | School 206 BOND | 0.3161759235 | $1,012,937 | $1,012,937 | $320.27 | | |
| SCH206MO | School 206 Enrichment | 0.4547169547 | $1,012,937 | $1,012,937 | $460.60 | | |
| ST | State School | 1.3035497053 | $1,012,937 | $1,012,937 | $1,320.41 | | |
| ST2 | State School Part 2 | 0.8169543533 | $1,012,937 | $1,012,937 | $827.52 | | |
| SWHIDPRBD | P & R S Whidbey BOND | 0.0152817568 | $1,012,937 | $1,012,937 | $15.48 | | |
| SWHIDPRBD2 | P & R S Whidbey BOND2 | 0.0138911264 | $1,012,937 | $1,012,937 | $14.07 | | |
| SWHIDPRMT | P & R S Whidbey GEN | 0.2053334452 | $1,012,937 | $1,012,937 | $207.99 | | |
| | Total Tax Rate: | 6.6934522006 | | | | | |
| | | | | Taxes w/Current Exemptions: | $6,780.05 | | |
| | | | | Taxes w/o Exemptions: | $6,780.05 | | |
Improvement / Building
| Improvement #1: | RESIDENTIAL | State Code: | Y | 2914.2 sqft | Value: | $632,937 |
| Bathrooms: | 2.5 | Bedrooms: | 3 | | Ceiling: | DRYWALL PAINTED | Exterior Wall/Cover: | CEMENT FIBER | | Floor Covering: | HARDWOOD/CARP 20-80 | Floor Structure: | WOOD W/SUBFLOOR | | Foundation: | CONCRETE | Heating: | FHA ELECTRIC | | Interior Finish: | DRYWALL PAINT | Plumbing Fixture Cnt: | 14 | | Roof Slope: | 8" IN 12" | Roof Structure/Cover: | CJ ASPHALT |
|
| | Type | Description | Class CD | Sub Class CD | Year Built | Area |
| | BAS | BASE/MAIN FLOOR | 4 | 0 | 2019 | 2004.0 |
| | UPS | UPPER STORY | 4 | 0 | 2019 | 910.2 |
| | AGR | ATTACHED GARAGE | 4 | 0 | 2019 | 778.0 |
| | OWP | OPEN WOOD PORCH W/STEPS | 4 | 0 | 2019 | 156.0 |
| | OWC | OPEN WOOD PORCH W/STEPS/ROOF/C | 4 | 0 | 2019 | 416.0 |
Sketch
Property Image
Land
| 1 | 32 | AC (03.01-09.99) | 5.0800 | 221284.80 | 0.00 | 0.00 | 1.00 | $380,000 | $0 |
Roll Value History
| 2026 | N/A | N/A | N/A | N/A | N/A |
| 2025 | $632,937 | $380,000 | $0 | $1,012,937 | $1,012,937 |
| 2024 | $638,042 | $350,000 | $0 | $988,042 | $988,042 |
| 2023 | $643,147 | $330,000 | $0 | $973,147 | $973,147 |
| 2022 | $587,003 | $290,000 | $0 | $877,003 | $877,003 |
| 2021 | $515,796 | $230,000 | $0 | $745,796 | $745,796 |
| 2020 | $506,212 | $190,000 | $0 | $696,212 | $696,212 |
| 2019 | $214,950 | $135,000 | $0 | $349,950 | $349,950 |
| 2018 | $0 | $130,000 | $0 | $130,000 | $130,000 |
| 2017 | $0 | $130,000 | $0 | $130,000 | $130,000 |
| 2016 | $0 | $85,000 | $0 | $85,000 | $85,000 |
| 2015 | $0 | $100,000 | $0 | $100,000 | $100,000 |
| 2014 | $0 | $131,000 | $0 | $131,000 | $131,000 |
| 2013 | $0 | $131,000 | $0 | $131,000 | $131,000 |
| 2012 | $0 | $131,000 | $0 | $131,000 | $131,000 |
| 2011 | $0 | $131,000 | $0 | $131,000 | $131,000 |
| 2010 | $0 | $131,000 | $0 | $131,000 | $131,000 |
| 2009 | $0 | $178,160 | $0 | $178,160 | $178,160 |
| 2008 | $0 | $167,680 | $0 | $167,680 | $167,680 |
| 2007 | $0 | $167,680 | $0 | $167,680 | $167,680 |
Deed and Sales History
| 1 | 10/17/2018 | QCD | Quit Claim Deed | GOSSLER, ROBERT S | GOSSLER, ROBERT S | | | $7,000.00 | 36382 | 4453802 |
| 2 | 07/25/2017 | WD | Warranty Deed | GOSSLER, ROBERT S | GOSSLER, ROBERT S | | | $0.00 | 36376 | 4453751 |
| 3 | 07/25/2017 | WD | Warranty Deed | COOPER, JAMES E & CATHY L | GOSSLER, ROBERT S | | | $129,900.00 | 30341 | 4426934 |
| 4 | 03/01/1995 | QCD | Quit Claim Deed | FOREMAN, JERALD C | COOPER, JAMES E | | | $0.00 | 51095 | 95005150 |
| 5 | 01/01/1900 | OTHER | Other - Misc. Documents | Unknown | FOREMAN, JERALD C | | | $0.00 | 44394 | 94022656 |
Payout Agreement
| No payout information available.. |