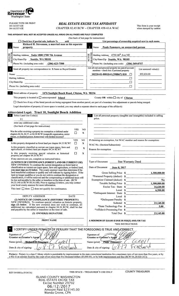
Property
Account |
| Property ID: | 702421 | Abbreviated Legal Description: | VILLAGE AT USELESS BAY #16 UNIT 302 1/14TH INT |
| Geographic ID: | S8372-00-00302-0 | Agent Code: | |
| Type: | Real | | |
| Tax Area: | 750 - APPRAISER-S Whid Schl Dist, Special District, improved & less than 1 acre | Land Use Code | 14 |
| Open Space: | N | DFL | N |
| Historic Property: | N | Remodel Property: | N |
| Multi-Family Redevelopment: | N | | |
| Township: | | Section: | |
| Range: | |
Location |
| Address: | 2426 USELESS BAY AVE UNIT 302 LANGLEY, WA 98260 | Mapsco: | |
| Neighborhood: | 45*RR-useless bay | Map ID: | 785 |
| Neighborhood CD: | 45*RRusles |
Owner |
| Name: | SICKLES, THEODORE W | Owner ID: | 304412 |
| Mailing Address: | 2426 USELESS BAY AVE UNIT 302 LANGLEY, WA 98260 | % Ownership: | 100.0000000000% |
| | | Exemptions: | |
Taxes and Assessment Details
Values
| (+) Improvement Homesite Value: | + | $0 | |
| (+) Improvement Non-Homesite Value: | + | $311,442 | |
| (+) Land Homesite Value: | + | $0 | |
| (+) Land Non-Homesite Value: | + | $270,000 | |
| (+) Curr Use (HS): | + | $0 | $0 |
| (+) Curr Use (NHS): | + | $0 | $0 |
| | | -------------------------- | |
| (=) Market Value: | = | $581,442 | |
| (–) Productivity Loss: | – | $0 | |
| | | -------------------------- | |
| (=) Subtotal: | = | $581,442 | |
| (+) Senior Appraised Value: | + | $0 | |
| (+) Non-Senior Appraised Value: | + | $581,442 | |
| | | -------------------------- | |
| (=) Total Appraised Value: | = | $581,442 | |
| (–) Senior Exemption Loss: | – | $0 | |
| (–) Exemption Loss: | – | $0 | |
| | | -------------------------- | |
| (=) Taxable Value: | = | $581,442 | |
Taxing Jurisdiction
| Owner: | SICKLES, THEODORE W | | |
| % Ownership: | 100.0000000000% | | |
| Total Value: | $581,442 | | |
| Tax Area: | 750 - APPRAISER-S Whid Schl Dist, Special District, improved & less than 1 acre |
| CF | Conservation Futures | 0.0316035091 | $581,442 | $581,442 | $18.38 | | |
| FIRE3 | Fire & Rescue Dist #3 S Whidbey GEN | 1.2004855531 | $581,442 | $581,442 | $698.01 | | |
| HOBOND | Hospital BOND | 0.1910887512 | $581,442 | $581,442 | $111.11 | | |
| HOGEN | Hospital GEN | 0.3902502903 | $581,442 | $581,442 | $226.91 | | |
| CE | County Current Expense | 0.3708482477 | $581,442 | $581,442 | $215.63 | | |
| CR | County Roads | 0.4584763726 | $581,442 | $581,442 | $266.58 | | |
| ISLANDEMS | Hospital GEN (EMS) | 0.5000000000 | $581,442 | $581,442 | $290.72 | | |
| LIB | Library Sno-Isle GEN | 0.3153421757 | $581,442 | $581,442 | $183.35 | | |
| PORTWHID | Port of S Whidbey GEN | 0.1094540357 | $581,442 | $581,442 | $63.64 | | |
| SCH206BOND | School 206 BOND | 0.3161759235 | $581,442 | $581,442 | $183.84 | | |
| SCH206MO | School 206 Enrichment | 0.4547169547 | $581,442 | $581,442 | $264.39 | | |
| ST | State School | 1.3035497053 | $581,442 | $581,442 | $757.94 | | |
| ST2 | State School Part 2 | 0.8169543533 | $581,442 | $581,442 | $475.01 | | |
| SWHIDPRBD | P & R S Whidbey BOND | 0.0152817568 | $581,442 | $581,442 | $8.89 | | |
| SWHIDPRBD2 | P & R S Whidbey BOND2 | 0.0138911264 | $581,442 | $581,442 | $8.08 | | |
| SWHIDPRMT | P & R S Whidbey GEN | 0.2053334452 | $581,442 | $581,442 | $119.39 | | |
| | Total Tax Rate: | 6.6934522006 | | | | | |
| | | | | Taxes w/Current Exemptions: | $3,891.87 | | |
| | | | | Taxes w/o Exemptions: | $3,891.87 | | |
Improvement / Building
| Improvement #1: | RESIDENTIAL | State Code: | A1 | 2316.5 sqft | Value: | $311,442 |
| Bathrooms: | 3 | Bedrooms: | 3 | | Ceiling: | DRYWALL PAINTED | Exterior Wall/Cover: | PLY/HARDBOARD T-111 | | Floor Covering: | CARPET/VINYL 80-20 | Floor Structure: | WOOD W/SUBFLOOR | | Foundation: | CONCRETE | Heating: | FHA GAS | | Interior Finish: | DRYWALL PAINT | Plumbing Fixture Cnt: | 13 | | Roof Slope: | 4" IN 12" | Roof Structure/Cover: | CJ ASPHALT |
|
| | Type | Description | Class CD | Sub Class CD | Year Built | Area |
| | BAS | BASE/MAIN FLOOR | 3 | 0 | 1994 | 1478.5 |
| | OP3 | OPEN PORCH W/ROOF | 3 | 0 | 1994 | 55.0 |
| | AGR | ATTACHED GARAGE | 3 | 0 | 1994 | 717.0 |
| | UPS | UPPER STORY | 3 | 0 | 1994 | 838.0 |
| | OWP | OPEN WOOD PORCH W/STEPS | 3 | 0 | 1994 | 117.0 |
| | OP1 | OPEN PORCH SLAB | 3 | 0 | 1994 | 237.0 |
| | COMA | Common Area Improvement | 3 | 0 | 1994 | 0.0 |
Sketch
Property Image
Land
| 1 | 61 | MULTIPLE RESIDENCES | 0.0000 | 12350.00 | 0.00 | 0.00 | 1.00 | $270,000 | $0 |
Roll Value History
| 2026 | N/A | N/A | N/A | N/A | N/A |
| 2025 | $311,442 | $270,000 | $0 | $581,442 | $581,442 |
| 2024 | $315,676 | $270,000 | $0 | $585,676 | $585,676 |
| 2023 | $319,909 | $270,000 | $0 | $589,909 | $589,909 |
| 2022 | $293,636 | $250,000 | $0 | $543,636 | $543,636 |
| 2021 | $258,830 | $210,000 | $0 | $468,830 | $468,830 |
| 2020 | $252,547 | $160,000 | $0 | $412,547 | $412,547 |
| 2019 | $239,273 | $130,000 | $0 | $369,273 | $369,273 |
| 2018 | $240,024 | $68,543 | $0 | $308,567 | $308,567 |
| 2017 | $241,523 | $68,543 | $0 | $310,066 | $310,066 |
| 2016 | $244,524 | $68,543 | $0 | $313,067 | $313,067 |
| 2015 | $206,270 | $68,543 | $0 | $274,813 | $274,813 |
| 2014 | $201,269 | $68,543 | $0 | $269,812 | $269,812 |
| 2013 | $203,770 | $68,543 | $0 | $272,313 | $272,313 |
| 2012 | $208,770 | $68,543 | $0 | $277,313 | $277,313 |
| 2011 | $208,770 | $68,543 | $0 | $277,313 | $277,313 |
| 2010 | $217,807 | $68,543 | $0 | $286,350 | $286,350 |
| 2009 | $227,115 | $86,697 | $0 | $313,812 | $313,812 |
| 2008 | $333,232 | $91,884 | $0 | $425,116 | $425,116 |
| 2007 | $337,312 | $91,884 | $0 | $429,196 | $429,196 |
Deed and Sales History
| 1 | 05/05/2022 | WD | Warranty Deed | MIDDAUGH, RICHARD EARL TRUSTEE | SICKLES, THEODORE W | | | $637,000.00 | 53214 | 4545624 |
| 2 | 07/24/2017 | QCD | Quit Claim Deed | MIDDAUGH, RICHARD EARL TRUSTEE | MIDDAUGH, RICHARD EARL TRUSTEE | | | $0.00 | 30308 | 4426806 |
| 3 | 08/19/2005 | WD | Warranty Deed | CAMERON, ROBERT M | MIDDAUGH, ALICE | | | $380,000.00 | 54270 | 4145946 |
| 4 | 02/01/1995 | WD | Warranty Deed | RFT, INVESTMENTS I | CAMERON, ROBERT M | | | $250,120.00 | 50526 | 95002520 |
| 5 | 01/01/1900 | OTHER | Other - Misc. Documents | Unknown | RFT, INVESTMENTS I | | | $0.00 | 42495 | 94013957 |
Payout Agreement
| No payout information available.. |