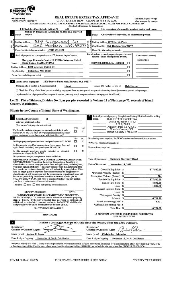
Property
Account |
| Property ID: | 702430 | Abbreviated Legal Description: | VILLAGE AT USELESS BAY #16 UNIT 303 1/14TH INT |
| Geographic ID: | S8372-00-00303-0 | Agent Code: | |
| Type: | Real | | |
| Tax Area: | 750 - APPRAISER-S Whid Schl Dist, Special District, improved & less than 1 acre | Land Use Code | 14 |
| Open Space: | N | DFL | N |
| Historic Property: | N | Remodel Property: | N |
| Multi-Family Redevelopment: | N | | |
| Township: | | Section: | |
| Range: | |
Location |
| Address: | 2426 USELESS BAY AVE UNIT 303 LANGLEY, WA 98260 | Mapsco: | |
| Neighborhood: | 45*RR-useless bay | Map ID: | 785 |
| Neighborhood CD: | 45*RRusles |
Owner |
| Name: | VADNAIS, DIANE L | Owner ID: | 16395 |
| Mailing Address: | 2518 HILLIS DR LANGLEY, WA 98260 | % Ownership: | 100.0000000000% |
| | | Exemptions: | |
Taxes and Assessment Details
Values
| (+) Improvement Homesite Value: | + | $0 | |
| (+) Improvement Non-Homesite Value: | + | $311,160 | |
| (+) Land Homesite Value: | + | $0 | |
| (+) Land Non-Homesite Value: | + | $270,000 | |
| (+) Curr Use (HS): | + | $0 | $0 |
| (+) Curr Use (NHS): | + | $0 | $0 |
| | | -------------------------- | |
| (=) Market Value: | = | $581,160 | |
| (–) Productivity Loss: | – | $0 | |
| | | -------------------------- | |
| (=) Subtotal: | = | $581,160 | |
| (+) Senior Appraised Value: | + | $0 | |
| (+) Non-Senior Appraised Value: | + | $581,160 | |
| | | -------------------------- | |
| (=) Total Appraised Value: | = | $581,160 | |
| (–) Senior Exemption Loss: | – | $0 | |
| (–) Exemption Loss: | – | $0 | |
| | | -------------------------- | |
| (=) Taxable Value: | = | $581,160 | |
Taxing Jurisdiction
| Owner: | VADNAIS, DIANE L | | |
| % Ownership: | 100.0000000000% | | |
| Total Value: | $581,160 | | |
| Tax Area: | 750 - APPRAISER-S Whid Schl Dist, Special District, improved & less than 1 acre |
| CF | Conservation Futures | 0.0316035091 | $581,160 | $581,160 | $18.37 | | |
| FIRE3 | Fire & Rescue Dist #3 S Whidbey GEN | 1.2004855531 | $581,160 | $581,160 | $697.67 | | |
| HOBOND | Hospital BOND | 0.1910887512 | $581,160 | $581,160 | $111.05 | | |
| HOGEN | Hospital GEN | 0.3902502903 | $581,160 | $581,160 | $226.80 | | |
| CE | County Current Expense | 0.3708482477 | $581,160 | $581,160 | $215.52 | | |
| CR | County Roads | 0.4584763726 | $581,160 | $581,160 | $266.45 | | |
| ISLANDEMS | Hospital GEN (EMS) | 0.5000000000 | $581,160 | $581,160 | $290.58 | | |
| LIB | Library Sno-Isle GEN | 0.3153421757 | $581,160 | $581,160 | $183.26 | | |
| PORTWHID | Port of S Whidbey GEN | 0.1094540357 | $581,160 | $581,160 | $63.61 | | |
| SCH206BOND | School 206 BOND | 0.3161759235 | $581,160 | $581,160 | $183.75 | | |
| SCH206MO | School 206 Enrichment | 0.4547169547 | $581,160 | $581,160 | $264.26 | | |
| ST | State School | 1.3035497053 | $581,160 | $581,160 | $757.57 | | |
| ST2 | State School Part 2 | 0.8169543533 | $581,160 | $581,160 | $474.78 | | |
| SWHIDPRBD | P & R S Whidbey BOND | 0.0152817568 | $581,160 | $581,160 | $8.88 | | |
| SWHIDPRBD2 | P & R S Whidbey BOND2 | 0.0138911264 | $581,160 | $581,160 | $8.07 | | |
| SWHIDPRMT | P & R S Whidbey GEN | 0.2053334452 | $581,160 | $581,160 | $119.33 | | |
| | Total Tax Rate: | 6.6934522006 | | | | | |
| | | | | Taxes w/Current Exemptions: | $3,889.95 | | |
| | | | | Taxes w/o Exemptions: | $3,889.95 | | |
Improvement / Building
| Improvement #1: | RESIDENTIAL | State Code: | A1 | 2316.5 sqft | Value: | $311,160 |
| Bathrooms: | 3 | Bedrooms: | 3 | | Ceiling: | DRYWALL PAINTED | Exterior Wall/Cover: | PLY/HARDBOARD T-111 | | Floor Covering: | CARPET/VINYL 80-20 | Floor Structure: | WOOD W/SUBFLOOR | | Foundation: | CONCRETE | Heating: | FHA GAS | | Interior Finish: | DRYWALL PAINT | Plumbing Fixture Cnt: | 13 | | Roof Slope: | 4" IN 12" | Roof Structure/Cover: | CJ ASPHALT |
|
| | Type | Description | Class CD | Sub Class CD | Year Built | Area |
| | BAS | BASE/MAIN FLOOR | 3 | 0 | 1994 | 1478.5 |
| | OP3 | OPEN PORCH W/ROOF | 3 | 0 | 1994 | 55.0 |
| | AGR | ATTACHED GARAGE | 3 | 0 | 1994 | 717.0 |
| | UPS | UPPER STORY | 3 | 0 | 1994 | 838.0 |
| | OWP | OPEN WOOD PORCH W/STEPS | 3 | 0 | 1994 | 117.0 |
| | OP1 | OPEN PORCH SLAB | 3 | 0 | 1994 | 192.0 |
| | COMA | Common Area Improvement | 3 | 0 | 1994 | 0.0 |
Sketch
Property Image
Land
| 1 | 61 | MULTIPLE RESIDENCES | 0.0000 | 12350.00 | 0.00 | 0.00 | 1.00 | $270,000 | $0 |
Roll Value History
| 2026 | N/A | N/A | N/A | N/A | N/A |
| 2025 | $311,160 | $270,000 | $0 | $581,160 | $581,160 |
| 2024 | $315,391 | $270,000 | $0 | $585,391 | $585,391 |
| 2023 | $319,620 | $270,000 | $0 | $589,620 | $589,620 |
| 2022 | $293,371 | $250,000 | $0 | $543,371 | $543,371 |
| 2021 | $258,596 | $210,000 | $0 | $468,596 | $468,596 |
| 2020 | $252,318 | $160,000 | $0 | $412,318 | $412,318 |
| 2019 | $232,092 | $130,000 | $0 | $362,092 | $362,092 |
| 2018 | $232,819 | $68,543 | $0 | $301,362 | $301,362 |
| 2017 | $234,275 | $68,543 | $0 | $302,818 | $302,818 |
| 2016 | $237,184 | $68,543 | $0 | $305,727 | $305,727 |
| 2015 | $200,077 | $68,543 | $0 | $268,620 | $268,620 |
| 2014 | $195,229 | $68,543 | $0 | $263,772 | $263,772 |
| 2013 | $197,653 | $68,543 | $0 | $266,196 | $266,196 |
| 2012 | $202,503 | $68,543 | $0 | $271,046 | $271,046 |
| 2011 | $202,503 | $68,543 | $0 | $271,046 | $271,046 |
| 2010 | $211,161 | $68,543 | $0 | $279,704 | $279,704 |
| 2009 | $220,185 | $86,697 | $0 | $306,882 | $306,882 |
| 2008 | $331,379 | $91,884 | $0 | $423,263 | $423,263 |
| 2007 | $335,437 | $91,884 | $0 | $427,321 | $427,321 |
Deed and Sales History
| 1 | 08/26/2019 | WD | Warranty Deed | STEADMAN, DONALD K | VADNAIS, DIANE L | | | $423,000.00 | 40055 | 4470452 |
| 2 | 09/22/2006 | WD | Warranty Deed | ARCHER, DONALD D | STEADMAN, DONALD K | | | $400,000.00 | 64132 | 4182691 |
| 3 | 03/08/2000 | WD | Warranty Deed | MILBY, LOUISE P | ARCHER, DONALD D | | | $320,000.00 | 845 | 20004294 |
| 4 | 02/01/1995 | WD | Warranty Deed | RFT, INVESTMENTS I | MILBY, LOUISE P | | | $237,500.00 | 50425 | 95002003 |
| 5 | 01/01/1900 | OTHER | Other - Misc. Documents | Unknown | RFT, INVESTMENTS I | | | $0.00 | 42495 | 94013957 |
| 6 | 01/01/1900 | OTHER | Other - Misc. Documents | MILBY, LOUISE P | MILBY, LOUISE P | | | $0.00 | 0 | 0 |
Payout Agreement
| No payout information available.. |