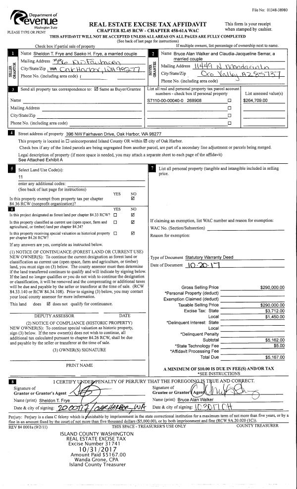
Property
Account |
| Property ID: | 702966 | Abbreviated Legal Description: | IN GL 2: ELY 250'M/L LY E OF RD EZ OF FOLL DESC TR: N100'OF S820' EX W750' OF GL 2 INCL ADJ TIDES EX RDS TGW: IN GL 2: WLY 250'M/L LY W OF RD EZ OF FOLL DESC TR: N100'OF S820' EX W750' OF GL 2 TGW EZS FR 209-0870 & 209-1150 COMB 3/95 |
| Geographic ID: | R42931-206-1020 | Agent Code: | |
| Type: | Real | | |
| Tax Area: | 722 - APPRAISER-S Whid Schl Dist, Special District, improved, greater than 1 acre | Land Use Code | 11 |
| Open Space: | N | DFL | N |
| Historic Property: | N | Remodel Property: | N |
| Multi-Family Redevelopment: | N | | |
| Township: | 29 | Section: | 31 |
| Range: | R4 |
Location |
| Address: | 4886 SEAHAWK LN CLINTON, WA 98236 | Mapsco: | |
| Neighborhood: | Cycle 4 | Map ID: | 1003 |
| Neighborhood CD: | 4 |
Owner |
| Name: | GODECKE, COLIN A | Owner ID: | 282960 |
| Mailing Address: | REBECCA A GODECKE 8234 FAIRYWAY DR NE SEATTLE, WA 98115 | % Ownership: | 100.0000000000% |
| | | Exemptions: | |
Taxes and Assessment Details
Values
| (+) Improvement Homesite Value: | + | $0 | |
| (+) Improvement Non-Homesite Value: | + | $620,829 | |
| (+) Land Homesite Value: | + | $0 | |
| (+) Land Non-Homesite Value: | + | $826,000 | |
| (+) Curr Use (HS): | + | $0 | $0 |
| (+) Curr Use (NHS): | + | $0 | $0 |
| | | -------------------------- | |
| (=) Market Value: | = | $1,446,829 | |
| (–) Productivity Loss: | – | $0 | |
| | | -------------------------- | |
| (=) Subtotal: | = | $1,446,829 | |
| (+) Senior Appraised Value: | + | $0 | |
| (+) Non-Senior Appraised Value: | + | $1,446,829 | |
| | | -------------------------- | |
| (=) Total Appraised Value: | = | $1,446,829 | |
| (–) Senior Exemption Loss: | – | $0 | |
| (–) Exemption Loss: | – | $0 | |
| | | -------------------------- | |
| (=) Taxable Value: | = | $1,446,829 | |
Taxing Jurisdiction
| Owner: | GODECKE, COLIN A | | |
| % Ownership: | 100.0000000000% | | |
| Total Value: | $1,446,829 | | |
| Tax Area: | 722 - APPRAISER-S Whid Schl Dist, Special District, improved, greater than 1 acre |
| CF | Conservation Futures | 0.0316035091 | $1,446,829 | $1,446,829 | $45.72 | | |
| FIRE3 | Fire & Rescue Dist #3 S Whidbey GEN | 1.2004855531 | $1,446,829 | $1,446,829 | $1,736.90 | | |
| HOBOND | Hospital BOND | 0.1910887512 | $1,446,829 | $1,446,829 | $276.47 | | |
| HOGEN | Hospital GEN | 0.3902502903 | $1,446,829 | $1,446,829 | $564.63 | | |
| CE | County Current Expense | 0.3708482477 | $1,446,829 | $1,446,829 | $536.55 | | |
| CR | County Roads | 0.4584763726 | $1,446,829 | $1,446,829 | $663.34 | | |
| ISLANDEMS | Hospital GEN (EMS) | 0.5000000000 | $1,446,829 | $1,446,829 | $723.41 | | |
| LIB | Library Sno-Isle GEN | 0.3153421757 | $1,446,829 | $1,446,829 | $456.25 | | |
| PORTWHID | Port of S Whidbey GEN | 0.1094540357 | $1,446,829 | $1,446,829 | $158.36 | | |
| SCH206BOND | School 206 BOND | 0.3161759235 | $1,446,829 | $1,446,829 | $457.45 | | |
| SCH206MO | School 206 Enrichment | 0.4547169547 | $1,446,829 | $1,446,829 | $657.90 | | |
| ST | State School | 1.3035497053 | $1,446,829 | $1,446,829 | $1,886.01 | | |
| ST2 | State School Part 2 | 0.8169543533 | $1,446,829 | $1,446,829 | $1,181.99 | | |
| SWHIDPRBD | P & R S Whidbey BOND | 0.0152817568 | $1,446,829 | $1,446,829 | $22.11 | | |
| SWHIDPRBD2 | P & R S Whidbey BOND2 | 0.0138911264 | $1,446,829 | $1,446,829 | $20.10 | | |
| SWHIDPRMT | P & R S Whidbey GEN | 0.2053334452 | $1,446,829 | $1,446,829 | $297.08 | | |
| | Total Tax Rate: | 6.6934522006 | | | | | |
| | | | | Taxes w/Current Exemptions: | $9,684.27 | | |
| | | | | Taxes w/o Exemptions: | $9,684.27 | | |
Improvement / Building
| Improvement #1: | RESIDENTIAL | State Code: | Y | 2622.0 sqft | Value: | $620,829 |
| Bathrooms: | 3 | Bedrooms: | 2 | | Ceiling: | DRYWALL PAINTED | Exterior Wall/Cover: | WOOD SIDING | | Floor Covering: | SOFTWOOD/VINYL 80-20 | Floor Structure: | WOOD W/SUBFLOOR | | Foundation: | CONCRETE | Heating: | WALL HEAT ELECTRIC | | Interior Finish: | DRYWALL PAINT | Plumbing Fixture Cnt: | 14 | | Roof Slope: | 6" IN 12" | Roof Structure/Cover: | CJ ASPHALT |
|
| | Type | Description | Class CD | Sub Class CD | Year Built | Area |
| | BAS | BASE/MAIN FLOOR | 5 | 0 | 1990 | 1526.0 |
| | AGR | ATTACHED GARAGE | 5 | 0 | 1990 | 1152.0 |
| | UPS | UPPER STORY | 5 | 0 | 1990 | 1096.0 |
| | OWP | OPEN WOOD PORCH W/STEPS | 5 | 0 | 1990 | 628.5 |
| | DGR | DETACHED GARAGE | 5 | 0 | 1990 | 0.0 |
Sketch
Property Image
Land
| 1 | LB | LOW BANK | 1.2700 | 55321.20 | 100.00 | 0.00 | 1.00 | $825,000 | $0 |
| 2 | 55 | TIDES | 0.0000 | 0.00 | 100.00 | 0.00 | 1.00 | $1,000 | $0 |
Roll Value History
| 2026 | N/A | N/A | N/A | N/A | N/A |
| 2025 | $620,829 | $826,000 | $0 | $1,446,829 | $1,446,829 |
| 2024 | $628,019 | $801,000 | $0 | $1,429,019 | $1,429,019 |
| 2023 | $635,209 | $801,000 | $0 | $1,436,209 | $1,436,209 |
| 2022 | $583,112 | $776,000 | $0 | $1,359,112 | $1,359,112 |
| 2021 | $514,686 | $601,000 | $0 | $1,115,686 | $1,115,686 |
| 2020 | $501,116 | $601,000 | $0 | $1,102,116 | $1,102,116 |
| 2019 | $399,856 | $481,000 | $0 | $880,856 | $880,856 |
| 2018 | $400,923 | $401,000 | $0 | $801,923 | $801,923 |
| 2017 | $282,428 | $401,000 | $0 | $683,428 | $683,428 |
| 2016 | $285,689 | $401,000 | $0 | $686,689 | $686,689 |
| 2015 | $288,952 | $401,000 | $0 | $689,952 | $689,952 |
| 2014 | $288,297 | $401,000 | $0 | $689,297 | $689,297 |
| 2013 | $291,642 | $401,000 | $0 | $692,642 | $692,642 |
| 2012 | $294,988 | $359,517 | $0 | $654,505 | $654,505 |
| 2011 | $298,332 | $422,785 | $0 | $721,117 | $721,117 |
| 2010 | $310,160 | $422,785 | $0 | $732,945 | $732,945 |
| 2009 | $323,418 | $526,609 | $0 | $850,027 | $850,027 |
| 2008 | $301,086 | $802,670 | $0 | $1,103,756 | $1,103,756 |
| 2007 | $305,143 | $801,970 | $0 | $1,107,113 | $1,107,113 |
Deed and Sales History
| 1 | 11/13/2017 | WD | Warranty Deed | COUCH, WILLIAM M | GODECKE, COLIN A | | | $1,200,000.00 | 31939 | 4434288 |
|   | |
| 2 | 03/01/1995 | OTHER | Other - Misc. Documents | COUCH, WILLIAM M | COUCH, WILLIAM M | | | $0.00 | 66323 | 95004140 |
| 3 | 04/01/1988 | DECREE | Divorce Decree/Legal Separation | Unknown | COUCH, WILLIAM M | | | $0.00 | 83291 | 88012281 |
Payout Agreement
| No payout information available.. |