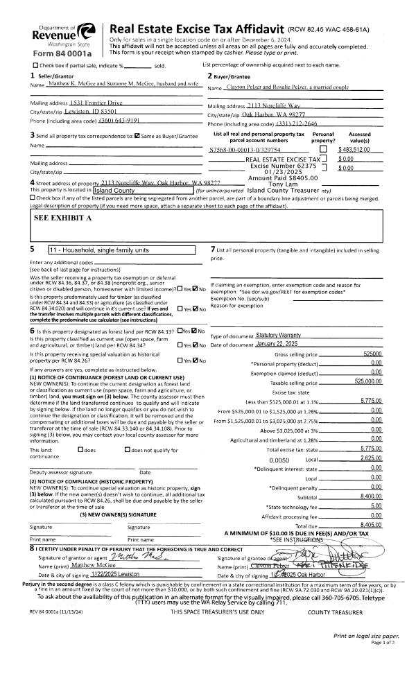
Property
Account |
| Property ID: | 703055 | Abbreviated Legal Description: | TRACT B - SP 74-070 E165' OF W660' OF PT JOHN KINETH DC: BG INTER WLN SD JOHN KINETH DC & SLN SEC 35 N01*E1980' S88*E2640' S01*W 660'TPB S01*W660' S88*E TO WLN PARKER RD NLY ALG SD RD TP S88*E FR TPB N88*W TPB TGW & SUB EZ FR 099-0160 |
| Geographic ID: | R13236-099-0240 | Agent Code: | |
| Type: | Real | | |
| Tax Area: | 312 - APPRAISER-Cpvl Schl Dist, outside Cpvl, improved, greater than 1 acre | Land Use Code | 11 |
| Open Space: | N | DFL | N |
| Historic Property: | N | Remodel Property: | N |
| Multi-Family Redevelopment: | N | | |
| Township: | 32 | Section: | 36 |
| Range: | R1 |
Location |
| Address: | 360 PLUM CREEK LN COUPEVILLE, WA 98239 | Mapsco: | |
| Neighborhood: | Cycle 2 | Map ID: | 185 |
| Neighborhood CD: | 2 |
Owner |
| Name: | BARTHOLOMEW, ROBERT | Owner ID: | 277665 |
| Mailing Address: | JENNIFER BARTHOLOMEW 360 PLUM CREEK LN COUPEVILLE, WA 98239 | % Ownership: | 100.0000000000% |
| | | Exemptions: | |
Taxes and Assessment Details
Values
| (+) Improvement Homesite Value: | + | $0 | |
| (+) Improvement Non-Homesite Value: | + | $159,641 | |
| (+) Land Homesite Value: | + | $0 | |
| (+) Land Non-Homesite Value: | + | $308,125 | |
| (+) Curr Use (HS): | + | $0 | $0 |
| (+) Curr Use (NHS): | + | $0 | $0 |
| | | -------------------------- | |
| (=) Market Value: | = | $467,766 | |
| (–) Productivity Loss: | – | $0 | |
| | | -------------------------- | |
| (=) Subtotal: | = | $467,766 | |
| (+) Senior Appraised Value: | + | $0 | |
| (+) Non-Senior Appraised Value: | + | $467,766 | |
| | | -------------------------- | |
| (=) Total Appraised Value: | = | $467,766 | |
| (–) Senior Exemption Loss: | – | $0 | |
| (–) Exemption Loss: | – | $0 | |
| | | -------------------------- | |
| (=) Taxable Value: | = | $467,766 | |
Taxing Jurisdiction
| Owner: | BARTHOLOMEW, ROBERT | | |
| % Ownership: | 100.0000000000% | | |
| Total Value: | $467,766 | | |
| Tax Area: | 312 - APPRAISER-Cpvl Schl Dist, outside Cpvl, improved, greater than 1 acre |
| CF | Conservation Futures | 0.0316035091 | $467,766 | $467,766 | $14.78 | | |
| CEM2 | Cemetery #2 | 0.0095056933 | $467,766 | $467,766 | $4.45 | | |
| FIRE5 | Fire & Rescue Dist #5 C Whidbey GEN | 1.2008080668 | $467,766 | $467,766 | $561.70 | | |
| FIRE5BOND | Fire & Rescue Dist #5 C Whidbey BOND | 0.1400090713 | $467,766 | $467,766 | $65.49 | | |
| HOBOND | Hospital BOND | 0.1910887512 | $467,766 | $467,766 | $89.38 | | |
| HOGEN | Hospital GEN | 0.3902502903 | $467,766 | $467,766 | $182.55 | | |
| CE | County Current Expense | 0.3708482477 | $467,766 | $467,766 | $173.47 | | |
| CR | County Roads | 0.4584763726 | $467,766 | $467,766 | $214.46 | | |
| ISLANDEMS | Hospital GEN (EMS) | 0.5000000000 | $467,766 | $467,766 | $233.88 | | |
| LIB | Library Sno-Isle GEN | 0.3153421757 | $467,766 | $467,766 | $147.51 | | |
| LIBCAP | Library Sno-Isle BOND (Cap Fac Imp Area) | 0.0543427938 | $467,766 | $467,766 | $25.42 | | |
| POCOUP | Port of Coupeville GEN | 0.1093371703 | $467,766 | $467,766 | $51.14 | | |
| POCOUPIDD | Port of Coupeville IDD | 0.3409740022 | $467,766 | $467,766 | $159.50 | | |
| COUPSDTECH | School 204 CP (TECH) | 0.7545480007 | $467,766 | $467,766 | $352.95 | | |
| SCH204MO | School 204 Enrichment | 0.6716186034 | $467,766 | $467,766 | $314.16 | | |
| ST | State School | 1.3035497053 | $467,766 | $467,766 | $609.76 | | |
| ST2 | State School Part 2 | 0.8169543533 | $467,766 | $467,766 | $382.14 | | |
| | Total Tax Rate: | 7.6592568070 | | | | | |
| | | | | Taxes w/Current Exemptions: | $3,582.74 | | |
| | | | | Taxes w/o Exemptions: | $3,582.74 | | |
Improvement / Building
| Improvement #1: | MANUFACTURED HOME | State Code: | Y | 1573.0 sqft | Value: | $159,641 |
| Bathrooms: | 2 | Bedrooms: | 3 | | Ceiling: | PLASTER PAINTED | Exterior Wall/Cover: | VINYL | | Floor Covering: | CARPET 100% | Floor Structure: | SLAB ON GRADE | | Foundation: | SLAB | Heating: | FHA ELECTRIC | | Interior Finish: | PLASTER | Plumbing Fixture Cnt: | 1 | | Roof Slope: | FLAT | Roof Structure/Cover: | CJ ALUMINIUM HEAVY |
|
| | Type | Description | Class CD | Sub Class CD | Year Built | Area |
| | BAS | BASE/MAIN FLOOR | 4 | 0 | 1999 | 1573.0 |
| | OWP | OPEN WOOD PORCH W/STEPS | 4 | 0 | 1999 | 350.0 |
| | DGR | DETACHED GARAGE | 4 | 0 | 1999 | 864.0 |
| | OWP | OPEN WOOD PORCH W/STEPS | 4 | 0 | 1999 | 112.0 |
Sketch
Property Image
Land
| 1 | 91 | UNDEVELOPED LAND-METES AND BOUNDS | 1.5000 | 65340.00 | 0.00 | 0.00 | 1.00 | $88,125 | $0 |
| 2 | HS | HOMESITE | 1.0000 | 43560.00 | 0.00 | 0.00 | 1.00 | $220,000 | $0 |
Roll Value History
| 2026 | N/A | N/A | N/A | N/A | N/A |
| 2025 | $159,641 | $308,125 | $0 | $467,766 | $467,766 |
| 2024 | $155,385 | $280,000 | $0 | $435,385 | $435,385 |
| 2023 | $139,547 | $260,000 | $0 | $399,547 | $399,547 |
| 2022 | $129,726 | $250,000 | $0 | $379,726 | $379,726 |
| 2021 | $115,738 | $160,000 | $0 | $275,738 | $275,738 |
| 2020 | $115,188 | $150,000 | $0 | $265,188 | $265,188 |
| 2019 | $92,997 | $180,000 | $0 | $272,997 | $272,997 |
| 2018 | $95,238 | $170,000 | $0 | $265,238 | $265,238 |
| 2017 | $96,394 | $130,000 | $0 | $226,394 | $226,394 |
| 2016 | $82,847 | $120,000 | $0 | $202,847 | $202,847 |
| 2015 | $84,389 | $95,000 | $0 | $179,389 | $179,389 |
| 2014 | $85,932 | $95,000 | $0 | $180,932 | $180,932 |
| 2013 | $87,475 | $95,000 | $0 | $182,475 | $182,475 |
| 2012 | $99,038 | $80,750 | $0 | $179,788 | $179,788 |
| 2011 | $100,533 | $95,000 | $0 | $195,533 | $195,533 |
| 2010 | $98,559 | $95,000 | $0 | $193,559 | $193,559 |
| 2009 | $101,791 | $124,000 | $0 | $225,791 | $225,791 |
| 2008 | $103,918 | $124,000 | $0 | $227,918 | $227,918 |
| 2007 | $106,047 | $124,000 | $0 | $230,047 | $230,047 |
Deed and Sales History
| 1 | 11/29/2016 | WD | Warranty Deed | VAUGHAN, DAVID | BARTHOLOMEW, ROBERT | | | $297,000.00 | 27095 | 4412307 |
| 2 | 02/28/2003 | QCD | Quit Claim Deed | , | VAUGHAN, DAVID | | | $0.00 | 30978 | 4050577 |
| 3 | 12/04/1998 | WD | Warranty Deed | ABBOTT, JANET E | , | | | $0.00 | 84874 | 98026878 |
| 4 | 03/01/1995 | OTHER | Other - Misc. Documents | ABBOTT, JANET E | ABBOTT, JANET E | | | $0.00 | 66333 | 0 |
| 5 | 01/01/1900 | OTHER | Other - Misc. Documents | Unknown | ABBOTT, JANET E | | | $0.00 | 50692 | 95003160 |
Payout Agreement
| No payout information available.. |