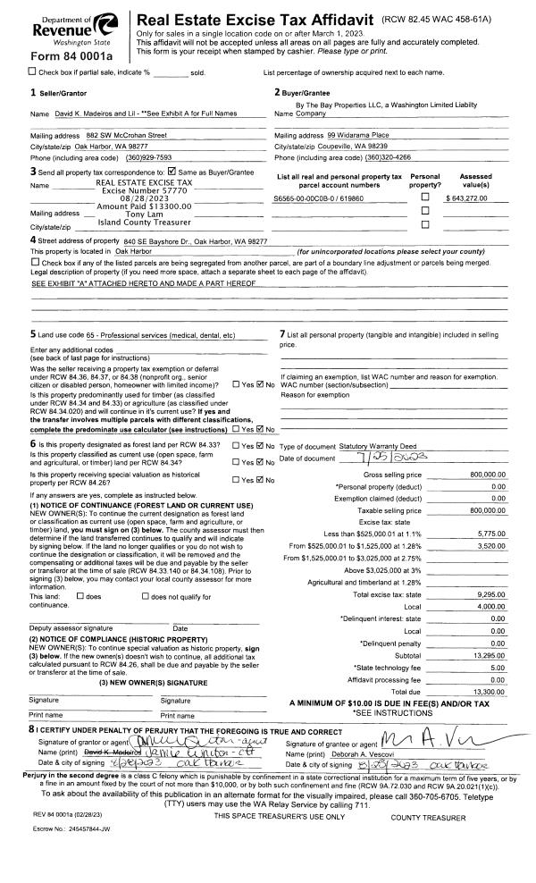
Property
Account |
| Property ID: | 703126 | Abbreviated Legal Description: | E/2 N/2 SW SW SW & E/2 S/2 NW SW SW TGW S60' OF NE SW SW TGW & SUB EZ |
| Geographic ID: | R23223-067-0490 | Agent Code: | |
| Type: | Real | | |
| Tax Area: | 512 - APPRAISER-Stan/Cam Schl Dist, improved, greater than 1 acre | Land Use Code | 11 |
| Open Space: | N | DFL | N |
| Historic Property: | N | Remodel Property: | N |
| Multi-Family Redevelopment: | N | | |
| Township: | 32 | Section: | 23 |
| Range: | R2 |
Location |
| Address: | 851 S WEST CAMANO DR CAMANO ISLAND, WA 98282 | Mapsco: | |
| Neighborhood: | North Camano | Map ID: | 554 |
| Neighborhood CD: | 06-C |
Owner |
| Name: | SUAVERDEZ, GERRY S | Owner ID: | 58644 |
| Mailing Address: | JOANNE SUAVERDEZ PO BOX 533 MUKILTEO, WA 98275 | % Ownership: | 100.0000000000% |
| | | Exemptions: | |
Taxes and Assessment Details
Values
| (+) Improvement Homesite Value: | + | $0 | |
| (+) Improvement Non-Homesite Value: | + | $1 | |
| (+) Land Homesite Value: | + | $0 | |
| (+) Land Non-Homesite Value: | + | $260,000 | |
| (+) Curr Use (HS): | + | $0 | $0 |
| (+) Curr Use (NHS): | + | $0 | $0 |
| | | -------------------------- | |
| (=) Market Value: | = | $260,001 | |
| (–) Productivity Loss: | – | $0 | |
| | | -------------------------- | |
| (=) Subtotal: | = | $260,001 | |
| (+) Senior Appraised Value: | + | $0 | |
| (+) Non-Senior Appraised Value: | + | $260,001 | |
| | | -------------------------- | |
| (=) Total Appraised Value: | = | $260,001 | |
| (–) Senior Exemption Loss: | – | $0 | |
| (–) Exemption Loss: | – | $0 | |
| | | -------------------------- | |
| (=) Taxable Value: | = | $260,001 | |
Taxing Jurisdiction
| Owner: | SUAVERDEZ, GERRY S | | |
| % Ownership: | 100.0000000000% | | |
| Total Value: | $260,001 | | |
| Tax Area: | 512 - APPRAISER-Stan/Cam Schl Dist, improved, greater than 1 acre |
| CF | Conservation Futures | 0.0316035091 | $260,001 | $260,001 | $8.22 | | |
| EMS1 | Fire & Rescue Dist #1 Camano GEN (EMS) | 0.3677864386 | $260,001 | $260,001 | $95.62 | | |
| FIRE1 | Fire & Rescue Dist #1 Camano GEN | 1.2502910536 | $260,001 | $260,001 | $325.08 | | |
| FIRE1BOND | Fire & Rescue Dist #1 Camano BOND | 0.1570001679 | $260,001 | $260,001 | $40.82 | | |
| CE | County Current Expense | 0.3708482477 | $260,001 | $260,001 | $96.42 | | |
| CR | County Roads | 0.4584763726 | $260,001 | $260,001 | $119.20 | | |
| LCIB | Library Sno-Isle BOND (Camano Island) | 0.0396325772 | $260,001 | $260,001 | $10.30 | | |
| LIB | Library Sno-Isle GEN | 0.3153421757 | $260,001 | $260,001 | $81.99 | | |
| SCH205_401 | School 205-401 Enrichment | 1.2698420524 | $260,001 | $260,001 | $330.16 | | |
| SCH205BOND | School 205-401 BOND | 0.9396497583 | $260,001 | $260,001 | $244.31 | | |
| ST | State School | 1.3035497053 | $260,001 | $260,001 | $338.92 | | |
| ST2 | State School Part 2 | 0.8169543533 | $260,001 | $260,001 | $212.41 | | |
| | Total Tax Rate: | 7.3209764117 | | | | | |
| | | | | Taxes w/Current Exemptions: | $1,903.45 | | |
| | | | | Taxes w/o Exemptions: | $1,903.45 | | |
Improvement / Building
| Improvement #1: | MANUFACTURED HOME | State Code: | Y | 924.0 sqft | Value: | $1 |
| Bathrooms: | 0 | Bedrooms: | 0 | | Ceiling: | PLASTER PAINTED | Cooling: | EVAP NO DUCT | | Exterior Wall/Cover: | VINYL | Floor Covering: | CARPET 100% | | Floor Structure: | SLAB ON GRADE | Foundation: | SLAB | | Heating: | FHA ELECTRIC | Interior Finish: | PLASTER | | Plumbing Fixture Cnt: | 1 | Roof Slope: | FLAT | | Roof Structure/Cover: | CJ ALUMINIUM HEAVY |   |   |
|
Sketch
Property Image
Land
| 1 | 32 | AC (03.01-09.99) | 5.9100 | 0.00 | 0.00 | 0.00 | 1.00 | $260,000 | $0 |
Roll Value History
| 2026 | N/A | N/A | N/A | N/A | N/A |
| 2025 | $1 | $260,000 | $0 | $260,001 | $260,001 |
| 2024 | $1 | $240,000 | $0 | $240,001 | $240,001 |
| 2023 | $1 | $200,000 | $0 | $200,001 | $200,001 |
| 2022 | $15,144 | $300,000 | $0 | $315,144 | $315,144 |
| 2021 | $13,767 | $190,000 | $0 | $203,767 | $203,767 |
| 2020 | $13,944 | $190,000 | $0 | $203,944 | $203,944 |
| 2019 | $11,672 | $220,000 | $0 | $231,672 | $231,672 |
| 2018 | $12,130 | $190,000 | $0 | $202,130 | $202,130 |
| 2017 | $12,588 | $170,000 | $0 | $182,588 | $182,588 |
| 2016 | $19,046 | $135,000 | $0 | $154,046 | $154,046 |
| 2015 | $19,732 | $147,750 | $0 | $167,482 | $167,482 |
| 2014 | $20,190 | $147,750 | $0 | $167,940 | $167,940 |
| 2013 | $20,648 | $118,200 | $0 | $138,848 | $138,848 |
| 2012 | $21,105 | $127,656 | $0 | $148,761 | $148,761 |
| 2011 | $21,563 | $159,570 | $0 | $181,133 | $181,133 |
| 2010 | $31,306 | $159,570 | $0 | $190,876 | $190,876 |
| 2009 | $32,703 | $197,985 | $0 | $230,688 | $230,688 |
| 2008 | $33,539 | $236,400 | $0 | $269,939 | $269,939 |
| 2007 | $34,322 | $218,895 | $0 | $253,217 | $253,217 |
Deed and Sales History
| 1 | 04/13/2005 | WD | Warranty Deed | VYAZHEVICH, YEVGENY & | SUAVERDEZ, GERRY S | | | $180,000.00 | 51669 | 4131774 |
| 2 | 03/01/1995 | OTHER | Other - Misc. Documents | Unknown | VYAZHEVICH, YEVGENY / | | | $46,000.00 | 51057 | 0 |
| 3 | 03/01/1995 | OTHER | Other - Misc. Documents | WATKINS, KEN R | WATKINS, KEN R | | | $0.00 | 66335 | 95004287 |
| 4 | 03/01/1995 | WD | Warranty Deed | WATKINS, KEN R | VYAZHEVICH, YEVGENY & | | | $59,000.00 | 51028 | 95004949 |
| 5 | 11/01/1994 | QCD | Quit Claim Deed | VYAZHEVICH, YEVGENY / | WATKINS, KEN R | | | $0.00 | 44689 | 94024023 |
Payout Agreement
| No payout information available.. |