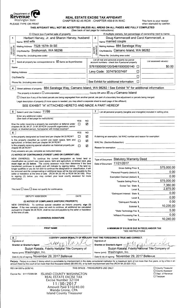
Property
Account |
| Property ID: | 70354 | Abbreviated Legal Description: | 8 - IN GL2: BG SECR GL2 W ALG SLN GL2 20' TPB N487.5' S65*W800' M/L TO ML SLY ALG SD ML TO SLN GL2 ELY ALG SLN GL2 TPB |
| Geographic ID: | R23035-285-4930 | Agent Code: | |
| Type: | Real | | |
| Tax Area: | 712 - APPRAISER-S Whid Schl Dist, outside Langley, improved, greater than 1 acre | Land Use Code | 11 |
| Open Space: | N | DFL | N |
| Historic Property: | N | Remodel Property: | N |
| Multi-Family Redevelopment: | N | | |
| Township: | 30 | Section: | 35 |
| Range: | R2 |
Location |
| Address: | 4584 JUNE BEACH RD FREELAND, WA 98249 | Mapsco: | |
| Neighborhood: | Cycle 3 | Map ID: | 444 |
| Neighborhood CD: | 3 |
Owner |
| Name: | NOWLIS JTWROS, TIMOTHY | Owner ID: | 317226 |
| Mailing Address: | KIMBERLY CHADWICK JTWROS 4584 JUNE BEACH RD FREELAND, WA 98249 | % Ownership: | 100.0000000000% |
| | | Exemptions: | |
Taxes and Assessment Details
Values
| (+) Improvement Homesite Value: | + | $0 | |
| (+) Improvement Non-Homesite Value: | + | $1,544,732 | |
| (+) Land Homesite Value: | + | $0 | |
| (+) Land Non-Homesite Value: | + | $650,000 | |
| (+) Curr Use (HS): | + | $0 | $0 |
| (+) Curr Use (NHS): | + | $0 | $0 |
| | | -------------------------- | |
| (=) Market Value: | = | $2,194,732 | |
| (–) Productivity Loss: | – | $0 | |
| | | -------------------------- | |
| (=) Subtotal: | = | $2,194,732 | |
| (+) Senior Appraised Value: | + | $0 | |
| (+) Non-Senior Appraised Value: | + | $2,194,732 | |
| | | -------------------------- | |
| (=) Total Appraised Value: | = | $2,194,732 | |
| (–) Senior Exemption Loss: | – | $0 | |
| (–) Exemption Loss: | – | $0 | |
| | | -------------------------- | |
| (=) Taxable Value: | = | $2,194,732 | |
Taxing Jurisdiction
| Owner: | NOWLIS JTWROS, TIMOTHY | | |
| % Ownership: | 100.0000000000% | | |
| Total Value: | $2,194,732 | | |
| Tax Area: | 712 - APPRAISER-S Whid Schl Dist, outside Langley, improved, greater than 1 acre |
| CF | Conservation Futures | 0.0316035091 | $2,194,732 | $2,194,732 | $69.36 | | |
| FIRE3 | Fire & Rescue Dist #3 S Whidbey GEN | 1.2004855531 | $2,194,732 | $2,194,732 | $2,634.74 | | |
| HOBOND | Hospital BOND | 0.1910887512 | $2,194,732 | $2,194,732 | $419.39 | | |
| HOGEN | Hospital GEN | 0.3902502903 | $2,194,732 | $2,194,732 | $856.49 | | |
| CE | County Current Expense | 0.3708482477 | $2,194,732 | $2,194,732 | $813.91 | | |
| CR | County Roads | 0.4584763726 | $2,194,732 | $2,194,732 | $1,006.23 | | |
| ISLANDEMS | Hospital GEN (EMS) | 0.5000000000 | $2,194,732 | $2,194,732 | $1,097.37 | | |
| LIB | Library Sno-Isle GEN | 0.3153421757 | $2,194,732 | $2,194,732 | $692.09 | | |
| PORTWHID | Port of S Whidbey GEN | 0.1094540357 | $2,194,732 | $2,194,732 | $240.22 | | |
| SCH206BOND | School 206 BOND | 0.3161759235 | $2,194,732 | $2,194,732 | $693.92 | | |
| SCH206MO | School 206 Enrichment | 0.4547169547 | $2,194,732 | $2,194,732 | $997.98 | | |
| ST | State School | 1.3035497053 | $2,194,732 | $2,194,732 | $2,860.94 | | |
| ST2 | State School Part 2 | 0.8169543533 | $2,194,732 | $2,194,732 | $1,793.00 | | |
| SWHIDPRBD | P & R S Whidbey BOND | 0.0152817568 | $2,194,732 | $2,194,732 | $33.54 | | |
| SWHIDPRBD2 | P & R S Whidbey BOND2 | 0.0138911264 | $2,194,732 | $2,194,732 | $30.49 | | |
| SWHIDPRMT | P & R S Whidbey GEN | 0.2053334452 | $2,194,732 | $2,194,732 | $450.65 | | |
| | Total Tax Rate: | 6.6934522006 | | | | | |
| | | | | Taxes w/Current Exemptions: | $14,690.32 | | |
| | | | | Taxes w/o Exemptions: | $14,690.32 | | |
Improvement / Building
| Improvement #1: | RESIDENTIAL | State Code: | Y | 4333.8 sqft | Value: | $1,038,602 |
| Bathrooms: | 3.5 | Bedrooms: | 2 | | Ceiling: | DRYWALL PAINTED | Exterior Wall/Cover: | WOOD SIDING | | Floor Covering: | HARDWOOD/CARP 80-20 | Floor Structure: | WOOD W/SUBFLOOR | | Foundation: | CONCRETE | Heating: | RADIANT FLOOR | | Interior Finish: | (NONE) | Plumbing Fixture Cnt: | 18 | | Roof Slope: | 6" IN 12" | Roof Structure/Cover: | CJ ASPHALT |
|
| | Type | Description | Class CD | Sub Class CD | Year Built | Area |
| | BAS | BASE/MAIN FLOOR | 6 | 0 | 2022 | 2258.5 |
| | OWC | OPEN WOOD PORCH W/STEPS/ROOF/C | 6 | 0 | 2022 | 477.7 |
| | DWN | DOWNSTAIRS LIVING AREA | 6 | 0 | 2022 | 2075.3 |
| | OP4 | OPEN PORCH W/CEILING-ROOF | 6 | 0 | 2022 | 537.8 |
| | OWC | OPEN WOOD PORCH W/STEPS/ROOF/C | 6 | 0 | 2022 | 537.8 |
| | AGR | ATTACHED GARAGE | 6 | 0 | 2022 | 979.9 |
| Improvement #2: | RESIDENTIAL | State Code: | Y | 1024.0 sqft | Value: | $506,130 |
| Bathrooms: | 2 | Bedrooms: | 1 | | Ceiling: | DRYWALL PAINTED | Cooling: | HEAT PUMP/CONV/V | | Exterior Wall/Cover: | WOOD SIDING | Floor Covering: | VINYL 100% | | Floor Structure: | WOOD W/SUBFLOOR | Foundation: | CONCRETE | | Interior Finish: | DRYWALL PAINT | Plumbing Fixture Cnt: | 10 | | Roof Slope: | 6" IN 12" | Roof Structure/Cover: | BEAM ALUMINUM HEAVY |
|
| | Type | Description | Class CD | Sub Class CD | Year Built | Area |
| | BAS | BASE/MAIN FLOOR | 4 | 0 | 2021 | 1024.0 |
| | BIG | BUILT IN GARAGE | 4 | 0 | 2021 | 2706.3 |
| | OP4 | OPEN PORCH W/CEILING-ROOF | 4 | 0 | 2021 | 27.0 |
| | OCP | OPEN CARPORT | 4 | 0 | 2021 | 288.0 |
| | UTY | STORAGE/UTILITY | 4 | 0 | 2021 | 209.0 |
Sketch
Property Image
Land
| 1 | HB | HIGH BLUFF | 0.0000 | 0.00 | 175.00 | 0.00 | 1.00 | $650,000 | $0 |
Roll Value History
| 2026 | N/A | N/A | N/A | N/A | N/A |
| 2025 | $1,544,732 | $650,000 | $0 | $2,194,732 | $2,194,732 |
| 2024 | $1,136,942 | $650,000 | $0 | $1,786,942 | $1,786,942 |
| 2023 | $838,949 | $650,000 | $0 | $1,488,949 | $1,488,949 |
| 2022 | $510,465 | $560,000 | $0 | $1,070,465 | $1,070,465 |
| 2021 | $256,397 | $450,000 | $0 | $706,397 | $706,397 |
| 2020 | $0 | $450,000 | $0 | $450,000 | $450,000 |
| 2019 | $0 | $450,000 | $0 | $450,000 | $450,000 |
| 2018 | $0 | $450,000 | $0 | $450,000 | $450,000 |
| 2017 | $0 | $250,000 | $0 | $250,000 | $250,000 |
| 2016 | $0 | $250,000 | $0 | $250,000 | $250,000 |
| 2015 | $0 | $250,000 | $0 | $250,000 | $250,000 |
| 2014 | $0 | $250,000 | $0 | $250,000 | $250,000 |
| 2013 | $0 | $280,440 | $0 | $280,440 | $280,440 |
| 2012 | $0 | $280,440 | $0 | $280,440 | $280,440 |
| 2011 | $0 | $280,440 | $0 | $280,440 | $280,440 |
| 2010 | $0 | $280,440 | $0 | $280,440 | $280,440 |
| 2009 | $0 | $400,628 | $0 | $400,628 | $400,628 |
| 2008 | $0 | $462,948 | $0 | $462,948 | $462,948 |
| 2007 | $0 | $482,813 | $0 | $482,813 | $482,813 |
Deed and Sales History
| 1 | 07/01/2025 | WD | Warranty Deed | NOWLIS, TIM | NOWLIS JTWROS, TIMOTHY | | | $0.00 | 64025 | 4587706 |
| 2 | 10/24/2017 | WD | Warranty Deed | MC FADYEN FAMILY LLC | NOWLIS, TIM | | | $475,000.00 | 31694 | 4432953 |
| 3 | 03/16/2005 | WD | Warranty Deed | GALANTE, ANNE E | MC FADYEN FAMILY LLC, | | | $450,000.00 | 51375 | 4130137 |
| 4 | 03/01/1994 | QCD | Quit Claim Deed | CARICO, EDGAR S | GALANTE, ANNE E | | | $0.00 | 40905 | 94005912 |
| 5 | 05/01/1993 | QCD | Quit Claim Deed | CARICO, EDGAR S | CARICO, EDGAR S | | | $0.00 | 31634 | 93008378 |
| 6 | 01/01/1900 | OTHER | Other - Misc. Documents | Unknown | CARICO, EDGAR S | | | $0.00 | 0 | 0 |
Payout Agreement
| No payout information available.. |