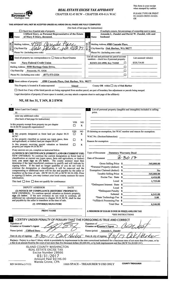
Property
Account |
| Property ID: | 704615 | Abbreviated Legal Description: | PT LOTS 2 & 3 OH-SP 5-93.13210.466-2800, 466-2990 & 489-2760 V3 SP P3 AF#95005073 LY NLY & WLY OF FOLL DESC LN: BG SWCR OF SD LOT 3 N83*E ALG SLY LN SD LOT 3 87.28' N7*W31.37' N77*E30.34' N11*E26' N80*E45.48' S88*E41.10' TP ON ELN OF SD LOT 2 SD PT S1*W33 |
| Geographic ID: | R13210-473-2660 | Agent Code: | |
| Type: | Real | | |
| Tax Area: | 100 - APPRAISER-OH Schl Dist, in OH | Land Use Code | 11 |
| Open Space: | N | DFL | N |
| Historic Property: | N | Remodel Property: | N |
| Multi-Family Redevelopment: | N | | |
| Township: | 32 | Section: | 10 |
| Range: | R1 |
Location |
| Address: | 30660 SR20 OAK HARBOR, WA 98277 | Mapsco: | |
| Neighborhood: | Cycle 1 | Map ID: | 119 |
| Neighborhood CD: | 1 |
Owner |
| Name: | LHS TRUST | Owner ID: | 304289 |
| Mailing Address: | 30658 SR 20 OAK HARBOR, WA 98277 | % Ownership: | 100.0000000000% |
| | | Exemptions: | |
Taxes and Assessment Details
Values
| (+) Improvement Homesite Value: | + | $0 | |
| (+) Improvement Non-Homesite Value: | + | $657,892 | |
| (+) Land Homesite Value: | + | $0 | |
| (+) Land Non-Homesite Value: | + | $250,000 | |
| (+) Curr Use (HS): | + | $0 | $0 |
| (+) Curr Use (NHS): | + | $0 | $0 |
| | | -------------------------- | |
| (=) Market Value: | = | $907,892 | |
| (–) Productivity Loss: | – | $0 | |
| | | -------------------------- | |
| (=) Subtotal: | = | $907,892 | |
| (+) Senior Appraised Value: | + | $0 | |
| (+) Non-Senior Appraised Value: | + | $907,892 | |
| | | -------------------------- | |
| (=) Total Appraised Value: | = | $907,892 | |
| (–) Senior Exemption Loss: | – | $0 | |
| (–) Exemption Loss: | – | $0 | |
| | | -------------------------- | |
| (=) Taxable Value: | = | $907,892 | |
Taxing Jurisdiction
| Owner: | LHS TRUST | | |
| % Ownership: | 100.0000000000% | | |
| Total Value: | $907,892 | | |
| Tax Area: | 100 - APPRAISER-OH Schl Dist, in OH |
| CF | Conservation Futures | 0.0316035091 | $907,892 | $907,892 | $28.69 | | |
| CEM1 | Cemetery #1 | 0.0040320932 | $907,892 | $907,892 | $3.66 | | |
| COH | City of Oak Harbor | 2.3001546061 | $907,892 | $907,892 | $2,088.29 | | |
| OAKBOND | City of Oak Harbor BOND | 0.1926904192 | $907,892 | $907,892 | $174.94 | | |
| HOBOND | Hospital BOND | 0.1910887512 | $907,892 | $907,892 | $173.49 | | |
| HOGEN | Hospital GEN | 0.3902502903 | $907,892 | $907,892 | $354.31 | | |
| CE | County Current Expense | 0.3708482477 | $907,892 | $907,892 | $336.69 | | |
| ISLANDEMS | Hospital GEN (EMS) | 0.5000000000 | $907,892 | $907,892 | $453.95 | | |
| LIB | Library Sno-Isle GEN | 0.3153421757 | $907,892 | $907,892 | $286.30 | | |
| NWHIDPRMT | P & R N Whidbey GEN | 0.2004466701 | $907,892 | $907,892 | $181.98 | | |
| SCH201MO | School 201 Enrichment | 1.8559231640 | $907,892 | $907,892 | $1,684.98 | | |
| ST | State School | 1.3035497053 | $907,892 | $907,892 | $1,183.48 | | |
| ST2 | State School Part 2 | 0.8169543533 | $907,892 | $907,892 | $741.71 | | |
| | Total Tax Rate: | 8.4728839852 | | | | | |
| | | | | Taxes w/Current Exemptions: | $7,692.47 | | |
| | | | | Taxes w/o Exemptions: | $7,692.47 | | |
Improvement / Building
| Improvement #1: | RESIDENTIAL | State Code: | Y | 3516.5 sqft | Value: | $657,892 |
| Bathrooms: | 2.5 | Bedrooms: | 2 | | Ceiling: | DRYWALL PAINTED | Exterior Wall/Cover: | CEMENT FIBER | | Floor Covering: | CERAMIC TILE/HWD 40/60 | Floor Structure: | WOOD W/SUBFLOOR | | Foundation: | CONCRETE | Heating: | RADIANT FLOOR | | Interior Finish: | DRYWALL PAINT | Plumbing Fixture Cnt: | 13 | | Roof Slope: | 4" IN 12" | Roof Structure/Cover: | CJ ASPHALT |
|
| | Type | Description | Class CD | Sub Class CD | Year Built | Area |
| | BAS | BASE/MAIN FLOOR | 4 | 0 | 2017 | 2046.5 |
| | UPS | UPPER STORY | 4 | 0 | 2017 | 770.0 |
| | AGR | ATTACHED GARAGE | 4 | 0 | 2017 | 908.0 |
| | DWN | DOWNSTAIRS LIVING AREA | 4 | 0 | 2017 | 700.0 |
| | OWP | OPEN WOOD PORCH W/STEPS | 4 | 0 | 2017 | 379.0 |
| | OWC | OPEN WOOD PORCH W/STEPS/ROOF/C | 4 | 0 | 2017 | 92.0 |
| | OWC | OPEN WOOD PORCH W/STEPS/ROOF/C | 4 | 0 | 2017 | 68.0 |
| | OP2 | OPEN PORCH W/STEPS | 4 | 0 | 2017 | 400.0 |
| | OWP | OPEN WOOD PORCH W/STEPS | 4 | 0 | 2017 | 36.0 |
Sketch
Property Image
Land
| 1 | 15 | SQ (12001-21780) | 0.0000 | 0.00 | 0.00 | 0.00 | 1.00 | $250,000 | $0 |
Roll Value History
| 2026 | N/A | N/A | N/A | N/A | N/A |
| 2025 | $657,892 | $250,000 | $0 | $907,892 | $907,892 |
| 2024 | $663,284 | $220,000 | $0 | $883,284 | $883,284 |
| 2023 | $637,930 | $180,000 | $0 | $817,930 | $817,930 |
| 2022 | $582,298 | $180,000 | $0 | $762,298 | $762,298 |
| 2021 | $510,424 | $135,000 | $0 | $645,424 | $645,424 |
| 2020 | $496,235 | $100,000 | $0 | $596,235 | $596,235 |
| 2019 | $388,991 | $150,000 | $0 | $538,991 | $538,991 |
| 2018 | $389,981 | $130,000 | $0 | $519,981 | $519,981 |
| 2017 | $395,920 | $120,000 | $0 | $515,920 | $515,920 |
| 2016 | $0 | $60,000 | $0 | $60,000 | $60,000 |
| 2015 | $0 | $60,000 | $0 | $60,000 | $60,000 |
| 2014 | $0 | $60,000 | $0 | $60,000 | $60,000 |
| 2013 | $0 | $54,600 | $0 | $54,600 | $54,600 |
| 2012 | $0 | $54,600 | $0 | $54,600 | $54,600 |
| 2011 | $0 | $54,600 | $0 | $54,600 | $54,600 |
| 2010 | $0 | $54,600 | $0 | $54,600 | $54,600 |
| 2009 | $0 | $65,050 | $0 | $65,050 | $65,050 |
| 2008 | $0 | $65,050 | $0 | $65,050 | $65,050 |
| 2007 | $0 | $65,050 | $0 | $65,050 | $65,050 |
Deed and Sales History
| 1 | 05/04/2022 | QCD | Quit Claim Deed | ARNOLD, CRISTAL L | LHS TRUST | | | $0.00 | 53131 | 4545224 |
| 2 | 11/11/2021 | QCD | Quit Claim Deed | ARNOLD, ERIC T | ARNOLD, CRISTAL L | | | $0.00 | 51425 | 4536410 |
| 3 | 04/20/2017 | QCD | Quit Claim Deed | ARNOLD, ERIC T | ARNOLD, ERIC T | | | $0.00 | 29053 | 4421507 |
| 4 | 09/27/2012 | WD | Warranty Deed | CHRIS J SANTAMARIA | ARNOLD, ERIC T | | | $50,000.00 | 9078 | 4324475 |
| 5 | 12/06/2001 | WD | Warranty Deed | MCKEON, MARYANNA B | SANTAMARIA, CHRIS J | | | $59,994.00 | 14590 | 4004753 |
| 6 | 06/05/1998 | OTHER | Other - Misc. Documents | MCKEON, MARYANNA B | MCKEON, MARYANNA B | | | $0.00 | 67875 | 0 |
| 7 | 06/01/1998 | OTHER | Other - Misc. Documents | MCKEON, AMBROSE J | MCKEON, MARYANNA B | | | $0.00 | 67875 | 0 |
| 8 | 01/01/1900 | OTHER | Other - Misc. Documents | Unknown | MCKEON, AMBROSE J | | | $0.00 | 50196 | 85000926 |
Payout Agreement
| No payout information available.. |