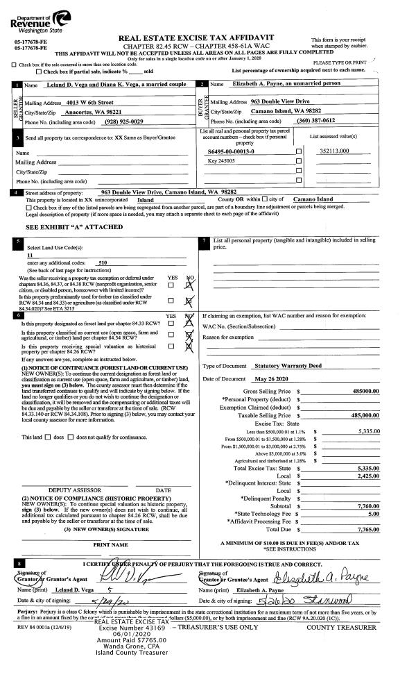
Property
Account |
| Property ID: | 704811 | Abbreviated Legal Description: | IN ALEX DC: BG SWCR BLK 5 ALEX-GLEN N1*E168.98' TPB N1*E31.02' TO SWCR LOT 1 BLK 5 ALEX-GLEN S88*E75.96'TO SECR LOT 1 (SWCR |
| Geographic ID: | R13233-405-3070 | Agent Code: | |
| Type: | Real | | |
| Tax Area: | 300 - APPRAISER-Cpvl Schl Dist, in Cpvl | Land Use Code | 11 |
| Open Space: | N | DFL | N |
| Historic Property: | N | Remodel Property: | N |
| Multi-Family Redevelopment: | N | | |
| Township: | 32 | Section: | 33 |
| Range: | R1 |
Location |
| Address: | 911 COLBURN ST COUPEVILLE, WA 98239 | Mapsco: | |
| Neighborhood: | Area 2 Coupeville Waterfront Residential | Map ID: | 175 |
| Neighborhood CD: | 2CPV01R |
Owner |
| Name: | MILLER, GARTH A | Owner ID: | 285853 |
| Mailing Address: | HOLLY M MILLER PO BOX 744 COUPEVILLE, WA 98239 | % Ownership: | 100.0000000000% |
| | | Exemptions: | |
Taxes and Assessment Details
Values
| (+) Improvement Homesite Value: | + | $0 | |
| (+) Improvement Non-Homesite Value: | + | $413,062 | |
| (+) Land Homesite Value: | + | $0 | |
| (+) Land Non-Homesite Value: | + | $835,000 | |
| (+) Curr Use (HS): | + | $0 | $0 |
| (+) Curr Use (NHS): | + | $0 | $0 |
| | | -------------------------- | |
| (=) Market Value: | = | $1,248,062 | |
| (–) Productivity Loss: | – | $0 | |
| | | -------------------------- | |
| (=) Subtotal: | = | $1,248,062 | |
| (+) Senior Appraised Value: | + | $0 | |
| (+) Non-Senior Appraised Value: | + | $1,248,062 | |
| | | -------------------------- | |
| (=) Total Appraised Value: | = | $1,248,062 | |
| (–) Senior Exemption Loss: | – | $0 | |
| (–) Exemption Loss: | – | $0 | |
| | | -------------------------- | |
| (=) Taxable Value: | = | $1,248,062 | |
Taxing Jurisdiction
| Owner: | MILLER, GARTH A | | |
| % Ownership: | 100.0000000000% | | |
| Total Value: | $1,248,062 | | |
| Tax Area: | 300 - APPRAISER-Cpvl Schl Dist, in Cpvl |
| CF | Conservation Futures | 0.0316035091 | $1,248,062 | $1,248,062 | $39.44 | | |
| CEM2 | Cemetery #2 | 0.0095056933 | $1,248,062 | $1,248,062 | $11.86 | | |
| COUP | City: Town of Coupeville | 0.8426414490 | $1,248,062 | $1,248,062 | $1,051.67 | | |
| FIRE5 | Fire & Rescue Dist #5 C Whidbey GEN | 1.2008080668 | $1,248,062 | $1,248,062 | $1,498.68 | | |
| FIRE5BOND | Fire & Rescue Dist #5 C Whidbey BOND | 0.1400090713 | $1,248,062 | $1,248,062 | $174.74 | | |
| HOBOND | Hospital BOND | 0.1910887512 | $1,248,062 | $1,248,062 | $238.49 | | |
| HOGEN | Hospital GEN | 0.3902502903 | $1,248,062 | $1,248,062 | $487.06 | | |
| CE | County Current Expense | 0.3708482477 | $1,248,062 | $1,248,062 | $462.84 | | |
| ISLANDEMS | Hospital GEN (EMS) | 0.5000000000 | $1,248,062 | $1,248,062 | $624.03 | | |
| LIB | Library Sno-Isle GEN | 0.3153421757 | $1,248,062 | $1,248,062 | $393.57 | | |
| LIBCAP | Library Sno-Isle BOND (Cap Fac Imp Area) | 0.0543427938 | $1,248,062 | $1,248,062 | $67.82 | | |
| POCOUP | Port of Coupeville GEN | 0.1093371703 | $1,248,062 | $1,248,062 | $136.46 | | |
| POCOUPIDD | Port of Coupeville IDD | 0.3409740022 | $1,248,062 | $1,248,062 | $425.56 | | |
| COUPSDTECH | School 204 CP (TECH) | 0.7545480007 | $1,248,062 | $1,248,062 | $941.72 | | |
| SCH204MO | School 204 Enrichment | 0.6716186034 | $1,248,062 | $1,248,062 | $838.22 | | |
| ST | State School | 1.3035497053 | $1,248,062 | $1,248,062 | $1,626.91 | | |
| ST2 | State School Part 2 | 0.8169543533 | $1,248,062 | $1,248,062 | $1,019.61 | | |
| | Total Tax Rate: | 8.0434218834 | | | | | |
| | | | | Taxes w/Current Exemptions: | $10,038.68 | | |
| | | | | Taxes w/o Exemptions: | $10,038.68 | | |
Improvement / Building
| Improvement #1: | RESIDENTIAL | State Code: | Y | 1656.0 sqft | Value: | $413,062 |
| Bathrooms: | 1.75 | Bedrooms: | 2 | | Ceiling: | DRYWALL PAINTED | Exterior Wall/Cover: | SHINGLE | | Floor Covering: | CERAMIC TILE/HWD 40/60 | Floor Structure: | WOOD W/SUBFLOOR | | Foundation: | CONCRETE | Heating: | BASEBOARD ELECTRIC | | Interior Finish: | DRYWALL PAINT | Plumbing Fixture Cnt: | 14 | | Roof Slope: | 6" IN 12" | Roof Structure/Cover: | CJ WOOD SHINGLE |
|
| | Type | Description | Class CD | Sub Class CD | Year Built | Area |
| | BAS | BASE/MAIN FLOOR | 4 | 0 | 1852 | 1656.0 |
| | DGR | DETACHED GARAGE | 4 | 0 | 1852 | 484.0 |
| | OP2 | OPEN PORCH W/STEPS | 4 | 0 | 1852 | 88.0 |
| | OP2 | OPEN PORCH W/STEPS | 4 | 0 | 1852 | 167.0 |
| | UTY | STORAGE/UTILITY | 4 | 0 | 1852 | 84.0 |
| | ENP | ENCLOSED PORCH | 4 | 0 | 1852 | 238.0 |
Sketch
| No sketches available for this property. |
Property Image
Land
| 1 | HB | HIGH BLUFF | 0.0000 | 0.00 | 140.00 | 0.00 | 1.00 | $835,000 | $0 |
Roll Value History
| 2026 | N/A | N/A | N/A | N/A | N/A |
| 2025 | $413,062 | $835,000 | $0 | $1,248,062 | $1,248,062 |
| 2024 | $408,683 | $795,000 | $0 | $1,203,683 | $1,203,683 |
| 2023 | $414,419 | $795,000 | $0 | $1,209,419 | $1,209,419 |
| 2022 | $380,457 | $750,000 | $0 | $1,130,457 | $1,130,457 |
| 2021 | $335,351 | $625,000 | $0 | $960,351 | $960,351 |
| 2020 | $326,373 | $600,000 | $0 | $926,373 | $926,373 |
| 2019 | $237,910 | $550,000 | $0 | $787,910 | $787,910 |
| 2018 | $158,751 | $500,000 | $0 | $658,751 | $658,751 |
| 2017 | $160,084 | $450,000 | $0 | $610,084 | $610,084 |
| 2016 | $162,752 | $450,000 | $0 | $612,752 | $612,752 |
| 2015 | $165,421 | $450,000 | $0 | $615,421 | $615,421 |
| 2014 | $168,088 | $450,000 | $0 | $618,088 | $618,088 |
| 2013 | $170,756 | $417,311 | $0 | $588,067 | $588,067 |
| 2012 | $176,826 | $417,311 | $0 | $594,137 | $594,137 |
| 2011 | $153,989 | $417,311 | $0 | $571,300 | $571,300 |
| 2010 | $148,225 | $417,311 | $0 | $565,536 | $565,536 |
| 2009 | $137,832 | $521,637 | $0 | $659,469 | $659,469 |
| 2008 | $105,070 | $488,517 | $0 | $593,587 | $593,587 |
| 2007 | $196,731 | $399,423 | $0 | $596,154 | $596,154 |
Deed and Sales History
| 1 | 09/24/2019 | WD | Warranty Deed | BUNCH, MARK W | MILLER, GARTH A | | | $1,268,500.00 | 40419 | 4472079 |
|   | |
| 2 | 04/01/1995 | OTHER | Other - Misc. Documents | BUNCH, MARK W | BUNCH, MARK W | | | $0.00 | 66360 | 95005172 |
| 3 | 01/01/1900 | OTHER | Other - Misc. Documents | Unknown | BUNCH, MARK W | | | $0.00 | 30494 | 93002712 |
Payout Agreement
| No payout information available.. |