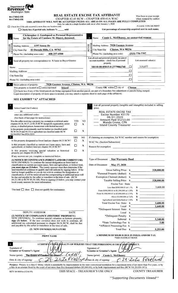
Property
Account |
| Property ID: | 704820 | Abbreviated Legal Description: | IN ALEX DC: BG SWCR SWIFT TR MARKED |
| Geographic ID: | R13233-400-3160 | Agent Code: | |
| Type: | Real | | |
| Tax Area: | 300 - APPRAISER-Cpvl Schl Dist, in Cpvl | Land Use Code | 91 |
| Open Space: | N | DFL | N |
| Historic Property: | N | Remodel Property: | N |
| Multi-Family Redevelopment: | N | | |
| Township: | 32 | Section: | 33 |
| Range: | R1 |
Location |
| Address: | | Mapsco: | |
| Neighborhood: | Area 2 Coupeville Waterfront Residential | Map ID: | 175 |
| Neighborhood CD: | 2CPV01R |
Owner |
| Name: | MILLER, GARTH A | Owner ID: | 285853 |
| Mailing Address: | HOLLY M MILLER PO BOX 744 COUPEVILLE, WA 98239 | % Ownership: | 100.0000000000% |
| | | Exemptions: | |
Taxes and Assessment Details
Values
| (+) Improvement Homesite Value: | + | $0 | |
| (+) Improvement Non-Homesite Value: | + | $0 | |
| (+) Land Homesite Value: | + | $0 | |
| (+) Land Non-Homesite Value: | + | $275,000 | |
| (+) Curr Use (HS): | + | $0 | $0 |
| (+) Curr Use (NHS): | + | $0 | $0 |
| | | -------------------------- | |
| (=) Market Value: | = | $275,000 | |
| (–) Productivity Loss: | – | $0 | |
| | | -------------------------- | |
| (=) Subtotal: | = | $275,000 | |
| (+) Senior Appraised Value: | + | $0 | |
| (+) Non-Senior Appraised Value: | + | $275,000 | |
| | | -------------------------- | |
| (=) Total Appraised Value: | = | $275,000 | |
| (–) Senior Exemption Loss: | – | $0 | |
| (–) Exemption Loss: | – | $0 | |
| | | -------------------------- | |
| (=) Taxable Value: | = | $275,000 | |
Taxing Jurisdiction
| Owner: | MILLER, GARTH A | | |
| % Ownership: | 100.0000000000% | | |
| Total Value: | $275,000 | | |
| Tax Area: | 300 - APPRAISER-Cpvl Schl Dist, in Cpvl |
| CF | Conservation Futures | 0.0316035091 | $275,000 | $275,000 | $8.69 | | |
| CEM2 | Cemetery #2 | 0.0095056933 | $275,000 | $275,000 | $2.61 | | |
| COUP | City: Town of Coupeville | 0.8426414490 | $275,000 | $275,000 | $231.73 | | |
| FIRE5 | Fire & Rescue Dist #5 C Whidbey GEN | 1.2008080668 | $275,000 | $275,000 | $330.22 | | |
| FIRE5BOND | Fire & Rescue Dist #5 C Whidbey BOND | 0.1400090713 | $275,000 | $275,000 | $38.50 | | |
| HOBOND | Hospital BOND | 0.1910887512 | $275,000 | $275,000 | $52.55 | | |
| HOGEN | Hospital GEN | 0.3902502903 | $275,000 | $275,000 | $107.32 | | |
| CE | County Current Expense | 0.3708482477 | $275,000 | $275,000 | $101.98 | | |
| ISLANDEMS | Hospital GEN (EMS) | 0.5000000000 | $275,000 | $275,000 | $137.50 | | |
| LIB | Library Sno-Isle GEN | 0.3153421757 | $275,000 | $275,000 | $86.72 | | |
| LIBCAP | Library Sno-Isle BOND (Cap Fac Imp Area) | 0.0543427938 | $275,000 | $275,000 | $14.94 | | |
| POCOUP | Port of Coupeville GEN | 0.1093371703 | $275,000 | $275,000 | $30.07 | | |
| POCOUPIDD | Port of Coupeville IDD | 0.3409740022 | $275,000 | $275,000 | $93.77 | | |
| COUPSDTECH | School 204 CP (TECH) | 0.7545480007 | $275,000 | $275,000 | $207.50 | | |
| SCH204MO | School 204 Enrichment | 0.6716186034 | $275,000 | $275,000 | $184.70 | | |
| ST | State School | 1.3035497053 | $275,000 | $275,000 | $358.48 | | |
| ST2 | State School Part 2 | 0.8169543533 | $275,000 | $275,000 | $224.66 | | |
| | Total Tax Rate: | 8.0434218834 | | | | | |
| | | | | Taxes w/Current Exemptions: | $2,211.94 | | |
| | | | | Taxes w/o Exemptions: | $2,211.94 | | |
Improvement / Building
Sketch
| No sketches available for this property. |
Property Image
Land
| 1 | HB | HIGH BLUFF | 0.3400 | 14810.40 | 70.00 | 0.00 | 1.00 | $275,000 | $0 |
Roll Value History
| 2026 | N/A | N/A | N/A | N/A | N/A |
| 2025 | $0 | $275,000 | $0 | $275,000 | $275,000 |
| 2024 | $0 | $260,000 | $0 | $260,000 | $260,000 |
| 2023 | $0 | $260,000 | $0 | $260,000 | $260,000 |
| 2022 | $0 | $250,000 | $0 | $250,000 | $250,000 |
| 2021 | $0 | $210,000 | $0 | $210,000 | $210,000 |
| 2020 | $0 | $200,000 | $0 | $200,000 | $200,000 |
| 2019 | $0 | $200,000 | $0 | $200,000 | $200,000 |
| 2018 | $0 | $150,000 | $0 | $150,000 | $150,000 |
| 2017 | $0 | $150,000 | $0 | $150,000 | $150,000 |
| 2016 | $0 | $150,000 | $0 | $150,000 | $150,000 |
| 2015 | $0 | $110,650 | $0 | $110,650 | $110,650 |
| 2014 | $0 | $110,650 | $0 | $110,650 | $110,650 |
| 2013 | $0 | $110,650 | $0 | $110,650 | $110,650 |
| 2012 | $0 | $110,650 | $0 | $110,650 | $110,650 |
| 2011 | $0 | $110,650 | $0 | $110,650 | $110,650 |
| 2010 | $0 | $110,650 | $0 | $110,650 | $110,650 |
| 2009 | $0 | $138,313 | $0 | $138,313 | $138,313 |
| 2008 | $0 | $122,767 | $0 | $122,767 | $122,767 |
| 2007 | $0 | $122,767 | $0 | $122,767 | $122,767 |
Deed and Sales History
| 1 | 09/24/2019 | WD | Warranty Deed | BUNCH, MARK W | MILLER, GARTH A | | | $1,268,500.00 | 40419 | 4472079 |
|   | |
| 2 | 04/01/1995 | OTHER | Other - Misc. Documents | BUNCH, MARK W | BUNCH, MARK W | | | $0.00 | 66360 | 95005172 |
| 3 | 01/01/1900 | OTHER | Other - Misc. Documents | Unknown | BUNCH, MARK W | | | $0.00 | 30494 | 93002712 |
Payout Agreement
| No payout information available.. |