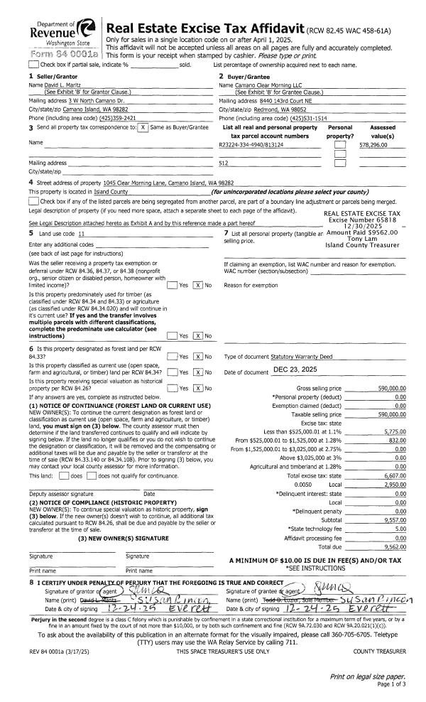
Property
Account |
| Property ID: | 705552 | Abbreviated Legal Description: | N400' OF W550' OF GL 7 LY N OF ST HWY 525 FR 084-1620 |
| Geographic ID: | R13234-115-1320 | Agent Code: | |
| Type: | Real | | |
| Tax Area: | 312 - APPRAISER-Cpvl Schl Dist, outside Cpvl, improved, greater than 1 acre | Land Use Code | 83 |
| Open Space: | Y | DFL | N |
| Historic Property: | N | Remodel Property: | N |
| Multi-Family Redevelopment: | N | | |
| Township: | 32 | Section: | 34 |
| Range: | R1 |
Location |
| Address: | 21308 SR20 COUPEVILLE, WA 98239 | Mapsco: | |
| Neighborhood: | Cycle 2 | Map ID: | 177 |
| Neighborhood CD: | 2 |
Owner |
| Name: | ST AMAND TTEE, HELEN H | Owner ID: | 314724 |
| Mailing Address: | MARINEA ST AMAND KATHERINE EYTH PO BOX 271 COUPEVILLE, WA 98239 | % Ownership: | 100.0000000000% |
| | | Exemptions: | |
Taxes and Assessment Details
Values
| (+) Improvement Homesite Value: | + | $0 | |
| (+) Improvement Non-Homesite Value: | + | $184,802 | |
| (+) Land Homesite Value: | + | $0 | |
| (+) Land Non-Homesite Value: | + | $220,000 | |
| (+) Curr Use (HS): | + | $0 | $0 |
| (+) Curr Use (NHS): | + | $120,240 | $2,475 |
| | | -------------------------- | |
| (=) Market Value: | = | $525,042 | |
| (–) Productivity Loss: | – | $117,765 | |
| | | -------------------------- | |
| (=) Subtotal: | = | $407,277 | |
| (+) Senior Appraised Value: | + | $0 | |
| (+) Non-Senior Appraised Value: | + | $407,277 | |
| | | -------------------------- | |
| (=) Total Appraised Value: | = | $407,277 | |
| (–) Senior Exemption Loss: | – | $0 | |
| (–) Exemption Loss: | – | $0 | |
| | | -------------------------- | |
| (=) Taxable Value: | = | $407,277 | |
Taxing Jurisdiction
| Owner: | ST AMAND TTEE, HELEN H | | |
| % Ownership: | 100.0000000000% | | |
| Total Value: | $525,042 | | |
| Tax Area: | 312 - APPRAISER-Cpvl Schl Dist, outside Cpvl, improved, greater than 1 acre |
| CF | Conservation Futures | 0.0316035091 | $407,277 | $407,277 | $12.87 | | |
| CEM2 | Cemetery #2 | 0.0095056933 | $407,277 | $407,277 | $3.87 | | |
| FIRE5 | Fire & Rescue Dist #5 C Whidbey GEN | 1.2008080668 | $407,277 | $407,277 | $489.06 | | |
| FIRE5BOND | Fire & Rescue Dist #5 C Whidbey BOND | 0.1400090713 | $407,277 | $407,277 | $57.02 | | |
| HOBOND | Hospital BOND | 0.1910887512 | $407,277 | $407,277 | $77.83 | | |
| HOGEN | Hospital GEN | 0.3902502903 | $407,277 | $407,277 | $158.94 | | |
| CE | County Current Expense | 0.3708482477 | $407,277 | $407,277 | $151.04 | | |
| CR | County Roads | 0.4584763726 | $407,277 | $407,277 | $186.73 | | |
| ISLANDEMS | Hospital GEN (EMS) | 0.5000000000 | $407,277 | $407,277 | $203.64 | | |
| LIB | Library Sno-Isle GEN | 0.3153421757 | $407,277 | $407,277 | $128.43 | | |
| LIBCAP | Library Sno-Isle BOND (Cap Fac Imp Area) | 0.0543427938 | $407,277 | $407,277 | $22.13 | | |
| POCOUP | Port of Coupeville GEN | 0.1093371703 | $407,277 | $407,277 | $44.53 | | |
| POCOUPIDD | Port of Coupeville IDD | 0.3409740022 | $407,277 | $407,277 | $138.87 | | |
| COUPSDTECH | School 204 CP (TECH) | 0.7545480007 | $407,277 | $407,277 | $307.31 | | |
| SCH204MO | School 204 Enrichment | 0.6716186034 | $407,277 | $407,277 | $273.53 | | |
| ST | State School | 1.3035497053 | $407,277 | $407,277 | $530.91 | | |
| ST2 | State School Part 2 | 0.8169543533 | $407,277 | $407,277 | $332.73 | | |
| | Total Tax Rate: | 7.6592568070 | | | | | |
| | | | | Taxes w/Current Exemptions: | $3,119.44 | | |
| | | | | Taxes w/o Exemptions: | $3,119.44 | | |
Improvement / Building
| Improvement #1: | MANUFACTURED HOME | State Code: | Y | 1782.0 sqft | Value: | $184,802 |
| Bathrooms: | 2 | Bedrooms: | 3 | | Ceiling: | PLASTER PAINTED | Cooling: | EVAP NO DUCT | | Exterior Wall/Cover: | VINYL | Floor Covering: | CARPET 100% | | Floor Structure: | SLAB ON GRADE | Foundation: | SLAB | | Heating: | FHA ELECTRIC | Interior Finish: | PLASTER | | Plumbing Fixture Cnt: | 1 | Roof Slope: | FLAT | | Roof Structure/Cover: | CJ ALUMINIUM HEAVY |   |   |
|
| | Type | Description | Class CD | Sub Class CD | Year Built | Area |
| | BAS | BASE/MAIN FLOOR | 4 | 0 | 1995 | 1782.0 |
| | OWR | OPEN WOOD PORCH W/STEPS/ROOF | 4 | 0 | 1995 | 100.0 |
| | oBAR | BARN | 3 | 0 | 1995 | 1728.0 |
| | oCAR | CARPORT | 3 | 0 | 1995 | 480.0 |
| | CPD | OPEN CARPORT DIRT FLOOR | 4 | 0 | 1995 | 392.0 |
Sketch
| No sketches available for this property. |
Property Image
Land
| 1 | HS | HOMESITE | 1.0000 | 43560.00 | 0.00 | 0.00 | 1.00 | $220,000 | $0 |
| 2 | 83 | OPEN AGRICULTURE | 4.0500 | 176418.00 | 2.53 | 0.00 | 1.00 | $120,240 | $2,475 |
Roll Value History
| 2026 | N/A | N/A | N/A | N/A | N/A |
| 2025 | $184,802 | $340,240 | $2,475 | $407,277 | $407,277 |
| 2024 | $155,026 | $300,000 | $2,475 | $367,501 | $367,501 |
| 2023 | $142,685 | $280,000 | $2,475 | $200,606 | $200,606 |
| 2022 | $135,536 | $260,000 | $2,475 | $190,011 | $190,011 |
| 2021 | $125,023 | $225,000 | $2,475 | $172,052 | $172,052 |
| 2020 | $124,966 | $215,000 | $2,475 | $170,015 | $170,015 |
| 2019 | $107,801 | $230,000 | $2,475 | $155,821 | $155,821 |
| 2018 | $104,989 | $220,000 | $2,475 | $151,028 | $151,028 |
| 2017 | $106,864 | $200,000 | $2,475 | $148,943 | $148,943 |
| 2016 | $108,739 | $150,000 | $2,475 | $140,917 | $140,917 |
| 2015 | $110,613 | $136,350 | $2,475 | $140,088 | $140,088 |
| 2014 | $112,488 | $136,350 | $2,475 | $141,963 | $141,963 |
| 2013 | $113,425 | $138,600 | $2,475 | $141,100 | $141,100 |
| 2012 | $131,506 | $138,600 | $2,475 | $159,181 | $159,181 |
| 2011 | $133,413 | $141,400 | $2,475 | $163,888 | $163,888 |
| 2010 | $139,054 | $141,400 | $2,475 | $169,529 | $169,529 |
| 2009 | $144,916 | $151,500 | $2,475 | $177,391 | $177,391 |
| 2008 | $148,153 | $148,975 | $0 | $297,128 | $297,128 |
| 2007 | $151,745 | $148,975 | $0 | $300,720 | $300,720 |
Deed and Sales History
| 1 | 12/02/2024 | QCD | Quit Claim Deed | ST AMAND, HELEN | ST AMAND TTEE, HELEN H | | | $0.00 | 61970 | 4579980 |
| 2 | 05/08/2023 | PRD | Personal Representatives Deed | ATKINS JR, ROBERT A | ST AMAND, HELEN | | | $610,000.00 | 56657 | 4559722 |
|   | |
| 3 | 04/01/1995 | OTHER | Other - Misc. Documents | ATKINS, ROBERT A | ATKINS, ROBERT A | | | $0.00 | 66402 | 95006515 |
| 4 | 05/01/1994 | OTHER | Other - Misc. Documents | Unknown | ATKINS, ROBERT A | | | $0.00 | 65883 | 0 |
Payout Agreement
| No payout information available.. |