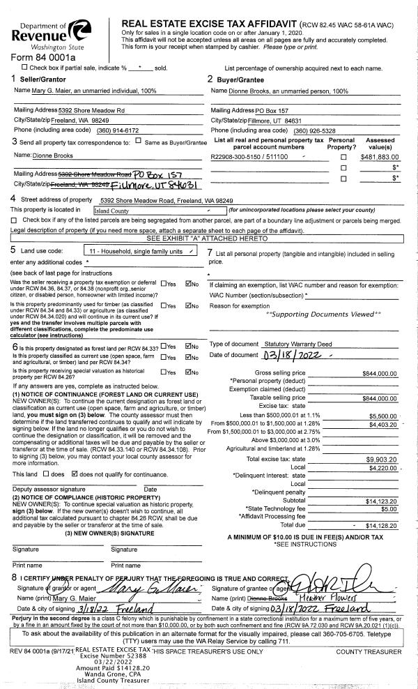
Property
Account |
| Property ID: | 705669 | Abbreviated Legal Description: | LIVINGSTON BAY #2 - PRD LOT 4 & DRAINFIELD EZ 4A |
| Geographic ID: | S7380-02-00004-0 | Agent Code: | |
| Type: | Real | | |
| Tax Area: | 510 - APPRAISER-Stan/Cam Schl Dist, improved & 1 acre or less | Land Use Code | 11 |
| Open Space: | N | DFL | N |
| Historic Property: | N | Remodel Property: | N |
| Multi-Family Redevelopment: | N | | |
| Township: | | Section: | |
| Range: | |
Location |
| Address: | 759 FOX TROT WAY LOTS 4-4A CAMANO ISLAND, WA 98282 | Mapsco: | |
| Neighborhood: | Cycle 5 | Map ID: | 983 |
| Neighborhood CD: | 5 |
Owner |
| Name: | PARRIS, JOANN EILEEN | Owner ID: | 65234 |
| Mailing Address: | 759 FOX TROT WAY CAMANO ISLAND, WA 98282-8861 | % Ownership: | 100.0000000000% |
| | | Exemptions: | |
Taxes and Assessment Details
Values
| (+) Improvement Homesite Value: | + | $0 | |
| (+) Improvement Non-Homesite Value: | + | $305,618 | |
| (+) Land Homesite Value: | + | $0 | |
| (+) Land Non-Homesite Value: | + | $350,000 | |
| (+) Curr Use (HS): | + | $0 | $0 |
| (+) Curr Use (NHS): | + | $0 | $0 |
| | | -------------------------- | |
| (=) Market Value: | = | $655,618 | |
| (–) Productivity Loss: | – | $0 | |
| | | -------------------------- | |
| (=) Subtotal: | = | $655,618 | |
| (+) Senior Appraised Value: | + | $0 | |
| (+) Non-Senior Appraised Value: | + | $655,618 | |
| | | -------------------------- | |
| (=) Total Appraised Value: | = | $655,618 | |
| (–) Senior Exemption Loss: | – | $0 | |
| (–) Exemption Loss: | – | $0 | |
| | | -------------------------- | |
| (=) Taxable Value: | = | $655,618 | |
Taxing Jurisdiction
| Owner: | PARRIS, JOANN EILEEN | | |
| % Ownership: | 100.0000000000% | | |
| Total Value: | $655,618 | | |
| Tax Area: | 510 - APPRAISER-Stan/Cam Schl Dist, improved & 1 acre or less |
| CF | Conservation Futures | 0.0316035091 | $655,618 | $655,618 | $20.72 | | |
| EMS1 | Fire & Rescue Dist #1 Camano GEN (EMS) | 0.3677864386 | $655,618 | $655,618 | $241.13 | | |
| FIRE1 | Fire & Rescue Dist #1 Camano GEN | 1.2502910536 | $655,618 | $655,618 | $819.71 | | |
| FIRE1BOND | Fire & Rescue Dist #1 Camano BOND | 0.1570001679 | $655,618 | $655,618 | $102.93 | | |
| CE | County Current Expense | 0.3708482477 | $655,618 | $655,618 | $243.13 | | |
| CR | County Roads | 0.4584763726 | $655,618 | $655,618 | $300.59 | | |
| LCIB | Library Sno-Isle BOND (Camano Island) | 0.0396325772 | $655,618 | $655,618 | $25.98 | | |
| LIB | Library Sno-Isle GEN | 0.3153421757 | $655,618 | $655,618 | $206.74 | | |
| SCH205_401 | School 205-401 Enrichment | 1.2698420524 | $655,618 | $655,618 | $832.53 | | |
| SCH205BOND | School 205-401 BOND | 0.9396497583 | $655,618 | $655,618 | $616.05 | | |
| ST | State School | 1.3035497053 | $655,618 | $655,618 | $854.63 | | |
| ST2 | State School Part 2 | 0.8169543533 | $655,618 | $655,618 | $535.61 | | |
| | Total Tax Rate: | 7.3209764117 | | | | | |
| | | | | Taxes w/Current Exemptions: | $4,799.75 | | |
| | | | | Taxes w/o Exemptions: | $4,799.75 | | |
Improvement / Building
| Improvement #1: | RESIDENTIAL | State Code: | Y | 1716.0 sqft | Value: | $305,618 |
| Bathrooms: | 2.5 | Bedrooms: | 3 | | Ceiling: | DRYWALL PAINTED | Exterior Wall/Cover: | CEMENT FIBER | | Floor Covering: | CERAMIC TILE/CPT 40-60 | Floor Structure: | WOOD W/SUBFLOOR | | Foundation: | CONCRETE | Heating: | FHA GAS | | Interior Finish: | DRYWALL PAINT | Plumbing Fixture Cnt: | 12 | | Roof Slope: | 3" IN 12" | Roof Structure/Cover: | CJ ASPHALT |
|
| | Type | Description | Class CD | Sub Class CD | Year Built | Area |
| | BAS | BASE/MAIN FLOOR | 3 | 0 | 1996 | 1002.0 |
| | OP4 | OPEN PORCH W/CEILING-ROOF | 3 | 0 | 1996 | 36.0 |
| | AGR | ATTACHED GARAGE | 3 | 0 | 1996 | 500.0 |
| | UPS | UPPER STORY | 3 | 0 | 1996 | 714.0 |
| | BAW | BALCONY WOOD RAIL | 3 | 0 | 1996 | 32.0 |
| | OWP | OPEN WOOD PORCH W/STEPS | 3 | 0 | 1996 | 408.0 |
Sketch
Property Image
Land
| 1 | 16 | AC (00.51-01.00) | 0.0000 | 0.00 | 0.00 | 0.00 | 1.00 | $350,000 | $0 |
Roll Value History
| 2026 | N/A | N/A | N/A | N/A | N/A |
| 2025 | $305,618 | $350,000 | $0 | $655,618 | $655,618 |
| 2024 | $309,679 | $340,000 | $0 | $649,679 | $649,679 |
| 2023 | $313,741 | $300,000 | $0 | $613,741 | $613,741 |
| 2022 | $287,788 | $270,000 | $0 | $557,788 | $557,788 |
| 2021 | $253,451 | $190,000 | $0 | $443,451 | $443,451 |
| 2020 | $246,848 | $170,000 | $0 | $416,848 | $416,848 |
| 2019 | $180,087 | $225,000 | $0 | $405,087 | $405,087 |
| 2018 | $180,642 | $200,000 | $0 | $380,642 | $380,642 |
| 2017 | $181,750 | $170,000 | $0 | $351,750 | $351,750 |
| 2016 | $183,966 | $100,000 | $0 | $283,966 | $283,966 |
| 2015 | $175,184 | $85,000 | $0 | $260,184 | $260,184 |
| 2014 | $177,322 | $85,000 | $0 | $262,322 | $262,322 |
| 2013 | $179,457 | $85,000 | $0 | $264,457 | $264,457 |
| 2012 | $181,877 | $100,000 | $0 | $281,877 | $281,877 |
| 2011 | $184,016 | $125,000 | $0 | $309,016 | $309,016 |
| 2010 | $190,962 | $125,000 | $0 | $315,962 | $315,962 |
| 2009 | $199,300 | $150,000 | $0 | $349,300 | $349,300 |
| 2008 | $201,679 | $150,000 | $0 | $351,679 | $351,679 |
| 2007 | $204,057 | $150,000 | $0 | $354,057 | $354,057 |
Deed and Sales History
| 1 | 04/17/2007 | QCD | Quit Claim Deed | PARRIS, EDWARD J | PARRIS, JUANN EILEEN | | | $0.00 | 71296 | 4200176 |
| 2 | 06/01/1996 | WD | Warranty Deed | G, A P | PARRIS, EDWARD J | | | $158,000.00 | 62064 | 96010217 |
| 3 | 06/01/1995 | WD | Warranty Deed | FOX, HILL D | G, A P | | | $54,375.00 | 51867 | 95008691 |
| 4 | 01/01/1900 | OTHER | Other - Misc. Documents | Unknown | FOX, HILL D | | | $0.00 | 66136 | 94024388 |
Payout Agreement
| No payout information available.. |