Property
Account |
| Property ID: | 705865 | Abbreviated Legal Description: | LOT 4 SP 22-91.32804.177-1830 V3 SP P7 AF#95006471 CORR. V3 SP P54 AF#95017031 |
| Geographic ID: | R32804-164-1900 | Agent Code: | |
| Type: | Real | | |
| Tax Area: | 712 - APPRAISER-S Whid Schl Dist, outside Langley, improved, greater than 1 acre | Land Use Code | 11 |
| Open Space: | N | DFL | N |
| Historic Property: | N | Remodel Property: | N |
| Multi-Family Redevelopment: | N | | |
| Township: | 28 | Section: | 04 |
| Range: | R3 |
Location |
| Address: | 7443 EAGLE GLEN LN CLINTON, WA 98236 | Mapsco: | |
| Neighborhood: | Cycle 4 | Map ID: | 687 |
| Neighborhood CD: | 4 |
Owner |
| Name: | BRANSFORD, RICHARD J | Owner ID: | 294216 |
| Mailing Address: | JOY E BRANSFORD 2337 N 62ND ST SEATTLE, WA 98103 | % Ownership: | 100.0000000000% |
| | | Exemptions: | |
Taxes and Assessment Details
Values
| (+) Improvement Homesite Value: | + | $0 | |
| (+) Improvement Non-Homesite Value: | + | $582,621 | |
| (+) Land Homesite Value: | + | $0 | |
| (+) Land Non-Homesite Value: | + | $360,000 | |
| (+) Curr Use (HS): | + | $0 | $0 |
| (+) Curr Use (NHS): | + | $0 | $0 |
| | | -------------------------- | |
| (=) Market Value: | = | $942,621 | |
| (–) Productivity Loss: | – | $0 | |
| | | -------------------------- | |
| (=) Subtotal: | = | $942,621 | |
| (+) Senior Appraised Value: | + | $0 | |
| (+) Non-Senior Appraised Value: | + | $942,621 | |
| | | -------------------------- | |
| (=) Total Appraised Value: | = | $942,621 | |
| (–) Senior Exemption Loss: | – | $0 | |
| (–) Exemption Loss: | – | $0 | |
| | | -------------------------- | |
| (=) Taxable Value: | = | $942,621 | |
Taxing Jurisdiction
| Owner: | BRANSFORD, RICHARD J | | |
| % Ownership: | 100.0000000000% | | |
| Total Value: | $942,621 | | |
| Tax Area: | 712 - APPRAISER-S Whid Schl Dist, outside Langley, improved, greater than 1 acre |
| CF | Conservation Futures | 0.0316035091 | $942,621 | $942,621 | $29.79 | | |
| FIRE3 | Fire & Rescue Dist #3 S Whidbey GEN | 1.2004855531 | $942,621 | $942,621 | $1,131.60 | | |
| HOBOND | Hospital BOND | 0.1910887512 | $942,621 | $942,621 | $180.12 | | |
| HOGEN | Hospital GEN | 0.3902502903 | $942,621 | $942,621 | $367.86 | | |
| CE | County Current Expense | 0.3708482477 | $942,621 | $942,621 | $349.57 | | |
| CR | County Roads | 0.4584763726 | $942,621 | $942,621 | $432.17 | | |
| ISLANDEMS | Hospital GEN (EMS) | 0.5000000000 | $942,621 | $942,621 | $471.31 | | |
| LIB | Library Sno-Isle GEN | 0.3153421757 | $942,621 | $942,621 | $297.25 | | |
| PORTWHID | Port of S Whidbey GEN | 0.1094540357 | $942,621 | $942,621 | $103.17 | | |
| SCH206BOND | School 206 BOND | 0.3161759235 | $942,621 | $942,621 | $298.03 | | |
| SCH206MO | School 206 Enrichment | 0.4547169547 | $942,621 | $942,621 | $428.63 | | |
| ST | State School | 1.3035497053 | $942,621 | $942,621 | $1,228.75 | | |
| ST2 | State School Part 2 | 0.8169543533 | $942,621 | $942,621 | $770.08 | | |
| SWHIDPRBD | P & R S Whidbey BOND | 0.0152817568 | $942,621 | $942,621 | $14.40 | | |
| SWHIDPRBD2 | P & R S Whidbey BOND2 | 0.0138911264 | $942,621 | $942,621 | $13.09 | | |
| SWHIDPRMT | P & R S Whidbey GEN | 0.2053334452 | $942,621 | $942,621 | $193.55 | | |
| | Total Tax Rate: | 6.6934522006 | | | | | |
| | | | | Taxes w/Current Exemptions: | $6,309.37 | | |
| | | | | Taxes w/o Exemptions: | $6,309.37 | | |
Improvement / Building
| Improvement #1: | RESIDENTIAL | State Code: | Y | 2619.4 sqft | Value: | $582,621 |
| Bathrooms: | 2 | Bedrooms: | 2 | | Ceiling: | DRYWALL PAINTED | Exterior Wall/Cover: | CEMENT FIBER | | Floor Covering: | TERRAZO | Floor Structure: | WOOD W/SUBFLOOR | | Foundation: | CONCRETE | Heating: | RADIANT FLOOR | | Interior Finish: | DRYWALL PAINT | Plumbing Fixture Cnt: | 13 | | Roof Slope: | 6" IN 12" | Roof Structure/Cover: | CJ ASPHALT |
|
| | Type | Description | Class CD | Sub Class CD | Year Built | Area |
| | BAS | BASE/MAIN FLOOR | 4 | 0 | 1999 | 2619.4 |
| | OP1 | OPEN PORCH SLAB | 4 | 0 | 1999 | 212.7 |
| | OP3 | OPEN PORCH W/ROOF | 4 | 0 | 1999 | 396.8 |
| | AGR | ATTACHED GARAGE | 4 | 0 | 1999 | 655.5 |
| | OWC | OPEN WOOD PORCH W/STEPS/ROOF/C | 4 | 0 | 1999 | 129.8 |
| | OWP | OPEN WOOD PORCH W/STEPS | 4 | 0 | 1999 | 73.9 |
Sketch
| No sketches available for this property. |
Property Image
Land
| 1 | 32 | AC (03.01-09.99) | 3.3900 | 0.00 | 0.00 | 0.00 | 1.00 | $360,000 | $0 |
Roll Value History
| 2026 | N/A | N/A | N/A | N/A | N/A |
| 2025 | $582,621 | $360,000 | $0 | $942,621 | $942,621 |
| 2024 | $589,792 | $340,000 | $0 | $929,792 | $929,792 |
| 2023 | $596,963 | $330,000 | $0 | $926,963 | $926,963 |
| 2022 | $547,032 | $280,000 | $0 | $827,032 | $827,032 |
| 2021 | $481,341 | $230,000 | $0 | $711,341 | $711,341 |
| 2020 | $422,716 | $190,000 | $0 | $612,716 | $612,716 |
| 2019 | $326,405 | $250,000 | $0 | $576,405 | $576,405 |
| 2018 | $327,386 | $210,000 | $0 | $537,386 | $537,386 |
| 2017 | $329,347 | $190,000 | $0 | $519,347 | $519,347 |
| 2016 | $333,267 | $135,000 | $0 | $468,267 | $468,267 |
| 2015 | $337,189 | $135,000 | $0 | $472,189 | $472,189 |
| 2014 | $334,528 | $84,750 | $0 | $419,278 | $419,278 |
| 2013 | $338,342 | $91,530 | $0 | $429,872 | $429,872 |
| 2012 | $342,158 | $115,260 | $0 | $457,418 | $457,418 |
| 2011 | $345,972 | $115,260 | $0 | $461,232 | $461,232 |
| 2010 | $359,693 | $115,260 | $0 | $474,953 | $474,953 |
| 2009 | $374,938 | $149,160 | $0 | $524,098 | $524,098 |
| 2008 | $383,439 | $169,500 | $0 | $552,939 | $552,939 |
| 2007 | $387,949 | $157,000 | $0 | $544,949 | $544,949 |
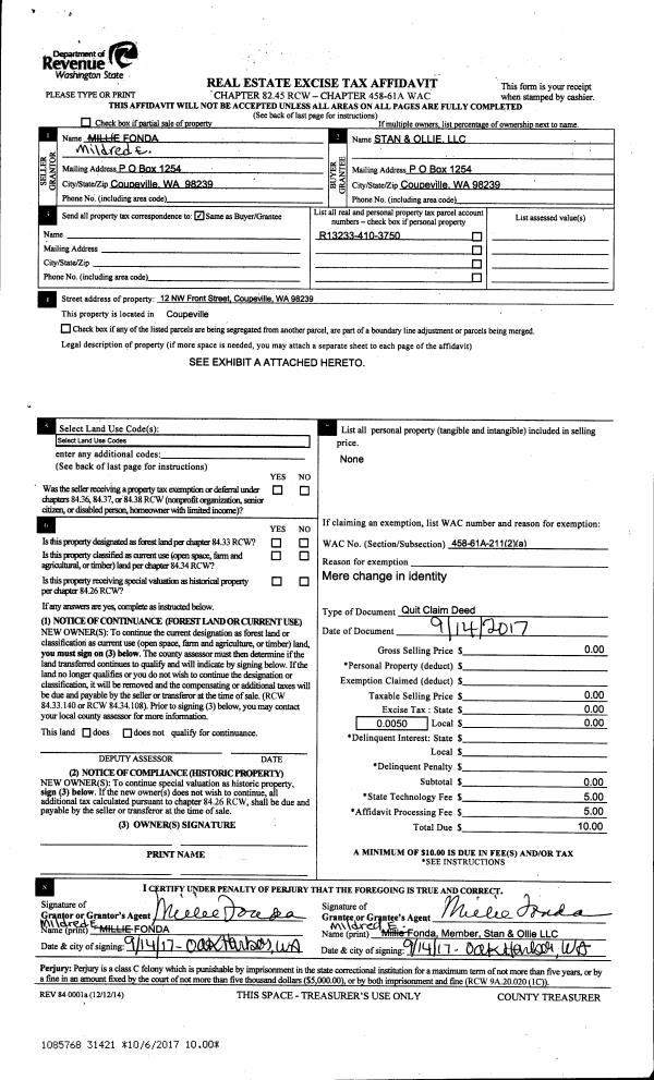
Deed and Sales History
| 1 | 05/08/2020 | WD | Warranty Deed | PETRILLO TTEE, ELIZABETH A | BRANSFORD, RICHARD J | | | $575,000.00 | 43026 | 4486698 |
| 2 | 12/06/2017 | QCD | Quit Claim Deed | MELMAN, DAVID A | PETRILLO TTEE, ELIZABETH A | | | $0.00 | 32708 | 4437981 |
| 3 | 03/26/2002 | WD | Warranty Deed | SILVERS, ROBERT CARL | MELMAN, DAVID A | | | $339,500.00 | 21126 | 4015183 |
| 4 | 05/12/1998 | WD | Warranty Deed | SILVERS, ROBERT C | SILVERS, ROBERT CARL | | | $64,000.00 | 81902 | 98010053 |
| 5 | 02/01/1996 | OTHER | Other - Misc. Documents | WASLOSKI, WILLIAM A | WASLOSKI, WILLIAM A | | | $0.00 | 66785 | 95017031 |
| 6 | 01/01/1900 | OTHER | Other - Misc. Documents | Unknown | WASLOSKI, WILLIAM A | | | $0.00 | 6175 | 90021129 |
| 7 | 01/01/1900 | OTHER | Other - Misc. Documents | WASLOSKI, WILLIAM A | SILVERS, ROBERT C | | | $0.00 | 81902 | 98010053 |
Payout Agreement
| No payout information available.. |