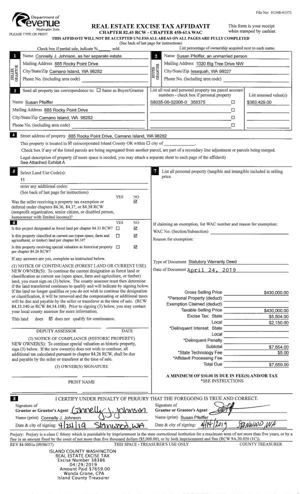
Property
Account |
| Property ID: | 705945 | Abbreviated Legal Description: | LOT 2 SP 24-94.23035.200-4980 V3 SP P5 AF#95006359 |
| Geographic ID: | R23035-205-5120 | Agent Code: | |
| Type: | Real | | |
| Tax Area: | 710 - APPRAISER-S Whid Schl Dist, outside Langley, improved & 1 acre or less | Land Use Code | 11 |
| Open Space: | N | DFL | N |
| Historic Property: | N | Remodel Property: | N |
| Multi-Family Redevelopment: | N | | |
| Township: | 30 | Section: | 35 |
| Range: | R2 |
Location |
| Address: | 4638 EAST HARBOR RD FREELAND, WA 98249 | Mapsco: | |
| Neighborhood: | Cycle 3 | Map ID: | 443 |
| Neighborhood CD: | 3 |
Owner |
| Name: | WEBB, KELLY B | Owner ID: | 289291 |
| Mailing Address: | 4358 CLYDE RD LANGLEY, WA 98260 | % Ownership: | 100.0000000000% |
| | | Exemptions: | |
Taxes and Assessment Details
Values
| (+) Improvement Homesite Value: | + | $0 | |
| (+) Improvement Non-Homesite Value: | + | $679,794 | |
| (+) Land Homesite Value: | + | $0 | |
| (+) Land Non-Homesite Value: | + | $360,000 | |
| (+) Curr Use (HS): | + | $0 | $0 |
| (+) Curr Use (NHS): | + | $0 | $0 |
| | | -------------------------- | |
| (=) Market Value: | = | $1,039,794 | |
| (–) Productivity Loss: | – | $0 | |
| | | -------------------------- | |
| (=) Subtotal: | = | $1,039,794 | |
| (+) Senior Appraised Value: | + | $0 | |
| (+) Non-Senior Appraised Value: | + | $1,039,794 | |
| | | -------------------------- | |
| (=) Total Appraised Value: | = | $1,039,794 | |
| (–) Senior Exemption Loss: | – | $0 | |
| (–) Exemption Loss: | – | $0 | |
| | | -------------------------- | |
| (=) Taxable Value: | = | $1,039,794 | |
Taxing Jurisdiction
| Owner: | WEBB, KELLY B | | |
| % Ownership: | 100.0000000000% | | |
| Total Value: | $1,039,794 | | |
| Tax Area: | 710 - APPRAISER-S Whid Schl Dist, outside Langley, improved & 1 acre or less |
| CF | Conservation Futures | 0.0316035091 | $1,039,794 | $1,039,794 | $32.86 | | |
| FIRE3 | Fire & Rescue Dist #3 S Whidbey GEN | 1.2004855531 | $1,039,794 | $1,039,794 | $1,248.26 | | |
| HOBOND | Hospital BOND | 0.1910887512 | $1,039,794 | $1,039,794 | $198.69 | | |
| HOGEN | Hospital GEN | 0.3902502903 | $1,039,794 | $1,039,794 | $405.78 | | |
| CE | County Current Expense | 0.3708482477 | $1,039,794 | $1,039,794 | $385.61 | | |
| CR | County Roads | 0.4584763726 | $1,039,794 | $1,039,794 | $476.72 | | |
| ISLANDEMS | Hospital GEN (EMS) | 0.5000000000 | $1,039,794 | $1,039,794 | $519.90 | | |
| LIB | Library Sno-Isle GEN | 0.3153421757 | $1,039,794 | $1,039,794 | $327.89 | | |
| PORTWHID | Port of S Whidbey GEN | 0.1094540357 | $1,039,794 | $1,039,794 | $113.81 | | |
| SCH206BOND | School 206 BOND | 0.3161759235 | $1,039,794 | $1,039,794 | $328.76 | | |
| SCH206MO | School 206 Enrichment | 0.4547169547 | $1,039,794 | $1,039,794 | $472.81 | | |
| ST | State School | 1.3035497053 | $1,039,794 | $1,039,794 | $1,355.42 | | |
| ST2 | State School Part 2 | 0.8169543533 | $1,039,794 | $1,039,794 | $849.46 | | |
| SWHIDPRBD | P & R S Whidbey BOND | 0.0152817568 | $1,039,794 | $1,039,794 | $15.89 | | |
| SWHIDPRBD2 | P & R S Whidbey BOND2 | 0.0138911264 | $1,039,794 | $1,039,794 | $14.44 | | |
| SWHIDPRMT | P & R S Whidbey GEN | 0.2053334452 | $1,039,794 | $1,039,794 | $213.50 | | |
| | Total Tax Rate: | 6.6934522006 | | | | | |
| | | | | Taxes w/Current Exemptions: | $6,959.80 | | |
| | | | | Taxes w/o Exemptions: | $6,959.80 | | |
Improvement / Building
| Improvement #1: | RESIDENTIAL | State Code: | Y | 3446.7 sqft | Value: | $679,794 |
| Bathrooms: | 3 | Bedrooms: | 3 | | Ceiling: | TONGUE & GROOVE | Cooling: | HEAT PUMP/CONV/V | | Exterior Wall/Cover: | SHINGLE | Floor Covering: | HARDWOOD 100% | | Floor Structure: | WOOD W/SUBFLOOR | Foundation: | CONCRETE | | Interior Finish: | DRYWALL PAINT | Plumbing Fixture Cnt: | 20 | | Roof Slope: | 6" IN 12" | Roof Structure/Cover: | CJ ASPHALT |
|
| | Type | Description | Class CD | Sub Class CD | Year Built | Area |
| | BAS | BASE/MAIN FLOOR | 4 | 0 | 1996 | 2048.7 |
| | OWP | OPEN WOOD PORCH W/STEPS | 4 | 0 | 1996 | 48.0 |
| | OWP | OPEN WOOD PORCH W/STEPS | 4 | 0 | 1996 | 849.0 |
| | DWN | DOWNSTAIRS LIVING AREA | 4 | 0 | 1996 | 1398.0 |
| | UTY | STORAGE/UTILITY | 4 | 0 | 1996 | 2400.0 |
Sketch
Property Image
Land
| 1 | 16 | AC (00.51-01.00) | 0.0000 | 0.00 | 0.00 | 0.00 | 1.00 | $360,000 | $0 |
Roll Value History
| 2026 | N/A | N/A | N/A | N/A | N/A |
| 2025 | $679,794 | $360,000 | $0 | $1,039,794 | $1,039,794 |
| 2024 | $687,239 | $340,000 | $0 | $1,027,239 | $1,027,239 |
| 2023 | $694,684 | $300,000 | $0 | $994,684 | $994,684 |
| 2022 | $634,988 | $280,000 | $0 | $914,988 | $914,988 |
| 2021 | $565,781 | $220,000 | $0 | $785,781 | $785,781 |
| 2020 | $552,785 | $165,000 | $0 | $717,785 | $717,785 |
| 2019 | $357,185 | $170,000 | $0 | $527,185 | $527,185 |
| 2018 | $358,177 | $130,000 | $0 | $488,177 | $488,177 |
| 2017 | $360,156 | $125,000 | $0 | $485,156 | $485,156 |
| 2016 | $364,119 | $125,000 | $0 | $489,119 | $489,119 |
| 2015 | $368,077 | $97,750 | $0 | $465,827 | $465,827 |
| 2014 | $372,040 | $97,750 | $0 | $469,790 | $469,790 |
| 2013 | $379,808 | $97,750 | $0 | $477,558 | $477,558 |
| 2012 | $383,962 | $97,750 | $0 | $481,712 | $481,712 |
| 2011 | $388,113 | $115,000 | $0 | $503,113 | $503,113 |
| 2010 | $406,992 | $115,000 | $0 | $521,992 | $521,992 |
| 2009 | $425,273 | $165,000 | $0 | $590,273 | $590,273 |
| 2008 | $433,119 | $165,000 | $0 | $598,119 | $598,119 |
| 2007 | $401,565 | $161,838 | $0 | $563,403 | $563,403 |
Deed and Sales History
| 1 | 04/17/2019 | QCD | Quit Claim Deed | WEBB, JOHN C | WEBB, KELLY B | | | $0.00 | 38009 | 4461133 |
| 2 | 04/17/2019 | WD | Warranty Deed | TAYLOR, RODNEY R | WEBB, KELLY B | | | $810,000.00 | 38008 | 4461132 |
| 3 | 06/01/1997 | QCD | Quit Claim Deed | TAYLOR, RODNEY R | TAYLOR, RODNEY R | | | $0.00 | 71893 | 97008648 |
| 4 | 04/01/1996 | QCD | Quit Claim Deed | TAYLOR, ALMA I | TAYLOR, RODNEY R | | | $0.00 | 62729 | 96013378 |
| 5 | 07/01/1995 | QCD | Quit Claim Deed | TAYLOR, A I | TAYLOR, ALMA I | | | $0.00 | 52910 | 95013494 |
| 6 | 01/01/1900 | OTHER | Other - Misc. Documents | Unknown | TAYLOR, A I | | | $0.00 | 0 | 0 |
Payout Agreement
| No payout information available.. |