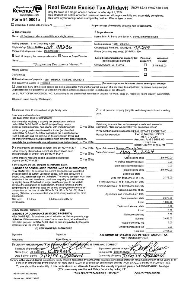
Property
Account |
| Property ID: | 706212 | Abbreviated Legal Description: | THE HEIGHTS LOT 8 |
| Geographic ID: | S8312-00-00008-0 | Agent Code: | |
| Type: | Real | | |
| Tax Area: | 100 - APPRAISER-OH Schl Dist, in OH | Land Use Code | 11 |
| Open Space: | N | DFL | N |
| Historic Property: | N | Remodel Property: | N |
| Multi-Family Redevelopment: | N | | |
| Township: | | Section: | |
| Range: | |
Location |
| Address: | 1228 SW 24TH AVE OAK HARBOR, WA 98277 | Mapsco: | |
| Neighborhood: | Cycle 1 | Map ID: | 118 |
| Neighborhood CD: | 1 |
Owner |
| Name: | YUSCHALK, WILLIAM M | Owner ID: | 80789 |
| Mailing Address: | GLORIA M YUSCHALK 1228 SW 24TH AVE OAK HARBOR, WA 98277-7621 | % Ownership: | 100.0000000000% |
| | | Exemptions: | |
Taxes and Assessment Details
Values
| (+) Improvement Homesite Value: | + | $0 | |
| (+) Improvement Non-Homesite Value: | + | $242,784 | |
| (+) Land Homesite Value: | + | $0 | |
| (+) Land Non-Homesite Value: | + | $180,000 | |
| (+) Curr Use (HS): | + | $0 | $0 |
| (+) Curr Use (NHS): | + | $0 | $0 |
| | | -------------------------- | |
| (=) Market Value: | = | $422,784 | |
| (–) Productivity Loss: | – | $0 | |
| | | -------------------------- | |
| (=) Subtotal: | = | $422,784 | |
| (+) Senior Appraised Value: | + | $0 | |
| (+) Non-Senior Appraised Value: | + | $422,784 | |
| | | -------------------------- | |
| (=) Total Appraised Value: | = | $422,784 | |
| (–) Senior Exemption Loss: | – | $0 | |
| (–) Exemption Loss: | – | $0 | |
| | | -------------------------- | |
| (=) Taxable Value: | = | $422,784 | |
Taxing Jurisdiction
| Owner: | YUSCHALK, WILLIAM M | | |
| % Ownership: | 100.0000000000% | | |
| Total Value: | $422,784 | | |
| Tax Area: | 100 - APPRAISER-OH Schl Dist, in OH |
| CF | Conservation Futures | 0.0316035091 | $422,784 | $422,784 | $13.36 | | |
| CEM1 | Cemetery #1 | 0.0040320932 | $422,784 | $422,784 | $1.70 | | |
| COH | City of Oak Harbor | 2.3001546061 | $422,784 | $422,784 | $972.47 | | |
| OAKBOND | City of Oak Harbor BOND | 0.1926904192 | $422,784 | $422,784 | $81.47 | | |
| HOBOND | Hospital BOND | 0.1910887512 | $422,784 | $422,784 | $80.79 | | |
| HOGEN | Hospital GEN | 0.3902502903 | $422,784 | $422,784 | $164.99 | | |
| CE | County Current Expense | 0.3708482477 | $422,784 | $422,784 | $156.79 | | |
| ISLANDEMS | Hospital GEN (EMS) | 0.5000000000 | $422,784 | $422,784 | $211.39 | | |
| LIB | Library Sno-Isle GEN | 0.3153421757 | $422,784 | $422,784 | $133.32 | | |
| NWHIDPRMT | P & R N Whidbey GEN | 0.2004466701 | $422,784 | $422,784 | $84.75 | | |
| SCH201MO | School 201 Enrichment | 1.8559231640 | $422,784 | $422,784 | $784.65 | | |
| ST | State School | 1.3035497053 | $422,784 | $422,784 | $551.12 | | |
| ST2 | State School Part 2 | 0.8169543533 | $422,784 | $422,784 | $345.40 | | |
| | Total Tax Rate: | 8.4728839852 | | | | | |
| | | | | Taxes w/Current Exemptions: | $3,582.20 | | |
| | | | | Taxes w/o Exemptions: | $3,582.20 | | |
Improvement / Building
| Improvement #1: | RESIDENTIAL | State Code: | Y | 1277.6 sqft | Value: | $242,784 |
| Bathrooms: | 2 | Bedrooms: | 3 | | Ceiling: | DRYWALL PAINTED | Exterior Wall/Cover: | CEMENT FIBER | | Floor Covering: | CARPET/VINYL 80-20 | Floor Structure: | WOOD W/SUBFLOOR | | Foundation: | CONCRETE | Heating: | FHA GAS | | Interior Finish: | DRYWALL PAINT | Plumbing Fixture Cnt: | 9 | | Roof Slope: | 5" IN 12" | Roof Structure/Cover: | CJ ASPHALT |
|
| | Type | Description | Class CD | Sub Class CD | Year Built | Area |
| | BAS | BASE/MAIN FLOOR | 3 | 0 | 1995 | 1277.6 |
| | AGR | ATTACHED GARAGE | 3 | 0 | 1995 | 400.0 |
| | OWC | OPEN WOOD PORCH W/STEPS/ROOF/C | 3 | 0 | 1995 | 87.6 |
Sketch
Property Image
Land
| 1 | 13 | SQ (06001-08000) | 0.0000 | 0.00 | 0.00 | 0.00 | 1.00 | $180,000 | $0 |
Roll Value History
| 2026 | N/A | N/A | N/A | N/A | N/A |
| 2025 | $242,784 | $180,000 | $0 | $422,784 | $422,784 |
| 2024 | $245,701 | $180,000 | $0 | $425,701 | $425,701 |
| 2023 | $233,010 | $140,000 | $0 | $373,010 | $373,010 |
| 2022 | $213,655 | $140,000 | $0 | $353,655 | $353,655 |
| 2021 | $188,106 | $120,000 | $0 | $308,106 | $308,106 |
| 2020 | $183,080 | $100,000 | $0 | $283,080 | $283,080 |
| 2019 | $130,762 | $135,000 | $0 | $265,762 | $265,762 |
| 2018 | $131,154 | $120,000 | $0 | $251,154 | $251,154 |
| 2017 | $126,316 | $100,000 | $0 | $226,316 | $226,316 |
| 2016 | $127,915 | $100,000 | $0 | $227,915 | $227,915 |
| 2015 | $129,514 | $70,000 | $0 | $199,514 | $199,514 |
| 2014 | $131,115 | $60,000 | $0 | $191,115 | $191,115 |
| 2013 | $132,713 | $50,000 | $0 | $182,713 | $182,713 |
| 2012 | $134,313 | $65,000 | $0 | $199,313 | $199,313 |
| 2011 | $134,324 | $50,000 | $0 | $184,324 | $184,324 |
| 2010 | $140,187 | $50,000 | $0 | $190,187 | $190,187 |
| 2009 | $146,265 | $75,000 | $0 | $221,265 | $221,265 |
| 2008 | $148,094 | $100,000 | $0 | $248,094 | $248,094 |
| 2007 | $149,931 | $90,000 | $0 | $239,931 | $239,931 |
Deed and Sales History
| 1 | 11/20/2000 | WD | Warranty Deed | LYTCH, KEITH/ESTHER R | YUSCHALK, WILLIAM M | | | $143,000.00 | 4422 | 20020325 |
| 2 | 05/01/1996 | WD | Warranty Deed | VANDERVOET, LESLIE R | LYTCH, KEITH/ESTHER R | | | $134,500.00 | 61694 | 96008428 |
| 3 | 06/01/1995 | WD | Warranty Deed | ELLSWORTH, DEVELOPMENT I | VANDERVOET, LESLIE R | | | $38,000.00 | 51893 | 95008748 |
| 4 | 01/01/1900 | OTHER | Other - Misc. Documents | Unknown | ELLSWORTH, DEVELOPMENT I | | | $0.00 | 65228 | 0 |
Payout Agreement
| No payout information available.. |