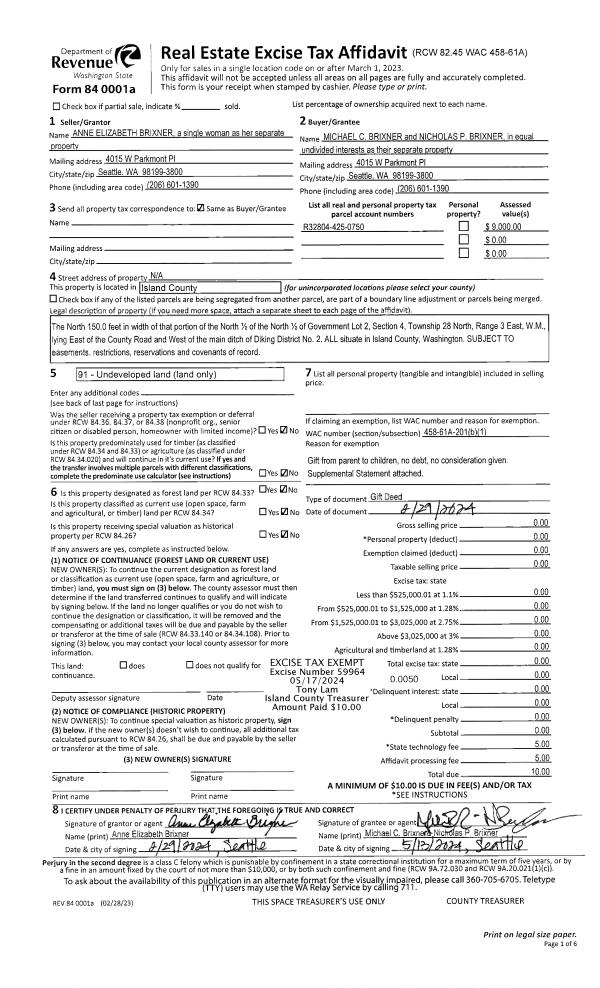
Property
Account |
| Property ID: | 706267 | Abbreviated Legal Description: | THE HEIGHTS LOT 13 |
| Geographic ID: | S8312-00-00013-0 | Agent Code: | |
| Type: | Real | | |
| Tax Area: | 100 - APPRAISER-OH Schl Dist, in OH | Land Use Code | 11 |
| Open Space: | N | DFL | N |
| Historic Property: | N | Remodel Property: | N |
| Multi-Family Redevelopment: | N | | |
| Township: | | Section: | |
| Range: | |
Location |
| Address: | 2321 SW VISTA PARK DR OAK HARBOR, WA 98277 | Mapsco: | |
| Neighborhood: | Cycle 1 | Map ID: | 118 |
| Neighborhood CD: | 1 |
Owner |
| Name: | SMITH, ANDRE | Owner ID: | 300728 |
| Mailing Address: | MARIAH CRUZ 2321 SW VISTA PARK DR OAK HARBOR, WA 98277 | % Ownership: | 100.0000000000% |
| | | Exemptions: | |
Taxes and Assessment Details
Values
| (+) Improvement Homesite Value: | + | $0 | |
| (+) Improvement Non-Homesite Value: | + | $303,466 | |
| (+) Land Homesite Value: | + | $0 | |
| (+) Land Non-Homesite Value: | + | $180,000 | |
| (+) Curr Use (HS): | + | $0 | $0 |
| (+) Curr Use (NHS): | + | $0 | $0 |
| | | -------------------------- | |
| (=) Market Value: | = | $483,466 | |
| (–) Productivity Loss: | – | $0 | |
| | | -------------------------- | |
| (=) Subtotal: | = | $483,466 | |
| (+) Senior Appraised Value: | + | $0 | |
| (+) Non-Senior Appraised Value: | + | $483,466 | |
| | | -------------------------- | |
| (=) Total Appraised Value: | = | $483,466 | |
| (–) Senior Exemption Loss: | – | $0 | |
| (–) Exemption Loss: | – | $0 | |
| | | -------------------------- | |
| (=) Taxable Value: | = | $483,466 | |
Taxing Jurisdiction
| Owner: | SMITH, ANDRE | | |
| % Ownership: | 100.0000000000% | | |
| Total Value: | $483,466 | | |
| Tax Area: | 100 - APPRAISER-OH Schl Dist, in OH |
| CF | Conservation Futures | 0.0316035091 | $483,466 | $483,466 | $15.28 | | |
| CEM1 | Cemetery #1 | 0.0040320932 | $483,466 | $483,466 | $1.95 | | |
| COH | City of Oak Harbor | 2.3001546061 | $483,466 | $483,466 | $1,112.05 | | |
| OAKBOND | City of Oak Harbor BOND | 0.1926904192 | $483,466 | $483,466 | $93.16 | | |
| HOBOND | Hospital BOND | 0.1910887512 | $483,466 | $483,466 | $92.38 | | |
| HOGEN | Hospital GEN | 0.3902502903 | $483,466 | $483,466 | $188.67 | | |
| CE | County Current Expense | 0.3708482477 | $483,466 | $483,466 | $179.29 | | |
| ISLANDEMS | Hospital GEN (EMS) | 0.5000000000 | $483,466 | $483,466 | $241.73 | | |
| LIB | Library Sno-Isle GEN | 0.3153421757 | $483,466 | $483,466 | $152.46 | | |
| NWHIDPRMT | P & R N Whidbey GEN | 0.2004466701 | $483,466 | $483,466 | $96.91 | | |
| SCH201MO | School 201 Enrichment | 1.8559231640 | $483,466 | $483,466 | $897.28 | | |
| ST | State School | 1.3035497053 | $483,466 | $483,466 | $630.22 | | |
| ST2 | State School Part 2 | 0.8169543533 | $483,466 | $483,466 | $394.97 | | |
| | Total Tax Rate: | 8.4728839852 | | | | | |
| | | | | Taxes w/Current Exemptions: | $4,096.35 | | |
| | | | | Taxes w/o Exemptions: | $4,096.35 | | |
Improvement / Building
| Improvement #1: | RESIDENTIAL | State Code: | Y | 1760.0 sqft | Value: | $303,466 |
| Bathrooms: | 2.5 | Bedrooms: | 3 | | Ceiling: | DRYWALL PAINTED | Exterior Wall/Cover: | PLY/HARDBOARD T-111 | | Floor Covering: | HARDWOOD/CARP 20-80 | Floor Structure: | WOOD W/SUBFLOOR | | Foundation: | CONCRETE | Heating: | FHA GAS | | Interior Finish: | DRYWALL PAINT | Plumbing Fixture Cnt: | 11 | | Roof Slope: | 5" IN 12" | Roof Structure/Cover: | CJ ASPHALT |
|
| | Type | Description | Class CD | Sub Class CD | Year Built | Area |
| | BAS | BASE/MAIN FLOOR | 3 | 0 | 1996 | 1036.0 |
| | UTY | STORAGE/UTILITY | 3 | 0 | 1996 | 192.0 |
| | AGR | ATTACHED GARAGE | 3 | 0 | 1996 | 440.0 |
| | UPS | UPPER STORY | 3 | 0 | 1996 | 724.0 |
| | OWC | OPEN WOOD PORCH W/STEPS/ROOF/C | 3 | 0 | 1996 | 128.0 |
Sketch
Property Image
Land
| 1 | 14 | SQ (08001-12000) | 0.0000 | 0.00 | 0.00 | 0.00 | 1.00 | $180,000 | $0 |
Roll Value History
| 2026 | N/A | N/A | N/A | N/A | N/A |
| 2025 | $303,466 | $180,000 | $0 | $483,466 | $483,466 |
| 2024 | $307,200 | $180,000 | $0 | $487,200 | $487,200 |
| 2023 | $295,997 | $140,000 | $0 | $435,997 | $435,997 |
| 2022 | $271,407 | $140,000 | $0 | $411,407 | $411,407 |
| 2021 | $230,328 | $120,000 | $0 | $350,328 | $350,328 |
| 2020 | $224,362 | $100,000 | $0 | $324,362 | $324,362 |
| 2019 | $164,907 | $135,000 | $0 | $299,907 | $299,907 |
| 2018 | $165,402 | $120,000 | $0 | $285,402 | $285,402 |
| 2017 | $155,670 | $120,000 | $0 | $275,670 | $275,670 |
| 2016 | $157,610 | $100,000 | $0 | $257,610 | $257,610 |
| 2015 | $159,550 | $70,000 | $0 | $229,550 | $229,550 |
| 2014 | $161,488 | $60,000 | $0 | $221,488 | $221,488 |
| 2013 | $163,427 | $50,000 | $0 | $213,427 | $213,427 |
| 2012 | $165,367 | $65,000 | $0 | $230,367 | $230,367 |
| 2011 | $162,671 | $50,000 | $0 | $212,671 | $212,671 |
| 2010 | $168,673 | $50,000 | $0 | $218,673 | $218,673 |
| 2009 | $176,015 | $75,000 | $0 | $251,015 | $251,015 |
| 2008 | $178,242 | $100,000 | $0 | $278,242 | $278,242 |
| 2007 | $180,463 | $90,000 | $0 | $270,463 | $270,463 |
Deed and Sales History
| 1 | 08/13/2021 | WD | Warranty Deed | NYDAM, GERALD L | SMITH, ANDRE | | | $385,000.00 | 49637 | 4526863 |
| 2 | 09/01/1996 | QCD | Quit Claim Deed | ELLSWORTH, DEVELOPMENT I | E, & B | | | $0.00 | 63239 | 96015872 |
| 3 | 09/01/1996 | WD | Warranty Deed | E, & B | NYDAM, GERALD L | | | $161,500.00 | 63240 | 96015873 |
| 4 | 01/01/1900 | OTHER | Other - Misc. Documents | Unknown | ELLSWORTH, DEVELOPMENT I | | | $0.00 | 65228 | 0 |
Payout Agreement
| No payout information available.. |