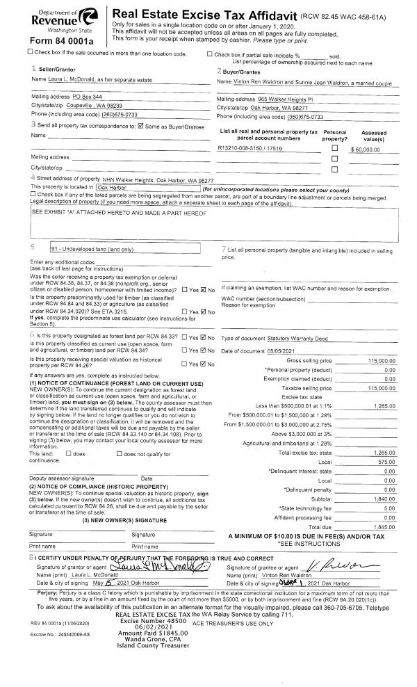
Property
Account |
| Property ID: | 706347 | Abbreviated Legal Description: | LOT 1 SP 23-91.32804.245-1830 V3 SP P13 AF#95007388 CORR V3 SP P53 AF#95017030 LOT 1 SP ALTERATION 145-09.32804-245-1750 & 32804-245-1930 AF#4287414 MISC#81941 |
| Geographic ID: | R32804-245-1750 | Agent Code: | |
| Type: | Real | | |
| Tax Area: | 719 - APPRAISER-S Whid Schl Dist, outside Langley, vacant & 50 acres or less | Land Use Code | 91 |
| Open Space: | N | DFL | N |
| Historic Property: | N | Remodel Property: | N |
| Multi-Family Redevelopment: | N | | |
| Township: | 28 | Section: | 04 |
| Range: | R3 |
Location |
| Address: | | Mapsco: | |
| Neighborhood: | Cycle 4 | Map ID: | 687 |
| Neighborhood CD: | 4 |
Owner |
| Name: | OLSON TRUSTEE, MARK C | Owner ID: | 265769 |
| Mailing Address: | NANCY D OLSON TRUSTEE 2990 SW RAYMOND ST #102 SEATTLE, WA 98126 | % Ownership: | 100.0000000000% |
| | | Exemptions: | |
Taxes and Assessment Details
Values
| (+) Improvement Homesite Value: | + | $0 | |
| (+) Improvement Non-Homesite Value: | + | $0 | |
| (+) Land Homesite Value: | + | $0 | |
| (+) Land Non-Homesite Value: | + | $150,000 | |
| (+) Curr Use (HS): | + | $0 | $0 |
| (+) Curr Use (NHS): | + | $0 | $0 |
| | | -------------------------- | |
| (=) Market Value: | = | $150,000 | |
| (–) Productivity Loss: | – | $0 | |
| | | -------------------------- | |
| (=) Subtotal: | = | $150,000 | |
| (+) Senior Appraised Value: | + | $0 | |
| (+) Non-Senior Appraised Value: | + | $150,000 | |
| | | -------------------------- | |
| (=) Total Appraised Value: | = | $150,000 | |
| (–) Senior Exemption Loss: | – | $0 | |
| (–) Exemption Loss: | – | $0 | |
| | | -------------------------- | |
| (=) Taxable Value: | = | $150,000 | |
Taxing Jurisdiction
| Owner: | OLSON TRUSTEE, MARK C | | |
| % Ownership: | 100.0000000000% | | |
| Total Value: | $150,000 | | |
| Tax Area: | 719 - APPRAISER-S Whid Schl Dist, outside Langley, vacant & 50 acres or less |
| CF | Conservation Futures | 0.0316035091 | $150,000 | $150,000 | $4.74 | | |
| HOBOND | Hospital BOND | 0.1910887512 | $150,000 | $150,000 | $28.66 | | |
| HOGEN | Hospital GEN | 0.3902502903 | $150,000 | $150,000 | $58.54 | | |
| CE | County Current Expense | 0.3708482477 | $150,000 | $150,000 | $55.63 | | |
| CR | County Roads | 0.4584763726 | $150,000 | $150,000 | $68.77 | | |
| ISLANDEMS | Hospital GEN (EMS) | 0.5000000000 | $150,000 | $150,000 | $75.00 | | |
| LIB | Library Sno-Isle GEN | 0.3153421757 | $150,000 | $150,000 | $47.30 | | |
| PORTWHID | Port of S Whidbey GEN | 0.1094540357 | $150,000 | $150,000 | $16.42 | | |
| SCH206BOND | School 206 BOND | 0.3161759235 | $150,000 | $150,000 | $47.43 | | |
| SCH206MO | School 206 Enrichment | 0.4547169547 | $150,000 | $150,000 | $68.21 | | |
| ST | State School | 1.3035497053 | $150,000 | $150,000 | $195.53 | | |
| ST2 | State School Part 2 | 0.8169543533 | $150,000 | $150,000 | $122.54 | | |
| SWHIDPRBD | P & R S Whidbey BOND | 0.0152817568 | $150,000 | $150,000 | $2.29 | | |
| SWHIDPRBD2 | P & R S Whidbey BOND2 | 0.0138911264 | $150,000 | $150,000 | $2.08 | | |
| SWHIDPRMT | P & R S Whidbey GEN | 0.2053334452 | $150,000 | $150,000 | $30.80 | | |
| | Total Tax Rate: | 5.4929666475 | | | | | |
| | | | | Taxes w/Current Exemptions: | $823.94 | | |
| | | | | Taxes w/o Exemptions: | $823.94 | | |
Improvement / Building
Sketch
| No sketches available for this property. |
Property Image
Land
| 1 | 18 | AC (02.01-03.00) | 2.0800 | 90604.80 | 0.00 | 0.00 | 1.00 | $150,000 | $0 |
Roll Value History
| 2026 | N/A | N/A | N/A | N/A | N/A |
| 2025 | $0 | $150,000 | $0 | $150,000 | $150,000 |
| 2024 | $0 | $150,000 | $0 | $150,000 | $150,000 |
| 2023 | $0 | $150,000 | $0 | $150,000 | $150,000 |
| 2022 | $0 | $150,000 | $0 | $150,000 | $150,000 |
| 2021 | $0 | $110,000 | $0 | $110,000 | $110,000 |
| 2020 | $0 | $110,000 | $0 | $110,000 | $110,000 |
| 2019 | $0 | $100,000 | $0 | $100,000 | $100,000 |
| 2018 | $0 | $100,000 | $0 | $100,000 | $100,000 |
| 2017 | $0 | $100,000 | $0 | $100,000 | $100,000 |
| 2016 | $0 | $110,000 | $0 | $110,000 | $110,000 |
| 2015 | $0 | $110,000 | $0 | $110,000 | $110,000 |
| 2014 | $0 | $105,000 | $0 | $105,000 | $105,000 |
| 2013 | $0 | $105,000 | $0 | $105,000 | $105,000 |
| 2012 | $0 | $105,000 | $0 | $105,000 | $105,000 |
| 2011 | $0 | $105,000 | $0 | $105,000 | $105,000 |
| 2010 | $0 | $105,000 | $0 | $105,000 | $105,000 |
| 2009 | $0 | $120,000 | $0 | $120,000 | $120,000 |
| 2008 | $0 | $120,000 | $0 | $120,000 | $120,000 |
| 2007 | $0 | $110,000 | $0 | $110,000 | $110,000 |
Deed and Sales History
| 1 | 04/05/2014 | WD | Warranty Deed | OLSON, MARK C / NANCY D | OLSON TRUSTEE, MARK C | | | $0.00 | 15043 | 4358429 |
| 2 | 02/01/1996 | OTHER | Other - Misc. Documents | OLSON, MARK C | OLSON, MARK C | | | $0.00 | 66785 | 95017030 |
| 3 | 12/01/1995 | WD | Warranty Deed | WASLOSKI, WILLIAM A | OLSON, MARK C | | | $44,000.00 | 54366 | 95020120 |
| 4 | 01/01/1900 | OTHER | Other - Misc. Documents | Unknown | WASLOSKI, WILLIAM A | | | $0.00 | 6175 | 90021129 |
Payout Agreement
| No payout information available.. |