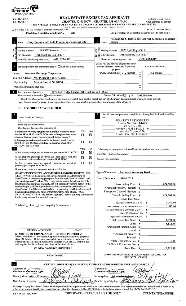
Property
Account |
| Property ID: | 70693 | Abbreviated Legal Description: | 29 - W/2 N/2 N/2 NW SE EX E420' & EX N & W30' |
| Geographic ID: | R23036-246-2850 | Agent Code: | |
| Type: | Real | | |
| Tax Area: | 712 - APPRAISER-S Whid Schl Dist, outside Langley, improved, greater than 1 acre | Land Use Code | 11 |
| Open Space: | N | DFL | N |
| Historic Property: | N | Remodel Property: | N |
| Multi-Family Redevelopment: | N | | |
| Township: | 30 | Section: | 36 |
| Range: | R2 |
Location |
| Address: | 4615 MELODY LN FREELAND, WA 98249 | Mapsco: | |
| Neighborhood: | Cycle 3 | Map ID: | 446 |
| Neighborhood CD: | 3 |
Owner |
| Name: | COBAIN, LAWRENCE P | Owner ID: | 178843 |
| Mailing Address: | CAROL WAY 4615 MELODY LN FREELAND, WA 98249-9424 | % Ownership: | 100.0000000000% |
| | | Exemptions: | |
Taxes and Assessment Details
Values
| (+) Improvement Homesite Value: | + | $0 | |
| (+) Improvement Non-Homesite Value: | + | $316,600 | |
| (+) Land Homesite Value: | + | $0 | |
| (+) Land Non-Homesite Value: | + | $290,000 | |
| (+) Curr Use (HS): | + | $0 | $0 |
| (+) Curr Use (NHS): | + | $0 | $0 |
| | | -------------------------- | |
| (=) Market Value: | = | $606,600 | |
| (–) Productivity Loss: | – | $0 | |
| | | -------------------------- | |
| (=) Subtotal: | = | $606,600 | |
| (+) Senior Appraised Value: | + | $0 | |
| (+) Non-Senior Appraised Value: | + | $606,600 | |
| | | -------------------------- | |
| (=) Total Appraised Value: | = | $606,600 | |
| (–) Senior Exemption Loss: | – | $0 | |
| (–) Exemption Loss: | – | $0 | |
| | | -------------------------- | |
| (=) Taxable Value: | = | $606,600 | |
Taxing Jurisdiction
| Owner: | COBAIN, LAWRENCE P | | |
| % Ownership: | 100.0000000000% | | |
| Total Value: | $606,600 | | |
| Tax Area: | 712 - APPRAISER-S Whid Schl Dist, outside Langley, improved, greater than 1 acre |
| CF | Conservation Futures | 0.0316035091 | $606,600 | $606,600 | $19.17 | | |
| FIRE3 | Fire & Rescue Dist #3 S Whidbey GEN | 1.2004855531 | $606,600 | $606,600 | $728.21 | | |
| HOBOND | Hospital BOND | 0.1910887512 | $606,600 | $606,600 | $115.91 | | |
| HOGEN | Hospital GEN | 0.3902502903 | $606,600 | $606,600 | $236.73 | | |
| CE | County Current Expense | 0.3708482477 | $606,600 | $606,600 | $224.96 | | |
| CR | County Roads | 0.4584763726 | $606,600 | $606,600 | $278.11 | | |
| ISLANDEMS | Hospital GEN (EMS) | 0.5000000000 | $606,600 | $606,600 | $303.30 | | |
| LIB | Library Sno-Isle GEN | 0.3153421757 | $606,600 | $606,600 | $191.29 | | |
| PORTWHID | Port of S Whidbey GEN | 0.1094540357 | $606,600 | $606,600 | $66.39 | | |
| SCH206BOND | School 206 BOND | 0.3161759235 | $606,600 | $606,600 | $191.79 | | |
| SCH206MO | School 206 Enrichment | 0.4547169547 | $606,600 | $606,600 | $275.83 | | |
| ST | State School | 1.3035497053 | $606,600 | $606,600 | $790.73 | | |
| ST2 | State School Part 2 | 0.8169543533 | $606,600 | $606,600 | $495.56 | | |
| SWHIDPRBD | P & R S Whidbey BOND | 0.0152817568 | $606,600 | $606,600 | $9.27 | | |
| SWHIDPRBD2 | P & R S Whidbey BOND2 | 0.0138911264 | $606,600 | $606,600 | $8.43 | | |
| SWHIDPRMT | P & R S Whidbey GEN | 0.2053334452 | $606,600 | $606,600 | $124.56 | | |
| | Total Tax Rate: | 6.6934522006 | | | | | |
| | | | | Taxes w/Current Exemptions: | $4,060.24 | | |
| | | | | Taxes w/o Exemptions: | $4,060.24 | | |
Improvement / Building
| Improvement #1: | RESIDENTIAL | State Code: | Y | 2004.4 sqft | Value: | $316,600 |
| Bathrooms: | 2 | Bedrooms: | 2 | | Ceiling: | DRYWALL PAINTED | Exterior Wall/Cover: | PLY/HARDBOARD T-111 | | Floor Covering: | VINYL/HARDWOOD 20-80 | Floor Structure: | SLAB ABOVE GRADE | | Foundation: | CONCRETE | Heating: | RADIANT FLOOR | | Interior Finish: | DRYWALL PAINT | Plumbing Fixture Cnt: | 10 | | Roof Slope: | 8" IN 12" | Roof Structure/Cover: | CJ ASPHALT |
|
| | Type | Description | Class CD | Sub Class CD | Year Built | Area |
| | BAS | BASE/MAIN FLOOR | 3 | 0 | 2005 | 918.2 |
| | DWN | DOWNSTAIRS LIVING AREA | 3 | 0 | 2005 | 168.0 |
| | BGR | BASEMENT GARAGE | 3 | 0 | 2005 | 696.0 |
| | UPS | UPPER STORY | 3 | 0 | 2005 | 918.2 |
| | OWP | OPEN WOOD PORCH W/STEPS | 3 | 0 | 2005 | 160.0 |
| | OWR | OPEN WOOD PORCH W/STEPS/ROOF | 3 | 0 | 2005 | 186.0 |
Sketch
Property Image
Land
| 1 | 17 | AC (01.01-02.00) | 0.0000 | 0.00 | 0.00 | 0.00 | 1.00 | $290,000 | $0 |
Roll Value History
| 2026 | N/A | N/A | N/A | N/A | N/A |
| 2025 | $316,600 | $290,000 | $0 | $606,600 | $606,600 |
| 2024 | $320,545 | $280,000 | $0 | $600,545 | $600,545 |
| 2023 | $324,489 | $260,000 | $0 | $584,489 | $584,489 |
| 2022 | $297,379 | $250,000 | $0 | $547,379 | $547,379 |
| 2021 | $261,705 | $175,000 | $0 | $436,705 | $436,705 |
| 2020 | $255,430 | $165,000 | $0 | $420,430 | $420,430 |
| 2019 | $185,034 | $200,000 | $0 | $385,034 | $385,034 |
| 2018 | $185,571 | $170,000 | $0 | $355,571 | $355,571 |
| 2017 | $185,629 | $150,000 | $0 | $335,629 | $335,629 |
| 2016 | $187,763 | $115,000 | $0 | $302,763 | $302,763 |
| 2015 | $189,895 | $100,000 | $0 | $289,895 | $289,895 |
| 2014 | $192,031 | $85,000 | $0 | $277,031 | $277,031 |
| 2013 | $200,014 | $85,000 | $0 | $285,014 | $285,014 |
| 2012 | $202,148 | $97,750 | $0 | $299,898 | $299,898 |
| 2011 | $204,282 | $115,000 | $0 | $319,282 | $319,282 |
| 2010 | $218,638 | $115,000 | $0 | $333,638 | $333,638 |
| 2009 | $225,684 | $155,000 | $0 | $380,684 | $380,684 |
| 2008 | $106,825 | $165,000 | $0 | $271,825 | $271,825 |
| 2007 | $82,868 | $111,168 | $0 | $194,036 | $194,036 |
Deed and Sales History
| 1 | 11/20/1998 | WD | Warranty Deed | NICHOLS, COLLEEN K | COBAIN, LAWRENCE P | | | $47,000.00 | 84812 | 98026428 |
| 2 | 09/01/1997 | ESTSEPPROP | Establish Separate Property | NW, EXCHANGE & | NICHOLS, COLLEEN K | | | $0.00 | 73153 | 97014908 |
| 3 | 08/01/1996 | ESTSEPPROP | Establish Separate Property | NICHOLS, COLLEEN K | NW, EXCHANGE & | | | $0.00 | 63180 | 96015513 |
| 4 | 07/01/1995 | WD | Warranty Deed | WEST, ROBERT F | NICHOLS, COLLEEN K | | | $19,500.00 | 52562 | 95011811 |
| 5 | 11/01/1988 | REC | Real Estate Contract | JOSEPHSON, DONNA L | WEST, ROBERT F | | | $9,300.00 | 84330 | 88016129 |
| 6 | 01/01/1900 | OTHER | Other - Misc. Documents | Unknown | JOSEPHSON, DONNA L | | | $0.00 | 0 | 0 |
Payout Agreement
| No payout information available.. |