Property
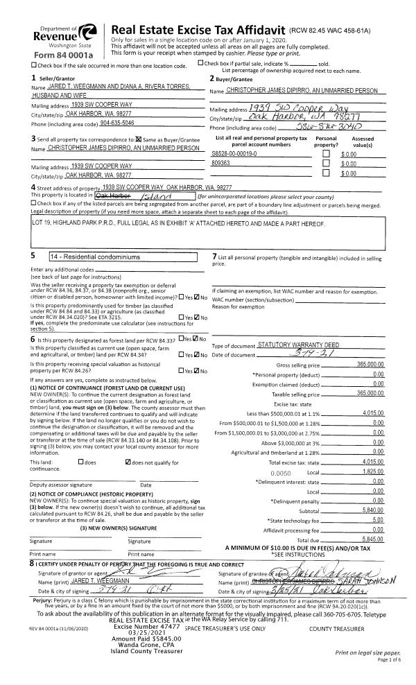
Account |
| Property ID: | 707097 | Abbreviated Legal Description: | IN NW SW: BG SWCR SEC 8 N01*E1981.84' S87*E30'TO ELN S BAYVIEW RD TPB S87*E ALG EXIST FENCE 493.66' N01*E179.78' N87*W493.65' TP ELN SD RD S01*W179.61' TPB TGW EZ FR 216-0260 |
| Geographic ID: | R32908-212-0280 | Agent Code: | |
| Type: | Real | | |
| Tax Area: | 712 - APPRAISER-S Whid Schl Dist, outside Langley, improved, greater than 1 acre | Land Use Code | 11 |
| Open Space: | N | DFL | N |
| Historic Property: | N | Remodel Property: | N |
| Multi-Family Redevelopment: | N | | |
| Township: | 29 | Section: | 08 |
| Range: | R3 |
Location |
| Address: | 5443 BAYVIEW RD LANGLEY, WA 98260 | Mapsco: | |
| Neighborhood: | Cycle 4 | Map ID: | 746 |
| Neighborhood CD: | 4 |
Owner |
| Name: | BECK TRUSTEE, MARY ANN | Owner ID: | 266117 |
| Mailing Address: | 5443 BAYVIEW RD LANGLEY, WA 98260 | % Ownership: | 100.0000000000% |
| | | Exemptions: | |
Taxes and Assessment Details
Values
| (+) Improvement Homesite Value: | + | $0 | |
| (+) Improvement Non-Homesite Value: | + | $236,512 | |
| (+) Land Homesite Value: | + | $0 | |
| (+) Land Non-Homesite Value: | + | $380,000 | |
| (+) Curr Use (HS): | + | $0 | $0 |
| (+) Curr Use (NHS): | + | $0 | $0 |
| | | -------------------------- | |
| (=) Market Value: | = | $616,512 | |
| (–) Productivity Loss: | – | $0 | |
| | | -------------------------- | |
| (=) Subtotal: | = | $616,512 | |
| (+) Senior Appraised Value: | + | $0 | |
| (+) Non-Senior Appraised Value: | + | $616,512 | |
| | | -------------------------- | |
| (=) Total Appraised Value: | = | $616,512 | |
| (–) Senior Exemption Loss: | – | $0 | |
| (–) Exemption Loss: | – | $0 | |
| | | -------------------------- | |
| (=) Taxable Value: | = | $616,512 | |
Taxing Jurisdiction
| Owner: | BECK TRUSTEE, MARY ANN | | |
| % Ownership: | 100.0000000000% | | |
| Total Value: | $616,512 | | |
| Tax Area: | 712 - APPRAISER-S Whid Schl Dist, outside Langley, improved, greater than 1 acre |
| CF | Conservation Futures | 0.0316035091 | $616,512 | $616,512 | $19.48 | | |
| FIRE3 | Fire & Rescue Dist #3 S Whidbey GEN | 1.2004855531 | $616,512 | $616,512 | $740.11 | | |
| HOBOND | Hospital BOND | 0.1910887512 | $616,512 | $616,512 | $117.81 | | |
| HOGEN | Hospital GEN | 0.3902502903 | $616,512 | $616,512 | $240.59 | | |
| CE | County Current Expense | 0.3708482477 | $616,512 | $616,512 | $228.63 | | |
| CR | County Roads | 0.4584763726 | $616,512 | $616,512 | $282.66 | | |
| ISLANDEMS | Hospital GEN (EMS) | 0.5000000000 | $616,512 | $616,512 | $308.26 | | |
| LIB | Library Sno-Isle GEN | 0.3153421757 | $616,512 | $616,512 | $194.41 | | |
| PORTWHID | Port of S Whidbey GEN | 0.1094540357 | $616,512 | $616,512 | $67.48 | | |
| SCH206BOND | School 206 BOND | 0.3161759235 | $616,512 | $616,512 | $194.93 | | |
| SCH206MO | School 206 Enrichment | 0.4547169547 | $616,512 | $616,512 | $280.34 | | |
| ST | State School | 1.3035497053 | $616,512 | $616,512 | $803.65 | | |
| ST2 | State School Part 2 | 0.8169543533 | $616,512 | $616,512 | $503.66 | | |
| SWHIDPRBD | P & R S Whidbey BOND | 0.0152817568 | $616,512 | $616,512 | $9.42 | | |
| SWHIDPRBD2 | P & R S Whidbey BOND2 | 0.0138911264 | $616,512 | $616,512 | $8.56 | | |
| SWHIDPRMT | P & R S Whidbey GEN | 0.2053334452 | $616,512 | $616,512 | $126.59 | | |
| | Total Tax Rate: | 6.6934522006 | | | | | |
| | | | | Taxes w/Current Exemptions: | $4,126.58 | | |
| | | | | Taxes w/o Exemptions: | $4,126.58 | | |
Improvement / Building
| Improvement #1: | RESIDENTIAL | State Code: | Y | 1752.0 sqft | Value: | $236,512 |
| Bathrooms: | 2 | Bedrooms: | 2 | | Ceiling: | DRYWALL PAINTED | Exterior Wall/Cover: | WOOD SIDING | | Floor Covering: | HARDWOOD/CARP 60-40 | Floor Structure: | WOOD W/SUBFLOOR | | Foundation: | CONCRETE | Heating: | FHA ELECTRIC | | Interior Finish: | DRYWALL PAINT | Plumbing Fixture Cnt: | 9 | | Roof Slope: | 8" IN 12" | Roof Structure/Cover: | CJ ASPHALT |
|
| | Type | Description | Class CD | Sub Class CD | Year Built | Area |
| | BAS | BASE/MAIN FLOOR | 3 | 0 | 1915 | 868.0 |
| | UB6 | BASEMENT UNFINISHED 6" | 3 | 0 | 1915 | 156.0 |
| | ATU | ATTIC UNFINISHED | 3 | 0 | 1915 | 476.0 |
| | OWP | OPEN WOOD PORCH W/STEPS | 3 | 0 | 1915 | 454.0 |
| | ENP | ENCLOSED PORCH | 3 | 0 | 1915 | 156.0 |
| | ENP | ENCLOSED PORCH | 3 | 0 | 1915 | 32.0 |
| | DWN | DOWNSTAIRS LIVING AREA | 3 | 0 | 1915 | 884.0 |
| | UTY | STORAGE/UTILITY | 3 | 0 | 1915 | 288.0 |
Sketch
Property Image
Land
| 1 | 18 | AC (02.01-03.00) | 0.0000 | 0.00 | 0.00 | 0.00 | 1.00 | $380,000 | $0 |
Roll Value History
| 2026 | N/A | N/A | N/A | N/A | N/A |
| 2025 | $236,512 | $380,000 | $0 | $616,512 | $616,512 |
| 2024 | $240,250 | $360,000 | $0 | $600,250 | $600,250 |
| 2023 | $243,990 | $330,000 | $0 | $573,990 | $573,990 |
| 2022 | $224,333 | $280,000 | $0 | $504,333 | $504,333 |
| 2021 | $198,004 | $260,000 | $0 | $458,004 | $458,004 |
| 2020 | $175,496 | $230,000 | $0 | $405,496 | $405,496 |
| 2019 | $127,770 | $260,000 | $0 | $387,770 | $387,770 |
| 2018 | $128,261 | $170,000 | $0 | $298,261 | $298,261 |
| 2017 | $129,239 | $150,000 | $0 | $279,239 | $279,239 |
| 2016 | $107,166 | $145,000 | $0 | $252,166 | $252,166 |
| 2015 | $108,867 | $145,000 | $0 | $253,867 | $253,867 |
| 2014 | $80,332 | $110,500 | $0 | $190,832 | $190,832 |
| 2013 | $82,012 | $110,500 | $0 | $192,512 | $192,512 |
| 2012 | $83,694 | $110,500 | $0 | $194,194 | $194,194 |
| 2011 | $85,375 | $130,000 | $0 | $215,375 | $215,375 |
| 2010 | $97,192 | $130,000 | $0 | $227,192 | $227,192 |
| 2009 | $101,711 | $155,000 | $0 | $256,711 | $256,711 |
| 2008 | $103,417 | $160,000 | $0 | $263,417 | $263,417 |
| 2007 | $105,146 | $160,000 | $0 | $265,146 | $265,146 |
Deed and Sales History
| 1 | 05/12/2014 | PRD | Personal Representatives Deed | BECK PR, MARY ANN | BECK TRUSTEE, MARY ANN | | | | 15382 | 4359762 |
| 2 | 05/28/2014 | QCD | Quit Claim Deed | BECK, MARY ANN | BECK PR, MARY ANN | | | | 15381 | 4359761 |
| 3 | 06/01/1995 | OTHER | Other - Misc. Documents | BECK, WILLIAM J | BECK, WILLIAM J | | | $0.00 | 66475 | 95009161 |
| 4 | 01/01/1900 | OTHER | Other - Misc. Documents | Unknown | BECK, WILLIAM J | | | $0.00 | 81543 | 3366340 |
Payout Agreement
| No payout information available.. |