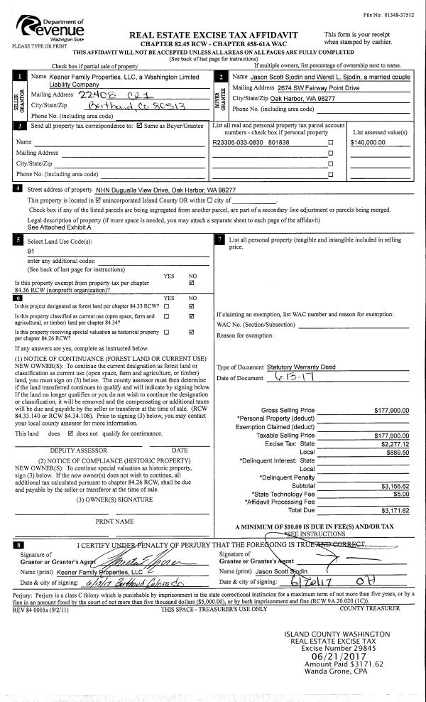
Property
Account |
| Property ID: | 707257 | Abbreviated Legal Description: | SW SW SE TGW & SUB EZ FR 061-2460 |
| Geographic ID: | R32917-031-3150 | Agent Code: | |
| Type: | Real | | |
| Tax Area: | 712 - APPRAISER-S Whid Schl Dist, outside Langley, improved, greater than 1 acre | Land Use Code | 11 |
| Open Space: | N | DFL | N |
| Historic Property: | N | Remodel Property: | N |
| Multi-Family Redevelopment: | N | | |
| Township: | 29 | Section: | 17 |
| Range: | R3 |
Location |
| Address: | 2993 BECKER RD LANGLEY, WA 98260 | Mapsco: | |
| Neighborhood: | Cycle 4 | Map ID: | 779 |
| Neighborhood CD: | 4 |
Owner |
| Name: | LINDSAY, PETER | Owner ID: | 278267 |
| Mailing Address: | DONNA LINDSAY 3001 BECKER RD CLINTON, WA 98236 | % Ownership: | 100.0000000000% |
| | | Exemptions: | |
Taxes and Assessment Details
Values
| (+) Improvement Homesite Value: | + | $0 | |
| (+) Improvement Non-Homesite Value: | + | $730,220 | |
| (+) Land Homesite Value: | + | $0 | |
| (+) Land Non-Homesite Value: | + | $400,000 | |
| (+) Curr Use (HS): | + | $0 | $0 |
| (+) Curr Use (NHS): | + | $0 | $0 |
| | | -------------------------- | |
| (=) Market Value: | = | $1,130,220 | |
| (–) Productivity Loss: | – | $0 | |
| | | -------------------------- | |
| (=) Subtotal: | = | $1,130,220 | |
| (+) Senior Appraised Value: | + | $0 | |
| (+) Non-Senior Appraised Value: | + | $1,130,220 | |
| | | -------------------------- | |
| (=) Total Appraised Value: | = | $1,130,220 | |
| (–) Senior Exemption Loss: | – | $0 | |
| (–) Exemption Loss: | – | $0 | |
| | | -------------------------- | |
| (=) Taxable Value: | = | $1,130,220 | |
Taxing Jurisdiction
| Owner: | LINDSAY, PETER | | |
| % Ownership: | 100.0000000000% | | |
| Total Value: | $1,130,220 | | |
| Tax Area: | 712 - APPRAISER-S Whid Schl Dist, outside Langley, improved, greater than 1 acre |
| CF | Conservation Futures | 0.0316035091 | $1,130,220 | $1,130,220 | $35.72 | | |
| FIRE3 | Fire & Rescue Dist #3 S Whidbey GEN | 1.2004855531 | $1,130,220 | $1,130,220 | $1,356.81 | | |
| HOBOND | Hospital BOND | 0.1910887512 | $1,130,220 | $1,130,220 | $215.97 | | |
| HOGEN | Hospital GEN | 0.3902502903 | $1,130,220 | $1,130,220 | $441.07 | | |
| CE | County Current Expense | 0.3708482477 | $1,130,220 | $1,130,220 | $419.14 | | |
| CR | County Roads | 0.4584763726 | $1,130,220 | $1,130,220 | $518.18 | | |
| ISLANDEMS | Hospital GEN (EMS) | 0.5000000000 | $1,130,220 | $1,130,220 | $565.11 | | |
| LIB | Library Sno-Isle GEN | 0.3153421757 | $1,130,220 | $1,130,220 | $356.41 | | |
| PORTWHID | Port of S Whidbey GEN | 0.1094540357 | $1,130,220 | $1,130,220 | $123.71 | | |
| SCH206BOND | School 206 BOND | 0.3161759235 | $1,130,220 | $1,130,220 | $357.35 | | |
| SCH206MO | School 206 Enrichment | 0.4547169547 | $1,130,220 | $1,130,220 | $513.93 | | |
| ST | State School | 1.3035497053 | $1,130,220 | $1,130,220 | $1,473.30 | | |
| ST2 | State School Part 2 | 0.8169543533 | $1,130,220 | $1,130,220 | $923.34 | | |
| SWHIDPRBD | P & R S Whidbey BOND | 0.0152817568 | $1,130,220 | $1,130,220 | $17.27 | | |
| SWHIDPRBD2 | P & R S Whidbey BOND2 | 0.0138911264 | $1,130,220 | $1,130,220 | $15.70 | | |
| SWHIDPRMT | P & R S Whidbey GEN | 0.2053334452 | $1,130,220 | $1,130,220 | $232.07 | | |
| | Total Tax Rate: | 6.6934522006 | | | | | |
| | | | | Taxes w/Current Exemptions: | $7,565.08 | | |
| | | | | Taxes w/o Exemptions: | $7,565.08 | | |
Improvement / Building
| Improvement #1: | RESIDENTIAL | State Code: | Y | 3106.9 sqft | Value: | $730,220 |
| Bathrooms: | 2.5 | Bedrooms: | 4 | | Ceiling: | DRYWALL PAINTED | Cooling: | HEAT PUMP/CONV/V | | Exterior Wall/Cover: | WOOD SIDING | Floor Covering: | CERAMIC TILE/CPT 40-60 | | Floor Structure: | WOOD W/SUBFLOOR | Foundation: | CONCRETE | | Heating: | RADIANT FLOOR | Interior Finish: | DRYWALL PAINT | | Plumbing Fixture Cnt: | 14 | Roof Slope: | 12" IN 12" | | Roof Structure/Cover: | CJ ALUMINIUM HEAVY |   |   |
|
| | Type | Description | Class CD | Sub Class CD | Year Built | Area |
| | BAS | BASE/MAIN FLOOR | 5 | 0 | 1999 | 1588.3 |
| | OP4 | OPEN PORCH W/CEILING-ROOF | 5 | 0 | 1999 | 40.8 |
| | DGR | DETACHED GARAGE | 5 | 0 | 1999 | 576.0 |
| | UTY | STORAGE/UTILITY | 5 | 0 | 1999 | 27.0 |
| | UPS | UPPER STORY | 5 | 0 | 1999 | 1518.6 |
| | oBAR | BARN | 5 | 0 | 1999 | 0.0 |
| | oSTA | STABLE | 5 | 0 | 1999 | 0.0 |
| | oHAY | HAY SHED | 5 | 0 | 1999 | 0.0 |
Sketch
Property Image
Land
| 1 | 35 | AC (10.00-30.99) | 10.0000 | 0.00 | 0.00 | 0.00 | 1.00 | $400,000 | $0 |
Roll Value History
| 2026 | N/A | N/A | N/A | N/A | N/A |
| 2025 | $730,220 | $400,000 | $0 | $1,130,220 | $1,130,220 |
| 2024 | $738,374 | $360,000 | $0 | $1,098,374 | $1,098,374 |
| 2023 | $746,527 | $360,000 | $0 | $1,106,527 | $1,106,527 |
| 2022 | $686,690 | $350,000 | $0 | $1,036,690 | $1,036,690 |
| 2021 | $608,108 | $250,000 | $0 | $858,108 | $858,108 |
| 2020 | $553,094 | $250,000 | $0 | $803,094 | $803,094 |
| 2019 | $447,228 | $300,000 | $0 | $747,228 | $747,228 |
| 2018 | $448,409 | $245,000 | $0 | $693,409 | $693,409 |
| 2017 | $439,890 | $210,000 | $0 | $649,890 | $649,890 |
| 2016 | $444,491 | $210,000 | $0 | $654,491 | $654,491 |
| 2015 | $449,092 | $210,000 | $0 | $659,092 | $659,092 |
| 2014 | $450,109 | $250,000 | $0 | $700,109 | $700,109 |
| 2013 | $454,941 | $255,000 | $0 | $709,941 | $709,941 |
| 2012 | $459,771 | $255,000 | $0 | $714,771 | $714,771 |
| 2011 | $464,601 | $255,000 | $0 | $719,601 | $719,601 |
| 2010 | $477,277 | $255,000 | $0 | $732,277 | $732,277 |
| 2009 | $497,425 | $330,000 | $0 | $827,425 | $827,425 |
| 2008 | $457,321 | $370,000 | $0 | $827,321 | $827,321 |
| 2007 | $463,278 | $226,600 | $0 | $689,878 | $689,878 |
Deed and Sales History
| 1 | 01/11/2017 | WD | Warranty Deed | LINDSAY, PETER | LINDSAY, PETER | | | $0.00 | 28919 | 4420905 |
| 2 | 01/11/2017 | WD | Warranty Deed | AKIN, MARGARET | LINDSAY, PETER | | | $669,300.00 | 27769 | 4415375 |
| 3 | 05/11/2007 | WD | Warranty Deed | ADAMS, ROBIN | AKIN, MARGARET | | | $875,000.00 | 71629 | 4202308 |
| 4 | 04/15/1999 | WD | Warranty Deed | MYRES, STEVEN M | ADAMS, ROBIN | | | $90,000.00 | 91469 | 99009555 |
| 5 | 12/01/1996 | WD | Warranty Deed | NELSON, HENRY D | MYRES, STEVEN M | | | $55,000.00 | 70024 | 97000067 |
| 6 | 12/01/1996 | WD | Warranty Deed | NELSON, HENRY D | MYRES, STEVEN M | | | $55,000.00 | 70024 | 970067 |
| 7 | 06/01/1995 | OTHER | Other - Misc. Documents | NELSON, HENRY D | NELSON, HENRY D | | | $0.00 | 66489 | 0 |
| 8 | 06/01/1995 | OTHER | Other - Misc. Documents | MYRES, STEVEN M | NELSON, HENRY D | | | $0.00 | 66489 | 0 |
| 9 | 01/01/1900 | OTHER | Other - Misc. Documents | Unknown | NELSON, HENRY D | | | $0.00 | 82262 | 88008360 |
Payout Agreement
| No payout information available.. |