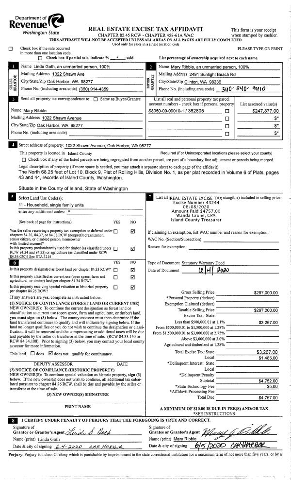
Property
Account |
| Property ID: | 707382 | Abbreviated Legal Description: | IMP ONLY SEE 295-4601 LOT 2 SP 58-93.23013.302-4600 V3 SP P20-1 AF#95009537 TGW & SUB DRAINFIELDS FOR SP 80-70 & SP 88-04 TGW BEACH ACCESS EZ AF#88011990 TGW VIEW EZ AF#94013257 BLA 188/22 4554580 |
| Geographic ID: | R23013-295-4600 | Agent Code: | |
| Type: | Real | | |
| Tax Area: | 712 - APPRAISER-S Whid Schl Dist, outside Langley, improved, greater than 1 acre | Land Use Code | 11 |
| Open Space: | N | DFL | N |
| Historic Property: | N | Remodel Property: | N |
| Multi-Family Redevelopment: | N | | |
| Township: | 30 | Section: | 13 |
| Range: | R2 |
Location |
| Address: | 3384 FOX SPIT RD LANGLEY, WA 98260 | Mapsco: | |
| Neighborhood: | Cycle 3 | Map ID: | 376 |
| Neighborhood CD: | 3 |
Owner |
| Name: | EISENBACH REAL ESTATE, LLC | Owner ID: | 185597 |
| Mailing Address: | PO BOX 1124 LANGLEY, WA 98260 | % Ownership: | 100.0000000000% |
| | | Exemptions: | |
Taxes and Assessment Details
Values
| (+) Improvement Homesite Value: | + | $0 | |
| (+) Improvement Non-Homesite Value: | + | $465,576 | |
| (+) Land Homesite Value: | + | $0 | |
| (+) Land Non-Homesite Value: | + | $470,000 | |
| (+) Curr Use (HS): | + | $0 | $0 |
| (+) Curr Use (NHS): | + | $0 | $0 |
| | | -------------------------- | |
| (=) Market Value: | = | $935,576 | |
| (–) Productivity Loss: | – | $0 | |
| | | -------------------------- | |
| (=) Subtotal: | = | $935,576 | |
| (+) Senior Appraised Value: | + | $0 | |
| (+) Non-Senior Appraised Value: | + | $935,576 | |
| | | -------------------------- | |
| (=) Total Appraised Value: | = | $935,576 | |
| (–) Senior Exemption Loss: | – | $0 | |
| (–) Exemption Loss: | – | $0 | |
| | | -------------------------- | |
| (=) Taxable Value: | = | $935,576 | |
Taxing Jurisdiction
| Owner: | EISENBACH REAL ESTATE, LLC | | |
| % Ownership: | 100.0000000000% | | |
| Total Value: | $935,576 | | |
| Tax Area: | 712 - APPRAISER-S Whid Schl Dist, outside Langley, improved, greater than 1 acre |
| CF | Conservation Futures | 0.0316035091 | $935,576 | $935,576 | $29.57 | | |
| FIRE3 | Fire & Rescue Dist #3 S Whidbey GEN | 1.2004855531 | $935,576 | $935,576 | $1,123.15 | | |
| HOBOND | Hospital BOND | 0.1910887512 | $935,576 | $935,576 | $178.78 | | |
| HOGEN | Hospital GEN | 0.3902502903 | $935,576 | $935,576 | $365.11 | | |
| CE | County Current Expense | 0.3708482477 | $935,576 | $935,576 | $346.96 | | |
| CR | County Roads | 0.4584763726 | $935,576 | $935,576 | $428.94 | | |
| ISLANDEMS | Hospital GEN (EMS) | 0.5000000000 | $935,576 | $935,576 | $467.79 | | |
| LIB | Library Sno-Isle GEN | 0.3153421757 | $935,576 | $935,576 | $295.03 | | |
| PORTWHID | Port of S Whidbey GEN | 0.1094540357 | $935,576 | $935,576 | $102.40 | | |
| SCH206BOND | School 206 BOND | 0.3161759235 | $935,576 | $935,576 | $295.81 | | |
| SCH206MO | School 206 Enrichment | 0.4547169547 | $935,576 | $935,576 | $425.42 | | |
| ST | State School | 1.3035497053 | $935,576 | $935,576 | $1,219.57 | | |
| ST2 | State School Part 2 | 0.8169543533 | $935,576 | $935,576 | $764.32 | | |
| SWHIDPRBD | P & R S Whidbey BOND | 0.0152817568 | $935,576 | $935,576 | $14.30 | | |
| SWHIDPRBD2 | P & R S Whidbey BOND2 | 0.0138911264 | $935,576 | $935,576 | $13.00 | | |
| SWHIDPRMT | P & R S Whidbey GEN | 0.2053334452 | $935,576 | $935,576 | $192.11 | | |
| | Total Tax Rate: | 6.6934522006 | | | | | |
| | | | | Taxes w/Current Exemptions: | $6,262.26 | | |
| | | | | Taxes w/o Exemptions: | $6,262.26 | | |
Improvement / Building
| Improvement #1: | RESIDENTIAL | State Code: | Y | 3157.8 sqft | Value: | $465,576 |
| Bathrooms: | 2.5 | Bedrooms: | 2 | | Ceiling: | DRY WALL SPRAYED | Exterior Wall/Cover: | SHINGLE | | Floor Covering: | VINYL TILE/HARWD 20-80 | Floor Structure: | SLAB ON GRADE | | Foundation: | SLAB | Heating: | WALL HEAT ELECTRIC | | Interior Finish: | DRYWALL PAINT | Plumbing Fixture Cnt: | 11 | | Roof Slope: | 4" IN 12" | Roof Structure/Cover: | CJ ASPHALT |
|
| | Type | Description | Class CD | Sub Class CD | Year Built | Area |
| | BAS | BASE/MAIN FLOOR | 4 | 0 | 1984 | 2095.0 |
| | OP1 | OPEN PORCH SLAB | 4 | 0 | 1984 | 225.0 |
| | OP4 | OPEN PORCH W/CEILING-ROOF | 4 | 0 | 1984 | 72.0 |
| | AGR | ATTACHED GARAGE | 4 | 0 | 1984 | 864.0 |
| | OWP | OPEN WOOD PORCH W/STEPS | 4 | 0 | 1984 | 307.3 |
| | UPH | HALF STORY | 4 | 0 | 1984 | 219.0 |
| | DGR | DETACHED GARAGE | 4 | 0 | 1984 | 720.0 |
| | BIG | BUILT IN GARAGE | 4 | 0 | 1984 | 1048.6 |
| | LOF | LOFT | 4 | 0 | 1984 | 843.8 |
| | OCP | OPEN CARPORT | 4 | 0 | 1984 | 126.6 |
Sketch
Property Image
Land
| 1 | 32 | AC (03.01-09.99) | 7.0000 | 304920.00 | 0.00 | 0.00 | 1.00 | $470,000 | $0 |
Roll Value History
| 2026 | N/A | N/A | N/A | N/A | N/A |
| 2025 | $465,576 | $470,000 | $0 | $935,576 | $935,576 |
| 2024 | $471,601 | $450,000 | $0 | $921,601 | $921,601 |
| 2023 | $477,629 | $420,000 | $0 | $897,629 | $897,629 |
| 2022 | $437,972 | $400,000 | $0 | $837,972 | $837,972 |
| 2021 | $385,562 | $340,000 | $0 | $725,562 | $725,562 |
| 2020 | $376,808 | $300,000 | $0 | $676,808 | $676,808 |
| 2019 | $283,373 | $370,000 | $0 | $653,373 | $653,373 |
| 2018 | $284,268 | $210,000 | $0 | $494,268 | $494,268 |
| 2017 | $239,038 | $200,000 | $0 | $439,038 | $439,038 |
| 2016 | $242,184 | $200,000 | $0 | $442,184 | $442,184 |
| 2015 | $245,329 | $200,000 | $0 | $445,329 | $445,329 |
| 2014 | $248,475 | $215,700 | $0 | $464,175 | $464,175 |
| 2013 | $251,465 | $135,630 | $0 | $387,095 | $387,095 |
| 2012 | $254,375 | $135,630 | $0 | $390,005 | $390,005 |
| 2011 | $257,285 | $135,630 | $0 | $392,915 | $392,915 |
| 2010 | $261,433 | $150,700 | $0 | $412,133 | $412,133 |
| 2009 | $272,303 | $165,080 | $0 | $437,383 | $437,383 |
| 2008 | $275,710 | $186,650 | $0 | $462,360 | $462,360 |
| 2007 | $279,119 | $186,650 | $0 | $465,769 | $465,769 |
Deed and Sales History
| 1 | 04/17/2001 | QCD | Quit Claim Deed | EISENBACH, MARVIN & | REAL ESTATE, | | | $0.00 | 11402 | 20034050 |
| 2 | 01/01/1900 | OTHER | Other - Misc. Documents | Unknown | EISENBACH, MARVIN & | | | $0.00 | 59733 | 401820 |
Payout Agreement
| No payout information available.. |