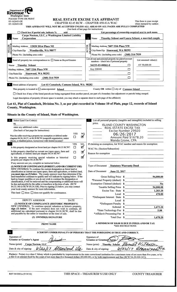
Property
Account |
| Property ID: | 707505 | Abbreviated Legal Description: | LOT 2 SP 17-94.32909.107-4800 V3 SP P26 AF#95009784 TGW & SUB EZ AF#90019140 |
| Geographic ID: | R32909-095-4850 | Agent Code: | |
| Type: | Real | | |
| Tax Area: | 712 - APPRAISER-S Whid Schl Dist, outside Langley, improved, greater than 1 acre | Land Use Code | 11 |
| Open Space: | N | DFL | N |
| Historic Property: | N | Remodel Property: | N |
| Multi-Family Redevelopment: | N | | |
| Township: | 29 | Section: | 09 |
| Range: | R3 |
Location |
| Address: | 3571 RABBIT RUN RD LANGLEY, WA 98260 | Mapsco: | |
| Neighborhood: | Cycle 4 | Map ID: | 751 |
| Neighborhood CD: | 4 |
Owner |
| Name: | OSTERMICK-DURKEE, KYLE W | Owner ID: | 280507 |
| Mailing Address: | MEGAN L OSTERMICK-DURKEE 3571 RABBIT RUN RD LANGLEY, WA 98260 | % Ownership: | 100.0000000000% |
| | | Exemptions: | |
Taxes and Assessment Details
Values
| (+) Improvement Homesite Value: | + | $0 | |
| (+) Improvement Non-Homesite Value: | + | $343,650 | |
| (+) Land Homesite Value: | + | $0 | |
| (+) Land Non-Homesite Value: | + | $380,000 | |
| (+) Curr Use (HS): | + | $0 | $0 |
| (+) Curr Use (NHS): | + | $0 | $0 |
| | | -------------------------- | |
| (=) Market Value: | = | $723,650 | |
| (–) Productivity Loss: | – | $0 | |
| | | -------------------------- | |
| (=) Subtotal: | = | $723,650 | |
| (+) Senior Appraised Value: | + | $0 | |
| (+) Non-Senior Appraised Value: | + | $723,650 | |
| | | -------------------------- | |
| (=) Total Appraised Value: | = | $723,650 | |
| (–) Senior Exemption Loss: | – | $0 | |
| (–) Exemption Loss: | – | $0 | |
| | | -------------------------- | |
| (=) Taxable Value: | = | $723,650 | |
Taxing Jurisdiction
| Owner: | OSTERMICK-DURKEE, KYLE W | | |
| % Ownership: | 100.0000000000% | | |
| Total Value: | $723,650 | | |
| Tax Area: | 712 - APPRAISER-S Whid Schl Dist, outside Langley, improved, greater than 1 acre |
| CF | Conservation Futures | 0.0316035091 | $723,650 | $723,650 | $22.87 | | |
| FIRE3 | Fire & Rescue Dist #3 S Whidbey GEN | 1.2004855531 | $723,650 | $723,650 | $868.73 | | |
| HOBOND | Hospital BOND | 0.1910887512 | $723,650 | $723,650 | $138.28 | | |
| HOGEN | Hospital GEN | 0.3902502903 | $723,650 | $723,650 | $282.40 | | |
| CE | County Current Expense | 0.3708482477 | $723,650 | $723,650 | $268.36 | | |
| CR | County Roads | 0.4584763726 | $723,650 | $723,650 | $331.78 | | |
| ISLANDEMS | Hospital GEN (EMS) | 0.5000000000 | $723,650 | $723,650 | $361.83 | | |
| LIB | Library Sno-Isle GEN | 0.3153421757 | $723,650 | $723,650 | $228.20 | | |
| PORTWHID | Port of S Whidbey GEN | 0.1094540357 | $723,650 | $723,650 | $79.21 | | |
| SCH206BOND | School 206 BOND | 0.3161759235 | $723,650 | $723,650 | $228.80 | | |
| SCH206MO | School 206 Enrichment | 0.4547169547 | $723,650 | $723,650 | $329.06 | | |
| ST | State School | 1.3035497053 | $723,650 | $723,650 | $943.31 | | |
| ST2 | State School Part 2 | 0.8169543533 | $723,650 | $723,650 | $591.19 | | |
| SWHIDPRBD | P & R S Whidbey BOND | 0.0152817568 | $723,650 | $723,650 | $11.06 | | |
| SWHIDPRBD2 | P & R S Whidbey BOND2 | 0.0138911264 | $723,650 | $723,650 | $10.05 | | |
| SWHIDPRMT | P & R S Whidbey GEN | 0.2053334452 | $723,650 | $723,650 | $148.59 | | |
| | Total Tax Rate: | 6.6934522006 | | | | | |
| | | | | Taxes w/Current Exemptions: | $4,843.72 | | |
| | | | | Taxes w/o Exemptions: | $4,843.72 | | |
Improvement / Building
| Improvement #1: | RESIDENTIAL | State Code: | Y | 1797.0 sqft | Value: | $343,650 |
| Bathrooms: | 2.5 | Bedrooms: | 4 | | Ceiling: | DRYWALL PAINTED | Exterior Wall/Cover: | PLY/HARDBOARD T-111 | | Floor Covering: | HARDWOOD 100% | Floor Structure: | WOOD W/SUBFLOOR | | Foundation: | CONCRETE | Heating: | WALL HEAT ELECTRIC | | Interior Finish: | DRYWALL PAINT | Plumbing Fixture Cnt: | 11 | | Roof Slope: | 5" IN 12" | Roof Structure/Cover: | CJ ASPHALT |
|
| | Type | Description | Class CD | Sub Class CD | Year Built | Area |
| | BAS | BASE/MAIN FLOOR | 3 | 0 | 1993 | 951.0 |
| | AGR | ATTACHED GARAGE | 3 | 0 | 1993 | 388.0 |
| | BIG | BUILT IN GARAGE | 3 | 0 | 1993 | 96.0 |
| | UPS | UPPER STORY | 3 | 0 | 1993 | 846.0 |
| | OWP | OPEN WOOD PORCH W/STEPS | 3 | 0 | 1993 | 300.0 |
| | OWC | OPEN WOOD PORCH W/STEPS/ROOF/C | 3 | 0 | 1993 | 63.0 |
Sketch
Property Image
Land
| 1 | 32 | AC (03.01-09.99) | 4.8800 | 0.00 | 0.00 | 0.00 | 1.00 | $380,000 | $0 |
Roll Value History
| 2026 | N/A | N/A | N/A | N/A | N/A |
| 2025 | $343,650 | $380,000 | $0 | $723,650 | $723,650 |
| 2024 | $347,679 | $350,000 | $0 | $697,679 | $697,679 |
| 2023 | $351,711 | $330,000 | $0 | $681,711 | $681,711 |
| 2022 | $322,124 | $290,000 | $0 | $612,124 | $612,124 |
| 2021 | $283,286 | $230,000 | $0 | $513,286 | $513,286 |
| 2020 | $263,593 | $190,000 | $0 | $453,593 | $453,593 |
| 2019 | $195,250 | $250,000 | $0 | $445,250 | $445,250 |
| 2018 | $195,810 | $210,000 | $0 | $405,810 | $405,810 |
| 2017 | $187,978 | $190,000 | $0 | $377,978 | $377,978 |
| 2016 | $190,216 | $135,000 | $0 | $325,216 | $325,216 |
| 2015 | $192,454 | $135,000 | $0 | $327,454 | $327,454 |
| 2014 | $197,552 | $131,760 | $0 | $329,312 | $329,312 |
| 2013 | $200,084 | $156,160 | $0 | $356,244 | $356,244 |
| 2012 | $202,616 | $156,160 | $0 | $358,776 | $358,776 |
| 2011 | $205,150 | $156,160 | $0 | $361,310 | $361,310 |
| 2010 | $216,470 | $156,160 | $0 | $372,630 | $372,630 |
| 2009 | $225,685 | $214,720 | $0 | $440,405 | $440,405 |
| 2008 | $208,011 | $209,840 | $0 | $417,851 | $417,851 |
| 2007 | $210,792 | $209,840 | $0 | $420,632 | $420,632 |
Deed and Sales History
| 1 | 06/19/2017 | WD | Warranty Deed | JULISON, STEVE K | OSTERMICK-DURKEE, KYLE W | | | $415,000.00 | 29851 | 4424725 |
| 2 | 05/31/2003 | ESTSEPPROP | Establish Separate Property | JULISON, STEVE K | JULISON, STEVE K | | | $51,303.00 | 32831 | 4065049 |
| 3 | 06/01/1996 | WD | Warranty Deed | TIMMINS, MARLYSE W | JULISON, STEVE K | | | $198,000.00 | 62216 | 96010982 |
| 4 | 01/01/1900 | OTHER | Other - Misc. Documents | Unknown | TIMMINS, MARLYSE W | | | $0.00 | 50118 | 95000656 |
Payout Agreement
| No payout information available.. |