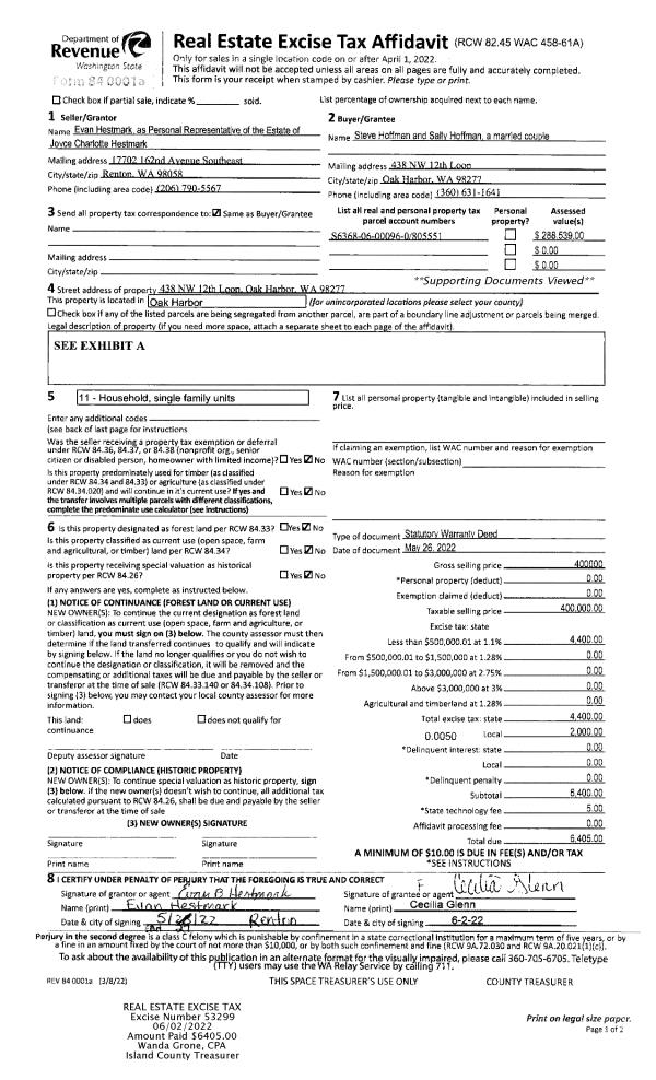
Property
Account |
| Property ID: | 707578 | Abbreviated Legal Description: | IN GL 3: BG SWCR GL 3 S89*E 40'TPB N1*E80' S89*E234.49' TO INTER/W ELN O B IVERSON TR AF#60949 S16*W83.11'TO INTER/W SLN GL 3 N89*W212 .92'TPB EX CO RD R/W FR 269-2800 |
| Geographic ID: | R33105-268-2780 | Agent Code: | |
| Type: | Real | | |
| Tax Area: | 590 - APPRAISER-Stan/Cam Schl Dist, Special Dist, improved & less than 1 acre | Land Use Code | 11 |
| Open Space: | N | DFL | N |
| Historic Property: | N | Remodel Property: | N |
| Multi-Family Redevelopment: | N | | |
| Township: | 31 | Section: | 05 |
| Range: | R3 |
Location |
| Address: | 600 IVERSON RD CAMANO ISLAND, WA 98282 | Mapsco: | |
| Neighborhood: | Cycle 5 | Map ID: | 917 |
| Neighborhood CD: | 5 |
Owner |
| Name: | MYERS, GREGORY A | Owner ID: | 190463 |
| Mailing Address: | DONNA L MYERS 600 IVERSON BEACH RD CAMANO ISLAND, WA 98282-8598 | % Ownership: | 100.0000000000% |
| | | Exemptions: | |
Taxes and Assessment Details
Values
| (+) Improvement Homesite Value: | + | $0 | |
| (+) Improvement Non-Homesite Value: | + | $514,935 | |
| (+) Land Homesite Value: | + | $0 | |
| (+) Land Non-Homesite Value: | + | $420,000 | |
| (+) Curr Use (HS): | + | $0 | $0 |
| (+) Curr Use (NHS): | + | $0 | $0 |
| | | -------------------------- | |
| (=) Market Value: | = | $934,935 | |
| (–) Productivity Loss: | – | $0 | |
| | | -------------------------- | |
| (=) Subtotal: | = | $934,935 | |
| (+) Senior Appraised Value: | + | $0 | |
| (+) Non-Senior Appraised Value: | + | $934,935 | |
| | | -------------------------- | |
| (=) Total Appraised Value: | = | $934,935 | |
| (–) Senior Exemption Loss: | – | $0 | |
| (–) Exemption Loss: | – | $0 | |
| | | -------------------------- | |
| (=) Taxable Value: | = | $934,935 | |
Taxing Jurisdiction
| Owner: | MYERS, GREGORY A | | |
| % Ownership: | 100.0000000000% | | |
| Total Value: | $934,935 | | |
| Tax Area: | 590 - APPRAISER-Stan/Cam Schl Dist, Special Dist, improved & less than 1 acre |
| CF | Conservation Futures | 0.0316035091 | $934,935 | $934,935 | $29.55 | | |
| EMS1 | Fire & Rescue Dist #1 Camano GEN (EMS) | 0.3677864386 | $934,935 | $934,935 | $343.86 | | |
| FIRE1 | Fire & Rescue Dist #1 Camano GEN | 1.2502910536 | $934,935 | $934,935 | $1,168.94 | | |
| FIRE1BOND | Fire & Rescue Dist #1 Camano BOND | 0.1570001679 | $934,935 | $934,935 | $146.78 | | |
| CE | County Current Expense | 0.3708482477 | $934,935 | $934,935 | $346.72 | | |
| CR | County Roads | 0.4584763726 | $934,935 | $934,935 | $428.65 | | |
| LCIB | Library Sno-Isle BOND (Camano Island) | 0.0396325772 | $934,935 | $934,935 | $37.05 | | |
| LIB | Library Sno-Isle GEN | 0.3153421757 | $934,935 | $934,935 | $294.82 | | |
| SCH205_401 | School 205-401 Enrichment | 1.2698420524 | $934,935 | $934,935 | $1,187.22 | | |
| SCH205BOND | School 205-401 BOND | 0.9396497583 | $934,935 | $934,935 | $878.51 | | |
| ST | State School | 1.3035497053 | $934,935 | $934,935 | $1,218.73 | | |
| ST2 | State School Part 2 | 0.8169543533 | $934,935 | $934,935 | $763.80 | | |
| | Total Tax Rate: | 7.3209764117 | | | | | |
| | | | | Taxes w/Current Exemptions: | $6,844.63 | | |
| | | | | Taxes w/o Exemptions: | $6,844.63 | | |
Improvement / Building
| Improvement #1: | RESIDENTIAL | State Code: | Y | 2274.5 sqft | Value: | $514,935 |
| Bathrooms: | 2.75 | Bedrooms: | 2 | | Ceiling: | DRYWALL PAINTED | Exterior Wall/Cover: | CEMENT FIBER | | Floor Covering: | VINYL/HARDWOOD 20-80 | Floor Structure: | WOOD W/SUBFLOOR | | Foundation: | CONCRETE | Heating: | FHA GAS | | Interior Finish: | DRYWALL PAINT | Plumbing Fixture Cnt: | 14 | | Roof Slope: | 8" IN 12" | Roof Structure/Cover: | CJ ASPHALT |
|
| | Type | Description | Class CD | Sub Class CD | Year Built | Area |
| | BAS | BASE/MAIN FLOOR | 4 | 0 | 2004 | 1285.5 |
| | OWP | OPEN WOOD PORCH W/STEPS | 4 | 0 | 2004 | 883.0 |
| | OP4 | OPEN PORCH W/CEILING-ROOF | 4 | 0 | 2004 | 43.5 |
| | AGR | ATTACHED GARAGE | 4 | 0 | 2004 | 630.0 |
| | UPS | UPPER STORY | 4 | 0 | 2004 | 989.0 |
| | OWP | OPEN WOOD PORCH W/STEPS | 4 | 0 | 2004 | 190.5 |
| | UTY | STORAGE/UTILITY | 4 | 0 | 2004 | 160.0 |
Sketch
Property Image
Land
| 1 | 15 | SQ (12001-21780) | 0.2900 | 12632.40 | 80.00 | 0.00 | 1.00 | $420,000 | $0 |
Roll Value History
| 2026 | N/A | N/A | N/A | N/A | N/A |
| 2025 | $514,935 | $420,000 | $0 | $934,935 | $934,935 |
| 2024 | $520,837 | $410,000 | $0 | $930,837 | $930,837 |
| 2023 | $526,738 | $295,000 | $0 | $821,738 | $821,738 |
| 2022 | $480,986 | $270,000 | $0 | $750,986 | $750,986 |
| 2021 | $360,683 | $225,000 | $0 | $585,683 | $585,683 |
| 2020 | $349,755 | $225,000 | $0 | $574,755 | $574,755 |
| 2019 | $257,575 | $225,000 | $0 | $482,575 | $482,575 |
| 2018 | $258,282 | $225,000 | $0 | $483,282 | $483,282 |
| 2017 | $259,693 | $200,000 | $0 | $459,693 | $459,693 |
| 2016 | $262,515 | $200,000 | $0 | $462,515 | $462,515 |
| 2015 | $263,207 | $200,000 | $0 | $463,207 | $463,207 |
| 2014 | $246,596 | $200,000 | $0 | $446,596 | $446,596 |
| 2013 | $261,173 | $181,686 | $0 | $442,859 | $442,859 |
| 2012 | $263,947 | $181,686 | $0 | $445,633 | $445,633 |
| 2011 | $266,721 | $227,107 | $0 | $493,828 | $493,828 |
| 2010 | $274,054 | $227,107 | $0 | $501,161 | $501,161 |
| 2009 | $287,072 | $244,657 | $0 | $531,729 | $531,729 |
| 2008 | $290,791 | $244,657 | $0 | $535,448 | $535,448 |
| 2007 | $294,535 | $244,657 | $0 | $539,192 | $539,192 |
Deed and Sales History
| 1 | 09/26/2006 | WD | Warranty Deed | SZAFRANIEC, EDWARD R | MYERS, GREGORY A | | | $465,000.00 | 64203 | 4183096 |
| 2 | 05/29/2003 | WD | Warranty Deed | IVERSON, JUNE K | SZAFRANIEC, EDWARD R | | | $112,500.00 | 32413 | 4062079 |
| 3 | 07/01/1995 | OTHER | Other - Misc. Documents | IVERSON, JUNE K | IVERSON, JUNE K | | | $0.00 | 66508 | 95010043 |
| 4 | 03/01/1990 | TRUSTEED | Trustee's Deed | Unknown | IVERSON, JUNE K | | | $0.00 | 1500 | 90004872 |
Payout Agreement
| No payout information available.. |