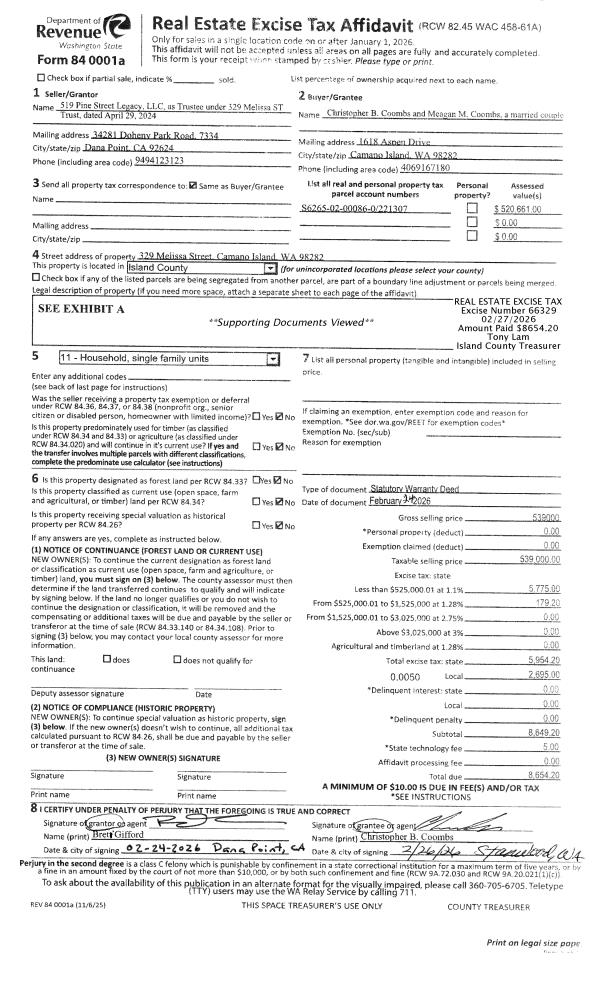
Property
Account |
| Property ID: | 7076 | Abbreviated Legal Description: | 5 R C HILL DC - BG SW CR GL2 9-31-1E S1268.52' W567. 6' N1268.52' TPB EX THAT PT S OF A LN PROD E FR NE CR N D HILL DC TGW SCENIC/FARM EZ AF#4082410 |
| Geographic ID: | R13110-154-0290 | Agent Code: | |
| Type: | Real | | |
| Tax Area: | 319 - APPRAISER-Cpvl Schl Dist, outside Cpvl, vacant & 50 acres or less | Land Use Code | 83 |
| Open Space: | Y | DFL | N |
| Historic Property: | N | Remodel Property: | N |
| Multi-Family Redevelopment: | N | | |
| Township: | 31 | Section: | 10 |
| Range: | R1 |
Location |
| Address: | COUPEVILLE, WA 98239 | Mapsco: | |
| Neighborhood: | Cycle 2 | Map ID: | 46 |
| Neighborhood CD: | 2 |
Owner |
| Name: | EINTERZ TTEE, FRANCIS R | Owner ID: | 292216 |
| Mailing Address: | THE PETERSON EINTERZ FAMILY TRUST 4580 SMUGGLERS COVE RD FREELAND, WA 98249 | % Ownership: | 100.0000000000% |
| | | Exemptions: | |
Taxes and Assessment Details
Values
| (+) Improvement Homesite Value: | + | $0 | |
| (+) Improvement Non-Homesite Value: | + | $0 | |
| (+) Land Homesite Value: | + | $0 | |
| (+) Land Non-Homesite Value: | + | $0 | |
| (+) Curr Use (HS): | + | $0 | $0 |
| (+) Curr Use (NHS): | + | $28,000 | $5,152 |
| | | -------------------------- | |
| (=) Market Value: | = | $28,000 | |
| (–) Productivity Loss: | – | $22,848 | |
| | | -------------------------- | |
| (=) Subtotal: | = | $5,152 | |
| (+) Senior Appraised Value: | + | $0 | |
| (+) Non-Senior Appraised Value: | + | $5,152 | |
| | | -------------------------- | |
| (=) Total Appraised Value: | = | $5,152 | |
| (–) Senior Exemption Loss: | – | $0 | |
| (–) Exemption Loss: | – | $0 | |
| | | -------------------------- | |
| (=) Taxable Value: | = | $5,152 | |
Taxing Jurisdiction
| Owner: | EINTERZ TTEE, FRANCIS R | | |
| % Ownership: | 100.0000000000% | | |
| Total Value: | $28,000 | | |
| Tax Area: | 319 - APPRAISER-Cpvl Schl Dist, outside Cpvl, vacant & 50 acres or less |
| CF | Conservation Futures | 0.0316035091 | $5,152 | $5,152 | $0.16 | | |
| CEM2 | Cemetery #2 | 0.0095056933 | $5,152 | $5,152 | $0.05 | | |
| HOBOND | Hospital BOND | 0.1910887512 | $5,152 | $5,152 | $0.98 | | |
| HOGEN | Hospital GEN | 0.3902502903 | $5,152 | $5,152 | $2.01 | | |
| CE | County Current Expense | 0.3708482477 | $5,152 | $5,152 | $1.91 | | |
| CR | County Roads | 0.4584763726 | $5,152 | $5,152 | $2.36 | | |
| ISLANDEMS | Hospital GEN (EMS) | 0.5000000000 | $5,152 | $5,152 | $2.58 | | |
| LIB | Library Sno-Isle GEN | 0.3153421757 | $5,152 | $5,152 | $1.62 | | |
| LIBCAP | Library Sno-Isle BOND (Cap Fac Imp Area) | 0.0543427938 | $5,152 | $5,152 | $0.28 | | |
| POCOUP | Port of Coupeville GEN | 0.1093371703 | $5,152 | $5,152 | $0.56 | | |
| POCOUPIDD | Port of Coupeville IDD | 0.3409740022 | $5,152 | $5,152 | $1.76 | | |
| COUPSDTECH | School 204 CP (TECH) | 0.7545480007 | $5,152 | $5,152 | $3.89 | | |
| SCH204MO | School 204 Enrichment | 0.6716186034 | $5,152 | $5,152 | $3.46 | | |
| ST | State School | 1.3035497053 | $5,152 | $5,152 | $6.72 | | |
| ST2 | State School Part 2 | 0.8169543533 | $5,152 | $5,152 | $4.21 | | |
| | Total Tax Rate: | 6.3184396689 | | | | | |
| | | | | Taxes w/Current Exemptions: | $32.55 | | |
| | | | | Taxes w/o Exemptions: | $32.55 | | |
Improvement / Building
Sketch
| No sketches available for this property. |
Property Image
Land
| 1 | 32 | AC (03.01-09.99) | 7.0000 | 304920.00 | 0.00 | 0.00 | 1.00 | $28,000 | $5,152 |
Roll Value History
| 2026 | N/A | N/A | N/A | N/A | N/A |
| 2025 | $0 | $28,000 | $5,152 | $5,152 | $5,152 |
| 2024 | $0 | $28,000 | $5,152 | $5,152 | $5,152 |
| 2023 | $0 | $28,000 | $5,152 | $5,152 | $5,152 |
| 2022 | $0 | $28,000 | $5,152 | $5,152 | $5,152 |
| 2021 | $0 | $28,000 | $5,152 | $5,152 | $5,152 |
| 2020 | $0 | $28,000 | $5,152 | $5,152 | $5,152 |
| 2019 | $0 | $28,000 | $5,152 | $5,152 | $5,152 |
| 2018 | $0 | $28,000 | $5,152 | $5,152 | $5,152 |
| 2017 | $0 | $56,000 | $5,152 | $5,152 | $5,152 |
| 2016 | $0 | $56,000 | $5,152 | $5,152 | $5,152 |
| 2015 | $0 | $140,000 | $5,152 | $5,152 | $5,152 |
| 2014 | $0 | $140,000 | $5,152 | $5,152 | $5,152 |
| 2013 | $0 | $52,063 | $5,152 | $5,152 | $5,152 |
| 2012 | $0 | $52,063 | $5,152 | $5,152 | $5,152 |
| 2011 | $0 | $61,250 | $5,152 | $5,152 | $5,152 |
| 2010 | $0 | $61,250 | $5,152 | $5,152 | $5,152 |
| 2009 | $0 | $70,000 | $5,152 | $5,152 | $5,152 |
| 2008 | $0 | $88,981 | $5,152 | $5,152 | $5,152 |
| 2007 | $0 | $88,981 | $5,152 | $5,152 | $5,152 |
Deed and Sales History
| 1 | 11/15/2019 | OTHER | Other - Misc. Documents | PETERSON TTEE, JOYCE DEE | EINTERZ TTEE, FRANCIS R | | | | 88300 | |
| 2 | 08/20/2015 | QCD | Quit Claim Deed | EINTERZ, FRAN | PETERSON TTEE, JOYCE DEE | | | $0.00 | 21029 | 4384565 |
| 3 | 12/31/2002 | EZ | Easement | EINTERZ, FRAN | EINERTZ, FRAN | | | $8,838.00 | 25286 | 4042790 |
| 4 | 03/22/2000 | WD | Warranty Deed | Unknown | EINTERZ, FRAN | | | $16,020.00 | 1064 | 20005124 |
| 5 | 01/01/1900 | WD | Warranty Deed | EINTERZ, FRAN | EINTERZ, FRAN | | | $0.00 | 0 | 0 |
Payout Agreement
| No payout information available.. |