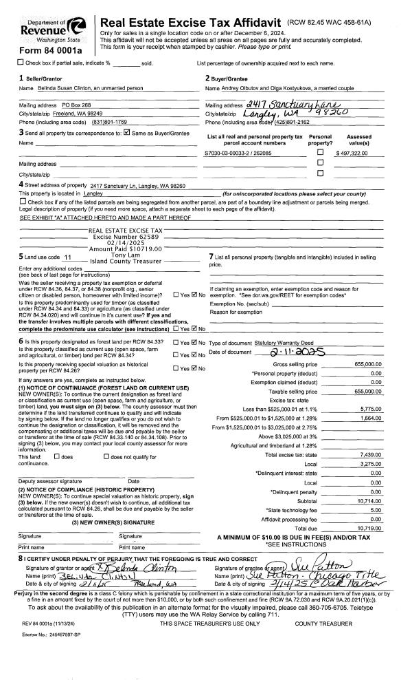
Property
Account |
| Property ID: | 707961 | Abbreviated Legal Description: | REPLACES 23128-504-5160 LOTS 5,6 & 7 GLENWOOD BCH(UNREC) INCL ADJ TIDELANDS |
| Geographic ID: | R23129-504-5160 | Agent Code: | |
| Type: | Real | | |
| Tax Area: | 312 - APPRAISER-Cpvl Schl Dist, outside Cpvl, improved, greater than 1 acre | Land Use Code | 11 |
| Open Space: | N | DFL | N |
| Historic Property: | N | Remodel Property: | N |
| Multi-Family Redevelopment: | N | | |
| Township: | 31 | Section: | 29 |
| Range: | R2 |
Location |
| Address: | 1633 NORTH BLUFF RD COUPEVILLE, WA 98239 | Mapsco: | |
| Neighborhood: | Area 2 Waterfront Eastside Res | Map ID: | 519 |
| Neighborhood CD: | 2WFTE01R |
Owner |
| Name: | HELDRIDGE, SILVIA M | Owner ID: | 199596 |
| Mailing Address: | 923 GLEN ST EDMONDS, WA 98020 | % Ownership: | 100.0000000000% |
| | | Exemptions: | |
Taxes and Assessment Details
Values
| (+) Improvement Homesite Value: | + | $0 | |
| (+) Improvement Non-Homesite Value: | + | $670,311 | |
| (+) Land Homesite Value: | + | $0 | |
| (+) Land Non-Homesite Value: | + | $977,940 | |
| (+) Curr Use (HS): | + | $0 | $0 |
| (+) Curr Use (NHS): | + | $0 | $0 |
| | | -------------------------- | |
| (=) Market Value: | = | $1,648,251 | |
| (–) Productivity Loss: | – | $0 | |
| | | -------------------------- | |
| (=) Subtotal: | = | $1,648,251 | |
| (+) Senior Appraised Value: | + | $0 | |
| (+) Non-Senior Appraised Value: | + | $1,648,251 | |
| | | -------------------------- | |
| (=) Total Appraised Value: | = | $1,648,251 | |
| (–) Senior Exemption Loss: | – | $0 | |
| (–) Exemption Loss: | – | $0 | |
| | | -------------------------- | |
| (=) Taxable Value: | = | $1,648,251 | |
Taxing Jurisdiction
| Owner: | HELDRIDGE, SILVIA M | | |
| % Ownership: | 100.0000000000% | | |
| Total Value: | $1,648,251 | | |
| Tax Area: | 312 - APPRAISER-Cpvl Schl Dist, outside Cpvl, improved, greater than 1 acre |
| CF | Conservation Futures | 0.0316035091 | $1,648,251 | $1,648,251 | $52.09 | | |
| CEM2 | Cemetery #2 | 0.0095056933 | $1,648,251 | $1,648,251 | $15.67 | | |
| FIRE5 | Fire & Rescue Dist #5 C Whidbey GEN | 1.2008080668 | $1,648,251 | $1,648,251 | $1,979.23 | | |
| FIRE5BOND | Fire & Rescue Dist #5 C Whidbey BOND | 0.1400090713 | $1,648,251 | $1,648,251 | $230.77 | | |
| HOBOND | Hospital BOND | 0.1910887512 | $1,648,251 | $1,648,251 | $314.96 | | |
| HOGEN | Hospital GEN | 0.3902502903 | $1,648,251 | $1,648,251 | $643.23 | | |
| CE | County Current Expense | 0.3708482477 | $1,648,251 | $1,648,251 | $611.25 | | |
| CR | County Roads | 0.4584763726 | $1,648,251 | $1,648,251 | $755.68 | | |
| ISLANDEMS | Hospital GEN (EMS) | 0.5000000000 | $1,648,251 | $1,648,251 | $824.13 | | |
| LIB | Library Sno-Isle GEN | 0.3153421757 | $1,648,251 | $1,648,251 | $519.76 | | |
| LIBCAP | Library Sno-Isle BOND (Cap Fac Imp Area) | 0.0543427938 | $1,648,251 | $1,648,251 | $89.57 | | |
| POCOUP | Port of Coupeville GEN | 0.1093371703 | $1,648,251 | $1,648,251 | $180.22 | | |
| POCOUPIDD | Port of Coupeville IDD | 0.3409740022 | $1,648,251 | $1,648,251 | $562.01 | | |
| COUPSDTECH | School 204 CP (TECH) | 0.7545480007 | $1,648,251 | $1,648,251 | $1,243.68 | | |
| SCH204MO | School 204 Enrichment | 0.6716186034 | $1,648,251 | $1,648,251 | $1,107.00 | | |
| ST | State School | 1.3035497053 | $1,648,251 | $1,648,251 | $2,148.58 | | |
| ST2 | State School Part 2 | 0.8169543533 | $1,648,251 | $1,648,251 | $1,346.55 | | |
| | Total Tax Rate: | 7.6592568070 | | | | | |
| | | | | Taxes w/Current Exemptions: | $12,624.38 | | |
| | | | | Taxes w/o Exemptions: | $12,624.38 | | |
Improvement / Building
| Improvement #1: | RESIDENTIAL | State Code: | Y | 3446.3 sqft | Value: | $670,311 |
| Bathrooms: | 4 | Bedrooms: | 2 | | Ceiling: | DRYWALL PAINTED | Exterior Wall/Cover: | WOOD SIDING | | Floor Covering: | HARDWOOD 100% | Floor Structure: | WOOD W/SUBFLOOR | | Foundation: | CONCRETE | Heating: | RAD HOT WATER-GAS | | Interior Finish: | DRYWALL PAINT | Plumbing Fixture Cnt: | 16 | | Roof Slope: | 6" IN 12" | Roof Structure/Cover: | CJ ALUMINIUM HEAVY |
|
| | Type | Description | Class CD | Sub Class CD | Year Built | Area |
| | BAS | BASE/MAIN FLOOR | 4 | 0 | 1933 | 1664.0 |
| | OP1 | OPEN PORCH SLAB | 4 | 0 | 1933 | 1237.5 |
| | OWP | OPEN WOOD PORCH W/STEPS | 4 | 0 | 1933 | 64.0 |
| | OWP | OPEN WOOD PORCH W/STEPS | 4 | 0 | 1933 | 1505.0 |
| | OWC | OPEN WOOD PORCH W/STEPS/ROOF/C | 4 | 0 | 1933 | 45.0 |
| | ENP | ENCLOSED PORCH | 4 | 0 | 1933 | 64.0 |
| | DWN | DOWNSTAIRS LIVING AREA | 4 | 0 | 1933 | 1782.3 |
| | DGR | DETACHED GARAGE | 4 | 0 | 1933 | 480.0 |
| | oCB1 | CABIN UNFI | 2 | 0 | 1933 | 144.0 |
| | CPD | OPEN CARPORT DIRT FLOOR | 4 | 0 | 1933 | 396.0 |
| | OWP | OPEN WOOD PORCH W/STEPS | 4 | 0 | 1933 | 180.0 |
| | OWR | OPEN WOOD PORCH W/STEPS/ROOF | 2 | 0 | 1933 | 60.5 |
Sketch
| No sketches available for this property. |
Property Image
Land
| 1 | MB | MEDIUM BANK | 7.5500 | 328878.00 | 294.00 | 0.00 | 1.00 | $975,000 | $0 |
| 2 | 55 | TIDES | 0.0000 | 0.00 | 294.00 | 0.00 | 1.00 | $2,940 | $0 |
Roll Value History
| 2026 | N/A | N/A | N/A | N/A | N/A |
| 2025 | $670,311 | $977,940 | $0 | $1,648,251 | $1,648,251 |
| 2024 | $634,976 | $977,940 | $0 | $1,612,916 | $1,612,916 |
| 2023 | $642,338 | $952,940 | $0 | $1,595,278 | $1,595,278 |
| 2022 | $588,318 | $827,940 | $0 | $1,416,258 | $1,416,258 |
| 2021 | $517,361 | $802,940 | $0 | $1,320,301 | $1,320,301 |
| 2020 | $503,286 | $802,940 | $0 | $1,306,226 | $1,306,226 |
| 2019 | $422,739 | $852,940 | $0 | $1,275,679 | $1,275,679 |
| 2018 | $356,010 | $852,940 | $0 | $1,208,950 | $1,208,950 |
| 2017 | $357,971 | $750,000 | $0 | $1,107,971 | $1,107,971 |
| 2016 | $361,902 | $750,000 | $0 | $1,111,902 | $1,111,902 |
| 2015 | $365,833 | $750,000 | $0 | $1,115,833 | $1,115,833 |
| 2014 | $369,764 | $750,000 | $0 | $1,119,764 | $1,119,764 |
| 2013 | $373,695 | $762,036 | $0 | $1,135,731 | $1,135,731 |
| 2012 | $377,624 | $762,036 | $0 | $1,139,660 | $1,139,660 |
| 2011 | $381,556 | $762,036 | $0 | $1,143,592 | $1,143,592 |
| 2010 | $392,677 | $762,036 | $0 | $1,154,713 | $1,154,713 |
| 2009 | $337,939 | $885,609 | $0 | $1,223,548 | $1,223,548 |
| 2008 | $138,138 | $545,062 | $0 | $683,200 | $683,200 |
| 2007 | $140,593 | $543,004 | $0 | $683,597 | $683,597 |
Deed and Sales History
| 1 | 12/10/2007 | DECREE | Divorce Decree/Legal Separation | HELDRIDGE, JOHN E | HELDRIDGE, SILVIA M | | | $0.00 | 80306 | 4221294 |
| 2 | 10/01/1981 | EXECUTORD | Executor Deed | Unknown | HELDRIDGE, JOHN E | | | $235,000.00 | 13447 | 389881 |
Payout Agreement
| No payout information available.. |